Property
Account |
| Property ID: | 9353 | Abbreviated Legal Description: | EAST WALLA WALLA 3RD S 40' OF LOT 3 BLK 1; N1/2 OF LOT 4 BLK 1 |
| Parcel Number: | 360727560103 | Agent Code: | |
| Type: | Real | | |
| Tax Area: | 1 - OL-140-F | Land Use Code | 11 |
| Open Space: | N | DFL | N |
| Historic Property: | N | Remodel Property: | N |
| Multi-Family Redevelopment: | N | | |
| Township: | 7 | Section: | 27 |
| Range: | 36 |
Location |
| Address: | 1006 SCHOOL AVE WA 99362 | Mapsco: | |
| Neighborhood: | A Res | Map ID: | |
| Neighborhood CD: | 613011 |
Owner |
| Name: | SCHENK TINA M | Owner ID: | 71273 |
| Mailing Address: | MIKAELA R SCHENK PO BOX 2965 WALLA WALLA, WA 99362 | % Ownership: | 100.0000000000% |
| | | Exemptions: | |
Taxes and Assessment Details
Property Tax Information as of
02/21/2026
Click on "Statement Details" to expand or collapse a tax statement.
* Please enter a valid date ** Please enter a valid date *
Statement Details |
| | TOTAL: | $0.00 | $0.00 | $0.00 | $0.00 | $0.00 | $0.00 |
|
| | $0.00 | $0.00 | $0.00 | $0.00 | $0.00 | $0.00 |
Values
| (+) Improvement Homesite Value: | + | $0 | |
| (+) Improvement Non-Homesite Value: | + | $204,540 | |
| (+) Land Homesite Value: | + | $0 | |
| (+) Land Non-Homesite Value: | + | $75,910 | |
| (+) Curr Use (HS): | + | $0 | $0 |
| (+) Curr Use (NHS): | + | $0 | $0 |
| | | -------------------------- | |
| (=) Market Value: | = | $280,450 | |
| (–) Productivity Loss: | – | $0 | |
| | | -------------------------- | |
| (=) Subtotal: | = | $280,450 | |
| (+) Senior Appraised Value: | + | $0 | |
| (+) Non-Senior Appraised Value: | + | $280,450 | |
| | | -------------------------- | |
| (=) Total Appraised Value: | = | $280,450 | |
| (–) Senior Exemption Loss: | – | $0 | |
| (–) Exemption Loss: | – | $0 | |
| | | -------------------------- | |
| (=) Taxable Value: | = | $280,450 | |
Taxing Jurisdiction
| Owner: | SCHENK TINA M | | |
| % Ownership: | 100.0000000000% | | |
| Total Value: | $280,450 | | |
| Tax Area: | 1 - OL-140-F |
| CERFD | CURRENT EXPENSE REFUND 010 | 0.0000000000 | $280,450 | $280,450 | $0.00 | | |
| CURREXP | CURRENT EXPENSE 010 | 1.0175366760 | $280,450 | $280,450 | $285.37 | | |
| HUMNSERV | HUMAN SERVICES 119 | 0.0250000000 | $280,450 | $280,450 | $7.01 | | |
| SLDREL | SOLDIERS RELIEF 121 | 0.0155990005 | $280,450 | $280,450 | $4.37 | | |
| EMERGSER | EMS 147 | 0.3792580840 | $280,450 | $280,450 | $106.36 | | |
| EMSRFD | EMS REFUND 147 | 0.0000000000 | $280,450 | $280,450 | $0.00 | | |
| PORTRFD | PORT REFUND 640 | 0.0000000000 | $280,450 | $280,450 | $0.00 | | |
| PORTWWGEN | PORT OF WW 640 | 0.2460186015 | $280,450 | $280,450 | $69.00 | | |
| SD140BOND | SD #140 BOND 764 | 0.8342371393 | $280,450 | $280,450 | $233.96 | | |
| SD140GEN | SD #140 GENERAL 760 | 2.0646500647 | $280,450 | $280,450 | $579.03 | | |
| ST2 | STATE SCHOOL PART 2 600 | 0.8131451643 | $280,450 | $280,450 | $228.05 | | |
| STATESCHL | STATE SCHOOL 600 | 1.5158548041 | $280,450 | $280,450 | $425.12 | | |
| STREFUND | STATE REFUND LEVY 603 | 0.0000000000 | $280,450 | $280,450 | $0.00 | | |
| CWWBOND | C OF WW BOND 643 | 0.2760494372 | $280,450 | $280,450 | $77.42 | | |
| CWWGEN | CITY OF WW 631 | 1.6100204973 | $280,450 | $280,450 | $451.53 | | |
| CWWRFD | CITY OF WALLA WALLA REFUND 631 | 0.0000000000 | $280,450 | $280,450 | $0.00 | | |
| | Total Tax Rate: | 8.7973694689 | | | | | |
| | | | | Taxes w/Current Exemptions: | $2,467.22 | | |
| | | | | Taxes w/o Exemptions: | $2,467.22 | | |
Improvement / Building
| Improvement #1: | RESIDENTIAL | State Code: | 11 | 1146.0 sqft | Value: | $204,540 |
| Exterior Wall: | PLYWOOD | Foundation: | SLAB FOUNDATION | | Heating/Cooling: | BASEBOARD ELECTRIC | Number of Bathrooms: | 1 | | Number of Bedrooms: | 3 | Plumbing: | 6 | | Roof Covering: | COMP SHINGLE |   |   |
|
| | Type | Description | Class CD | Sub Class CD | Year Built | Area |
| | MA | Main Area | 1 | 30 | 1960 | 1146.0 |
| | SI1 | SITE IMPROVEMENT | 1 | 30 | 1960 | 1.5 |
| | S1F | Single One Story Fireplace | 1 | 30 | 1960 | 1.0 |
| | WOD | Wood Deck | 1 | 30 | 1960 | 70.0 |
| | RPO | OPEN PORCH W/ROOF | 1 | 30 | 1960 | 70.0 |
| | CPCG | CARPORT/ GABLE ROOF | 1 | 30 | 1960 | 488.0 |
| | TOOL | TOOL SHED | 1 | 30 | 1960 | 204.0 |
Sketch
Property Image
Land
| 1 | RES 1 | Converted: Residential | 0.1936 | 8434.00 | 0.00 | 0.00 | 1.00 | $75,910 | $0 |
Roll Value History
| 2026 | N/A | N/A | N/A | N/A | N/A |
| 2025 | $205,600 | $92,770 | $0 | $298,370 | $298,370 |
| 2024 | $204,540 | $75,910 | $0 | $280,450 | $280,450 |
| 2023 | $204,540 | $75,910 | $0 | $280,450 | $280,450 |
| 2022 | $194,800 | $61,150 | $0 | $255,950 | $255,950 |
| 2021 | $162,330 | $61,150 | $0 | $223,480 | $223,480 |
| 2020 | $115,950 | $61,150 | $0 | $177,100 | $177,100 |
| 2019 | $115,950 | $61,150 | $0 | $177,100 | $177,100 |
| 2018 | $113,740 | $45,800 | $0 | $159,540 | $159,540 |
| 2017 | $103,400 | $45,800 | $0 | $149,200 | $149,200 |
| 2016 | $94,000 | $45,800 | $0 | $139,800 | $139,800 |
| 2015 | $94,000 | $45,800 | $0 | $139,800 | $139,800 |
| 2014 | $94,000 | $45,800 | $0 | $139,800 | $139,800 |
| 2013 | $94,000 | $45,800 | $0 | $139,800 | $139,800 |
| 2012 | $94,000 | $45,800 | $0 | $0 | $0 |
| 2011 | $94,000 | $45,800 | $0 | $0 | $0 |
| 2010 | $82,500 | $45,800 | $0 | $0 | $0 |
| 2009 | $96,700 | $45,800 | $0 | $0 | $0 |
| 2008 | $96,700 | $45,800 | $0 | $0 | $0 |
| 2007 | $57,500 | $23,300 | $0 | $0 | $0 |
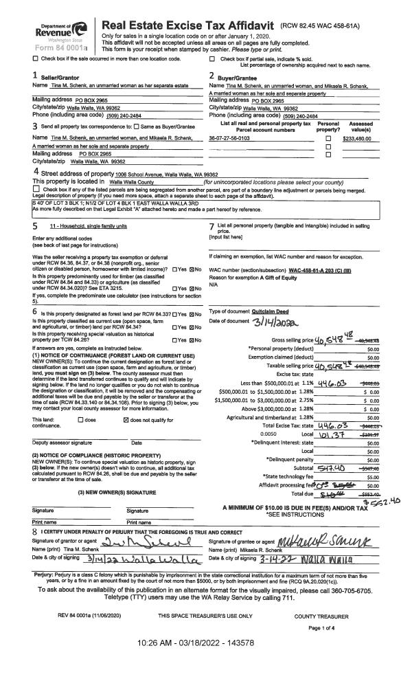
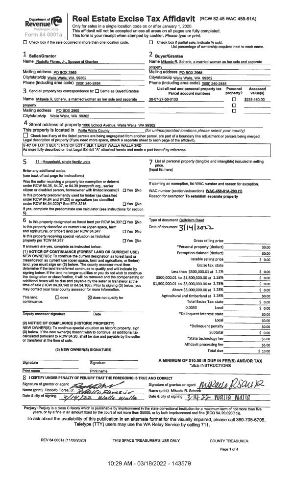
Deed and Sales History
| 1 | 03/18/2022 | QCD | QUIT CLAIM DEED | FLORES RODOLFO JR | SCHENK MIKAELA R | | | | 143579 | 2022-02285 |
| 2 | 03/18/2022 | QCD | QUIT CLAIM DEED | SCHENK TINA M | SCHENK TINA M | | | $40,548.00 | 143578 | 2022-02284 |
| 3 | 02/17/2011 | QCD | QUIT CLAIM DEED | HEILBRUN, MARCUS A | SCHENK, TINA M | | | | 119741 | 2011-01545 |
| 4 | 06/28/2000 | WARRANTY D | WARRANTY DEED | | | | | $76,900.00 | 95353 | 2990-006181 |
Payout Agreement
| No payout information available.. |