Property
Account |
| Property ID: | 9330 | Abbreviated Legal Description: | EAST WALLA WALLA 1ST LOTS 9 & 10 BLK 1 |
| Parcel Number: | 360727540112 | Agent Code: | |
| Type: | Real | | |
| Tax Area: | 1 - OL-140-F | Land Use Code | 11 |
| Open Space: | N | DFL | N |
| Historic Property: | N | Remodel Property: | N |
| Multi-Family Redevelopment: | N | | |
| Township: | 7 | Section: | 27 |
| Range: | 36 |
Location |
| Address: | 1921 AMELIA ST WA 99362 | Mapsco: | |
| Neighborhood: | A Inferior Res | Map ID: | |
| Neighborhood CD: | 413111 |
Owner |
| Name: | THONNEY KEVIN J & JENNIFER L | Owner ID: | 65266 |
| Mailing Address: | 1921 AMELIA ST WALLA WALLA, WA 99362 | % Ownership: | 100.0000000000% |
| | | Exemptions: | |
Taxes and Assessment Details
Property Tax Information as of
02/21/2026
Click on "Statement Details" to expand or collapse a tax statement.
* Please enter a valid date ** Please enter a valid date *
Statement Details |
| | TOTAL: | $0.00 | $0.00 | $0.00 | $0.00 | $0.00 | $0.00 |
|
| | $0.00 | $0.00 | $0.00 | $0.00 | $0.00 | $0.00 |
Values
| (+) Improvement Homesite Value: | + | $0 | |
| (+) Improvement Non-Homesite Value: | + | $386,200 | |
| (+) Land Homesite Value: | + | $0 | |
| (+) Land Non-Homesite Value: | + | $81,240 | |
| (+) Curr Use (HS): | + | $0 | $0 |
| (+) Curr Use (NHS): | + | $0 | $0 |
| | | -------------------------- | |
| (=) Market Value: | = | $467,440 | |
| (–) Productivity Loss: | – | $0 | |
| | | -------------------------- | |
| (=) Subtotal: | = | $467,440 | |
| (+) Senior Appraised Value: | + | $0 | |
| (+) Non-Senior Appraised Value: | + | $467,440 | |
| | | -------------------------- | |
| (=) Total Appraised Value: | = | $467,440 | |
| (–) Senior Exemption Loss: | – | $0 | |
| (–) Exemption Loss: | – | $0 | |
| | | -------------------------- | |
| (=) Taxable Value: | = | $467,440 | |
Taxing Jurisdiction
| Owner: | THONNEY KEVIN J & JENNIFER L | | |
| % Ownership: | 100.0000000000% | | |
| Total Value: | $467,440 | | |
| Tax Area: | 1 - OL-140-F |
| CERFD | CURRENT EXPENSE REFUND 010 | 0.0000000000 | $467,440 | $467,440 | $0.00 | | |
| CURREXP | CURRENT EXPENSE 010 | 1.0175366760 | $467,440 | $467,440 | $475.64 | | |
| HUMNSERV | HUMAN SERVICES 119 | 0.0250000000 | $467,440 | $467,440 | $11.69 | | |
| SLDREL | SOLDIERS RELIEF 121 | 0.0155990005 | $467,440 | $467,440 | $7.29 | | |
| EMERGSER | EMS 147 | 0.3792580840 | $467,440 | $467,440 | $177.28 | | |
| EMSRFD | EMS REFUND 147 | 0.0000000000 | $467,440 | $467,440 | $0.00 | | |
| PORTRFD | PORT REFUND 640 | 0.0000000000 | $467,440 | $467,440 | $0.00 | | |
| PORTWWGEN | PORT OF WW 640 | 0.2460186015 | $467,440 | $467,440 | $115.00 | | |
| SD140BOND | SD #140 BOND 764 | 0.8342371393 | $467,440 | $467,440 | $389.96 | | |
| SD140GEN | SD #140 GENERAL 760 | 2.0646500647 | $467,440 | $467,440 | $965.10 | | |
| ST2 | STATE SCHOOL PART 2 600 | 0.8131451643 | $467,440 | $467,440 | $380.10 | | |
| STATESCHL | STATE SCHOOL 600 | 1.5158548041 | $467,440 | $467,440 | $708.57 | | |
| STREFUND | STATE REFUND LEVY 603 | 0.0000000000 | $467,440 | $467,440 | $0.00 | | |
| CWWBOND | C OF WW BOND 643 | 0.2760494372 | $467,440 | $467,440 | $129.04 | | |
| CWWGEN | CITY OF WW 631 | 1.6100204973 | $467,440 | $467,440 | $752.59 | | |
| CWWRFD | CITY OF WALLA WALLA REFUND 631 | 0.0000000000 | $467,440 | $467,440 | $0.00 | | |
| | Total Tax Rate: | 8.7973694689 | | | | | |
| | | | | Taxes w/Current Exemptions: | $4,112.26 | | |
| | | | | Taxes w/o Exemptions: | $4,112.26 | | |
Improvement / Building
| Improvement #1: | RESIDENTIAL | State Code: | 11 | 1385.0 sqft | Value: | $386,200 |
| Exterior Wall: | HARDBOARD | Heating/Cooling: | WARM & COOLED AIR | | Number of Bathrooms: | 3 | Number of Bedrooms: | 3 | | Plumbing: | 13 | Roof Covering: | COMP SHINGLE |
|
| | Type | Description | Class CD | Sub Class CD | Year Built | Area |
| | MA | Main Area | 1 | 35 | 1993 | 1385.0 |
| | SI1 | SITE IMPROVEMENT | 1 | 35 | 1993 | 2.0 |
| | BASE | BASEMENT | 1 | 35 | 1993 | 1300.0 |
| | BPF | BASEMENT -PARTITIONED FINISH | 1 | 35 | 1993 | 1200.0 |
| | GFP | GAS FIREPLACE | 1 | 35 | 1993 | 1.0 |
| | RPS | PORCH W/STEPS,ROOF | 1 | 35 | 1993 | 130.0 |
| | OSP | Open | 1 | 35 | 0 | 312.0 |
| | ATG | Attached Garage | 1 | 35 | 1993 | 520.0 |
Sketch
Property Image
Land
| 1 | RES 1 | Converted: Residential | 0.2755 | 12000.00 | 0.00 | 0.00 | 1.00 | $81,240 | $0 |
Roll Value History
| 2026 | N/A | N/A | N/A | N/A | N/A |
| 2025 | $405,510 | $81,240 | $0 | $486,750 | $486,750 |
| 2024 | $405,510 | $81,240 | $0 | $486,750 | $486,750 |
| 2023 | $386,200 | $81,240 | $0 | $467,440 | $467,440 |
| 2022 | $402,010 | $54,120 | $0 | $456,130 | $456,130 |
| 2021 | $297,780 | $54,120 | $0 | $351,900 | $351,900 |
| 2020 | $270,710 | $54,120 | $0 | $324,830 | $324,830 |
| 2019 | $270,710 | $54,120 | $0 | $324,830 | $324,830 |
| 2018 | $250,660 | $54,120 | $0 | $304,780 | $304,780 |
| 2017 | $163,250 | $54,120 | $0 | $217,370 | $217,370 |
| 2016 | $154,900 | $48,800 | $0 | $203,700 | $203,700 |
| 2015 | $154,900 | $48,800 | $0 | $203,700 | $203,700 |
| 2014 | $154,900 | $48,800 | $0 | $203,700 | $203,700 |
| 2013 | $154,900 | $48,800 | $0 | $203,700 | $203,700 |
| 2012 | $154,900 | $48,800 | $0 | $0 | $0 |
| 2011 | $158,400 | $48,800 | $0 | $0 | $0 |
| 2010 | $158,400 | $48,800 | $0 | $0 | $0 |
| 2009 | $181,400 | $48,800 | $0 | $0 | $0 |
| 2008 | $181,400 | $48,800 | $0 | $0 | $0 |
| 2007 | $138,000 | $26,300 | $0 | $0 | $0 |
Deed and Sales History
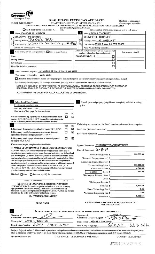
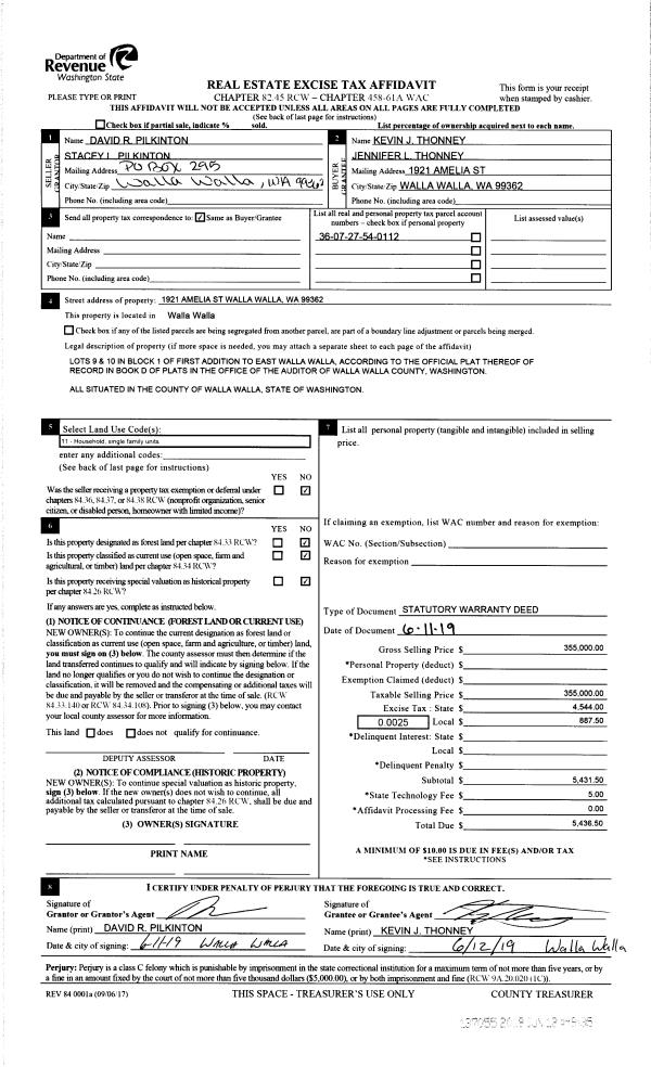
| 1 | 06/12/2019 | SWD | STATUTORY WARRANTY DEED | PILKINTON DAVID R & STACEY L | THONNEY KEVIN J & JENNIFER L | | | $355,000.00 | 137055 | 2019-04055 |
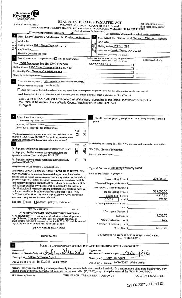
| 2 | 10/11/2017 | SWD | STATUTORY WARRANTY DEED | KOHLER LARRY G & MAUREEN M | PILKINTON DAVID R & STACEY L | | | $329,000.00 | 133384 | 2017-08083 |
| 3 | 04/22/1992 | WARRANTY D | WARRANTY DEED | | | | | $9,500.00 | 76704 | 1969-203546 |
Payout Agreement
| No payout information available.. |