Property
Account |
| Property ID: | 9322 | Abbreviated Legal Description: | EAST WALLA WALLA LOT 33 & 34 BLK 4 LESS E 8' OF LOT 34 PLUS 1/2 VACALLEY PLUS SLY 2' STRIP ON N1/2 OF ALLEY |
| Parcel Number: | 360727530448 | Agent Code: | |
| Type: | Real | | |
| Tax Area: | 1 - OL-140-F | Land Use Code | 11 |
| Open Space: | N | DFL | N |
| Historic Property: | N | Remodel Property: | N |
| Multi-Family Redevelopment: | N | | |
| Township: | 7 | Section: | 27 |
| Range: | 36 |
Location |
| Address: | 1905 LOUBECK ST WA 99362 | Mapsco: | |
| Neighborhood: | A Inferior Res | Map ID: | |
| Neighborhood CD: | 413111 |
Owner |
| Name: | GHIRARDO MARY KAY | Owner ID: | 70484 |
| Mailing Address: | ORLAN JEROME SVINGEN 825 SE HIGH ST PULLMAN, WA 99163 | % Ownership: | 100.0000000000% |
| | | Exemptions: | |
Taxes and Assessment Details
Property Tax Information as of
02/21/2026
Click on "Statement Details" to expand or collapse a tax statement.
* Please enter a valid date ** Please enter a valid date *
Statement Details |
| | TOTAL: | $0.00 | $0.00 | $0.00 | $0.00 | $0.00 | $0.00 |
|
| | $0.00 | $0.00 | $0.00 | $0.00 | $0.00 | $0.00 |
Values
| (+) Improvement Homesite Value: | + | $0 | |
| (+) Improvement Non-Homesite Value: | + | $503,850 | |
| (+) Land Homesite Value: | + | $0 | |
| (+) Land Non-Homesite Value: | + | $83,750 | |
| (+) Curr Use (HS): | + | $0 | $0 |
| (+) Curr Use (NHS): | + | $0 | $0 |
| | | -------------------------- | |
| (=) Market Value: | = | $587,600 | |
| (–) Productivity Loss: | – | $0 | |
| | | -------------------------- | |
| (=) Subtotal: | = | $587,600 | |
| (+) Senior Appraised Value: | + | $0 | |
| (+) Non-Senior Appraised Value: | + | $587,600 | |
| | | -------------------------- | |
| (=) Total Appraised Value: | = | $587,600 | |
| (–) Senior Exemption Loss: | – | $0 | |
| (–) Exemption Loss: | – | $0 | |
| | | -------------------------- | |
| (=) Taxable Value: | = | $587,600 | |
Taxing Jurisdiction
| Owner: | GHIRARDO MARY KAY | | |
| % Ownership: | 100.0000000000% | | |
| Total Value: | $587,600 | | |
| Tax Area: | 1 - OL-140-F |
| CERFD | CURRENT EXPENSE REFUND 010 | 0.0000000000 | $587,600 | $587,600 | $0.00 | | |
| CURREXP | CURRENT EXPENSE 010 | 1.0175366760 | $587,600 | $587,600 | $597.90 | | |
| HUMNSERV | HUMAN SERVICES 119 | 0.0250000000 | $587,600 | $587,600 | $14.69 | | |
| SLDREL | SOLDIERS RELIEF 121 | 0.0155990005 | $587,600 | $587,600 | $9.17 | | |
| EMERGSER | EMS 147 | 0.3792580840 | $587,600 | $587,600 | $222.85 | | |
| EMSRFD | EMS REFUND 147 | 0.0000000000 | $587,600 | $587,600 | $0.00 | | |
| PORTRFD | PORT REFUND 640 | 0.0000000000 | $587,600 | $587,600 | $0.00 | | |
| PORTWWGEN | PORT OF WW 640 | 0.2460186015 | $587,600 | $587,600 | $144.56 | | |
| SD140BOND | SD #140 BOND 764 | 0.8342371393 | $587,600 | $587,600 | $490.20 | | |
| SD140GEN | SD #140 GENERAL 760 | 2.0646500647 | $587,600 | $587,600 | $1,213.19 | | |
| ST2 | STATE SCHOOL PART 2 600 | 0.8131451643 | $587,600 | $587,600 | $477.80 | | |
| STATESCHL | STATE SCHOOL 600 | 1.5158548041 | $587,600 | $587,600 | $890.72 | | |
| STREFUND | STATE REFUND LEVY 603 | 0.0000000000 | $587,600 | $587,600 | $0.00 | | |
| CWWBOND | C OF WW BOND 643 | 0.2760494372 | $587,600 | $587,600 | $162.21 | | |
| CWWGEN | CITY OF WW 631 | 1.6100204973 | $587,600 | $587,600 | $946.05 | | |
| CWWRFD | CITY OF WALLA WALLA REFUND 631 | 0.0000000000 | $587,600 | $587,600 | $0.00 | | |
| | Total Tax Rate: | 8.7973694689 | | | | | |
| | | | | Taxes w/Current Exemptions: | $5,169.34 | | |
| | | | | Taxes w/o Exemptions: | $5,169.34 | | |
Improvement / Building
| Improvement #1: | RESIDENTIAL | State Code: | 11 | 2311.0 sqft | Value: | $503,850 |
| Exterior Wall: | SIDING | Heating/Cooling: | WARM & COOLED AIR | | Number of Bathrooms: | 2.5 | Number of Bedrooms: | 3 | | Plumbing: | 14 | Roof Covering: | COMP SHINGLE |
|
| | Type | Description | Class CD | Sub Class CD | Year Built | Area |
| | MA | Main Area | 1 | 30 | 1985 | 2311.0 |
| | SI1 | SITE IMPROVEMENT | 1 | 30 | 0 | 5.5 |
| | DTG | Detached Garage | 1 | 30 | 1985 | 792.0 |
| | RCD | WOOD DECK W/ROOF, CEILED | 1 | 30 | 1985 | 336.0 |
| | RPS | PORCH W/STEPS,ROOF | 1 | 30 | 1985 | 189.0 |
| | CPCG | CARPORT/ GABLE ROOF | 1 | 30 | 1985 | 112.0 |
| | WOD | Wood Deck | 1 | 30 | 0 | 40.0 |
| | GFP | GAS FIREPLACE | 1 | 30 | 1985 | 1.0 |
Sketch
Property Image
Land
| 1 | RES 1 | Converted: Residential | 0.3669 | 15982.00 | 0.00 | 0.00 | 1.00 | $83,750 | $0 |
Roll Value History
| 2026 | N/A | N/A | N/A | N/A | N/A |
| 2025 | $503,850 | $83,750 | $0 | $587,600 | $587,600 |
| 2024 | $503,850 | $83,750 | $0 | $587,600 | $587,600 |
| 2023 | $503,850 | $83,750 | $0 | $587,600 | $587,600 |
| 2022 | $423,920 | $57,220 | $0 | $481,140 | $481,140 |
| 2021 | $294,880 | $57,220 | $0 | $352,100 | $352,100 |
| 2020 | $196,590 | $57,220 | $0 | $253,810 | $0 |
| 2019 | $196,590 | $57,220 | $0 | $253,810 | $0 |
| 2018 | $187,230 | $57,220 | $0 | $244,450 | $0 |
| 2017 | $178,310 | $57,220 | $0 | $235,530 | $0 |
| 2016 | $183,330 | $52,200 | $0 | $235,530 | $0 |
| 2015 | $174,600 | $52,200 | $0 | $226,800 | $0 |
| 2014 | $174,600 | $52,200 | $0 | $226,800 | $226,800 |
| 2013 | $174,600 | $52,200 | $0 | $226,800 | $226,800 |
| 2012 | $174,600 | $52,200 | $0 | $0 | $0 |
| 2011 | $170,100 | $52,200 | $0 | $0 | $0 |
| 2010 | $170,100 | $52,200 | $0 | $0 | $0 |
| 2009 | $194,800 | $52,200 | $0 | $0 | $0 |
| 2008 | $194,800 | $52,200 | $0 | $0 | $0 |
| 2007 | $149,900 | $29,700 | $0 | $0 | $0 |
Deed and Sales History
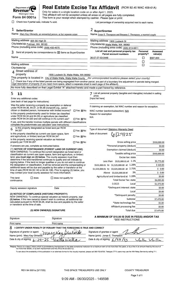
| 1 | 06/30/2025 | SWD | STATUTORY WARRANTY DEED | GHIRARDO MARY KAY | THOMPSON JONAS E & BREANNE J | | | $550,000.00 | 149598 | 2025-03681 |
| 2 | 05/23/2024 | QCD | QUIT CLAIM DEED | GHIRARDO MARY KAY | GHIRARDO MARY KAY | | | | 147601 | 2024-02722 |
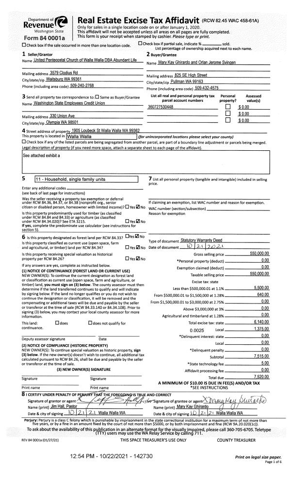
| 3 | 10/22/2021 | SWD | STATUTORY WARRANTY DEED | UNITED PENTECOSTAL CHURCH | GHIRARDO MARY KAY | | | $550,000.00 | 142730 | 2021-12806 |
| 4 | 08/26/2015 | SWD | STATUTORY WARRANTY DEED | SALING BEVERLY MARSHALL | UNITED PENTECOSTAL CHURCH | | | $245,000.00 | 128693 | 2015-07478 |
| 5 | 08/10/2001 | WARRANTY D | WARRANTY DEED | | | | | $195,000.00 | 97809 | 3180-108658 |
Payout Agreement
| No payout information available.. |