Property
Account |
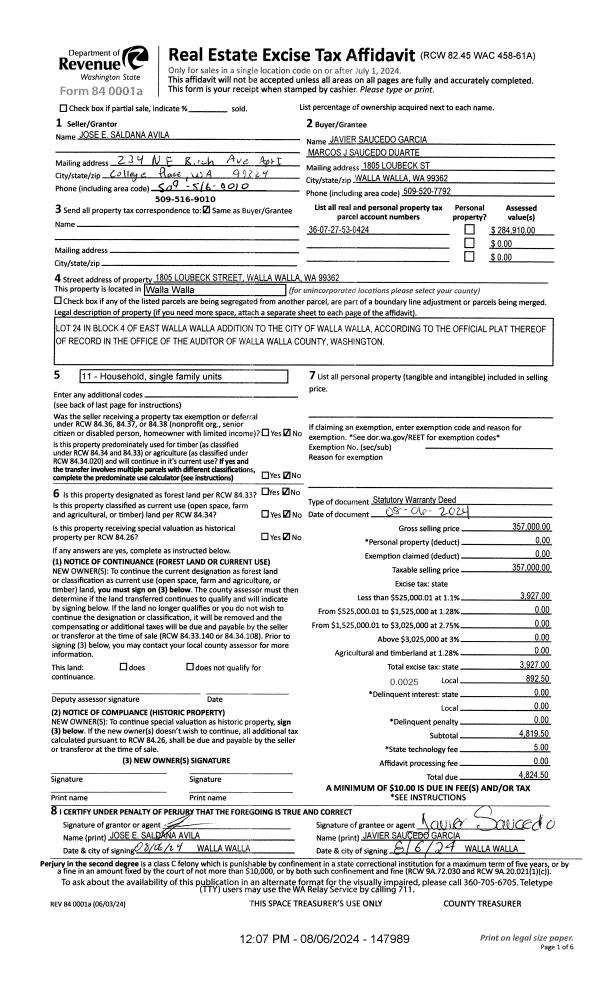
| Property ID: | 9314 | Abbreviated Legal Description: | EAST WALLA WALLA LOT 24 BLK 4 |
| Parcel Number: | 360727530424 | Agent Code: | |
| Type: | Real | | |
| Tax Area: | 1 - OL-140-F | Land Use Code | 11 |
| Open Space: | N | DFL | N |
| Historic Property: | N | Remodel Property: | N |
| Multi-Family Redevelopment: | N | | |
| Township: | 7 | Section: | 27 |
| Range: | 36 |
Location |
| Address: | 1805 LOUBECK ST WA 99362 | Mapsco: | |
| Neighborhood: | A Inferior Res | Map ID: | |
| Neighborhood CD: | 413111 |
Owner |
| Name: | AVILA JOSE E SALDANA | Owner ID: | 70887 |
| Mailing Address: | 1805 LOUBECK ST WALLA WALLA, WA 99362 | % Ownership: | 100.0000000000% |
| | | Exemptions: | |
Taxes and Assessment Details
Property Tax Information as of
04/19/2026
Click on "Statement Details" to expand or collapse a tax statement.
* Please enter a valid date ** Please enter a valid date *
Statement Details |
| | TOTAL: | $0.00 | $0.00 | $0.00 | $0.00 | $0.00 | $0.00 |
|
| | $0.00 | $0.00 | $0.00 | $0.00 | $0.00 | $0.00 |
Values
| (+) Improvement Homesite Value: | + | $0 | |
| (+) Improvement Non-Homesite Value: | + | $220,750 | |
| (+) Land Homesite Value: | + | $0 | |
| (+) Land Non-Homesite Value: | + | $64,160 | |
| (+) Curr Use (HS): | + | $0 | $0 |
| (+) Curr Use (NHS): | + | $0 | $0 |
| | | -------------------------- | |
| (=) Market Value: | = | $284,910 | |
| (–) Productivity Loss: | – | $0 | |
| | | -------------------------- | |
| (=) Subtotal: | = | $284,910 | |
| (+) Senior Appraised Value: | + | $0 | |
| (+) Non-Senior Appraised Value: | + | $284,910 | |
| | | -------------------------- | |
| (=) Total Appraised Value: | = | $284,910 | |
| (–) Senior Exemption Loss: | – | $0 | |
| (–) Exemption Loss: | – | $0 | |
| | | -------------------------- | |
| (=) Taxable Value: | = | $284,910 | |
Taxing Jurisdiction
| Owner: | AVILA JOSE E SALDANA | | |
| % Ownership: | 100.0000000000% | | |
| Total Value: | $284,910 | | |
| Tax Area: | 1 - OL-140-F |
| CERFD | CURRENT EXPENSE REFUND 010 | 0.0000000000 | $284,910 | $284,910 | $0.00 | | |
| CURREXP | CURRENT EXPENSE 010 | 1.0175366760 | $284,910 | $284,910 | $289.91 | | |
| HUMNSERV | HUMAN SERVICES 119 | 0.0250000000 | $284,910 | $284,910 | $7.12 | | |
| SLDREL | SOLDIERS RELIEF 121 | 0.0155990005 | $284,910 | $284,910 | $4.44 | | |
| EMERGSER | EMS 147 | 0.3792580840 | $284,910 | $284,910 | $108.05 | | |
| EMSRFD | EMS REFUND 147 | 0.0000000000 | $284,910 | $284,910 | $0.00 | | |
| PORTRFD | PORT REFUND 640 | 0.0000000000 | $284,910 | $284,910 | $0.00 | | |
| PORTWWGEN | PORT OF WW 640 | 0.2460186015 | $284,910 | $284,910 | $70.09 | | |
| SD140BOND | SD #140 BOND 764 | 0.8342371393 | $284,910 | $284,910 | $237.68 | | |
| SD140GEN | SD #140 GENERAL 760 | 2.0646500647 | $284,910 | $284,910 | $588.24 | | |
| ST2 | STATE SCHOOL PART 2 600 | 0.8131451643 | $284,910 | $284,910 | $231.67 | | |
| STATESCHL | STATE SCHOOL 600 | 1.5158548041 | $284,910 | $284,910 | $431.88 | | |
| STREFUND | STATE REFUND LEVY 603 | 0.0000000000 | $284,910 | $284,910 | $0.00 | | |
| CWWBOND | C OF WW BOND 643 | 0.2760494372 | $284,910 | $284,910 | $78.65 | | |
| CWWGEN | CITY OF WW 631 | 1.6100204973 | $284,910 | $284,910 | $458.71 | | |
| CWWRFD | CITY OF WALLA WALLA REFUND 631 | 0.0000000000 | $284,910 | $284,910 | $0.00 | | |
| | Total Tax Rate: | 8.7973694689 | | | | | |
| | | | | Taxes w/Current Exemptions: | $2,506.44 | | |
| | | | | Taxes w/o Exemptions: | $2,506.44 | | |
Improvement / Building
| Improvement #1: | RESIDENTIAL | State Code: | 11 | 1243.0 sqft | Value: | $220,750 |
| Exterior Wall: | VINYL | Heating/Cooling: | WARM & COOLED AIR | | Number of Bathrooms: | 2 | Number of Bedrooms: | 2 | | Plumbing: | 12 | Roof Covering: | COMP SHINGLE |
|
| | Type | Description | Class CD | Sub Class CD | Year Built | Area |
| | MA | Main Area | 1 | 30 | 1947 | 1243.0 |
| | CPC | COVERED CARPORT/PATIO | 1 | 30 | 0 | 81.0 |
| | CPC | COVERED CARPORT/PATIO | 1 | 30 | 0 | 360.0 |
| | SI1 | SITE IMPROVEMENT | 1 | 30 | 0 | 2.5 |
| | POL2 | POLE BUILDING-CONCRETE | * | 30 | 2013 | 576.0 |
| | BASE | BASEMENT | 1 | 30 | 1947 | 864.0 |
| | BPF | BASEMENT -PARTITIONED FINISH | 1 | 30 | 1947 | 864.0 |
| | DTG | Detached Garage | 1 | 30 | 1947 | 784.0 |
| | RPS | PORCH W/STEPS,ROOF | 1 | 30 | 1947 | 24.0 |
| | RPS | PORCH W/STEPS,ROOF | 1 | 30 | 1947 | 55.0 |
| | BNV | BUILDING NO VALUE | 1 | 30 | 1947 | 96.0 |
| | S1F | Single One Story Fireplace | 1 | 30 | 1947 | 1.0 |
Sketch
Property Image
Land
| 1 | RES 1 | Converted: Residential | 0.1841 | 8020.00 | 0.00 | 0.00 | 1.00 | $64,160 | $0 |
Roll Value History
| 2026 | N/A | N/A | N/A | N/A | N/A |
| 2025 | $278,150 | $64,160 | $0 | $342,310 | $342,310 |
| 2024 | $231,790 | $64,160 | $0 | $295,950 | $295,950 |
| 2023 | $220,750 | $64,160 | $0 | $284,910 | $284,910 |
| 2022 | $241,090 | $42,110 | $0 | $283,200 | $283,200 |
| 2021 | $267,870 | $42,110 | $0 | $309,980 | $309,980 |
| 2020 | $178,580 | $42,110 | $0 | $220,690 | $220,690 |
| 2019 | $178,580 | $42,110 | $0 | $220,690 | $220,690 |
| 2018 | $170,080 | $42,110 | $0 | $212,190 | $212,190 |
| 2017 | $147,890 | $42,110 | $0 | $190,000 | $190,000 |
| 2016 | $144,500 | $45,400 | $0 | $189,900 | $189,900 |
| 2015 | $144,500 | $45,400 | $0 | $189,900 | $189,900 |
| 2014 | $144,500 | $45,400 | $0 | $189,900 | $189,900 |
| 2013 | $139,000 | $45,400 | $0 | $184,400 | $184,400 |
| 2012 | $139,000 | $45,400 | $0 | $0 | $0 |
| 2011 | $112,500 | $45,400 | $0 | $0 | $0 |
| 2010 | $112,500 | $45,400 | $0 | $0 | $0 |
| 2009 | $130,000 | $45,400 | $0 | $0 | $0 |
| 2008 | $130,000 | $45,400 | $0 | $0 | $0 |
| 2007 | $95,200 | $22,900 | $0 | $0 | $0 |
Deed and Sales History
| 1 | 08/06/2024 | SWD | STATUTORY WARRANTY DEED | AVILA JOSE E SALDANA | GARCIA JAVIER SAUCEDO | | | $357,000.00 | 147989 | 2024-04315 |
| 2 | 12/27/2021 | SWD | STATUTORY WARRANTY DEED | HEIN TROY E & REBECCA A | AVILA JOSE E SALDANA | | | $285,000.00 | 143126 | 2021-15034 |
| 3 | 06/18/2013 | WARRANTY D | WARRANTY DEED | GILMORE, HUBERT E & KATHLEEN | HEIN, TROY E & REBECCA A | | | $179,000.00 | 124137 | 2013-06099 |
| 4 | 08/07/1998 | WARRANTY D | WARRANTY DEED | | | | | $115,500.00 | 91009 | 2719-809005 |
Payout Agreement
| No payout information available.. |