Property
Account |
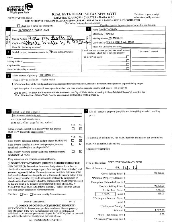
| Property ID: | 9306 | Abbreviated Legal Description: | EAST WALLA WALLA LOTS 36 & 37 BLK 3 |
| Parcel Number: | 360727530336 | Agent Code: | |
| Type: | Real | | |
| Tax Area: | 105 - 140-F-4 | Land Use Code | 11 |
| Open Space: | N | DFL | N |
| Historic Property: | N | Remodel Property: | N |
| Multi-Family Redevelopment: | N | | |
| Township: | 7 | Section: | 27 |
| Range: | 36 |
Location |
| Address: | 1921 CARL ST WA 99362 | Mapsco: | |
| Neighborhood: | A Inferior Res | Map ID: | |
| Neighborhood CD: | 413111 |
Owner |
| Name: | SCHACK PATRICK | Owner ID: | 56586 |
| Mailing Address: | 1921 CARL ST WALLA WALLA, WA 99362 | % Ownership: | 100.0000000000% |
| | | Exemptions: | |
Taxes and Assessment Details
Property Tax Information as of
02/21/2026
Click on "Statement Details" to expand or collapse a tax statement.
* Please enter a valid date ** Please enter a valid date *
Statement Details |
| | TOTAL: | $0.00 | $0.00 | $0.00 | $0.00 | $0.00 | $0.00 |
|
| | $0.00 | $0.00 | $0.00 | $0.00 | $0.00 | $0.00 |
Values
| (+) Improvement Homesite Value: | + | $0 | |
| (+) Improvement Non-Homesite Value: | + | $210,480 | |
| (+) Land Homesite Value: | + | $0 | |
| (+) Land Non-Homesite Value: | + | $83,730 | |
| (+) Curr Use (HS): | + | $0 | $0 |
| (+) Curr Use (NHS): | + | $0 | $0 |
| | | -------------------------- | |
| (=) Market Value: | = | $294,210 | |
| (–) Productivity Loss: | – | $0 | |
| | | -------------------------- | |
| (=) Subtotal: | = | $294,210 | |
| (+) Senior Appraised Value: | + | $0 | |
| (+) Non-Senior Appraised Value: | + | $294,210 | |
| | | -------------------------- | |
| (=) Total Appraised Value: | = | $294,210 | |
| (–) Senior Exemption Loss: | – | $0 | |
| (–) Exemption Loss: | – | $0 | |
| | | -------------------------- | |
| (=) Taxable Value: | = | $294,210 | |
Taxing Jurisdiction
| Owner: | SCHACK PATRICK | | |
| % Ownership: | 100.0000000000% | | |
| Total Value: | $294,210 | | |
| Tax Area: | 105 - 140-F-4 |
| CERFD | CURRENT EXPENSE REFUND 010 | 0.0000000000 | $294,210 | $294,210 | $0.00 | | |
| CURREXP | CURRENT EXPENSE 010 | 1.0175366760 | $294,210 | $294,210 | $299.37 | | |
| HUMNSERV | HUMAN SERVICES 119 | 0.0250000000 | $294,210 | $294,210 | $7.36 | | |
| SLDREL | SOLDIERS RELIEF 121 | 0.0155990005 | $294,210 | $294,210 | $4.59 | | |
| EMERGSER | EMS 147 | 0.3792580840 | $294,210 | $294,210 | $111.58 | | |
| EMSRFD | EMS REFUND 147 | 0.0000000000 | $294,210 | $294,210 | $0.00 | | |
| FD4EXP | FD #4 EXPENSE 686 | 0.8836993059 | $294,210 | $294,210 | $259.99 | | |
| RLBRFD | RURAL LIBRARY REFUND 623 | 0.0000000000 | $294,210 | $294,210 | $0.00 | | |
| RURALLIB | RURAL LIBRARY 623 | 0.3710609029 | $294,210 | $294,210 | $109.17 | | |
| PORTRFD | PORT REFUND 640 | 0.0000000000 | $294,210 | $294,210 | $0.00 | | |
| PORTWWGEN | PORT OF WW 640 | 0.2460186015 | $294,210 | $294,210 | $72.38 | | |
| SD140BOND | SD #140 BOND 764 | 0.8342371393 | $294,210 | $294,210 | $245.44 | | |
| SD140GEN | SD #140 GENERAL 760 | 2.0646500647 | $294,210 | $294,210 | $607.44 | | |
| ST2 | STATE SCHOOL PART 2 600 | 0.8131451643 | $294,210 | $294,210 | $239.24 | | |
| STATESCHL | STATE SCHOOL 600 | 1.5158548041 | $294,210 | $294,210 | $445.98 | | |
| STREFUND | STATE REFUND LEVY 603 | 0.0000000000 | $294,210 | $294,210 | $0.00 | | |
| COROAD | COUNTY ROAD 115 | 1.6549953990 | $294,210 | $294,210 | $486.92 | | |
| CRPRD | COUNTY ROAD REFUND 115 | 0.0000000000 | $294,210 | $294,210 | $0.00 | | |
| | Total Tax Rate: | 9.8210551422 | | | | | |
| | | | | Taxes w/Current Exemptions: | $2,889.46 | | |
| | | | | Taxes w/o Exemptions: | $2,889.46 | | |
Improvement / Building
| Improvement #1: | RESIDENTIAL | State Code: | 11 | 1178.0 sqft | Value: | $210,480 |
| Exterior Wall: | SIDING | Foundation: | SLAB FOUNDATION | | Heating/Cooling: | FLOOR FURNACE | Number of Bathrooms: | 1 | | Number of Bedrooms: | 2 | Plumbing: | 7 | | Roof Covering: | COMP SHINGLE |   |   |
|
| | Type | Description | Class CD | Sub Class CD | Year Built | Area |
| | MA | Main Area | 1 | 30 | 1942 | 1178.0 |
| | CPC | COVERED CARPORT/PATIO | 1 | 30 | 0 | 182.0 |
| | SI1 | SITE IMPROVEMENT | 1 | 30 | 0 | 2.5 |
| | DTG | Detached Garage | 1 | 30 | 1942 | 838.0 |
| | POL2 | POLE BUILDING-CONCRETE | 1 | 30 | 1942 | 828.0 |
Sketch
Property Image
Land
| 1 | RES 1 | Converted: Residential | 0.3711 | 16164.00 | 0.00 | 0.00 | 1.00 | $83,730 | $0 |
Roll Value History
| 2026 | N/A | N/A | N/A | N/A | N/A |
| 2025 | $232,050 | $83,730 | $0 | $315,780 | $315,780 |
| 2024 | $221,000 | $83,730 | $0 | $304,730 | $304,730 |
| 2023 | $210,480 | $83,730 | $0 | $294,210 | $294,210 |
| 2022 | $228,710 | $57,380 | $0 | $286,090 | $286,090 |
| 2021 | $169,420 | $57,380 | $0 | $226,800 | $226,800 |
| 2020 | $130,320 | $57,380 | $0 | $187,700 | $187,700 |
| 2019 | $130,320 | $57,380 | $0 | $187,700 | $187,700 |
| 2018 | $130,320 | $57,380 | $0 | $187,700 | $187,700 |
| 2017 | $130,320 | $57,380 | $0 | $187,700 | $187,700 |
| 2016 | $103,680 | $52,400 | $0 | $156,080 | $156,080 |
| 2015 | $94,250 | $52,400 | $0 | $146,650 | $146,650 |
| 2014 | $72,500 | $52,400 | $0 | $124,900 | $124,900 |
| 2013 | $72,500 | $52,400 | $0 | $124,900 | $124,900 |
| 2012 | $72,500 | $52,400 | $0 | $0 | $0 |
| 2011 | $78,500 | $52,400 | $0 | $0 | $0 |
| 2010 | $78,500 | $52,400 | $0 | $0 | $0 |
| 2009 | $93,000 | $52,400 | $0 | $0 | $0 |
| 2008 | $93,000 | $52,400 | $0 | $0 | $0 |
| 2007 | $58,000 | $29,900 | $0 | $0 | $0 |
Deed and Sales History
| 1 | 04/30/2015 | SWD | STATUTORY WARRANTY DEED | THONNEY DAVID & LUCIANA | SCHACK PATRICK | | | $165,000.00 | 127874 | 2015-03602 |
| 2 | 05/16/2014 | SWD | STATUTORY WARRANTY DEED | EWING FLORENCE | THONNEY DAVID & LUCIANA | | | $90,000.00 | 125898 | 2014-03332 |
| 3 | 01/01/1947 | WARRANTY D | WARRANTY DEED | | | | | $0.00 | 0 | 2310-302708 |
Payout Agreement
| No payout information available.. |