Property
Account |
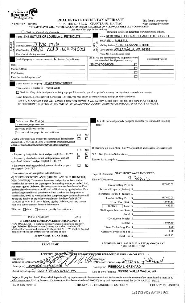
| Property ID: | 9295 | Abbreviated Legal Description: | EAST WALLA WALLA LOT 8 BLK 3 |
| Parcel Number: | 360727530308 | Agent Code: | |
| Type: | Real | | |
| Tax Area: | 1 - OL-140-F | Land Use Code | 11 |
| Open Space: | N | DFL | N |
| Historic Property: | N | Remodel Property: | N |
| Multi-Family Redevelopment: | N | | |
| Township: | 7 | Section: | 27 |
| Range: | 36 |
Location |
| Address: | 1916 PLEASANT ST WA 99362 | Mapsco: | |
| Neighborhood: | A Inferior Res | Map ID: | |
| Neighborhood CD: | 413111 |
Owner |
| Name: | GRENARD REBECCA L | Owner ID: | 71576 |
| Mailing Address: | 1916 PLEASANT ST WALLA WALLA, WA 99362 | % Ownership: | 100.0000000000% |
| | | Exemptions: | |
Taxes and Assessment Details
Property Tax Information as of
02/21/2026
Click on "Statement Details" to expand or collapse a tax statement.
* Please enter a valid date ** Please enter a valid date *
Statement Details |
| | TOTAL: | $0.00 | $0.00 | $0.00 | $0.00 | $0.00 | $0.00 |
|
| | $0.00 | $0.00 | $0.00 | $0.00 | $0.00 | $0.00 |
Values
| (+) Improvement Homesite Value: | + | $0 | |
| (+) Improvement Non-Homesite Value: | + | $253,200 | |
| (+) Land Homesite Value: | + | $0 | |
| (+) Land Non-Homesite Value: | + | $64,660 | |
| (+) Curr Use (HS): | + | $0 | $0 |
| (+) Curr Use (NHS): | + | $0 | $0 |
| | | -------------------------- | |
| (=) Market Value: | = | $317,860 | |
| (–) Productivity Loss: | – | $0 | |
| | | -------------------------- | |
| (=) Subtotal: | = | $317,860 | |
| (+) Senior Appraised Value: | + | $0 | |
| (+) Non-Senior Appraised Value: | + | $317,860 | |
| | | -------------------------- | |
| (=) Total Appraised Value: | = | $317,860 | |
| (–) Senior Exemption Loss: | – | $0 | |
| (–) Exemption Loss: | – | $0 | |
| | | -------------------------- | |
| (=) Taxable Value: | = | $317,860 | |
Taxing Jurisdiction
| Owner: | GRENARD REBECCA L | | |
| % Ownership: | 100.0000000000% | | |
| Total Value: | $317,860 | | |
| Tax Area: | 1 - OL-140-F |
| CERFD | CURRENT EXPENSE REFUND 010 | 0.0000000000 | $317,860 | $317,860 | $0.00 | | |
| CURREXP | CURRENT EXPENSE 010 | 1.0175366760 | $317,860 | $317,860 | $323.43 | | |
| HUMNSERV | HUMAN SERVICES 119 | 0.0250000000 | $317,860 | $317,860 | $7.95 | | |
| SLDREL | SOLDIERS RELIEF 121 | 0.0155990005 | $317,860 | $317,860 | $4.96 | | |
| EMERGSER | EMS 147 | 0.3792580840 | $317,860 | $317,860 | $120.55 | | |
| EMSRFD | EMS REFUND 147 | 0.0000000000 | $317,860 | $317,860 | $0.00 | | |
| PORTRFD | PORT REFUND 640 | 0.0000000000 | $317,860 | $317,860 | $0.00 | | |
| PORTWWGEN | PORT OF WW 640 | 0.2460186015 | $317,860 | $317,860 | $78.20 | | |
| SD140BOND | SD #140 BOND 764 | 0.8342371393 | $317,860 | $317,860 | $265.17 | | |
| SD140GEN | SD #140 GENERAL 760 | 2.0646500647 | $317,860 | $317,860 | $656.27 | | |
| ST2 | STATE SCHOOL PART 2 600 | 0.8131451643 | $317,860 | $317,860 | $258.47 | | |
| STATESCHL | STATE SCHOOL 600 | 1.5158548041 | $317,860 | $317,860 | $481.83 | | |
| STREFUND | STATE REFUND LEVY 603 | 0.0000000000 | $317,860 | $317,860 | $0.00 | | |
| CWWBOND | C OF WW BOND 643 | 0.2760494372 | $317,860 | $317,860 | $87.75 | | |
| CWWGEN | CITY OF WW 631 | 1.6100204973 | $317,860 | $317,860 | $511.76 | | |
| CWWRFD | CITY OF WALLA WALLA REFUND 631 | 0.0000000000 | $317,860 | $317,860 | $0.00 | | |
| | Total Tax Rate: | 8.7973694689 | | | | | |
| | | | | Taxes w/Current Exemptions: | $2,796.34 | | |
| | | | | Taxes w/o Exemptions: | $2,796.34 | | |
Improvement / Building
| Improvement #1: | RESIDENTIAL | State Code: | 11 | 1316.0 sqft | Value: | $253,200 |
| Exterior Wall: | PLYWOOD | Heating/Cooling: | WARM & COOLED AIR | | Number of Bathrooms: | 2 | Number of Bedrooms: | 3 | | Plumbing: | 9 | Roof Covering: | COMP SHINGLE |
|
| | Type | Description | Class CD | Sub Class CD | Year Built | Area |
| | MA | Main Area | 1 | 30 | 1967 | 1316.0 |
| | SI1 | SITE IMPROVEMENT | 1 | 30 | 0 | 3.0 |
| | ATG | Attached Garage | 1 | 30 | 1948 | 420.0 |
| | RPC | OPEN PORCH W/ROOF , CEILED | 1 | 30 | 1948 | 30.0 |
| | S1F | Single One Story Fireplace | 1 | 30 | 1948 | 1.0 |
Sketch
Property Image
Land
| 1 | RES 1 | Converted: Residential | 0.1855 | 8082.00 | 0.00 | 0.00 | 1.00 | $64,660 | $0 |
Roll Value History
| 2026 | N/A | N/A | N/A | N/A | N/A |
| 2025 | $279,150 | $64,660 | $0 | $343,810 | $343,810 |
| 2024 | $265,860 | $64,660 | $0 | $330,520 | $330,520 |
| 2023 | $253,200 | $64,660 | $0 | $317,860 | $317,860 |
| 2022 | $256,650 | $42,430 | $0 | $299,080 | $299,080 |
| 2021 | $205,320 | $42,430 | $0 | $247,750 | $247,750 |
| 2020 | $157,940 | $42,430 | $0 | $200,370 | $200,370 |
| 2019 | $157,940 | $42,430 | $0 | $200,370 | $200,370 |
| 2018 | $150,420 | $42,430 | $0 | $192,850 | $192,850 |
| 2017 | $143,260 | $42,430 | $0 | $185,690 | $185,690 |
| 2016 | $98,370 | $45,500 | $0 | $143,870 | $143,870 |
| 2015 | $89,430 | $45,500 | $0 | $134,930 | $134,930 |
| 2014 | $81,300 | $45,500 | $0 | $126,800 | $126,800 |
| 2013 | $81,300 | $45,500 | $0 | $126,800 | $126,800 |
| 2012 | $81,300 | $45,500 | $0 | $0 | $0 |
| 2011 | $94,700 | $45,500 | $0 | $0 | $0 |
| 2010 | $94,700 | $45,500 | $0 | $0 | $0 |
| 2009 | $110,300 | $45,500 | $0 | $0 | $0 |
| 2008 | $110,300 | $45,500 | $0 | $0 | $0 |
| 2007 | $83,200 | $23,000 | $0 | $0 | $0 |
Deed and Sales History
| 1 | 03/24/2022 | QCD | QUIT CLAIM DEED | GRENARD REBECCA L | GRENARD REBECCA L | | | $0.00 | 143836 | 2022-03560 |
| 2 | | DEATH CERT | DEATH CERTIFICATE | GRENARD REBECCA L | | | | | 0 | SEE IMAGES |
| 3 | 09/30/2016 | SWD | STATUTORY WARRANTY DEED | REYNOLDS LOUELLA L ESTATE OF | GRENARD REBECCA L | | | $197,000.00 | 131173 | 2016-08086 |
| 4 | 10/01/1967 | WARRANTY D | WARRANTY DEED | | | | | $21,500.00 | 0 | 3240-489328 |
Payout Agreement
| No payout information available.. |