Property
Account |
| Property ID: | 9267 | Abbreviated Legal Description: | BOYD HOMES TAX 2 LOT 3 |
| Parcel Number: | 360727510003 | Agent Code: | |
| Type: | Real | | |
| Tax Area: | 105 - 140-F-4 | Land Use Code | 11 |
| Open Space: | N | DFL | N |
| Historic Property: | N | Remodel Property: | N |
| Multi-Family Redevelopment: | N | | |
| Township: | 7 | Section: | 27 |
| Range: | 36 |
Location |
| Address: | 1138 ANKENY ST WA 99362 | Mapsco: | |
| Neighborhood: | A Res | Map ID: | |
| Neighborhood CD: | 613011 |
Owner |
| Name: | KAYLOR DEVIN S | Owner ID: | 69588 |
| Mailing Address: | 1138 ANKENY ST WALLA WALLA, WA 99362 | % Ownership: | 100.0000000000% |
| | | Exemptions: | |
Taxes and Assessment Details
Property Tax Information as of
02/21/2026
Click on "Statement Details" to expand or collapse a tax statement.
* Please enter a valid date ** Please enter a valid date *
Statement Details |
| | TOTAL: | $0.00 | $0.00 | $0.00 | $0.00 | $0.00 | $0.00 |
|
| | $0.00 | $0.00 | $0.00 | $0.00 | $0.00 | $0.00 |
Values
| (+) Improvement Homesite Value: | + | $0 | |
| (+) Improvement Non-Homesite Value: | + | $289,480 | |
| (+) Land Homesite Value: | + | $0 | |
| (+) Land Non-Homesite Value: | + | $84,370 | |
| (+) Curr Use (HS): | + | $0 | $0 |
| (+) Curr Use (NHS): | + | $0 | $0 |
| | | -------------------------- | |
| (=) Market Value: | = | $373,850 | |
| (–) Productivity Loss: | – | $0 | |
| | | -------------------------- | |
| (=) Subtotal: | = | $373,850 | |
| (+) Senior Appraised Value: | + | $0 | |
| (+) Non-Senior Appraised Value: | + | $373,850 | |
| | | -------------------------- | |
| (=) Total Appraised Value: | = | $373,850 | |
| (–) Senior Exemption Loss: | – | $0 | |
| (–) Exemption Loss: | – | $0 | |
| | | -------------------------- | |
| (=) Taxable Value: | = | $373,850 | |
Taxing Jurisdiction
| Owner: | KAYLOR DEVIN S | | |
| % Ownership: | 100.0000000000% | | |
| Total Value: | $373,850 | | |
| Tax Area: | 105 - 140-F-4 |
| CERFD | CURRENT EXPENSE REFUND 010 | 0.0000000000 | $373,850 | $373,850 | $0.00 | | |
| CURREXP | CURRENT EXPENSE 010 | 1.0175366760 | $373,850 | $373,850 | $380.41 | | |
| HUMNSERV | HUMAN SERVICES 119 | 0.0250000000 | $373,850 | $373,850 | $9.35 | | |
| SLDREL | SOLDIERS RELIEF 121 | 0.0155990005 | $373,850 | $373,850 | $5.83 | | |
| EMERGSER | EMS 147 | 0.3792580840 | $373,850 | $373,850 | $141.79 | | |
| EMSRFD | EMS REFUND 147 | 0.0000000000 | $373,850 | $373,850 | $0.00 | | |
| FD4EXP | FD #4 EXPENSE 686 | 0.8836993059 | $373,850 | $373,850 | $330.37 | | |
| RLBRFD | RURAL LIBRARY REFUND 623 | 0.0000000000 | $373,850 | $373,850 | $0.00 | | |
| RURALLIB | RURAL LIBRARY 623 | 0.3710609029 | $373,850 | $373,850 | $138.72 | | |
| PORTRFD | PORT REFUND 640 | 0.0000000000 | $373,850 | $373,850 | $0.00 | | |
| PORTWWGEN | PORT OF WW 640 | 0.2460186015 | $373,850 | $373,850 | $91.97 | | |
| SD140BOND | SD #140 BOND 764 | 0.8342371393 | $373,850 | $373,850 | $311.88 | | |
| SD140GEN | SD #140 GENERAL 760 | 2.0646500647 | $373,850 | $373,850 | $771.87 | | |
| ST2 | STATE SCHOOL PART 2 600 | 0.8131451643 | $373,850 | $373,850 | $303.99 | | |
| STATESCHL | STATE SCHOOL 600 | 1.5158548041 | $373,850 | $373,850 | $566.70 | | |
| STREFUND | STATE REFUND LEVY 603 | 0.0000000000 | $373,850 | $373,850 | $0.00 | | |
| COROAD | COUNTY ROAD 115 | 1.6549953990 | $373,850 | $373,850 | $618.72 | | |
| CRPRD | COUNTY ROAD REFUND 115 | 0.0000000000 | $373,850 | $373,850 | $0.00 | | |
| | Total Tax Rate: | 9.8210551422 | | | | | |
| | | | | Taxes w/Current Exemptions: | $3,671.60 | | |
| | | | | Taxes w/o Exemptions: | $3,671.60 | | |
Improvement / Building
| Improvement #1: | RESIDENTIAL | State Code: | 11 | 1272.0 sqft | Value: | $289,480 |
| Exterior Wall: | SIDING | Heating/Cooling: | WARM & COOLED AIR | | Number of Bathrooms: | 2 | Number of Bedrooms: | 3 | | Plumbing: | 8 | Roof Covering: | COMP ROLL |
|
| | Type | Description | Class CD | Sub Class CD | Year Built | Area |
| | MA | Main Area | 1 | 30 | 1959 | 1272.0 |
| | SI1 | SITE IMPROVEMENT | 1 | 30 | 1959 | 1.5 |
| | BASE | BASEMENT | 1 | 30 | 1959 | 1272.0 |
| | BRF | BASEMENT - REC FINISH | 1 | 30 | 1959 | 1272.0 |
| | D2F | Double 2 Story Fireplace | 1 | 30 | 1959 | 1.0 |
| | RPO | OPEN PORCH W/ROOF | 1 | 30 | 1959 | 16.0 |
| | CPC | COVERED CARPORT/PATIO | 1 | 30 | 1959 | 90.0 |
| | ATG | Attached Garage | 1 | 30 | 2006 | 474.0 |
Sketch
Property Image
Land
| 1 | RES 1 | Converted: Residential | 0.2152 | 9374.11 | 0.00 | 0.00 | 1.00 | $84,370 | $0 |
Roll Value History
| 2026 | N/A | N/A | N/A | N/A | N/A |
| 2025 | $280,300 | $103,120 | $0 | $383,420 | $383,420 |
| 2024 | $289,480 | $84,370 | $0 | $373,850 | $373,850 |
| 2023 | $289,480 | $84,370 | $0 | $373,850 | $373,850 |
| 2022 | $289,480 | $67,970 | $0 | $357,450 | $357,450 |
| 2021 | $192,980 | $67,970 | $0 | $260,950 | $260,950 |
| 2020 | $160,820 | $67,970 | $0 | $228,790 | $228,790 |
| 2019 | $160,820 | $67,970 | $0 | $228,790 | $228,790 |
| 2018 | $144,000 | $46,600 | $0 | $190,600 | $190,600 |
| 2017 | $120,000 | $46,600 | $0 | $166,600 | $166,600 |
| 2016 | $120,000 | $46,600 | $0 | $166,600 | $166,600 |
| 2015 | $120,000 | $46,600 | $0 | $166,600 | $166,600 |
| 2014 | $120,000 | $46,600 | $0 | $166,600 | $166,600 |
| 2013 | $120,000 | $46,600 | $0 | $166,600 | $166,600 |
| 2012 | $122,600 | $46,600 | $0 | $0 | $0 |
| 2011 | $122,600 | $46,600 | $0 | $0 | $0 |
| 2010 | $114,500 | $46,600 | $0 | $0 | $0 |
| 2009 | $132,400 | $46,600 | $0 | $0 | $0 |
| 2008 | $132,400 | $46,600 | $0 | $0 | $0 |
| 2007 | $98,400 | $24,100 | $0 | $0 | $0 |
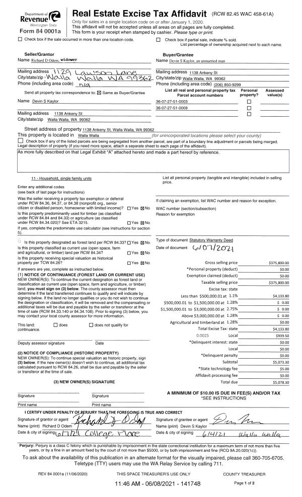
Deed and Sales History
| 1 | 06/08/2021 | SWD | STATUTORY WARRANTY DEED | ODEM RICHARD D & MARY J | KAYLOR DEVIN S | | 2-PARCELS | $375,800.00 | 141748 | 2021-06946 |
|   | |
| 2 | 05/31/2001 | WARRANTY D | WARRANTY DEED | | | | | $123,500.00 | 97271 | 3140-105025 |
Payout Agreement
| No payout information available.. |