Property
Account |
| Property ID: | 9259 | Abbreviated Legal Description: | PARKSIDE LOT 20 BLK 4 |
| Parcel Number: | 360727500420 | Agent Code: | |
| Type: | Real | | |
| Tax Area: | 1 - OL-140-F | Land Use Code | 11 |
| Open Space: | N | DFL | N |
| Historic Property: | N | Remodel Property: | N |
| Multi-Family Redevelopment: | N | | |
| Township: | 7 | Section: | 27 |
| Range: | 36 |
Location |
| Address: | 517 S WILBUR AVE WA 99362 | Mapsco: | |
| Neighborhood: | A Res | Map ID: | |
| Neighborhood CD: | 613011 |
Owner |
| Name: | LONG ISAAC G & MADISON C | Owner ID: | 64387 |
| Mailing Address: | 517 S WILBUR AVE WALLA WALLA, WA 99362 | % Ownership: | 100.0000000000% |
| | | Exemptions: | |
Taxes and Assessment Details
Property Tax Information as of
02/21/2026
Click on "Statement Details" to expand or collapse a tax statement.
* Please enter a valid date ** Please enter a valid date *
Statement Details |
| | TOTAL: | $0.00 | $0.00 | $0.00 | $0.00 | $0.00 | $0.00 |
|
| | $0.00 | $0.00 | $0.00 | $0.00 | $0.00 | $0.00 |
Values
| (+) Improvement Homesite Value: | + | $0 | |
| (+) Improvement Non-Homesite Value: | + | $262,630 | |
| (+) Land Homesite Value: | + | $0 | |
| (+) Land Non-Homesite Value: | + | $56,890 | |
| (+) Curr Use (HS): | + | $0 | $0 |
| (+) Curr Use (NHS): | + | $0 | $0 |
| | | -------------------------- | |
| (=) Market Value: | = | $319,520 | |
| (–) Productivity Loss: | – | $0 | |
| | | -------------------------- | |
| (=) Subtotal: | = | $319,520 | |
| (+) Senior Appraised Value: | + | $0 | |
| (+) Non-Senior Appraised Value: | + | $319,520 | |
| | | -------------------------- | |
| (=) Total Appraised Value: | = | $319,520 | |
| (–) Senior Exemption Loss: | – | $0 | |
| (–) Exemption Loss: | – | $0 | |
| | | -------------------------- | |
| (=) Taxable Value: | = | $319,520 | |
Taxing Jurisdiction
| Owner: | LONG ISAAC G & MADISON C | | |
| % Ownership: | 100.0000000000% | | |
| Total Value: | $319,520 | | |
| Tax Area: | 1 - OL-140-F |
| CERFD | CURRENT EXPENSE REFUND 010 | 0.0000000000 | $319,520 | $319,520 | $0.00 | | |
| CURREXP | CURRENT EXPENSE 010 | 1.0175366760 | $319,520 | $319,520 | $325.12 | | |
| HUMNSERV | HUMAN SERVICES 119 | 0.0250000000 | $319,520 | $319,520 | $7.99 | | |
| SLDREL | SOLDIERS RELIEF 121 | 0.0155990005 | $319,520 | $319,520 | $4.98 | | |
| EMERGSER | EMS 147 | 0.3792580840 | $319,520 | $319,520 | $121.18 | | |
| EMSRFD | EMS REFUND 147 | 0.0000000000 | $319,520 | $319,520 | $0.00 | | |
| PORTRFD | PORT REFUND 640 | 0.0000000000 | $319,520 | $319,520 | $0.00 | | |
| PORTWWGEN | PORT OF WW 640 | 0.2460186015 | $319,520 | $319,520 | $78.61 | | |
| SD140BOND | SD #140 BOND 764 | 0.8342371393 | $319,520 | $319,520 | $266.56 | | |
| SD140GEN | SD #140 GENERAL 760 | 2.0646500647 | $319,520 | $319,520 | $659.70 | | |
| ST2 | STATE SCHOOL PART 2 600 | 0.8131451643 | $319,520 | $319,520 | $259.82 | | |
| STATESCHL | STATE SCHOOL 600 | 1.5158548041 | $319,520 | $319,520 | $484.35 | | |
| STREFUND | STATE REFUND LEVY 603 | 0.0000000000 | $319,520 | $319,520 | $0.00 | | |
| CWWBOND | C OF WW BOND 643 | 0.2760494372 | $319,520 | $319,520 | $88.20 | | |
| CWWGEN | CITY OF WW 631 | 1.6100204973 | $319,520 | $319,520 | $514.43 | | |
| CWWRFD | CITY OF WALLA WALLA REFUND 631 | 0.0000000000 | $319,520 | $319,520 | $0.00 | | |
| | Total Tax Rate: | 8.7973694689 | | | | | |
| | | | | Taxes w/Current Exemptions: | $2,810.94 | | |
| | | | | Taxes w/o Exemptions: | $2,810.94 | | |
Improvement / Building
| Improvement #1: | RESIDENTIAL | State Code: | 11 | 1330.0 sqft | Value: | $262,630 |
| Exterior Wall: | SIDING | Heating/Cooling: | WARM & COOLED AIR | | Number of Bathrooms: | 1 | Number of Bedrooms: | 2 | | Plumbing: | 6 | Roof Covering: | COMP SHINGLE |
|
| | Type | Description | Class CD | Sub Class CD | Year Built | Area |
| | MA | Main Area | 1 | 30 | 1951 | 1330.0 |
| | BASE | BASEMENT | 1 | 30 | 1951 | 999.0 |
| | BPF | BASEMENT -PARTITIONED FINISH | 1 | 30 | 1951 | 250.0 |
| | RPS | PORCH W/STEPS,ROOF | 1 | 30 | 1951 | 16.0 |
| | CPC | COVERED CARPORT/PATIO | 1 | 30 | 1951 | 275.0 |
| | DTG | Detached Garage | 1 | 30 | 1951 | 352.0 |
| | SI1 | SITE IMPROVEMENT | 1 | 30 | 1951 | 1.5 |
Sketch
Property Image
Land
| 1 | RES 1 | Converted: Residential | 0.1451 | 6321.00 | 0.00 | 0.00 | 1.00 | $56,890 | $0 |
Roll Value History
| 2026 | N/A | N/A | N/A | N/A | N/A |
| 2025 | $278,340 | $69,530 | $0 | $347,870 | $347,870 |
| 2024 | $262,630 | $56,890 | $0 | $319,520 | $319,520 |
| 2023 | $262,630 | $56,890 | $0 | $319,520 | $319,520 |
| 2022 | $262,630 | $45,830 | $0 | $308,460 | $308,460 |
| 2021 | $187,590 | $45,830 | $0 | $233,420 | $233,420 |
| 2020 | $144,300 | $45,830 | $0 | $190,130 | $190,130 |
| 2019 | $144,300 | $45,830 | $0 | $190,130 | $190,130 |
| 2018 | $158,020 | $37,900 | $0 | $195,920 | $195,920 |
| 2017 | $121,550 | $37,900 | $0 | $159,450 | $159,450 |
| 2016 | $110,500 | $37,900 | $0 | $148,400 | $148,400 |
| 2015 | $110,500 | $37,900 | $0 | $148,400 | $148,400 |
| 2014 | $110,500 | $37,900 | $0 | $148,400 | $148,400 |
| 2013 | $110,500 | $37,900 | $0 | $148,400 | $148,400 |
| 2012 | $110,500 | $37,900 | $0 | $0 | $0 |
| 2011 | $110,500 | $37,900 | $0 | $0 | $0 |
| 2010 | $103,400 | $37,900 | $0 | $0 | $0 |
| 2009 | $119,100 | $37,900 | $0 | $0 | $0 |
| 2008 | $119,100 | $37,900 | $0 | $0 | $0 |
| 2007 | $88,800 | $19,000 | $0 | $0 | $0 |
Deed and Sales History
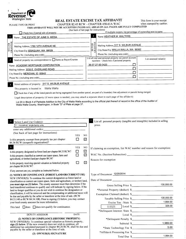
| 1 | 11/21/2018 | SWD | STATUTORY WARRANTY DEED | WALTERS HEATHER M | LONG ISAAC G & MADISON C | | | $192,000.00 | 135978 | 2018-09661 |
| 2 | 12/19/2014 | SWD | STATUTORY WARRANTY DEED | IKEDA JUNE S ESTATE OF | WALTERS HEATHER M | | | $0.00 | 127169 | 2014-09340 |
| 3 | 01/01/1955 | WARRANTY D | WARRANTY DEED | | | | | $0.00 | 0 | 1979-204653 |
Payout Agreement
| No payout information available.. |