Property
Account |
| Property ID: | 9256 | Abbreviated Legal Description: | PARKSIDE ADDITION S1/2 OF LOT 5 BLK 3 |
| Parcel Number: | 360727500328 | Agent Code: | |
| Type: | Real | | |
| Tax Area: | 1 - OL-140-F | Land Use Code | 18 |
| Open Space: | N | DFL | N |
| Historic Property: | N | Remodel Property: | N |
| Multi-Family Redevelopment: | N | | |
| Township: | 7 | Section: | 27 |
| Range: | 36 |
Location |
| Address: | WA 99362 | Mapsco: | |
| Neighborhood: | A Res Land Contig | Map ID: | |
| Neighborhood CD: | 613097 |
Owner |
| Name: | LUNDGREN LOIS | Owner ID: | 72046 |
| Mailing Address: | 522 ANKENY ST WALLA WALLA, WA 99362 | % Ownership: | 100.0000000000% |
| | | Exemptions: | |
Taxes and Assessment Details
Property Tax Information as of
02/21/2026
Click on "Statement Details" to expand or collapse a tax statement.
* Please enter a valid date ** Please enter a valid date *
Statement Details |
| | TOTAL: | $0.00 | $0.00 | $0.00 | $0.00 | $0.00 | $0.00 |
|
| | $0.00 | $0.00 | $0.00 | $0.00 | $0.00 | $0.00 |
Values
| (+) Improvement Homesite Value: | + | $0 | |
| (+) Improvement Non-Homesite Value: | + | $9,010 | |
| (+) Land Homesite Value: | + | $0 | |
| (+) Land Non-Homesite Value: | + | $33,300 | |
| (+) Curr Use (HS): | + | $0 | $0 |
| (+) Curr Use (NHS): | + | $0 | $0 |
| | | -------------------------- | |
| (=) Market Value: | = | $42,310 | |
| (–) Productivity Loss: | – | $0 | |
| | | -------------------------- | |
| (=) Subtotal: | = | $42,310 | |
| (+) Senior Appraised Value: | + | $0 | |
| (+) Non-Senior Appraised Value: | + | $42,310 | |
| | | -------------------------- | |
| (=) Total Appraised Value: | = | $42,310 | |
| (–) Senior Exemption Loss: | – | $0 | |
| (–) Exemption Loss: | – | $0 | |
| | | -------------------------- | |
| (=) Taxable Value: | = | $42,310 | |
Taxing Jurisdiction
| Owner: | LUNDGREN LOIS | | |
| % Ownership: | 100.0000000000% | | |
| Total Value: | $42,310 | | |
| Tax Area: | 1 - OL-140-F |
| CERFD | CURRENT EXPENSE REFUND 010 | 0.0000000000 | $42,310 | $42,310 | $0.00 | | |
| CURREXP | CURRENT EXPENSE 010 | 0.9851088983 | $42,310 | $42,310 | $41.68 | | |
| HUMNSERV | HUMAN SERVICES 119 | 0.0250000000 | $42,310 | $42,310 | $1.06 | | |
| SLDREL | SOLDIERS RELIEF 121 | 0.0155990000 | $42,310 | $42,310 | $0.66 | | |
| EMERGSER | EMS 147 | 0.3676811629 | $42,310 | $42,310 | $15.56 | | |
| EMSRFD | EMS REFUND 147 | 0.0000000000 | $42,310 | $42,310 | $0.00 | | |
| PORTRFD | PORT REFUND 640 | 0.0000000000 | $42,310 | $42,310 | $0.00 | | |
| PORTWWGEN | PORT OF WW 640 | 0.2344301070 | $42,310 | $42,310 | $9.92 | | |
| SD140BOND | SD #140 BOND 764 | 0.8032434458 | $42,310 | $42,310 | $33.99 | | |
| SD140CAP | SD #140 CAP 762 | 0.3840034221 | $42,310 | $42,310 | $16.25 | | |
| SD140GEN | SD #140 GENERAL 760 | 2.4999999996 | $42,310 | $42,310 | $105.78 | | |
| ST2 | STATE SCHOOL PART 2 600 | 0.8853714103 | $42,310 | $42,310 | $37.46 | | |
| STATESCHL | STATE SCHOOL 600 | 1.6424571473 | $42,310 | $42,310 | $69.49 | | |
| STREFUND | STATE REFUND LEVY 603 | 0.0000000000 | $42,310 | $42,310 | $0.00 | | |
| CWWBOND | C OF WW BOND 643 | 0.2642134255 | $42,310 | $42,310 | $11.18 | | |
| CWWGEN | CITY OF WW 631 | 1.6110494978 | $42,310 | $42,310 | $68.16 | | |
| CWWRFD | CITY OF WALLA WALLA REFUND 631 | 0.0000000000 | $42,310 | $42,310 | $0.00 | | |
| | Total Tax Rate: | 9.7181575166 | | | | | |
| | | | | Taxes w/Current Exemptions: | $411.19 | | |
| | | | | Taxes w/o Exemptions: | $411.19 | | |
Improvement / Building
| Improvement #1: | RESIDENTIAL | State Code: | 18 | 0.0 sqft | Value: | $9,010 |
Sketch
Property Image
Land
| 1 | RES 1 | Converted: Residential | 0.0695 | 3028.00 | 0.00 | 0.00 | 1.00 | $33,300 | $0 |
Roll Value History
| 2026 | N/A | N/A | N/A | N/A | N/A |
| 2025 | $9,010 | $33,300 | $0 | $42,310 | $42,310 |
| 2024 | $9,010 | $27,240 | $0 | $36,250 | $36,250 |
| 2023 | $9,010 | $27,240 | $0 | $36,250 | $36,250 |
| 2022 | $9,010 | $21,950 | $0 | $30,960 | $30,960 |
| 2021 | $9,010 | $21,950 | $0 | $30,960 | $30,960 |
| 2020 | $9,010 | $21,950 | $0 | $30,960 | $30,960 |
| 2019 | $9,010 | $21,950 | $0 | $30,960 | $30,960 |
| 2018 | $0 | $8,700 | $0 | $8,700 | $8,700 |
| 2017 | $0 | $8,700 | $0 | $8,700 | $8,700 |
| 2016 | $0 | $8,700 | $0 | $8,700 | $8,700 |
| 2015 | $0 | $8,700 | $0 | $8,700 | $8,700 |
| 2014 | $0 | $8,700 | $0 | $8,700 | $8,700 |
| 2013 | $0 | $8,700 | $0 | $8,700 | $8,700 |
| 2012 | $0 | $8,700 | $0 | $0 | $0 |
| 2011 | $0 | $8,700 | $0 | $0 | $0 |
| 2010 | $0 | $8,700 | $0 | $0 | $0 |
| 2009 | $0 | $8,700 | $0 | $0 | $0 |
| 2008 | $0 | $8,700 | $0 | $0 | $0 |
| 2007 | $0 | $5,100 | $0 | $0 | $0 |
Deed and Sales History
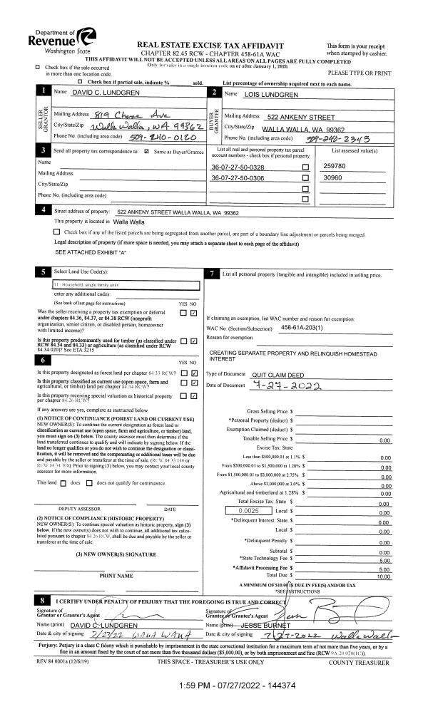
| 1 | 07/27/2022 | QCD | QUIT CLAIM DEED | | LUNDGREN LOIS | | 2-PARCELS | $0.00 | 144374 | 2022-06293 |
| 2 | 07/27/2022 | SWD | STATUTORY WARRANTY DEED | CROFT KIM M | LUNDGREN LOIS | | 2-PARCELS | $375,000.00 | 144373 | 2022-06292 |
|   | |
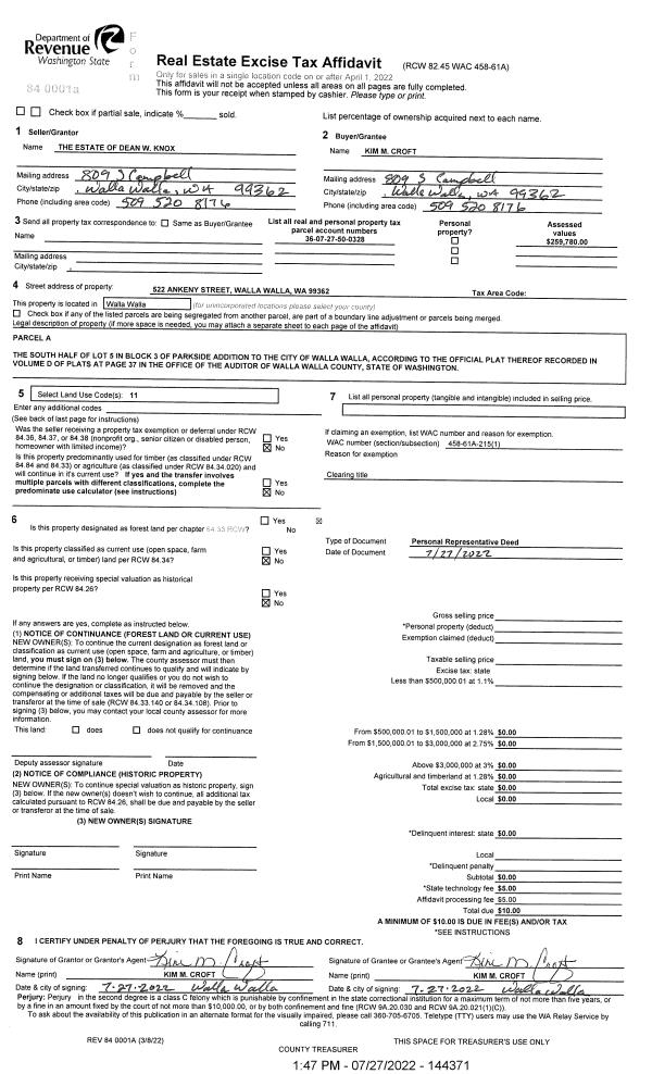
| 3 | 07/27/2022 | DPR | DEED OF PERSONAL REPRESENTATIVE | KNOX DEAN W ESTATE OF | CROFT KIM M | | | $0.00 | 144371 | 2022-06290 |
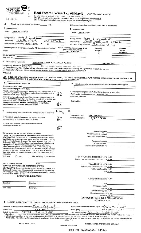
| 4 | 02/07/2022 | QCD | QUIT CLAIM DEED | KNOX DEAN W LIVING TRUST | CROFT KIM M | 2 PARCEL | | $0.00 | 143364 | 2022-01199 |
| 5 | 04/25/1980 | WARRANTY D | WARRANTY DEED | | | | | $2,000.00 | 0 | 1228-003462 |
Payout Agreement
| No payout information available.. |