Property
Account |
| Property ID: | 9228 | Abbreviated Legal Description: | PARKSIDE ADDN LOT 4 BLK 1 LESS ESTLY 10' |
| Parcel Number: | 360727500137 | Agent Code: | |
| Type: | Real | | |
| Tax Area: | 1 - OL-140-F | Land Use Code | 11 |
| Open Space: | N | DFL | N |
| Historic Property: | N | Remodel Property: | N |
| Multi-Family Redevelopment: | N | | |
| Township: | 7 | Section: | 27 |
| Range: | 36 |
Location |
| Address: | 514 SCHOOL AVE WA 99362 | Mapsco: | |
| Neighborhood: | A Res | Map ID: | |
| Neighborhood CD: | 613011 |
Owner |
| Name: | RUZICKA MICHAEL L | Owner ID: | 62892 |
| Mailing Address: | MICHELE HARTGROVE 3508 N 22ND ST COEUR D ALENE, ID 83815 | % Ownership: | 100.0000000000% |
| | | Exemptions: | |
Taxes and Assessment Details
Property Tax Information as of
02/21/2026
Click on "Statement Details" to expand or collapse a tax statement.
* Please enter a valid date ** Please enter a valid date *
Statement Details |
| | TOTAL: | $0.00 | $0.00 | $0.00 | $0.00 | $0.00 | $0.00 |
|
| | $0.00 | $0.00 | $0.00 | $0.00 | $0.00 | $0.00 |
Values
| (+) Improvement Homesite Value: | + | $0 | |
| (+) Improvement Non-Homesite Value: | + | $245,130 | |
| (+) Land Homesite Value: | + | $0 | |
| (+) Land Non-Homesite Value: | + | $53,890 | |
| (+) Curr Use (HS): | + | $0 | $0 |
| (+) Curr Use (NHS): | + | $0 | $0 |
| | | -------------------------- | |
| (=) Market Value: | = | $299,020 | |
| (–) Productivity Loss: | – | $0 | |
| | | -------------------------- | |
| (=) Subtotal: | = | $299,020 | |
| (+) Senior Appraised Value: | + | $0 | |
| (+) Non-Senior Appraised Value: | + | $299,020 | |
| | | -------------------------- | |
| (=) Total Appraised Value: | = | $299,020 | |
| (–) Senior Exemption Loss: | – | $0 | |
| (–) Exemption Loss: | – | $0 | |
| | | -------------------------- | |
| (=) Taxable Value: | = | $299,020 | |
Taxing Jurisdiction
| Owner: | RUZICKA MICHAEL L | | |
| % Ownership: | 100.0000000000% | | |
| Total Value: | $299,020 | | |
| Tax Area: | 1 - OL-140-F |
| CERFD | CURRENT EXPENSE REFUND 010 | 0.0000000000 | $299,020 | $299,020 | $0.00 | | |
| CURREXP | CURRENT EXPENSE 010 | 1.0175366760 | $299,020 | $299,020 | $304.26 | | |
| HUMNSERV | HUMAN SERVICES 119 | 0.0250000000 | $299,020 | $299,020 | $7.48 | | |
| SLDREL | SOLDIERS RELIEF 121 | 0.0155990005 | $299,020 | $299,020 | $4.66 | | |
| EMERGSER | EMS 147 | 0.3792580840 | $299,020 | $299,020 | $113.41 | | |
| EMSRFD | EMS REFUND 147 | 0.0000000000 | $299,020 | $299,020 | $0.00 | | |
| PORTRFD | PORT REFUND 640 | 0.0000000000 | $299,020 | $299,020 | $0.00 | | |
| PORTWWGEN | PORT OF WW 640 | 0.2460186015 | $299,020 | $299,020 | $73.56 | | |
| SD140BOND | SD #140 BOND 764 | 0.8342371393 | $299,020 | $299,020 | $249.45 | | |
| SD140GEN | SD #140 GENERAL 760 | 2.0646500647 | $299,020 | $299,020 | $617.37 | | |
| ST2 | STATE SCHOOL PART 2 600 | 0.8131451643 | $299,020 | $299,020 | $243.15 | | |
| STATESCHL | STATE SCHOOL 600 | 1.5158548041 | $299,020 | $299,020 | $453.27 | | |
| STREFUND | STATE REFUND LEVY 603 | 0.0000000000 | $299,020 | $299,020 | $0.00 | | |
| CWWBOND | C OF WW BOND 643 | 0.2760494372 | $299,020 | $299,020 | $82.54 | | |
| CWWGEN | CITY OF WW 631 | 1.6100204973 | $299,020 | $299,020 | $481.43 | | |
| CWWRFD | CITY OF WALLA WALLA REFUND 631 | 0.0000000000 | $299,020 | $299,020 | $0.00 | | |
| | Total Tax Rate: | 8.7973694689 | | | | | |
| | | | | Taxes w/Current Exemptions: | $2,630.58 | | |
| | | | | Taxes w/o Exemptions: | $2,630.58 | | |
Improvement / Building
| Improvement #1: | RESIDENTIAL | State Code: | 11 | 1288.0 sqft | Value: | $245,130 |
| Exterior Wall: | PLYWOOD | Heating/Cooling: | REV-HEAT-PUMP-W/DUCT | | Number of Bathrooms: | 2 | Number of Bedrooms: | 3 | | Plumbing: | 9 | Roof Covering: | COMP SHINGLE |
|
| | Type | Description | Class CD | Sub Class CD | Year Built | Area |
| | MA | Main Area | 1 | 30 | 1994 | 1288.0 |
| | SI1 | SITE IMPROVEMENT | 1 | 30 | 1994 | 1.5 |
| | OSP | Open | 1 | 30 | 1994 | 25.0 |
| | CPC | COVERED CARPORT/PATIO | 1 | 30 | 1994 | 80.0 |
| | POL2 | POLE BUILDING-CONCRETE | 1 | 30 | 1994 | 576.0 |
Sketch
Property Image
Land
| 1 | RES 1 | Converted: Residential | 0.1375 | 5988.00 | 0.00 | 0.00 | 1.00 | $53,890 | $0 |
Roll Value History
| 2026 | N/A | N/A | N/A | N/A | N/A |
| 2025 | $262,440 | $65,870 | $0 | $328,310 | $328,310 |
| 2024 | $257,390 | $53,890 | $0 | $311,280 | $311,280 |
| 2023 | $245,130 | $53,890 | $0 | $299,020 | $299,020 |
| 2022 | $233,460 | $43,410 | $0 | $276,870 | $276,870 |
| 2021 | $194,550 | $43,410 | $0 | $237,960 | $237,960 |
| 2020 | $134,170 | $43,410 | $0 | $177,580 | $177,580 |
| 2019 | $134,170 | $43,410 | $0 | $177,580 | $177,580 |
| 2018 | $141,680 | $35,900 | $0 | $177,580 | $177,580 |
| 2017 | $141,680 | $35,900 | $0 | $177,580 | $177,580 |
| 2016 | $123,200 | $35,900 | $0 | $159,100 | $159,100 |
| 2015 | $123,200 | $35,900 | $0 | $159,100 | $159,100 |
| 2014 | $123,200 | $35,900 | $0 | $159,100 | $159,100 |
| 2013 | $123,200 | $35,900 | $0 | $159,100 | $159,100 |
| 2012 | $123,200 | $35,900 | $0 | $0 | $0 |
| 2011 | $123,200 | $35,900 | $0 | $0 | $0 |
| 2010 | $108,700 | $35,900 | $0 | $0 | $0 |
| 2009 | $124,800 | $35,900 | $0 | $0 | $0 |
| 2008 | $124,800 | $35,900 | $0 | $0 | $0 |
| 2007 | $86,200 | $18,000 | $0 | $0 | $0 |
Deed and Sales History
| 1 | 10/21/2025 | SWD | STATUTORY WARRANTY DEED | SCHOOL HOUSE LLC | SARDINA EMILIO | | | $330,000.00 | 150212 | 2025-06473 |
| 2 | 12/12/2023 | QCD | QUIT CLAIM DEED | RUZICKA MICHAEL L | SCHOOL HOUSE LLC | | | | 146917 | 2023-07217 |
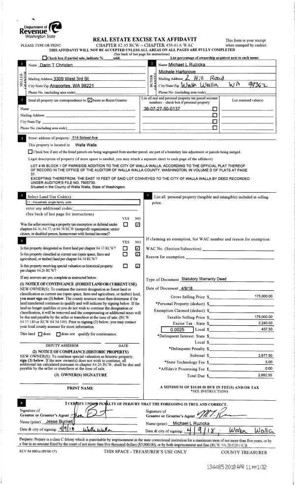
| 3 | 04/11/2018 | SWD | STATUTORY WARRANTY DEED | CHRISTEN DARIN T | RUZICKA MICHAEL L | | | $175,000.00 | 134485 | 2018-02807 |
| 4 | 09/23/2010 | QCD | QUIT CLAIM DEED | CHRISTEN, ANNA C | CHRISTEN, DARIN T | | | | 119050 | 2010-07544 |
| 5 | 09/17/2010 | WARRANTY D | WARRANTY DEED | CHRISTEN, ANNA C | CHRISTEN, DARIN T | | | | 0 | CC #09-3-00145-1 |
| 6 | 05/30/2002 | WARRANTY D | WARRANTY DEED | | | | | $104,000.00 | 99610 | 2002-0006342 |
Payout Agreement
| No payout information available.. |