Property
Account |
| Property ID: | 9178 | Abbreviated Legal Description: | 27-7-36 TRACT I SHORT PLAT 2/118 1987-08309 (TAX 27B & PT 50A WITHIN NE1/4SW1/4) |
| Parcel Number: | 360727310066 | Agent Code: | |
| Type: | Real | | |
| Tax Area: | 105 - 140-F-4 | Land Use Code | 11 |
| Open Space: | N | DFL | N |
| Historic Property: | N | Remodel Property: | N |
| Multi-Family Redevelopment: | N | | |
| Township: | 7 | Section: | 27 |
| Range: | 36 |
Location |
| Address: | 1419 SCHOOL AVE WA 99362 | Mapsco: | |
| Neighborhood: | G+ Res Rural/city Inf | Map ID: | |
| Neighborhood CD: | 414212 |
Owner |
| Name: | WERKMEISTER MIA & PHILIP | Owner ID: | 69767 |
| Mailing Address: | 1419 SCHOOL AVE WALLA WALLA, WA 99362 | % Ownership: | 100.0000000000% |
| | | Exemptions: | |
Taxes and Assessment Details
Property Tax Information as of
02/21/2026
Click on "Statement Details" to expand or collapse a tax statement.
* Please enter a valid date ** Please enter a valid date *
Statement Details |
| | TOTAL: | $0.00 | $0.00 | $0.00 | $0.00 | $0.00 | $0.00 |
|
| | $0.00 | $0.00 | $0.00 | $0.00 | $0.00 | $0.00 |
Values
| (+) Improvement Homesite Value: | + | $0 | |
| (+) Improvement Non-Homesite Value: | + | $325,480 | |
| (+) Land Homesite Value: | + | $0 | |
| (+) Land Non-Homesite Value: | + | $150,000 | |
| (+) Curr Use (HS): | + | $0 | $0 |
| (+) Curr Use (NHS): | + | $0 | $0 |
| | | -------------------------- | |
| (=) Market Value: | = | $475,480 | |
| (–) Productivity Loss: | – | $0 | |
| | | -------------------------- | |
| (=) Subtotal: | = | $475,480 | |
| (+) Senior Appraised Value: | + | $0 | |
| (+) Non-Senior Appraised Value: | + | $475,480 | |
| | | -------------------------- | |
| (=) Total Appraised Value: | = | $475,480 | |
| (–) Senior Exemption Loss: | – | $0 | |
| (–) Exemption Loss: | – | $0 | |
| | | -------------------------- | |
| (=) Taxable Value: | = | $475,480 | |
Taxing Jurisdiction
| Owner: | WERKMEISTER MIA & PHILIP | | |
| % Ownership: | 100.0000000000% | | |
| Total Value: | $475,480 | | |
| Tax Area: | 105 - 140-F-4 |
| CERFD | CURRENT EXPENSE REFUND 010 | 0.0000000000 | $475,480 | $475,480 | $0.00 | | |
| CURREXP | CURRENT EXPENSE 010 | 1.0175366760 | $475,480 | $475,480 | $483.82 | | |
| HUMNSERV | HUMAN SERVICES 119 | 0.0250000000 | $475,480 | $475,480 | $11.89 | | |
| SLDREL | SOLDIERS RELIEF 121 | 0.0155990005 | $475,480 | $475,480 | $7.42 | | |
| EMERGSER | EMS 147 | 0.3792580840 | $475,480 | $475,480 | $180.33 | | |
| EMSRFD | EMS REFUND 147 | 0.0000000000 | $475,480 | $475,480 | $0.00 | | |
| FD4EXP | FD #4 EXPENSE 686 | 0.8836993059 | $475,480 | $475,480 | $420.18 | | |
| RLBRFD | RURAL LIBRARY REFUND 623 | 0.0000000000 | $475,480 | $475,480 | $0.00 | | |
| RURALLIB | RURAL LIBRARY 623 | 0.3710609029 | $475,480 | $475,480 | $176.43 | | |
| PORTRFD | PORT REFUND 640 | 0.0000000000 | $475,480 | $475,480 | $0.00 | | |
| PORTWWGEN | PORT OF WW 640 | 0.2460186015 | $475,480 | $475,480 | $116.98 | | |
| SD140BOND | SD #140 BOND 764 | 0.8342371393 | $475,480 | $475,480 | $396.66 | | |
| SD140GEN | SD #140 GENERAL 760 | 2.0646500647 | $475,480 | $475,480 | $981.70 | | |
| ST2 | STATE SCHOOL PART 2 600 | 0.8131451643 | $475,480 | $475,480 | $386.63 | | |
| STATESCHL | STATE SCHOOL 600 | 1.5158548041 | $475,480 | $475,480 | $720.76 | | |
| STREFUND | STATE REFUND LEVY 603 | 0.0000000000 | $475,480 | $475,480 | $0.00 | | |
| COROAD | COUNTY ROAD 115 | 1.6549953990 | $475,480 | $475,480 | $786.92 | | |
| CRPRD | COUNTY ROAD REFUND 115 | 0.0000000000 | $475,480 | $475,480 | $0.00 | | |
| | Total Tax Rate: | 9.8210551422 | | | | | |
| | | | | Taxes w/Current Exemptions: | $4,669.72 | | |
| | | | | Taxes w/o Exemptions: | $4,669.72 | | |
Improvement / Building
| Improvement #1: | RESIDENTIAL | State Code: | 11 | 2225.0 sqft | Value: | $325,480 |
| Exterior Wall: | SIDING | Heating/Cooling: | BASEBOARD HOT WATER | | Number of Bathrooms: | 3 | Number of Bedrooms: | 2 | | Plumbing: | 14 | Roof Covering: | COMP SHINGLE |
|
| | Type | Description | Class CD | Sub Class CD | Year Built | Area |
| | MA | Main Area | 1 | 35 | 1945 | 1637.0 |
| | BON5 | BONUS RM ATT FIN,W&C,FIXTURES | 1 | 35 | 0 | 588.0 |
| | CPC | COVERED CARPORT/PATIO | 1 | 35 | 0 | 266.0 |
| | SI1 | SITE IMPROVEMENT | 1 | 35 | 0 | 3.0 |
| | RPO | OPEN PORCH W/ROOF | 1 | 35 | 1945 | 72.0 |
| | S1F | Single One Story Fireplace | 1 | 35 | 1945 | 2.0 |
| | BASE | BASEMENT | 1 | 35 | 1945 | 1242.0 |
| | BRF | BASEMENT - REC FINISH | 1 | 35 | 1945 | 1033.0 |
| | ATG | Attached Garage | 1 | 35 | 1945 | 456.0 |
Sketch
Property Image
Land
| 1 | RES 1 | Converted: Residential | 1.0000 | 0.00 | 0.00 | 0.00 | 1.00 | $150,000 | $0 |
Roll Value History
| 2026 | N/A | N/A | N/A | N/A | N/A |
| 2025 | $390,580 | $150,000 | $0 | $540,580 | $540,580 |
| 2024 | $325,480 | $150,000 | $0 | $475,480 | $475,480 |
| 2023 | $325,480 | $150,000 | $0 | $475,480 | $475,480 |
| 2022 | $311,070 | $75,000 | $0 | $386,070 | $386,070 |
| 2021 | $239,290 | $75,000 | $0 | $314,290 | $314,290 |
| 2020 | $199,410 | $75,000 | $0 | $274,410 | $274,410 |
| 2019 | $199,410 | $75,000 | $0 | $274,410 | $274,410 |
| 2018 | $181,280 | $75,000 | $0 | $256,280 | $256,280 |
| 2017 | $181,280 | $75,000 | $0 | $256,280 | $256,280 |
| 2016 | $181,280 | $75,000 | $0 | $256,280 | $256,280 |
| 2015 | $164,800 | $75,000 | $0 | $239,800 | $239,800 |
| 2014 | $164,800 | $75,000 | $0 | $239,800 | $239,800 |
| 2013 | $168,600 | $75,000 | $0 | $243,600 | $243,600 |
| 2012 | $168,600 | $75,000 | $0 | $0 | $0 |
| 2011 | $174,000 | $75,000 | $0 | $0 | $0 |
| 2010 | $174,000 | $75,000 | $0 | $0 | $0 |
| 2009 | $201,700 | $75,000 | $0 | $0 | $0 |
| 2008 | $201,700 | $75,000 | $0 | $0 | $0 |
| 2007 | $117,300 | $44,000 | $0 | $0 | $0 |
Deed and Sales History
| 1 | 07/06/2021 | QCD | QUIT CLAIM DEED | CAMBRONERO MIA F | WERKMEISTER MIA & PHILIP | | | $0.00 | 141984 | 2021-08193 |
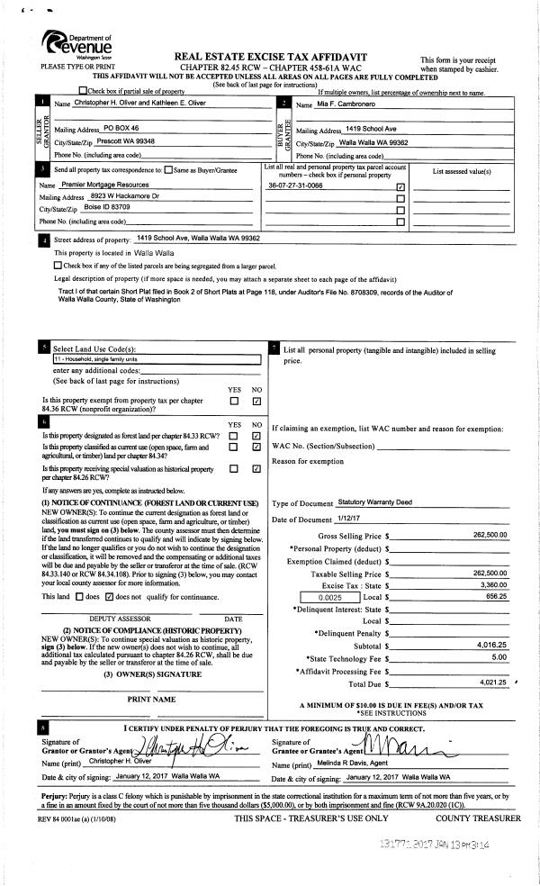
| 2 | 01/13/2017 | SWD | STATUTORY WARRANTY DEED | OLIVER CHRISTOPHER H | CAMBRONERO MIA F | | | $262,500.00 | 131771 | 2017-00370 |
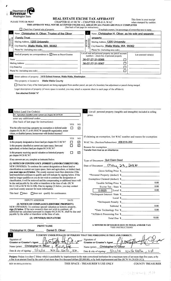
| 3 | 05/23/2016 | QCD | QUIT CLAIM DEED | OLIVER FAMILY REV TRUST | OLIVER CHRISTOPHER H | | | $0.00 | 130308 | 2016-04090 |
Payout Agreement
| No payout information available.. |