Property
Account |
| Property ID: | 9157 | Abbreviated Legal Description: | 27-7-36 TAX 33F |
| Parcel Number: | 360727230029 | Agent Code: | |
| Type: | Real | | |
| Tax Area: | 105 - 140-F-4 | Land Use Code | 11 |
| Open Space: | N | DFL | N |
| Historic Property: | N | Remodel Property: | N |
| Multi-Family Redevelopment: | N | | |
| Township: | 7 | Section: | 27 |
| Range: | 36 |
Location |
| Address: | 914 SCHOOL AVE WA 99362 | Mapsco: | |
| Neighborhood: | A Res | Map ID: | |
| Neighborhood CD: | 613011 |
Owner |
| Name: | ORNELAS RUBEN JR | Owner ID: | 62073 |
| Mailing Address: | 914 SCHOOL AVE WALLA WALLA, WA 99362 | % Ownership: | 100.0000000000% |
| | | Exemptions: | |
Taxes and Assessment Details
Property Tax Information as of
02/21/2026
Click on "Statement Details" to expand or collapse a tax statement.
* Please enter a valid date ** Please enter a valid date *
Statement Details |
| | TOTAL: | $0.00 | $0.00 | $0.00 | $0.00 | $0.00 | $0.00 |
|
| | $0.00 | $0.00 | $0.00 | $0.00 | $0.00 | $0.00 |
Values
| (+) Improvement Homesite Value: | + | $0 | |
| (+) Improvement Non-Homesite Value: | + | $369,290 | |
| (+) Land Homesite Value: | + | $0 | |
| (+) Land Non-Homesite Value: | + | $90,660 | |
| (+) Curr Use (HS): | + | $0 | $0 |
| (+) Curr Use (NHS): | + | $0 | $0 |
| | | -------------------------- | |
| (=) Market Value: | = | $459,950 | |
| (–) Productivity Loss: | – | $0 | |
| | | -------------------------- | |
| (=) Subtotal: | = | $459,950 | |
| (+) Senior Appraised Value: | + | $0 | |
| (+) Non-Senior Appraised Value: | + | $459,950 | |
| | | -------------------------- | |
| (=) Total Appraised Value: | = | $459,950 | |
| (–) Senior Exemption Loss: | – | $0 | |
| (–) Exemption Loss: | – | $0 | |
| | | -------------------------- | |
| (=) Taxable Value: | = | $459,950 | |
Taxing Jurisdiction
| Owner: | ORNELAS RUBEN JR | | |
| % Ownership: | 100.0000000000% | | |
| Total Value: | $459,950 | | |
| Tax Area: | 105 - 140-F-4 |
| CERFD | CURRENT EXPENSE REFUND 010 | 0.0000000000 | $459,950 | $459,950 | $0.00 | | |
| CURREXP | CURRENT EXPENSE 010 | 1.0175366760 | $459,950 | $459,950 | $468.02 | | |
| HUMNSERV | HUMAN SERVICES 119 | 0.0250000000 | $459,950 | $459,950 | $11.50 | | |
| SLDREL | SOLDIERS RELIEF 121 | 0.0155990005 | $459,950 | $459,950 | $7.17 | | |
| EMERGSER | EMS 147 | 0.3792580840 | $459,950 | $459,950 | $174.44 | | |
| EMSRFD | EMS REFUND 147 | 0.0000000000 | $459,950 | $459,950 | $0.00 | | |
| FD4EXP | FD #4 EXPENSE 686 | 0.8836993059 | $459,950 | $459,950 | $406.46 | | |
| RLBRFD | RURAL LIBRARY REFUND 623 | 0.0000000000 | $459,950 | $459,950 | $0.00 | | |
| RURALLIB | RURAL LIBRARY 623 | 0.3710609029 | $459,950 | $459,950 | $170.67 | | |
| PORTRFD | PORT REFUND 640 | 0.0000000000 | $459,950 | $459,950 | $0.00 | | |
| PORTWWGEN | PORT OF WW 640 | 0.2460186015 | $459,950 | $459,950 | $113.16 | | |
| SD140BOND | SD #140 BOND 764 | 0.8342371393 | $459,950 | $459,950 | $383.71 | | |
| SD140GEN | SD #140 GENERAL 760 | 2.0646500647 | $459,950 | $459,950 | $949.64 | | |
| ST2 | STATE SCHOOL PART 2 600 | 0.8131451643 | $459,950 | $459,950 | $374.01 | | |
| STATESCHL | STATE SCHOOL 600 | 1.5158548041 | $459,950 | $459,950 | $697.22 | | |
| STREFUND | STATE REFUND LEVY 603 | 0.0000000000 | $459,950 | $459,950 | $0.00 | | |
| COROAD | COUNTY ROAD 115 | 1.6549953990 | $459,950 | $459,950 | $761.22 | | |
| CRPRD | COUNTY ROAD REFUND 115 | 0.0000000000 | $459,950 | $459,950 | $0.00 | | |
| | Total Tax Rate: | 9.8210551422 | | | | | |
| | | | | Taxes w/Current Exemptions: | $4,517.22 | | |
| | | | | Taxes w/o Exemptions: | $4,517.22 | | |
Improvement / Building
| Improvement #1: | RESIDENTIAL | State Code: | 11 | 2160.0 sqft | Value: | $369,290 |
| Exterior Wall: | VINYL | Heating/Cooling: | WARM & COOLED AIR | | Number of Bathrooms: | 1.5 | Number of Bedrooms: | 3 | | Plumbing: | 8 | Roof Covering: | COMP SHINGLE |
|
| | Type | Description | Class CD | Sub Class CD | Year Built | Area |
| | MA | Main Area | 1 | 30 | 1950 | 2160.0 |
| | SI1 | SITE IMPROVEMENT | 1 | 30 | 1950 | 2.0 |
| | LOFT | Loft Area | 1 | 30 | 1950 | 168.0 |
| | CPC | COVERED CARPORT/PATIO | 1 | 30 | 1950 | 231.0 |
| | CPC | COVERED CARPORT/PATIO | 1 | 30 | 1950 | 400.0 |
| | TOOL | TOOL SHED | 1 | 30 | 1950 | 120.0 |
Sketch
Property Image
Land
| 1 | RES 1 | Converted: Residential | 0.2483 | 10818.00 | 0.00 | 0.00 | 1.00 | $90,660 | $0 |
Roll Value History
| 2026 | N/A | N/A | N/A | N/A | N/A |
| 2025 | $376,650 | $110,780 | $0 | $487,430 | $487,430 |
| 2024 | $369,290 | $90,660 | $0 | $459,950 | $459,950 |
| 2023 | $369,290 | $90,660 | $0 | $459,950 | $459,950 |
| 2022 | $351,710 | $73,020 | $0 | $424,730 | $424,730 |
| 2021 | $293,090 | $73,020 | $0 | $366,110 | $366,110 |
| 2020 | $183,180 | $73,020 | $0 | $256,200 | $256,200 |
| 2019 | $183,180 | $73,020 | $0 | $256,200 | $256,200 |
| 2018 | $172,330 | $47,800 | $0 | $220,130 | $220,130 |
| 2017 | $156,660 | $47,800 | $0 | $204,460 | $204,460 |
| 2016 | $149,200 | $47,800 | $0 | $197,000 | $197,000 |
| 2015 | $149,200 | $47,800 | $0 | $197,000 | $197,000 |
| 2014 | $149,200 | $47,800 | $0 | $197,000 | $197,000 |
| 2013 | $149,200 | $47,800 | $0 | $197,000 | $197,000 |
| 2012 | $147,200 | $47,800 | $0 | $0 | $0 |
| 2011 | $147,200 | $47,800 | $0 | $0 | $0 |
| 2010 | $129,500 | $47,800 | $0 | $0 | $0 |
| 2009 | $149,200 | $47,800 | $0 | $0 | $0 |
| 2008 | $149,200 | $47,800 | $0 | $0 | $0 |
| 2007 | $136,800 | $25,300 | $0 | $0 | $0 |
Deed and Sales History
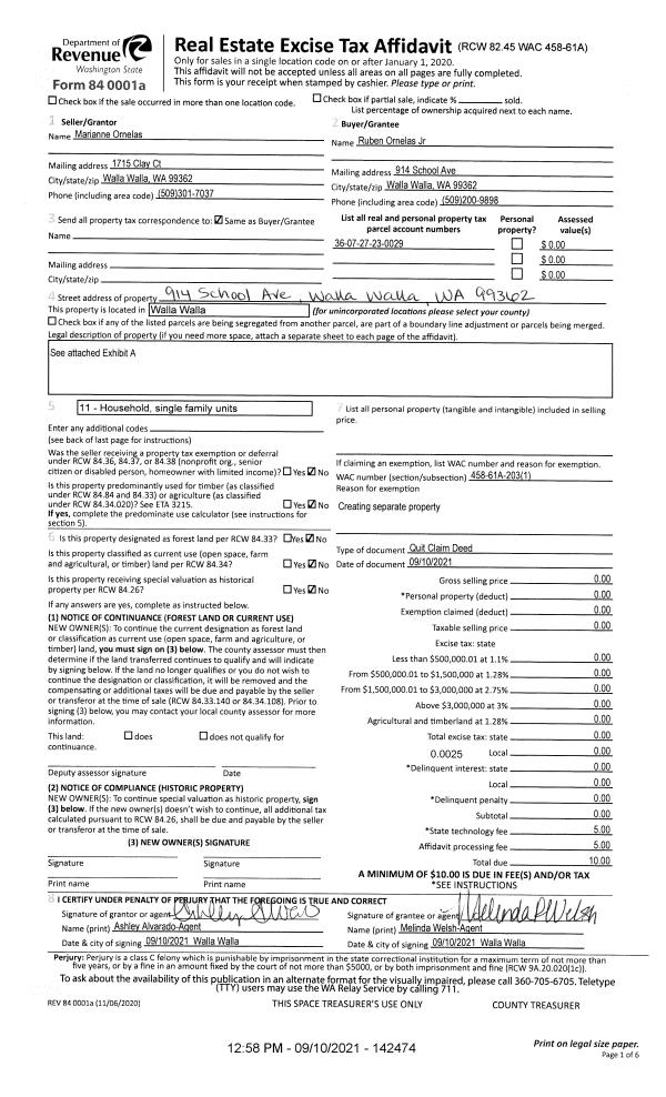
| 1 | 09/10/2021 | QCD | QUIT CLAIM DEED | ORNELAS MARIANNE | ORNELAS RUBEN JR | | | | 142474 | 2021-11158 |
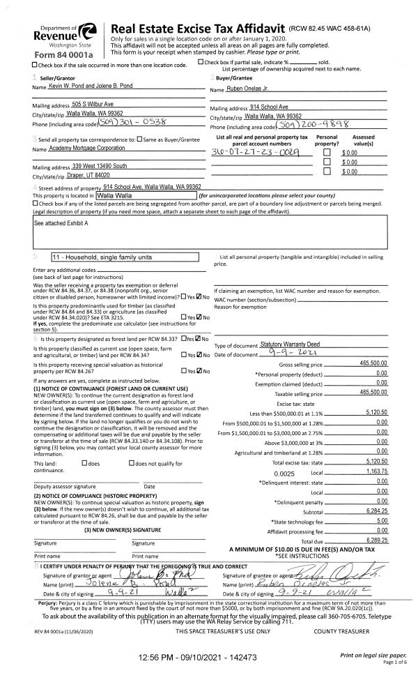
| 2 | 09/10/2021 | SWD | STATUTORY WARRANTY DEED | POND KEVIN W & JOLENE B | ORNELAS RUBEN JR | | | $465,500.00 | 142473 | 2021-11157 |
| 3 | 12/14/1992 | WARRANTY D | WARRANTY DEED | | | | | $57,000.00 | 78173 | 2049-301656 |
Payout Agreement
| No payout information available.. |