Property
Account |
| Property ID: | 9150 | Abbreviated Legal Description: | 27-7-36 TAX 16C |
| Parcel Number: | 360727220007 | Agent Code: | |
| Type: | Real | | |
| Tax Area: | 105 - 140-F-4 | Land Use Code | 11 |
| Open Space: | N | DFL | N |
| Historic Property: | N | Remodel Property: | N |
| Multi-Family Redevelopment: | N | | |
| Township: | 7 | Section: | 27 |
| Range: | 36 |
Location |
| Address: | 721 ANKENY ST WA 99362 | Mapsco: | |
| Neighborhood: | A Res | Map ID: | |
| Neighborhood CD: | 613011 |
Owner |
| Name: | AHMED AFROSE | Owner ID: | 70605 |
| Mailing Address: | 721 ANKENY ST WALLA WALLA, WA 99362 | % Ownership: | 100.0000000000% |
| | | Exemptions: | |
Taxes and Assessment Details
Values
| (+) Improvement Homesite Value: | + | $0 | |
| (+) Improvement Non-Homesite Value: | + | $277,880 | |
| (+) Land Homesite Value: | + | $0 | |
| (+) Land Non-Homesite Value: | + | $66,650 | |
| (+) Curr Use (HS): | + | $0 | $0 |
| (+) Curr Use (NHS): | + | $0 | $0 |
| | | -------------------------- | |
| (=) Market Value: | = | $344,530 | |
| (–) Productivity Loss: | – | $0 | |
| | | -------------------------- | |
| (=) Subtotal: | = | $344,530 | |
| (+) Senior Appraised Value: | + | $0 | |
| (+) Non-Senior Appraised Value: | + | $344,530 | |
| | | -------------------------- | |
| (=) Total Appraised Value: | = | $344,530 | |
| (–) Senior Exemption Loss: | – | $0 | |
| (–) Exemption Loss: | – | $0 | |
| | | -------------------------- | |
| (=) Taxable Value: | = | $344,530 | |
Taxing Jurisdiction
| Owner: | AHMED AFROSE | | |
| % Ownership: | 100.0000000000% | | |
| Total Value: | $344,530 | | |
| Tax Area: | 105 - 140-F-4 |
| CERFD | CURRENT EXPENSE REFUND 010 | 0.0000000000 | $344,530 | $344,530 | $0.00 | | |
| CURREXP | CURRENT EXPENSE 010 | 1.0175366760 | $344,530 | $344,530 | $350.57 | | |
| HUMNSERV | HUMAN SERVICES 119 | 0.0250000000 | $344,530 | $344,530 | $8.61 | | |
| SLDREL | SOLDIERS RELIEF 121 | 0.0155990005 | $344,530 | $344,530 | $5.37 | | |
| EMERGSER | EMS 147 | 0.3792580840 | $344,530 | $344,530 | $130.67 | | |
| EMSRFD | EMS REFUND 147 | 0.0000000000 | $344,530 | $344,530 | $0.00 | | |
| FD4EXP | FD #4 EXPENSE 686 | 0.8836993059 | $344,530 | $344,530 | $304.46 | | |
| RLBRFD | RURAL LIBRARY REFUND 623 | 0.0000000000 | $344,530 | $344,530 | $0.00 | | |
| RURALLIB | RURAL LIBRARY 623 | 0.3710609029 | $344,530 | $344,530 | $127.84 | | |
| PORTRFD | PORT REFUND 640 | 0.0000000000 | $344,530 | $344,530 | $0.00 | | |
| PORTWWGEN | PORT OF WW 640 | 0.2460186015 | $344,530 | $344,530 | $84.76 | | |
| SD140BOND | SD #140 BOND 764 | 0.8342371393 | $344,530 | $344,530 | $287.42 | | |
| SD140GEN | SD #140 GENERAL 760 | 2.0646500647 | $344,530 | $344,530 | $711.33 | | |
| ST2 | STATE SCHOOL PART 2 600 | 0.8131451643 | $344,530 | $344,530 | $280.15 | | |
| STATESCHL | STATE SCHOOL 600 | 1.5158548041 | $344,530 | $344,530 | $522.26 | | |
| STREFUND | STATE REFUND LEVY 603 | 0.0000000000 | $344,530 | $344,530 | $0.00 | | |
| COROAD | COUNTY ROAD 115 | 1.6549953990 | $344,530 | $344,530 | $570.20 | | |
| CRPRD | COUNTY ROAD REFUND 115 | 0.0000000000 | $344,530 | $344,530 | $0.00 | | |
| | Total Tax Rate: | 9.8210551422 | | | | | |
| | | | | Taxes w/Current Exemptions: | $3,383.64 | | |
| | | | | Taxes w/o Exemptions: | $3,383.64 | | |
Improvement / Building
| Improvement #1: | RESIDENTIAL | State Code: | 11 | 964.0 sqft | Value: | $277,880 |
| Exterior Wall: | SIDING | Heating/Cooling: | WARM & COOLED AIR | | Number of Bathrooms: | 1 | Number of Bedrooms: | 2 | | Plumbing: | 6 | Roof Covering: | COMP SHINGLE |
|
| | Type | Description | Class CD | Sub Class CD | Year Built | Area |
| | MA | Main Area | 1 | 30 | 1951 | 964.0 |
| | SI1 | SITE IMPROVEMENT | 1 | 30 | 1951 | 1.5 |
| | BASE | BASEMENT | 1 | 30 | 1951 | 964.0 |
| | BRF | BASEMENT - REC FINISH | 1 | 30 | 1951 | 711.0 |
| | RPS | PORCH W/STEPS,ROOF | 1 | 30 | 1951 | 90.0 |
| | WOD | Wood Deck | 1 | 30 | 1951 | 464.0 |
| | DTG | Detached Garage | 1 | 30 | 1951 | 240.0 |
Sketch
Property Image
Land
| 1 | RES 1 | Converted: Residential | 0.1700 | 7405.00 | 0.00 | 0.00 | 1.00 | $66,650 | $0 |
Roll Value History
| 2026 | N/A | N/A | N/A | N/A | N/A |
| 2025 | $263,420 | $81,460 | $0 | $344,880 | $344,880 |
| 2024 | $277,880 | $66,650 | $0 | $344,530 | $344,530 |
| 2023 | $277,880 | $66,650 | $0 | $344,530 | $344,530 |
| 2022 | $252,620 | $53,690 | $0 | $306,310 | $306,310 |
| 2021 | $187,120 | $53,690 | $0 | $240,810 | $240,810 |
| 2020 | $143,940 | $53,690 | $0 | $197,630 | $197,630 |
| 2019 | $143,940 | $53,690 | $0 | $197,630 | $197,630 |
| 2018 | $136,130 | $44,400 | $0 | $180,530 | $180,530 |
| 2017 | $123,750 | $44,400 | $0 | $168,150 | $168,150 |
| 2016 | $99,000 | $44,400 | $0 | $143,400 | $143,400 |
| 2015 | $99,000 | $44,400 | $0 | $143,400 | $143,400 |
| 2014 | $99,000 | $44,400 | $0 | $143,400 | $143,400 |
| 2013 | $99,000 | $44,400 | $0 | $143,400 | $143,400 |
| 2012 | $115,900 | $44,400 | $0 | $0 | $0 |
| 2011 | $115,900 | $44,400 | $0 | $0 | $0 |
| 2010 | $95,000 | $44,400 | $0 | $0 | $0 |
| 2009 | $110,500 | $44,400 | $0 | $0 | $0 |
| 2008 | $110,500 | $44,400 | $0 | $0 | $0 |
| 2007 | $85,400 | $22,200 | $0 | $0 | $0 |
Deed and Sales History
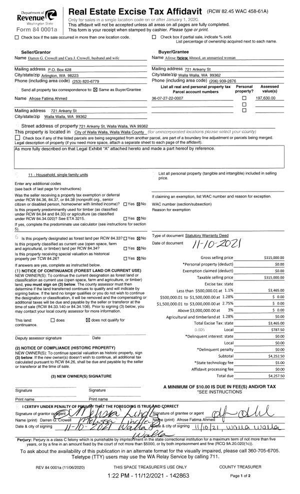
| 1 | 11/12/2021 | SWD | STATUTORY WARRANTY DEED | CROWELL DARREN G & CARA J | AHMED AFROSE | | | $315,000.00 | 142863 | 2021-13544 |
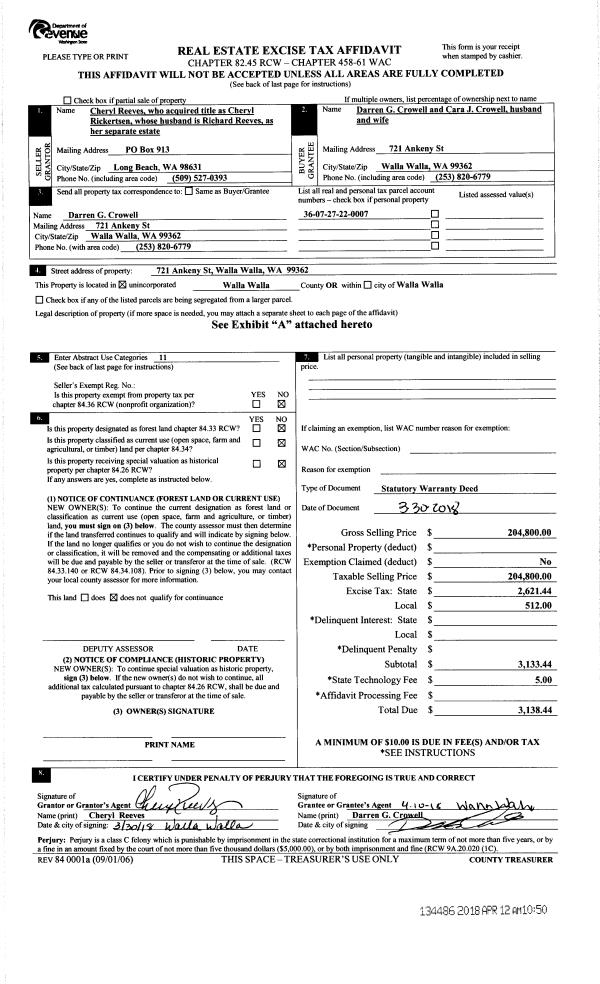
| 2 | 04/12/2018 | SWD | STATUTORY WARRANTY DEED | RICHERTSEN CHERYL | CROWELL DARREN G & CARA J | | | $204,800.00 | 134486 | 2018-02822 |
| 3 | 02/26/2002 | WARRANTY D | WARRANTY DEED | | | | | $112,500.00 | 98992 | 3290-202349 |
Payout Agreement
| No payout information available.. |