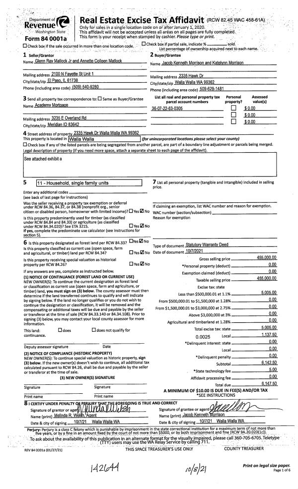
Property
Account |
| Property ID: | 9112 | Abbreviated Legal Description: | YELLOWHAWK CREEK SUBD PHASE 3 LOT 15 BLK 3 |
| Parcel Number: | 360722630305 | Agent Code: | |
| Type: | Real | | |
| Tax Area: | 1 - OL-140-F | Land Use Code | 11 |
| Open Space: | N | DFL | N |
| Historic Property: | N | Remodel Property: | N |
| Multi-Family Redevelopment: | N | | |
| Township: | 7 | Section: | 22 |
| Range: | 36 |
Location |
| Address: | 2335 HAWK DR WA 99362 | Mapsco: | |
| Neighborhood: | A-Superior SFR | Map ID: | |
| Neighborhood CD: | 413211 |
Owner |
| Name: | MORRISON JACOB KENNETH & KATELYNN | Owner ID: | 70380 |
| Mailing Address: | 2335 HAWK DR WALLA WALLA, WA 99362 | % Ownership: | 100.0000000000% |
| | | Exemptions: | |
Taxes and Assessment Details
Values
| (+) Improvement Homesite Value: | + | $0 | |
| (+) Improvement Non-Homesite Value: | + | $376,220 | |
| (+) Land Homesite Value: | + | $0 | |
| (+) Land Non-Homesite Value: | + | $80,000 | |
| (+) Curr Use (HS): | + | $0 | $0 |
| (+) Curr Use (NHS): | + | $0 | $0 |
| | | -------------------------- | |
| (=) Market Value: | = | $456,220 | |
| (–) Productivity Loss: | – | $0 | |
| | | -------------------------- | |
| (=) Subtotal: | = | $456,220 | |
| (+) Senior Appraised Value: | + | $0 | |
| (+) Non-Senior Appraised Value: | + | $456,220 | |
| | | -------------------------- | |
| (=) Total Appraised Value: | = | $456,220 | |
| (–) Senior Exemption Loss: | – | $0 | |
| (–) Exemption Loss: | – | $0 | |
| | | -------------------------- | |
| (=) Taxable Value: | = | $456,220 | |
Taxing Jurisdiction
| Owner: | MORRISON JACOB KENNETH & KATELYNN | | |
| % Ownership: | 100.0000000000% | | |
| Total Value: | $456,220 | | |
| Tax Area: | 1 - OL-140-F |
| CERFD | CURRENT EXPENSE REFUND 010 | 0.0000000000 | $456,220 | $456,220 | $0.00 | | |
| CURREXP | CURRENT EXPENSE 010 | 1.0175366760 | $456,220 | $456,220 | $464.22 | | |
| HUMNSERV | HUMAN SERVICES 119 | 0.0250000000 | $456,220 | $456,220 | $11.41 | | |
| SLDREL | SOLDIERS RELIEF 121 | 0.0155990005 | $456,220 | $456,220 | $7.12 | | |
| EMERGSER | EMS 147 | 0.3792580840 | $456,220 | $456,220 | $173.03 | | |
| EMSRFD | EMS REFUND 147 | 0.0000000000 | $456,220 | $456,220 | $0.00 | | |
| PORTRFD | PORT REFUND 640 | 0.0000000000 | $456,220 | $456,220 | $0.00 | | |
| PORTWWGEN | PORT OF WW 640 | 0.2460186015 | $456,220 | $456,220 | $112.24 | | |
| SD140BOND | SD #140 BOND 764 | 0.8342371393 | $456,220 | $456,220 | $380.60 | | |
| SD140GEN | SD #140 GENERAL 760 | 2.0646500647 | $456,220 | $456,220 | $941.93 | | |
| ST2 | STATE SCHOOL PART 2 600 | 0.8131451643 | $456,220 | $456,220 | $370.97 | | |
| STATESCHL | STATE SCHOOL 600 | 1.5158548041 | $456,220 | $456,220 | $691.56 | | |
| STREFUND | STATE REFUND LEVY 603 | 0.0000000000 | $456,220 | $456,220 | $0.00 | | |
| CWWBOND | C OF WW BOND 643 | 0.2760494372 | $456,220 | $456,220 | $125.94 | | |
| CWWGEN | CITY OF WW 631 | 1.6100204973 | $456,220 | $456,220 | $734.52 | | |
| CWWRFD | CITY OF WALLA WALLA REFUND 631 | 0.0000000000 | $456,220 | $456,220 | $0.00 | | |
| | Total Tax Rate: | 8.7973694689 | | | | | |
| | | | | Taxes w/Current Exemptions: | $4,013.54 | | |
| | | | | Taxes w/o Exemptions: | $4,013.54 | | |
Improvement / Building
| Improvement #1: | RESIDENTIAL | State Code: | 11 | 2280.0 sqft | Value: | $376,220 |
| Exterior Wall: | PLYWOOD | Heating/Cooling: | WARM & COOLED AIR | | Number of Bathrooms: | 2.5 | Number of Bedrooms: | 4 | | Plumbing: | 13 | Roof Covering: | COMP SHINGLE |
|
| | Type | Description | Class CD | Sub Class CD | Year Built | Area |
| | MA | Main Area | 2 | 35 | 2002 | 2280.0 |
| | GFP | GAS FIREPLACE | 2 | 35 | 0 | 1.0 |
| | SI1 | SITE IMPROVEMENT | 2 | 35 | 0 | 4.5 |
| | UPFL | Upper Floor (included in main area) | 2 | 35 | 2002 | 1300.0 |
| | ATG | Attached Garage | 2 | 35 | 2002 | 400.0 |
| | RPO | OPEN PORCH W/ROOF | 2 | 35 | 2002 | 210.0 |
| | TOOL | TOOL SHED | 2 | 35 | 2002 | 200.0 |
Sketch
Property Image
Land
| 1 | RES 1 | Converted: Residential | 0.1834 | 7990.00 | 0.00 | 0.00 | 1.00 | $80,000 | $0 |
Roll Value History
| 2026 | N/A | N/A | N/A | N/A | N/A |
| 2025 | $414,530 | $80,000 | $0 | $494,530 | $494,530 |
| 2024 | $395,030 | $80,000 | $0 | $475,030 | $475,030 |
| 2023 | $376,220 | $80,000 | $0 | $456,220 | $456,220 |
| 2022 | $395,410 | $50,000 | $0 | $445,410 | $445,410 |
| 2021 | $316,330 | $50,000 | $0 | $366,330 | $366,330 |
| 2020 | $247,130 | $50,000 | $0 | $297,130 | $297,130 |
| 2019 | $247,130 | $50,000 | $0 | $297,130 | $297,130 |
| 2018 | $224,660 | $50,000 | $0 | $274,660 | $274,660 |
| 2017 | $195,360 | $50,000 | $0 | $245,360 | $245,360 |
| 2016 | $195,360 | $40,000 | $0 | $235,360 | $235,360 |
| 2015 | $195,360 | $40,000 | $0 | $235,360 | $235,360 |
| 2014 | $177,600 | $40,000 | $0 | $217,600 | $217,600 |
| 2013 | $177,600 | $40,000 | $0 | $217,600 | $217,600 |
| 2012 | $177,600 | $40,000 | $0 | $0 | $0 |
| 2011 | $172,200 | $40,000 | $0 | $0 | $0 |
| 2010 | $162,100 | $40,000 | $0 | $0 | $0 |
| 2009 | $184,500 | $40,000 | $0 | $0 | $0 |
| 2008 | $184,500 | $40,000 | $0 | $0 | $0 |
| 2007 | $184,500 | $40,000 | $0 | $0 | $0 |
Deed and Sales History
| 1 | 10/08/2021 | SWD | STATUTORY WARRANTY DEED | MATLOCK GLENN RAY JR & ANNETTE COLLEEN | MORRISON JACOB KENNETH & KATELYNN | | | $455,000.00 | 142644 | 2021-12324 |
| 2 | 05/31/2005 | WARRANTY D | WARRANTY DEED | THOMAS, GLEN L & SONYA F | MATLOCK, GLENN RAY JR & ANNETT | | | $225,000.00 | 107614 | 2005-06569 |
| 3 | 06/14/2002 | WARRANTY D | WARRANTY DEED | | | | | $182,400.00 | 99717 | 2002-0006924 |
Payout Agreement
| No payout information available.. |