Property
Account |
| Property ID: | 9111 | Abbreviated Legal Description: | YELLOWHAWK CREEK SUBD PHASE 3 LOT 14 BLK 3 |
| Parcel Number: | 360722630304 | Agent Code: | |
| Type: | Real | | |
| Tax Area: | 1 - OL-140-F | Land Use Code | 11 |
| Open Space: | N | DFL | N |
| Historic Property: | N | Remodel Property: | N |
| Multi-Family Redevelopment: | N | | |
| Township: | 7 | Section: | 22 |
| Range: | 36 |
Location |
| Address: | 2337 HAWK DR WA 99362 | Mapsco: | |
| Neighborhood: | A-Superior SFR | Map ID: | |
| Neighborhood CD: | 413211 |
Owner |
| Name: | HARTLE CYNTHIA | Owner ID: | 59073 |
| Mailing Address: | 2337 HAWK DR WALLA WALLA, WA 99362 | % Ownership: | 100.0000000000% |
| | | Exemptions: | |
Taxes and Assessment Details
Property Tax Information as of
02/21/2026
Click on "Statement Details" to expand or collapse a tax statement.
* Please enter a valid date ** Please enter a valid date *
Statement Details |
| | TOTAL: | $0.00 | $0.00 | $0.00 | $0.00 | $0.00 | $0.00 |
|
| | $0.00 | $0.00 | $0.00 | $0.00 | $0.00 | $0.00 |
Values
| (+) Improvement Homesite Value: | + | $0 | |
| (+) Improvement Non-Homesite Value: | + | $332,250 | |
| (+) Land Homesite Value: | + | $0 | |
| (+) Land Non-Homesite Value: | + | $80,000 | |
| (+) Curr Use (HS): | + | $0 | $0 |
| (+) Curr Use (NHS): | + | $0 | $0 |
| | | -------------------------- | |
| (=) Market Value: | = | $412,250 | |
| (–) Productivity Loss: | – | $0 | |
| | | -------------------------- | |
| (=) Subtotal: | = | $412,250 | |
| (+) Senior Appraised Value: | + | $0 | |
| (+) Non-Senior Appraised Value: | + | $412,250 | |
| | | -------------------------- | |
| (=) Total Appraised Value: | = | $412,250 | |
| (–) Senior Exemption Loss: | – | $0 | |
| (–) Exemption Loss: | – | $0 | |
| | | -------------------------- | |
| (=) Taxable Value: | = | $412,250 | |
Taxing Jurisdiction
| Owner: | HARTLE CYNTHIA | | |
| % Ownership: | 100.0000000000% | | |
| Total Value: | $412,250 | | |
| Tax Area: | 1 - OL-140-F |
| CERFD | CURRENT EXPENSE REFUND 010 | 0.0000000000 | $412,250 | $412,250 | $0.00 | | |
| CURREXP | CURRENT EXPENSE 010 | 1.0175366760 | $412,250 | $412,250 | $419.48 | | |
| HUMNSERV | HUMAN SERVICES 119 | 0.0250000000 | $412,250 | $412,250 | $10.31 | | |
| SLDREL | SOLDIERS RELIEF 121 | 0.0155990005 | $412,250 | $412,250 | $6.43 | | |
| EMERGSER | EMS 147 | 0.3792580840 | $412,250 | $412,250 | $156.35 | | |
| EMSRFD | EMS REFUND 147 | 0.0000000000 | $412,250 | $412,250 | $0.00 | | |
| PORTRFD | PORT REFUND 640 | 0.0000000000 | $412,250 | $412,250 | $0.00 | | |
| PORTWWGEN | PORT OF WW 640 | 0.2460186015 | $412,250 | $412,250 | $101.42 | | |
| SD140BOND | SD #140 BOND 764 | 0.8342371393 | $412,250 | $412,250 | $343.91 | | |
| SD140GEN | SD #140 GENERAL 760 | 2.0646500647 | $412,250 | $412,250 | $851.15 | | |
| ST2 | STATE SCHOOL PART 2 600 | 0.8131451643 | $412,250 | $412,250 | $335.22 | | |
| STATESCHL | STATE SCHOOL 600 | 1.5158548041 | $412,250 | $412,250 | $624.91 | | |
| STREFUND | STATE REFUND LEVY 603 | 0.0000000000 | $412,250 | $412,250 | $0.00 | | |
| CWWBOND | C OF WW BOND 643 | 0.2760494372 | $412,250 | $412,250 | $113.80 | | |
| CWWGEN | CITY OF WW 631 | 1.6100204973 | $412,250 | $412,250 | $663.73 | | |
| CWWRFD | CITY OF WALLA WALLA REFUND 631 | 0.0000000000 | $412,250 | $412,250 | $0.00 | | |
| | Total Tax Rate: | 8.7973694689 | | | | | |
| | | | | Taxes w/Current Exemptions: | $3,626.71 | | |
| | | | | Taxes w/o Exemptions: | $3,626.71 | | |
Improvement / Building
| Improvement #1: | RESIDENTIAL | State Code: | 11 | 1890.0 sqft | Value: | $332,250 |
| Exterior Wall: | PLYWOOD | Foundation: | SLAB FOUNDATION | | Heating/Cooling: | WARM & COOLED AIR | Number of Bathrooms: | 2 | | Number of Bedrooms: | 3 | Plumbing: | 9 | | Roof Covering: | COMP SHINGLE |   |   |
|
| | Type | Description | Class CD | Sub Class CD | Year Built | Area |
| | MA | Main Area | 1 | 35 | 2002 | 1890.0 |
| | SI1 | SITE IMPROVEMENT | 1 | 35 | 0 | 4.5 |
| | ATG | Attached Garage | 1 | 35 | 2002 | 462.0 |
| | RPO | OPEN PORCH W/ROOF | 1 | 35 | 2002 | 60.0 |
| | CPC | COVERED CARPORT/PATIO | 1 | 35 | 2002 | 130.0 |
Sketch
Property Image
Land
| 1 | RES 1 | Converted: Residential | 0.1750 | 7625.00 | 0.00 | 0.00 | 1.00 | $80,000 | $0 |
Roll Value History
| 2026 | N/A | N/A | N/A | N/A | N/A |
| 2025 | $383,750 | $80,000 | $0 | $463,750 | $463,750 |
| 2024 | $348,860 | $80,000 | $0 | $428,860 | $428,860 |
| 2023 | $332,250 | $80,000 | $0 | $412,250 | $412,250 |
| 2022 | $357,130 | $50,000 | $0 | $407,130 | $407,130 |
| 2021 | $255,090 | $50,000 | $0 | $305,090 | $305,090 |
| 2020 | $231,900 | $50,000 | $0 | $281,900 | $281,900 |
| 2019 | $231,900 | $50,000 | $0 | $281,900 | $281,900 |
| 2018 | $209,860 | $50,000 | $0 | $259,860 | $259,860 |
| 2017 | $190,790 | $50,000 | $0 | $240,790 | $240,790 |
| 2016 | $190,790 | $40,000 | $0 | $230,790 | $221,700 |
| 2015 | $181,700 | $40,000 | $0 | $221,700 | $221,700 |
| 2014 | $181,700 | $40,000 | $0 | $221,700 | $221,700 |
| 2013 | $181,700 | $40,000 | $0 | $221,700 | $221,700 |
| 2012 | $181,700 | $40,000 | $0 | $0 | $0 |
| 2011 | $177,700 | $40,000 | $0 | $0 | $0 |
| 2010 | $163,500 | $40,000 | $0 | $0 | $0 |
| 2009 | $186,100 | $40,000 | $0 | $0 | $0 |
| 2008 | $156,600 | $40,000 | $0 | $0 | $0 |
| 2007 | $156,600 | $40,000 | $0 | $0 | $0 |
Deed and Sales History
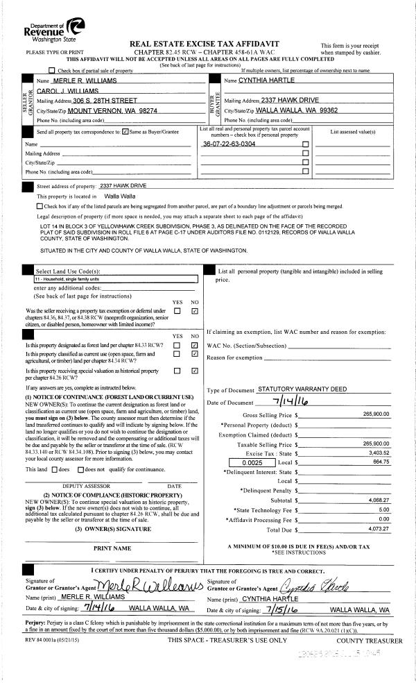
| 1 | 07/15/2016 | SWD | STATUTORY WARRANTY DEED | WILLIAMS MERLE R & CAROL J | HARTLE CYNTHIA | | | $265,900.00 | 130625 | 2016-05512 |
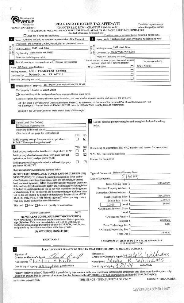
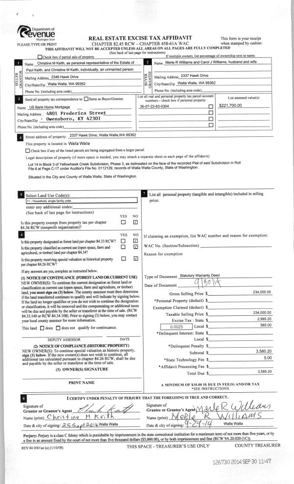
| 2 | 09/30/2014 | SWD | STATUTORY WARRANTY DEED | KEITH PAUL B ESTATE OF | WILLIAMS MERLE R & CAROL J | | | $234,000.00 | 126730 | 2014-07147 |
| 3 | 09/05/2007 | WARRANTY D | WARRANTY DEED | JACOBSON, SCOTT & BRIDGET K | KEITH, PAUL B & CHRISTINE M | | | $242,000.00 | 113648 | 2007-10430 |
| 4 | 05/14/2002 | WARRANTY D | WARRANTY DEED | | | | | $140,830.00 | 99498 | 2002-0005684 |
Payout Agreement
| No payout information available.. |