Property
Account |
| Property ID: | 9107 | Abbreviated Legal Description: | YELLOWHAWK CREEK SUBD PHASE 3 LOT 28 BLK 2 |
| Parcel Number: | 360722630202 | Agent Code: | |
| Type: | Real | | |
| Tax Area: | 1 - OL-140-F | Land Use Code | 11 |
| Open Space: | N | DFL | N |
| Historic Property: | N | Remodel Property: | N |
| Multi-Family Redevelopment: | N | | |
| Township: | 7 | Section: | 22 |
| Range: | 36 |
Location |
| Address: | 28 TALON LOOP WA 99362 | Mapsco: | |
| Neighborhood: | A-Superior SFR | Map ID: | |
| Neighborhood CD: | 413211 |
Owner |
| Name: | FRANK G COLEMAN IV LIVING TRUST | Owner ID: | 72426 |
| Mailing Address: | O'GRADY LIVING TRUST 28 TALON LOOP WALLA WALLA, WA 99362 | % Ownership: | 100.0000000000% |
| | | Exemptions: | |
Taxes and Assessment Details
Values
| (+) Improvement Homesite Value: | + | $0 | |
| (+) Improvement Non-Homesite Value: | + | $357,220 | |
| (+) Land Homesite Value: | + | $0 | |
| (+) Land Non-Homesite Value: | + | $80,000 | |
| (+) Curr Use (HS): | + | $0 | $0 |
| (+) Curr Use (NHS): | + | $0 | $0 |
| | | -------------------------- | |
| (=) Market Value: | = | $437,220 | |
| (–) Productivity Loss: | – | $0 | |
| | | -------------------------- | |
| (=) Subtotal: | = | $437,220 | |
| (+) Senior Appraised Value: | + | $0 | |
| (+) Non-Senior Appraised Value: | + | $437,220 | |
| | | -------------------------- | |
| (=) Total Appraised Value: | = | $437,220 | |
| (–) Senior Exemption Loss: | – | $0 | |
| (–) Exemption Loss: | – | $0 | |
| | | -------------------------- | |
| (=) Taxable Value: | = | $437,220 | |
Taxing Jurisdiction
| Owner: | FRANK G COLEMAN IV LIVING TRUST | | |
| % Ownership: | 100.0000000000% | | |
| Total Value: | $437,220 | | |
| Tax Area: | 1 - OL-140-F |
| CERFD | CURRENT EXPENSE REFUND 010 | 0.0000000000 | $437,220 | $437,220 | $0.00 | | |
| CURREXP | CURRENT EXPENSE 010 | 1.0175366760 | $437,220 | $437,220 | $444.89 | | |
| HUMNSERV | HUMAN SERVICES 119 | 0.0250000000 | $437,220 | $437,220 | $10.93 | | |
| SLDREL | SOLDIERS RELIEF 121 | 0.0155990005 | $437,220 | $437,220 | $6.82 | | |
| EMERGSER | EMS 147 | 0.3792580840 | $437,220 | $437,220 | $165.82 | | |
| EMSRFD | EMS REFUND 147 | 0.0000000000 | $437,220 | $437,220 | $0.00 | | |
| PORTRFD | PORT REFUND 640 | 0.0000000000 | $437,220 | $437,220 | $0.00 | | |
| PORTWWGEN | PORT OF WW 640 | 0.2460186015 | $437,220 | $437,220 | $107.56 | | |
| SD140BOND | SD #140 BOND 764 | 0.8342371393 | $437,220 | $437,220 | $364.75 | | |
| SD140GEN | SD #140 GENERAL 760 | 2.0646500647 | $437,220 | $437,220 | $902.71 | | |
| ST2 | STATE SCHOOL PART 2 600 | 0.8131451643 | $437,220 | $437,220 | $355.52 | | |
| STATESCHL | STATE SCHOOL 600 | 1.5158548041 | $437,220 | $437,220 | $662.76 | | |
| STREFUND | STATE REFUND LEVY 603 | 0.0000000000 | $437,220 | $437,220 | $0.00 | | |
| CWWBOND | C OF WW BOND 643 | 0.2760494372 | $437,220 | $437,220 | $120.69 | | |
| CWWGEN | CITY OF WW 631 | 1.6100204973 | $437,220 | $437,220 | $703.93 | | |
| CWWRFD | CITY OF WALLA WALLA REFUND 631 | 0.0000000000 | $437,220 | $437,220 | $0.00 | | |
| | Total Tax Rate: | 8.7973694689 | | | | | |
| | | | | Taxes w/Current Exemptions: | $3,846.38 | | |
| | | | | Taxes w/o Exemptions: | $3,846.38 | | |
Improvement / Building
| Improvement #1: | RESIDENTIAL | State Code: | 11 | 1876.0 sqft | Value: | $357,220 |
| Exterior Wall: | PLYWOOD | Heating/Cooling: | WARM & COOLED AIR | | Number of Bathrooms: | 2 | Number of Bedrooms: | 3 | | Plumbing: | 13 | Roof Covering: | COMP SHINGLE |
|
| | Type | Description | Class CD | Sub Class CD | Year Built | Area |
| | MA | Main Area | 1 | 35 | 2001 | 1876.0 |
| | GFP | GAS FIREPLACE | 1 | 35 | 0 | 1.0 |
| | SI1 | SITE IMPROVEMENT | 1 | 35 | 0 | 4.5 |
| | ATG | Attached Garage | 1 | 35 | 2001 | 441.0 |
| | RPC | OPEN PORCH W/ROOF , CEILED | 1 | 35 | 2001 | 20.0 |
| | TOOL | TOOL SHED | 1 | 35 | 2001 | 250.0 |
| | CPC | COVERED CARPORT/PATIO | 1 | 35 | 2001 | 277.0 |
| | WOD | Wood Deck | 1 | 35 | 2001 | 100.0 |
Sketch
Property Image
Land
| 1 | RES 1 | Converted: Residential | 0.2423 | 10555.00 | 0.00 | 0.00 | 1.00 | $80,000 | $0 |
Roll Value History
| 2026 | N/A | N/A | N/A | N/A | N/A |
| 2025 | $375,080 | $80,000 | $0 | $455,080 | $455,080 |
| 2024 | $357,220 | $80,000 | $0 | $437,220 | $437,220 |
| 2023 | $357,220 | $80,000 | $0 | $437,220 | $437,220 |
| 2022 | $357,170 | $50,000 | $0 | $407,170 | $407,170 |
| 2021 | $255,120 | $50,000 | $0 | $305,120 | $305,120 |
| 2020 | $231,930 | $50,000 | $0 | $281,930 | $281,930 |
| 2019 | $231,930 | $50,000 | $0 | $281,930 | $281,930 |
| 2018 | $201,680 | $50,000 | $0 | $251,680 | $251,680 |
| 2017 | $183,340 | $50,000 | $0 | $233,340 | $233,340 |
| 2016 | $183,340 | $40,000 | $0 | $223,340 | $223,340 |
| 2015 | $174,610 | $40,000 | $0 | $214,610 | $214,610 |
| 2014 | $183,800 | $40,000 | $0 | $223,800 | $223,800 |
| 2013 | $183,800 | $40,000 | $0 | $223,800 | $223,800 |
| 2012 | $183,800 | $40,000 | $0 | $0 | $0 |
| 2011 | $197,400 | $40,000 | $0 | $0 | $0 |
| 2010 | $186,100 | $40,000 | $0 | $0 | $0 |
| 2009 | $211,200 | $40,000 | $0 | $0 | $0 |
| 2008 | $178,400 | $40,000 | $0 | $0 | $0 |
| 2007 | $178,400 | $40,000 | $0 | $0 | $0 |
Deed and Sales History
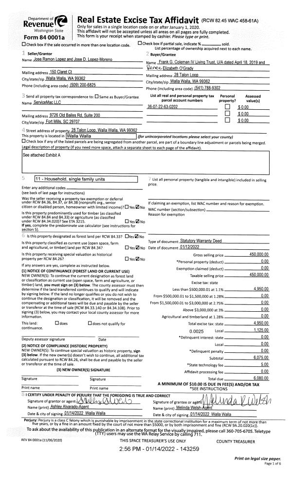
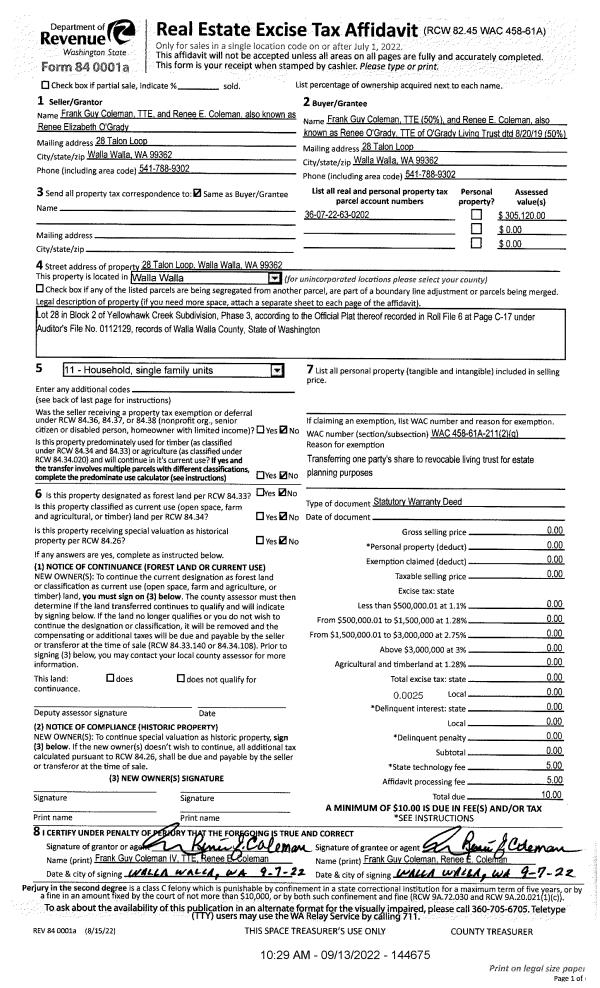
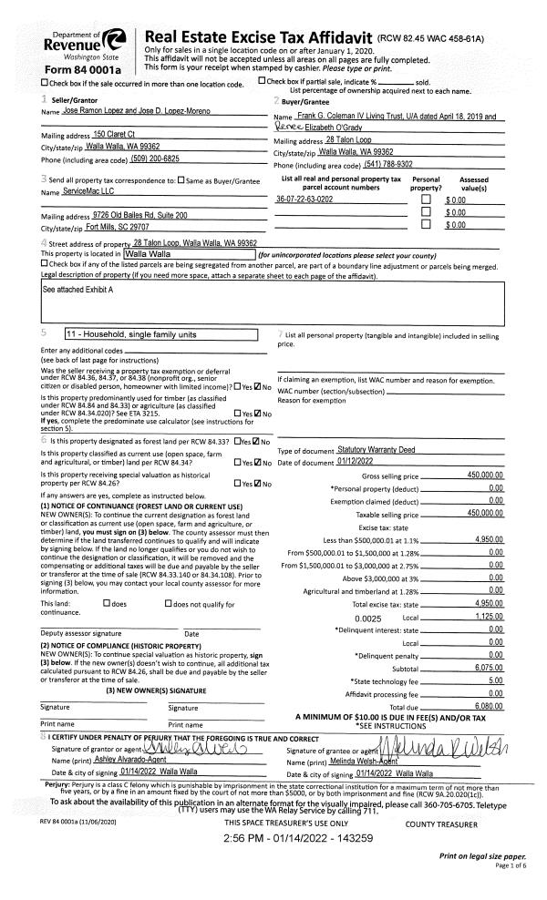
| 1 | 09/13/2022 | SWD | STATUTORY WARRANTY DEED | FRANK G COLEMAN IV LIVING TRUST | FRANK G COLEMAN IV LIVING TRUST | | | $0.00 | 144675 | 2022-07621 |
| 2 | 01/14/2022 | SWD | STATUTORY WARRANTY DEED | LOPEZ JOSE RAMON | FRANK G COLEMAN IV LIVING TRUST | | | $450,000.00 | 143259 | 2022-00515 |
| 3 | 12/03/2012 | QCD | QUIT CLAIM DEED | INES-LOPEZ, MARIA | LOPEZ-MORENO, JOSE D | | | $0.00 | 123088 | 2012-10730 |
| 4 | 12/03/2012 | WARRANTY D | WARRANTY DEED | KNAPP, JAMES W & SHARON L | LOPEZ, JOSE RAMON | | | $222,000.00 | 123089 | 2012-10731 |
| 5 | 05/06/2004 | WARRANTY D | WARRANTY DEED | KEITH, PAUL B & CHRISTINE | KNAPP, JAMES W & SHARON L | | | $205,000.00 | 104688 | 2004-04867 |
| 6 | 04/02/2002 | WARRANTY D | WARRANTY DEED | | | | | $157,651.00 | 99238 | 2002-0004057 |
Payout Agreement
| No payout information available.. |