Property
Account |
| Property ID: | 9102 | Abbreviated Legal Description: | YELLOWHAWK CREEK SUBD PHASE 2 LOT 3 BLK 3 |
| Parcel Number: | 360722620303 | Agent Code: | |
| Type: | Real | | |
| Tax Area: | 1 - OL-140-F | Land Use Code | 11 |
| Open Space: | N | DFL | N |
| Historic Property: | N | Remodel Property: | N |
| Multi-Family Redevelopment: | N | | |
| Township: | 7 | Section: | 22 |
| Range: | 36 |
Location |
| Address: | 57 TALON LOOP WA 99362 | Mapsco: | |
| Neighborhood: | A-Superior SFR | Map ID: | |
| Neighborhood CD: | 413211 |
Owner |
| Name: | ALLING LYNN HUDSON & FRANK JOHN KRAUSHAR | Owner ID: | 66275 |
| Mailing Address: | REVOCABLE LIVING TRUST 57 TALON LOOP WALLA WALLA, WA 99362 | % Ownership: | 100.0000000000% |
| | | Exemptions: | SNR/DSBL |
Taxes and Assessment Details
Values
| (+) Improvement Homesite Value: | + | $267,350 | |
| (+) Improvement Non-Homesite Value: | + | $0 | |
| (+) Land Homesite Value: | + | $80,000 | |
| (+) Land Non-Homesite Value: | + | $0 | |
| (+) Curr Use (HS): | + | $0 | $0 |
| (+) Curr Use (NHS): | + | $0 | $0 |
| | | -------------------------- | |
| (=) Market Value: | = | $347,350 | |
| (–) Productivity Loss: | – | $0 | |
| | | -------------------------- | |
| (=) Subtotal: | = | $347,350 | |
| (+) Senior Appraised Value: | + | $224,490 | |
| (+) Non-Senior Appraised Value: | + | $0 | |
| | | -------------------------- | |
| (=) Total Appraised Value: | = | $224,490 | |
| (–) Senior Exemption Loss: | – | $70,000 | |
| (–) Exemption Loss: | – | $0 | |
| | | -------------------------- | |
| (=) Taxable Value: | = | $154,490 | |
Taxing Jurisdiction
| Owner: | ALLING LYNN HUDSON & FRANK JOHN KRAUSHAR | | |
| % Ownership: | 100.0000000000% | | |
| Total Value: | $347,350 | | |
| Tax Area: | 1 - OL-140-F |
| CERFD | CURRENT EXPENSE REFUND 010 | 0.0000000000 | $347,350 | $154,490 | $0.00 | | |
| CURREXP | CURRENT EXPENSE 010 | 1.0175366760 | $347,350 | $154,490 | $219.40 | | |
| HUMNSERV | HUMAN SERVICES 119 | 0.0250000000 | $347,350 | $154,490 | $5.39 | | |
| SLDREL | SOLDIERS RELIEF 121 | 0.0155990005 | $347,350 | $154,490 | $3.36 | | |
| EMERGSER | EMS 147 | 0.3792580840 | $347,350 | $154,490 | $81.77 | | |
| EMSRFD | EMS REFUND 147 | 0.0000000000 | $347,350 | $154,490 | $0.00 | | |
| PORTRFD | PORT REFUND 640 | 0.0000000000 | $347,350 | $154,490 | $0.00 | | |
| PORTWWGEN | PORT OF WW 640 | 0.2460186015 | $347,350 | $154,490 | $53.05 | | |
| SD140BOND | SD #140 BOND 764 | 0.0000000000 | $347,350 | $0 | $91.84 | | |
| SD140GEN | SD #140 GENERAL 760 | 0.0000000000 | $347,350 | $0 | $227.30 | | |
| ST2 | STATE SCHOOL PART 2 600 | 0.0000000000 | $347,350 | $0 | $89.52 | | |
| STATESCHL | STATE SCHOOL 600 | 1.5158548041 | $347,350 | $154,490 | $326.84 | | |
| STREFUND | STATE REFUND LEVY 603 | 0.0000000000 | $347,350 | $154,490 | $0.00 | | |
| CWWBOND | C OF WW BOND 643 | 0.0000000000 | $347,350 | $0 | $30.39 | | |
| CWWGEN | CITY OF WW 631 | 1.6100204973 | $347,350 | $154,490 | $347.14 | | |
| CWWRFD | CITY OF WALLA WALLA REFUND 631 | 0.0000000000 | $347,350 | $154,490 | $0.00 | | |
| | Total Tax Rate: | 4.8092876634 | | | | | |
| | | | | Taxes w/Current Exemptions: | $1,476.00 | | |
| | | | | Taxes w/o Exemptions: | $3,055.77 | | |
Improvement / Building
| Improvement #1: | RESIDENTIAL | State Code: | 11 | 1400.0 sqft | Value: | $267,350 |
| Exterior Wall: | PLYWOOD | Heating/Cooling: | WARM & COOLED AIR | | Number of Bathrooms: | 2 | Number of Bedrooms: | 2 | | Plumbing: | 10 | Roof Covering: | COMP SHINGLE |
|
| | Type | Description | Class CD | Sub Class CD | Year Built | Area |
| | MA | Main Area | 1 | 35 | 2001 | 1400.0 |
| | GFP | GAS FIREPLACE | 1 | 35 | 0 | 1.0 |
| | SI1 | SITE IMPROVEMENT | 1 | 35 | 0 | 3.0 |
| | ATG | Attached Garage | 1 | 35 | 2001 | 440.0 |
| | RPO | OPEN PORCH W/ROOF | 1 | 35 | 2001 | 56.0 |
Sketch
Property Image
Land
| 1 | RES 1 | Converted: Residential | 0.1656 | 7215.00 | 0.00 | 0.00 | 1.00 | $80,000 | $0 |
Roll Value History
| 2026 | N/A | N/A | N/A | N/A | N/A |
| 2025 | $323,490 | $80,000 | $0 | $403,490 | $403,490 |
| 2024 | $294,090 | $80,000 | $0 | $374,090 | $374,090 |
| 2023 | $267,350 | $80,000 | $0 | $347,350 | $154,490 |
| 2022 | $260,870 | $50,000 | $0 | $310,870 | $224,490 |
| 2021 | $200,670 | $50,000 | $0 | $250,670 | $224,490 |
| 2020 | $174,490 | $50,000 | $0 | $224,490 | $224,490 |
| 2019 | $174,490 | $50,000 | $0 | $224,490 | $224,490 |
| 2018 | $158,630 | $50,000 | $0 | $208,630 | $208,630 |
| 2017 | $158,630 | $50,000 | $0 | $208,630 | $208,630 |
| 2016 | $158,630 | $40,000 | $0 | $198,630 | $198,630 |
| 2015 | $137,940 | $40,000 | $0 | $177,940 | $177,940 |
| 2014 | $145,200 | $40,000 | $0 | $185,200 | $185,200 |
| 2013 | $145,200 | $40,000 | $0 | $185,200 | $185,200 |
| 2012 | $145,200 | $40,000 | $0 | $0 | $0 |
| 2011 | $156,800 | $40,000 | $0 | $0 | $0 |
| 2010 | $125,300 | $40,000 | $0 | $0 | $0 |
| 2009 | $143,700 | $40,000 | $0 | $0 | $0 |
| 2008 | $119,700 | $40,000 | $0 | $0 | $0 |
| 2007 | $119,700 | $40,000 | $0 | $0 | $0 |
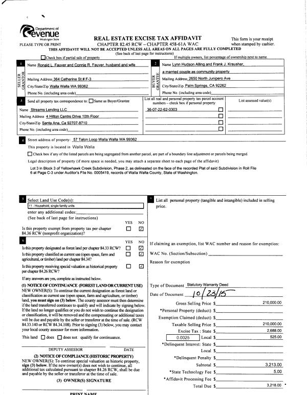
Deed and Sales History
| 1 | 09/11/2024 | SWD | STATUTORY WARRANTY DEED | ALLING LYNN HUDSON & FRANK JOHN KRAUSHAR | HANSEN JODI M | | | $425,000.00 | 148176 | 2024-05150 |
| 2 | 11/20/2019 | QCD | QUIT CLAIM DEED | ALLING LYNN HUDSON | ALLING LYNN HUDSON & FRANK JOHN KRAUSHAR | | | $0.00 | 138117 | 2019-09612 |
| 3 | 10/28/2015 | SWD | STATUTORY WARRANTY DEED | FAUVER RONALD L & CONNIE R | ALLING LYNN HUDSON | | | $210,000.00 | 129091 | 2015-09460 |
| 4 | 05/14/2001 | WARRANTY D | WARRANTY DEED | | | | | $105,000.00 | 97155 | 3130-104882 |
Payout Agreement
| No payout information available.. |