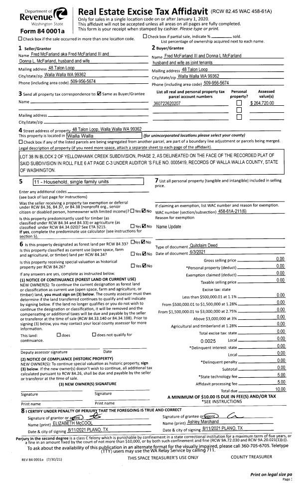
Property
Account |
| Property ID: | 9093 | Abbreviated Legal Description: | YELLOWHAWK CREEK SUBD PHASE 2 LOT 38 BLK 2 |
| Parcel Number: | 360722620207 | Agent Code: | |
| Type: | Real | | |
| Tax Area: | 1 - OL-140-F | Land Use Code | 11 |
| Open Space: | N | DFL | N |
| Historic Property: | N | Remodel Property: | N |
| Multi-Family Redevelopment: | N | | |
| Township: | 7 | Section: | 22 |
| Range: | 36 |
Location |
| Address: | 48 TALON LOOP WA 99362 | Mapsco: | |
| Neighborhood: | A-Superior SFR | Map ID: | |
| Neighborhood CD: | 413211 |
Owner |
| Name: | MCFARLAND FRED III & DONNA L | Owner ID: | 69954 |
| Mailing Address: | 48 TALOON LOOP WALLA WALLA, WA 99362 | % Ownership: | 100.0000000000% |
| | | Exemptions: | |
Taxes and Assessment Details
Values
| (+) Improvement Homesite Value: | + | $0 | |
| (+) Improvement Non-Homesite Value: | + | $286,170 | |
| (+) Land Homesite Value: | + | $0 | |
| (+) Land Non-Homesite Value: | + | $80,000 | |
| (+) Curr Use (HS): | + | $0 | $0 |
| (+) Curr Use (NHS): | + | $0 | $0 |
| | | -------------------------- | |
| (=) Market Value: | = | $366,170 | |
| (–) Productivity Loss: | – | $0 | |
| | | -------------------------- | |
| (=) Subtotal: | = | $366,170 | |
| (+) Senior Appraised Value: | + | $0 | |
| (+) Non-Senior Appraised Value: | + | $366,170 | |
| | | -------------------------- | |
| (=) Total Appraised Value: | = | $366,170 | |
| (–) Senior Exemption Loss: | – | $0 | |
| (–) Exemption Loss: | – | $0 | |
| | | -------------------------- | |
| (=) Taxable Value: | = | $366,170 | |
Taxing Jurisdiction
| Owner: | MCFARLAND FRED III & DONNA L | | |
| % Ownership: | 100.0000000000% | | |
| Total Value: | $366,170 | | |
| Tax Area: | 1 - OL-140-F |
| CERFD | CURRENT EXPENSE REFUND 010 | 0.0000000000 | $366,170 | $366,170 | $0.00 | | |
| CURREXP | CURRENT EXPENSE 010 | 1.0175366760 | $366,170 | $366,170 | $372.59 | | |
| HUMNSERV | HUMAN SERVICES 119 | 0.0250000000 | $366,170 | $366,170 | $9.15 | | |
| SLDREL | SOLDIERS RELIEF 121 | 0.0155990005 | $366,170 | $366,170 | $5.71 | | |
| EMERGSER | EMS 147 | 0.3792580840 | $366,170 | $366,170 | $138.87 | | |
| EMSRFD | EMS REFUND 147 | 0.0000000000 | $366,170 | $366,170 | $0.00 | | |
| PORTRFD | PORT REFUND 640 | 0.0000000000 | $366,170 | $366,170 | $0.00 | | |
| PORTWWGEN | PORT OF WW 640 | 0.2460186015 | $366,170 | $366,170 | $90.08 | | |
| SD140BOND | SD #140 BOND 764 | 0.8342371393 | $366,170 | $366,170 | $305.47 | | |
| SD140GEN | SD #140 GENERAL 760 | 2.0646500647 | $366,170 | $366,170 | $756.01 | | |
| ST2 | STATE SCHOOL PART 2 600 | 0.8131451643 | $366,170 | $366,170 | $297.75 | | |
| STATESCHL | STATE SCHOOL 600 | 1.5158548041 | $366,170 | $366,170 | $555.06 | | |
| STREFUND | STATE REFUND LEVY 603 | 0.0000000000 | $366,170 | $366,170 | $0.00 | | |
| CWWBOND | C OF WW BOND 643 | 0.2760494372 | $366,170 | $366,170 | $101.08 | | |
| CWWGEN | CITY OF WW 631 | 1.6100204973 | $366,170 | $366,170 | $589.54 | | |
| CWWRFD | CITY OF WALLA WALLA REFUND 631 | 0.0000000000 | $366,170 | $366,170 | $0.00 | | |
| | Total Tax Rate: | 8.7973694689 | | | | | |
| | | | | Taxes w/Current Exemptions: | $3,221.31 | | |
| | | | | Taxes w/o Exemptions: | $3,221.31 | | |
Improvement / Building
| Improvement #1: | RESIDENTIAL | State Code: | 11 | 1500.0 sqft | Value: | $286,170 |
| Exterior Wall: | HARDBOARD | Heating/Cooling: | WARM & COOLED AIR | | Number of Bathrooms: | 2 | Number of Bedrooms: | 3 | | Plumbing: | 9 | Roof Covering: | COMP SHINGLE |
|
| | Type | Description | Class CD | Sub Class CD | Year Built | Area |
| | MA | Main Area | 1 | 35 | 2001 | 1500.0 |
| | SI1 | SITE IMPROVEMENT | 1 | 35 | 0 | 3.5 |
| | ATG | Attached Garage | 1 | 35 | 2001 | 400.0 |
| | RPO | OPEN PORCH W/ROOF | 1 | 35 | 2001 | 56.0 |
Sketch
Property Image
Land
| 1 | RES 1 | Converted: Residential | 0.1662 | 7240.00 | 0.00 | 0.00 | 1.00 | $80,000 | $0 |
Roll Value History
| 2026 | N/A | N/A | N/A | N/A | N/A |
| 2025 | $330,530 | $80,000 | $0 | $410,530 | $410,530 |
| 2024 | $300,480 | $80,000 | $0 | $380,480 | $380,480 |
| 2023 | $286,170 | $80,000 | $0 | $366,170 | $366,170 |
| 2022 | $268,390 | $50,000 | $0 | $318,390 | $318,390 |
| 2021 | $214,720 | $50,000 | $0 | $264,720 | $264,720 |
| 2020 | $186,710 | $50,000 | $0 | $236,710 | $236,710 |
| 2019 | $186,710 | $50,000 | $0 | $236,710 | $236,710 |
| 2018 | $174,490 | $50,000 | $0 | $224,490 | $224,490 |
| 2017 | $158,630 | $50,000 | $0 | $208,630 | $208,630 |
| 2016 | $158,630 | $40,000 | $0 | $198,630 | $198,630 |
| 2015 | $144,210 | $40,000 | $0 | $184,210 | $184,210 |
| 2014 | $151,800 | $40,000 | $0 | $191,800 | $191,800 |
| 2013 | $151,800 | $40,000 | $0 | $191,800 | $191,800 |
| 2012 | $151,800 | $40,000 | $0 | $0 | $0 |
| 2011 | $160,600 | $40,000 | $0 | $0 | $0 |
| 2010 | $151,000 | $40,000 | $0 | $0 | $0 |
| 2009 | $172,200 | $40,000 | $0 | $0 | $0 |
| 2008 | $144,500 | $40,000 | $0 | $0 | $0 |
| 2007 | $144,500 | $40,000 | $0 | $0 | $0 |
Deed and Sales History
| 1 | 06/03/2021 | QCD | QUIT CLAIM DEED | MC FARLAND FRED & DONNA L | MCFARLAND FRED III & DONNA L | | | | 141922 | 2021-09758 |
| 2 | 06/29/2005 | WARRANTY D | WARRANTY DEED | SOTELO, FRANK S & JANIE | MC FARLAND, FRED & DONNA L | | | $189,000.00 | 107827 | 2005-07859 |
| 3 | 11/26/2001 | WARRANTY D | WARRANTY DEED | | | | | $122,000.00 | 98403 | 3230-112805 |
Payout Agreement
| No payout information available.. |