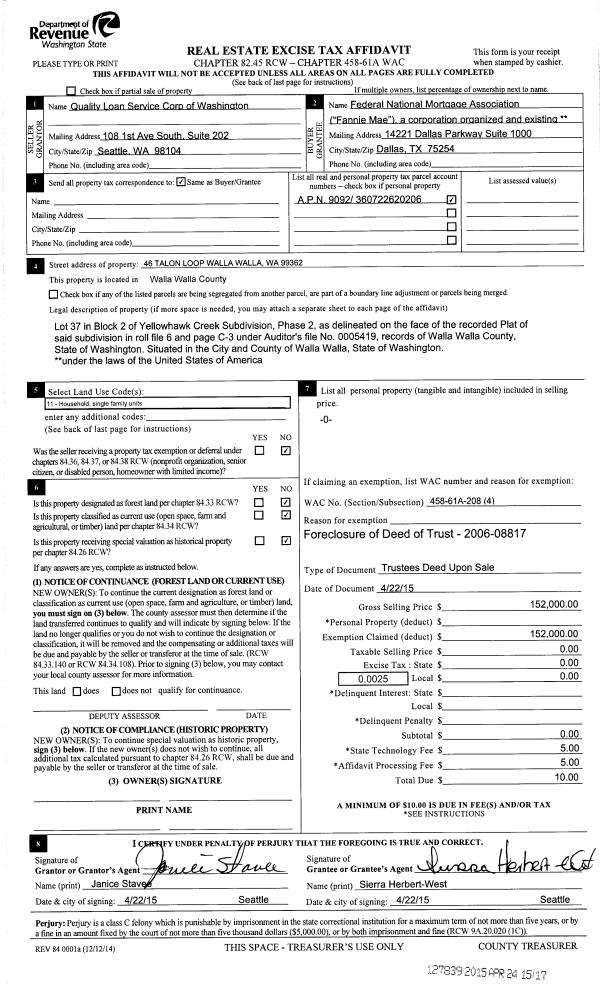
Property
Account |
| Property ID: | 9092 | Abbreviated Legal Description: | YELLOWHAWK CREEK SUBD PHASE 2 LOT 37 BLK 2 |
| Parcel Number: | 360722620206 | Agent Code: | |
| Type: | Real | | |
| Tax Area: | 1 - OL-140-F | Land Use Code | 11 |
| Open Space: | N | DFL | N |
| Historic Property: | N | Remodel Property: | N |
| Multi-Family Redevelopment: | N | | |
| Township: | 7 | Section: | 22 |
| Range: | 36 |
Location |
| Address: | 46 TALON LOOP WA 99362 | Mapsco: | |
| Neighborhood: | A-Superior SFR | Map ID: | |
| Neighborhood CD: | 413211 |
Owner |
| Name: | RIVERA JULIETA BANTE | Owner ID: | 67470 |
| Mailing Address: | 46 TALON LOOP WALLA WALLA, WA 99362 | % Ownership: | 100.0000000000% |
| | | Exemptions: | |
Taxes and Assessment Details
Values
| (+) Improvement Homesite Value: | + | $0 | |
| (+) Improvement Non-Homesite Value: | + | $238,050 | |
| (+) Land Homesite Value: | + | $0 | |
| (+) Land Non-Homesite Value: | + | $80,000 | |
| (+) Curr Use (HS): | + | $0 | $0 |
| (+) Curr Use (NHS): | + | $0 | $0 |
| | | -------------------------- | |
| (=) Market Value: | = | $318,050 | |
| (–) Productivity Loss: | – | $0 | |
| | | -------------------------- | |
| (=) Subtotal: | = | $318,050 | |
| (+) Senior Appraised Value: | + | $0 | |
| (+) Non-Senior Appraised Value: | + | $318,050 | |
| | | -------------------------- | |
| (=) Total Appraised Value: | = | $318,050 | |
| (–) Senior Exemption Loss: | – | $0 | |
| (–) Exemption Loss: | – | $0 | |
| | | -------------------------- | |
| (=) Taxable Value: | = | $318,050 | |
Taxing Jurisdiction
| Owner: | RIVERA JULIETA BANTE | | |
| % Ownership: | 100.0000000000% | | |
| Total Value: | $318,050 | | |
| Tax Area: | 1 - OL-140-F |
| CERFD | CURRENT EXPENSE REFUND 010 | 0.0000000000 | $318,050 | $318,050 | $0.00 | | |
| CURREXP | CURRENT EXPENSE 010 | 1.0175366760 | $318,050 | $318,050 | $323.63 | | |
| HUMNSERV | HUMAN SERVICES 119 | 0.0250000000 | $318,050 | $318,050 | $7.95 | | |
| SLDREL | SOLDIERS RELIEF 121 | 0.0155990005 | $318,050 | $318,050 | $4.96 | | |
| EMERGSER | EMS 147 | 0.3792580840 | $318,050 | $318,050 | $120.62 | | |
| EMSRFD | EMS REFUND 147 | 0.0000000000 | $318,050 | $318,050 | $0.00 | | |
| PORTRFD | PORT REFUND 640 | 0.0000000000 | $318,050 | $318,050 | $0.00 | | |
| PORTWWGEN | PORT OF WW 640 | 0.2460186015 | $318,050 | $318,050 | $78.25 | | |
| SD140BOND | SD #140 BOND 764 | 0.8342371393 | $318,050 | $318,050 | $265.33 | | |
| SD140GEN | SD #140 GENERAL 760 | 2.0646500647 | $318,050 | $318,050 | $656.66 | | |
| ST2 | STATE SCHOOL PART 2 600 | 0.8131451643 | $318,050 | $318,050 | $258.62 | | |
| STATESCHL | STATE SCHOOL 600 | 1.5158548041 | $318,050 | $318,050 | $482.12 | | |
| STREFUND | STATE REFUND LEVY 603 | 0.0000000000 | $318,050 | $318,050 | $0.00 | | |
| CWWBOND | C OF WW BOND 643 | 0.2760494372 | $318,050 | $318,050 | $87.80 | | |
| CWWGEN | CITY OF WW 631 | 1.6100204973 | $318,050 | $318,050 | $512.07 | | |
| CWWRFD | CITY OF WALLA WALLA REFUND 631 | 0.0000000000 | $318,050 | $318,050 | $0.00 | | |
| | Total Tax Rate: | 8.7973694689 | | | | | |
| | | | | Taxes w/Current Exemptions: | $2,798.01 | | |
| | | | | Taxes w/o Exemptions: | $2,798.01 | | |
Improvement / Building
| Improvement #1: | RESIDENTIAL | State Code: | 11 | 1224.0 sqft | Value: | $238,050 |
| Exterior Wall: | HARDBOARD | Heating/Cooling: | WARM & COOLED AIR | | Number of Bathrooms: | 2 | Number of Bedrooms: | 3 | | Plumbing: | 9 | Roof Covering: | COMP SHINGLE |
|
| | Type | Description | Class CD | Sub Class CD | Year Built | Area |
| | MA | Main Area | 1 | 30 | 2000 | 1224.0 |
| | SI1 | SITE IMPROVEMENT | 1 | 30 | 0 | 2.5 |
| | ATG | Attached Garage | 1 | 30 | 2000 | 440.0 |
| | RPO | OPEN PORCH W/ROOF | 1 | 30 | 2000 | 56.0 |
| | TOOL | TOOL SHED | 1 | 30 | 2006 | 120.0 |
| | CPC | COVERED CARPORT/PATIO | 1 | 30 | 2000 | 144.0 |
Sketch
Property Image
Land
| 1 | RES 1 | Converted: Residential | 0.1752 | 7630.00 | 0.00 | 0.00 | 1.00 | $80,000 | $0 |
Roll Value History
| 2026 | N/A | N/A | N/A | N/A | N/A |
| 2025 | $288,040 | $80,000 | $0 | $368,040 | $368,040 |
| 2024 | $261,860 | $80,000 | $0 | $341,860 | $341,860 |
| 2023 | $238,050 | $80,000 | $0 | $318,050 | $318,050 |
| 2022 | $220,780 | $50,000 | $0 | $270,780 | $270,780 |
| 2021 | $176,630 | $50,000 | $0 | $226,630 | $226,630 |
| 2020 | $153,590 | $50,000 | $0 | $203,590 | $203,590 |
| 2019 | $153,590 | $50,000 | $0 | $203,590 | $203,590 |
| 2018 | $131,270 | $50,000 | $0 | $181,270 | $181,270 |
| 2017 | $125,020 | $50,000 | $0 | $175,020 | $175,020 |
| 2016 | $125,020 | $40,000 | $0 | $165,020 | $165,020 |
| 2015 | $125,020 | $40,000 | $0 | $165,020 | $165,020 |
| 2014 | $131,600 | $40,000 | $0 | $171,600 | $171,600 |
| 2013 | $131,600 | $40,000 | $0 | $171,600 | $171,600 |
| 2012 | $131,600 | $40,000 | $0 | $0 | $0 |
| 2011 | $139,800 | $40,000 | $0 | $0 | $0 |
| 2010 | $131,200 | $40,000 | $0 | $0 | $0 |
| 2009 | $150,200 | $40,000 | $0 | $0 | $0 |
| 2008 | $125,400 | $40,000 | $0 | $0 | $0 |
| 2007 | $125,400 | $40,000 | $0 | $0 | $0 |
Deed and Sales History
| 1 | 06/22/2020 | QCD | QUIT CLAIM DEED | RIVERA KEVIN BANTE & JULIETA BANTE | RIVERA JULIETA BANTE | | | $76,060.00 | 139328 | 2020-05744 |
| 2 | 10/23/2015 | SWP | Special Warranty Deed | FEDERAL NATIONAL MORTGAGE ASSOC | RIVERA KEVIN BANTE & JULIETA BANTE | | | $167,900.00 | 129066 | 2015-09288 |
| 3 | 04/24/2015 | TRUSTEES D | TRUSTEE'S DEED | JONES WENDY E | FEDERAL NATIONAL MORTGAGE ASSOC | | | $152,000.00 | 127839 | 2015-03349 |
| 4 | 07/27/2006 | WARRANTY D | WARRANTY DEED | WOLD, GREGORY E | JONES, WENDY E | | | $194,400.00 | 110815 | 2006-08816 |
| 5 | 10/31/2005 | WARRANTY D | WARRANTY DEED | WELTER, SHELLEY M | WOLD, GREGORY E | | | $165,900.00 | 108904 | 2005-13733 |
| 6 | 12/29/2004 | QCD | QUIT CLAIM DEED | WELTER, MARK N & SHELLEY M | WELTER, SHELLEY M | | | | 106518 | 2004-14937 |
| 7 | 12/29/2004 | WARRANTY D | WARRANTY DEED | MORGAN, JASON E & DEYLENE | WELTER, SHELLEY M | | | $145,000.00 | 106519 | 2004-14938 |
| 8 | 05/14/2001 | WARRANTY D | WARRANTY DEED | | | | | $102,000.00 | 97168 | 3130-104996 |
Payout Agreement
| No payout information available.. |