Property
Account |
| Property ID: | 9074 | Abbreviated Legal Description: | SUN BAR LOT 10 BLK 4 |
| Parcel Number: | 360722570410 | Agent Code: | |
| Type: | Real | | |
| Tax Area: | 1 - OL-140-F | Land Use Code | 11 |
| Open Space: | N | DFL | N |
| Historic Property: | N | Remodel Property: | N |
| Multi-Family Redevelopment: | N | | |
| Township: | 7 | Section: | 22 |
| Range: | 36 |
Location |
| Address: | 1925 WHITMAN ST WA 99362 | Mapsco: | |
| Neighborhood: | A SFR | Map ID: | |
| Neighborhood CD: | 413011 |
Owner |
| Name: | SCHADE ASHLEY L | Owner ID: | 59652 |
| Mailing Address: | 1925 WHITMAN ST WALLA WALLA, WA 99362 | % Ownership: | 100.0000000000% |
| | | Exemptions: | |
Taxes and Assessment Details
Property Tax Information as of
02/21/2026
Click on "Statement Details" to expand or collapse a tax statement.
* Please enter a valid date ** Please enter a valid date *
Statement Details |
| | TOTAL: | $0.00 | $0.00 | $0.00 | $0.00 | $0.00 | $0.00 |
|
| | $0.00 | $0.00 | $0.00 | $0.00 | $0.00 | $0.00 |
Values
| (+) Improvement Homesite Value: | + | $0 | |
| (+) Improvement Non-Homesite Value: | + | $299,270 | |
| (+) Land Homesite Value: | + | $0 | |
| (+) Land Non-Homesite Value: | + | $77,440 | |
| (+) Curr Use (HS): | + | $0 | $0 |
| (+) Curr Use (NHS): | + | $0 | $0 |
| | | -------------------------- | |
| (=) Market Value: | = | $376,710 | |
| (–) Productivity Loss: | – | $0 | |
| | | -------------------------- | |
| (=) Subtotal: | = | $376,710 | |
| (+) Senior Appraised Value: | + | $0 | |
| (+) Non-Senior Appraised Value: | + | $376,710 | |
| | | -------------------------- | |
| (=) Total Appraised Value: | = | $376,710 | |
| (–) Senior Exemption Loss: | – | $0 | |
| (–) Exemption Loss: | – | $0 | |
| | | -------------------------- | |
| (=) Taxable Value: | = | $376,710 | |
Taxing Jurisdiction
| Owner: | SCHADE ASHLEY L | | |
| % Ownership: | 100.0000000000% | | |
| Total Value: | $376,710 | | |
| Tax Area: | 1 - OL-140-F |
| CERFD | CURRENT EXPENSE REFUND 010 | 0.0000000000 | $376,710 | $376,710 | $0.00 | | |
| CURREXP | CURRENT EXPENSE 010 | 1.0175366760 | $376,710 | $376,710 | $383.32 | | |
| HUMNSERV | HUMAN SERVICES 119 | 0.0250000000 | $376,710 | $376,710 | $9.42 | | |
| SLDREL | SOLDIERS RELIEF 121 | 0.0155990005 | $376,710 | $376,710 | $5.88 | | |
| EMERGSER | EMS 147 | 0.3792580840 | $376,710 | $376,710 | $142.87 | | |
| EMSRFD | EMS REFUND 147 | 0.0000000000 | $376,710 | $376,710 | $0.00 | | |
| PORTRFD | PORT REFUND 640 | 0.0000000000 | $376,710 | $376,710 | $0.00 | | |
| PORTWWGEN | PORT OF WW 640 | 0.2460186015 | $376,710 | $376,710 | $92.68 | | |
| SD140BOND | SD #140 BOND 764 | 0.8342371393 | $376,710 | $376,710 | $314.27 | | |
| SD140GEN | SD #140 GENERAL 760 | 2.0646500647 | $376,710 | $376,710 | $777.77 | | |
| ST2 | STATE SCHOOL PART 2 600 | 0.8131451643 | $376,710 | $376,710 | $306.32 | | |
| STATESCHL | STATE SCHOOL 600 | 1.5158548041 | $376,710 | $376,710 | $571.04 | | |
| STREFUND | STATE REFUND LEVY 603 | 0.0000000000 | $376,710 | $376,710 | $0.00 | | |
| CWWBOND | C OF WW BOND 643 | 0.2760494372 | $376,710 | $376,710 | $103.99 | | |
| CWWGEN | CITY OF WW 631 | 1.6100204973 | $376,710 | $376,710 | $606.51 | | |
| CWWRFD | CITY OF WALLA WALLA REFUND 631 | 0.0000000000 | $376,710 | $376,710 | $0.00 | | |
| | Total Tax Rate: | 8.7973694689 | | | | | |
| | | | | Taxes w/Current Exemptions: | $3,314.07 | | |
| | | | | Taxes w/o Exemptions: | $3,314.07 | | |
Improvement / Building
| Improvement #1: | RESIDENTIAL | State Code: | 11 | 1535.0 sqft | Value: | $299,270 |
| Exterior Wall: | SIDING | Heating/Cooling: | HEAT PUMP | | Number of Bathrooms: | 3 | Number of Bedrooms: | 4 | | Plumbing: | 12 | Roof Covering: | COMP SHINGLE |
|
| | Type | Description | Class CD | Sub Class CD | Year Built | Area |
| | MA | Main Area | 1 | 40 | 1980 | 1535.0 |
| | CPC | COVERED CARPORT/PATIO | 1 | 40 | 0 | 120.0 |
| | SI1 | SITE IMPROVEMENT | 1 | 40 | 0 | 3.5 |
| | ATG | Attached Garage | 1 | 40 | 1980 | 462.0 |
| | OSP | Open | 1 | 40 | 1980 | 20.0 |
| | S1F | Single One Story Fireplace | 1 | 40 | 1980 | 1.0 |
| | UTST | Utility Storage Shed | 1 | 40 | 1980 | 528.0 |
Sketch
Property Image
Land
| 1 | RES 1 | Converted: Residential | 0.2222 | 9680.00 | 0.00 | 0.00 | 1.00 | $77,440 | $0 |
Roll Value History
| 2026 | N/A | N/A | N/A | N/A | N/A |
| 2025 | $314,230 | $77,440 | $0 | $391,670 | $391,670 |
| 2024 | $299,270 | $77,440 | $0 | $376,710 | $376,710 |
| 2023 | $299,270 | $77,440 | $0 | $376,710 | $376,710 |
| 2022 | $290,660 | $50,820 | $0 | $341,480 | $341,480 |
| 2021 | $232,530 | $50,820 | $0 | $283,350 | $283,350 |
| 2020 | $178,870 | $50,820 | $0 | $229,690 | $229,690 |
| 2019 | $178,870 | $50,820 | $0 | $229,690 | $229,690 |
| 2018 | $170,350 | $50,820 | $0 | $221,170 | $221,170 |
| 2017 | $162,240 | $50,820 | $0 | $213,060 | $213,060 |
| 2016 | $162,240 | $38,700 | $0 | $200,940 | $200,940 |
| 2015 | $162,240 | $38,700 | $0 | $200,940 | $200,940 |
| 2014 | $124,800 | $38,700 | $0 | $163,500 | $163,500 |
| 2013 | $124,800 | $38,700 | $0 | $163,500 | $163,500 |
| 2012 | $117,000 | $38,700 | $0 | $0 | $0 |
| 2011 | $127,500 | $38,700 | $0 | $0 | $0 |
| 2010 | $127,500 | $38,700 | $0 | $0 | $0 |
| 2009 | $146,000 | $38,700 | $0 | $0 | $0 |
| 2008 | $146,000 | $38,700 | $0 | $0 | $0 |
| 2007 | $146,000 | $38,700 | $0 | $0 | $0 |
Deed and Sales History
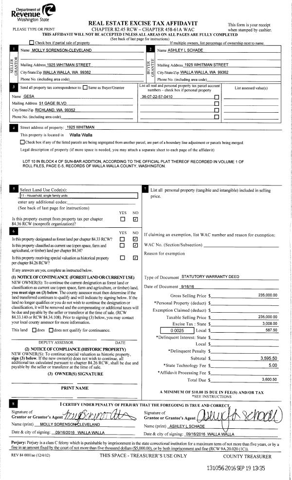
| 1 | 09/19/2016 | SWD | STATUTORY WARRANTY DEED | SORENSON-CLEVELAND MOLLY | SCHADE ASHLEY L | | | $235,000.00 | 131056 | 2016-07617 |
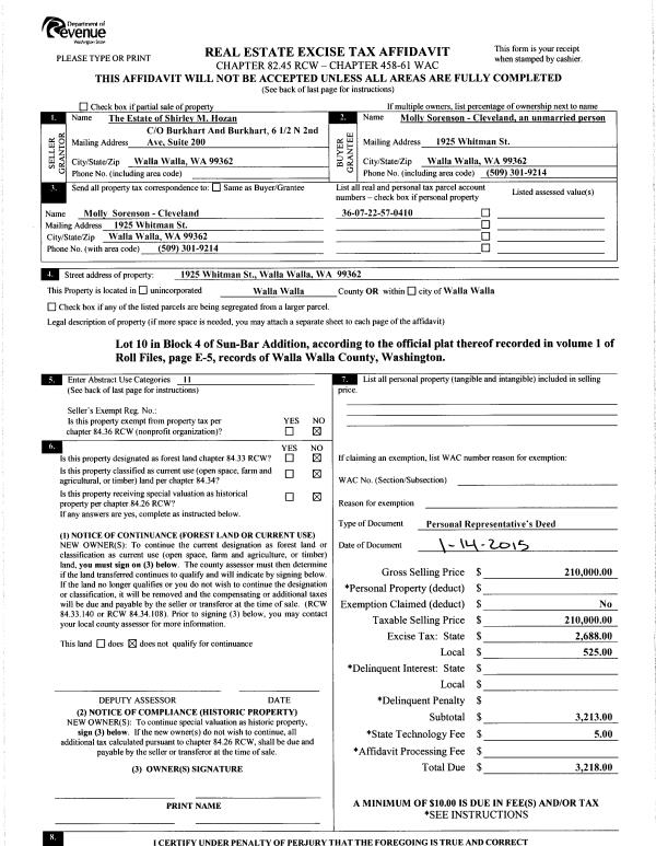
| 2 | 01/14/2015 | DPR | DEED OF PERSONAL REPRESENTATIVE | HOZAN SHIRLEY M ESTATE OF | SORENSON-CLEVELAND MOLLY | | | $210,000.00 | 127328 | 2015-00682 |
| 3 | 08/05/1993 | WARRANTY D | WARRANTY DEED | | | | | $137,500.00 | 79681 | 2099-308051 |
Payout Agreement
| No payout information available.. |