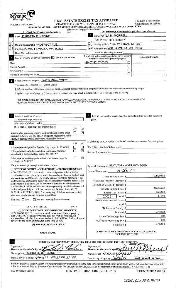
Property
Account |
| Property ID: | 9063 | Abbreviated Legal Description: | SUN BAR LOT 3 BLK 3 |
| Parcel Number: | 360722570303 | Agent Code: | |
| Type: | Real | | |
| Tax Area: | 1 - OL-140-F | Land Use Code | 11 |
| Open Space: | N | DFL | N |
| Historic Property: | N | Remodel Property: | N |
| Multi-Family Redevelopment: | N | | |
| Township: | 7 | Section: | 22 |
| Range: | 36 |
Location |
| Address: | 1830 WHITMAN ST WA 99362 | Mapsco: | |
| Neighborhood: | A SFR | Map ID: | |
| Neighborhood CD: | 413011 |
Owner |
| Name: | MORRELL KAYLA M | Owner ID: | 61164 |
| Mailing Address: | CALVIN R HETTERLEY 1830 WHITMAN ST WALLA WALLA, WA 99362 | % Ownership: | 100.0000000000% |
| | | Exemptions: | |
Taxes and Assessment Details
Property Tax Information as of
02/21/2026
Click on "Statement Details" to expand or collapse a tax statement.
* Please enter a valid date ** Please enter a valid date *
Statement Details |
| | TOTAL: | $0.00 | $0.00 | $0.00 | $0.00 | $0.00 | $0.00 |
|
| | $0.00 | $0.00 | $0.00 | $0.00 | $0.00 | $0.00 |
Values
| (+) Improvement Homesite Value: | + | $0 | |
| (+) Improvement Non-Homesite Value: | + | $336,820 | |
| (+) Land Homesite Value: | + | $0 | |
| (+) Land Non-Homesite Value: | + | $78,900 | |
| (+) Curr Use (HS): | + | $0 | $0 |
| (+) Curr Use (NHS): | + | $0 | $0 |
| | | -------------------------- | |
| (=) Market Value: | = | $415,720 | |
| (–) Productivity Loss: | – | $0 | |
| | | -------------------------- | |
| (=) Subtotal: | = | $415,720 | |
| (+) Senior Appraised Value: | + | $0 | |
| (+) Non-Senior Appraised Value: | + | $415,720 | |
| | | -------------------------- | |
| (=) Total Appraised Value: | = | $415,720 | |
| (–) Senior Exemption Loss: | – | $0 | |
| (–) Exemption Loss: | – | $0 | |
| | | -------------------------- | |
| (=) Taxable Value: | = | $415,720 | |
Taxing Jurisdiction
| Owner: | MORRELL KAYLA M | | |
| % Ownership: | 100.0000000000% | | |
| Total Value: | $415,720 | | |
| Tax Area: | 1 - OL-140-F |
| CERFD | CURRENT EXPENSE REFUND 010 | 0.0000000000 | $415,720 | $415,720 | $0.00 | | |
| CURREXP | CURRENT EXPENSE 010 | 1.0175366760 | $415,720 | $415,720 | $423.01 | | |
| HUMNSERV | HUMAN SERVICES 119 | 0.0250000000 | $415,720 | $415,720 | $10.39 | | |
| SLDREL | SOLDIERS RELIEF 121 | 0.0155990005 | $415,720 | $415,720 | $6.48 | | |
| EMERGSER | EMS 147 | 0.3792580840 | $415,720 | $415,720 | $157.67 | | |
| EMSRFD | EMS REFUND 147 | 0.0000000000 | $415,720 | $415,720 | $0.00 | | |
| PORTRFD | PORT REFUND 640 | 0.0000000000 | $415,720 | $415,720 | $0.00 | | |
| PORTWWGEN | PORT OF WW 640 | 0.2460186015 | $415,720 | $415,720 | $102.27 | | |
| SD140BOND | SD #140 BOND 764 | 0.8342371393 | $415,720 | $415,720 | $346.81 | | |
| SD140GEN | SD #140 GENERAL 760 | 2.0646500647 | $415,720 | $415,720 | $858.32 | | |
| ST2 | STATE SCHOOL PART 2 600 | 0.8131451643 | $415,720 | $415,720 | $338.04 | | |
| STATESCHL | STATE SCHOOL 600 | 1.5158548041 | $415,720 | $415,720 | $630.17 | | |
| STREFUND | STATE REFUND LEVY 603 | 0.0000000000 | $415,720 | $415,720 | $0.00 | | |
| CWWBOND | C OF WW BOND 643 | 0.2760494372 | $415,720 | $415,720 | $114.76 | | |
| CWWGEN | CITY OF WW 631 | 1.6100204973 | $415,720 | $415,720 | $669.32 | | |
| CWWRFD | CITY OF WALLA WALLA REFUND 631 | 0.0000000000 | $415,720 | $415,720 | $0.00 | | |
| | Total Tax Rate: | 8.7973694689 | | | | | |
| | | | | Taxes w/Current Exemptions: | $3,657.24 | | |
| | | | | Taxes w/o Exemptions: | $3,657.24 | | |
Improvement / Building
| Improvement #1: | RESIDENTIAL | State Code: | 11 | 1672.0 sqft | Value: | $336,820 |
| Exterior Wall: | VINYL | Heating/Cooling: | HEAT PUMP | | Number of Bathrooms: | 3 | Number of Bedrooms: | 3 | | Plumbing: | 11 | Roof Covering: | COMP SHINGLE |
|
| | Type | Description | Class CD | Sub Class CD | Year Built | Area |
| | MA | Main Area | 2 | 40 | 1979 | 1672.0 |
| | UPFL | Upper Floor (included in main area) | 2 | 40 | 1979 | 776.0 |
| | SI1 | SITE IMPROVEMENT | 2 | 40 | 1979 | 4.5 |
| | S1F | Single One Story Fireplace | 2 | 40 | 1979 | 1.0 |
| | OPS | OPEN PORCH W/STEPS | 2 | 40 | 1979 | 56.0 |
| | CPCD | CARPORT/DIRT FLOOR | 2 | 40 | 1979 | 231.0 |
| | ATG | Attached Garage | 2 | 40 | 1979 | 483.0 |
| | BNV | BUILDING NO VALUE | 2 | 40 | 2010 | 96.0 |
| | CPC | COVERED CARPORT/PATIO | 2 | 40 | 2018 | 444.0 |
Sketch
Property Image
Land
| 1 | RES 1 | Converted: Residential | 0.2264 | 9862.00 | 0.00 | 0.00 | 1.00 | $78,900 | $0 |
Roll Value History
| 2026 | N/A | N/A | N/A | N/A | N/A |
| 2025 | $336,820 | $78,900 | $0 | $415,720 | $415,720 |
| 2024 | $336,820 | $78,900 | $0 | $415,720 | $415,720 |
| 2023 | $336,820 | $78,900 | $0 | $415,720 | $415,720 |
| 2022 | $338,470 | $51,780 | $0 | $390,250 | $390,250 |
| 2021 | $250,720 | $51,780 | $0 | $302,500 | $302,500 |
| 2020 | $250,720 | $51,780 | $0 | $302,500 | $302,500 |
| 2019 | $250,720 | $51,780 | $0 | $302,500 | $302,500 |
| 2018 | $190,290 | $51,780 | $0 | $242,070 | $242,070 |
| 2017 | $172,990 | $51,780 | $0 | $224,770 | $224,770 |
| 2016 | $151,190 | $39,400 | $0 | $190,590 | $190,590 |
| 2015 | $151,190 | $39,400 | $0 | $190,590 | $190,590 |
| 2014 | $116,300 | $39,400 | $0 | $155,700 | $155,700 |
| 2013 | $116,300 | $39,400 | $0 | $155,700 | $155,700 |
| 2012 | $116,300 | $39,400 | $0 | $0 | $0 |
| 2011 | $105,200 | $39,400 | $0 | $0 | $0 |
| 2010 | $105,200 | $39,400 | $0 | $0 | $0 |
| 2009 | $121,300 | $39,400 | $0 | $0 | $0 |
| 2008 | $121,300 | $39,400 | $0 | $0 | $0 |
| 2007 | $121,300 | $39,400 | $0 | $0 | $0 |
Deed and Sales History
| 1 | 06/29/2017 | SWD | STATUTORY WARRANTY DEED | HEDINE KJIRSTEN D | MORRELL KAYLA M | | | $270,000.00 | 132695 | 2017-05007 |
| 2 | 04/22/2014 | SWD | STATUTORY WARRANTY DEED | BRYCE GEORGE S & BRENDA C | HEDINE KJIRSTEN D | | | $199,500.00 | 125746 | 2014-02706 |
| 3 | 03/14/2001 | WARRANTY D | WARRANTY DEED | | | | | $122,000.00 | 96762 | 3090-102433 |
Payout Agreement
| No payout information available.. |