Property
Account |
| Property ID: | 9054 | Abbreviated Legal Description: | SUN BAR LOT 1 BLK 1 |
| Parcel Number: | 360722570101 | Agent Code: | |
| Type: | Real | | |
| Tax Area: | 1 - OL-140-F | Land Use Code | 11 |
| Open Space: | N | DFL | N |
| Historic Property: | N | Remodel Property: | N |
| Multi-Family Redevelopment: | N | | |
| Township: | 7 | Section: | 22 |
| Range: | 36 |
Location |
| Address: | 505 ERNST ST WA 99362 | Mapsco: | |
| Neighborhood: | A SFR | Map ID: | |
| Neighborhood CD: | 413011 |
Owner |
| Name: | HOLT JAMES LARRY & KATHLEEN MARIE | Owner ID: | 71743 |
| Mailing Address: | JOANNE LYNN HOLT 505 ERNST ST WALLA WALLA, WA 99362 | % Ownership: | 100.0000000000% |
| | | Exemptions: | |
Taxes and Assessment Details
Values
| (+) Improvement Homesite Value: | + | $0 | |
| (+) Improvement Non-Homesite Value: | + | $478,030 | |
| (+) Land Homesite Value: | + | $0 | |
| (+) Land Non-Homesite Value: | + | $67,140 | |
| (+) Curr Use (HS): | + | $0 | $0 |
| (+) Curr Use (NHS): | + | $0 | $0 |
| | | -------------------------- | |
| (=) Market Value: | = | $545,170 | |
| (–) Productivity Loss: | – | $0 | |
| | | -------------------------- | |
| (=) Subtotal: | = | $545,170 | |
| (+) Senior Appraised Value: | + | $0 | |
| (+) Non-Senior Appraised Value: | + | $545,170 | |
| | | -------------------------- | |
| (=) Total Appraised Value: | = | $545,170 | |
| (–) Senior Exemption Loss: | – | $0 | |
| (–) Exemption Loss: | – | $0 | |
| | | -------------------------- | |
| (=) Taxable Value: | = | $545,170 | |
Taxing Jurisdiction
| Owner: | HOLT JAMES LARRY & KATHLEEN MARIE | | |
| % Ownership: | 100.0000000000% | | |
| Total Value: | $545,170 | | |
| Tax Area: | 1 - OL-140-F |
| CERFD | CURRENT EXPENSE REFUND 010 | 0.0000000000 | $545,170 | $545,170 | $0.00 | | |
| CURREXP | CURRENT EXPENSE 010 | 1.0175366760 | $545,170 | $545,170 | $554.73 | | |
| HUMNSERV | HUMAN SERVICES 119 | 0.0250000000 | $545,170 | $545,170 | $13.63 | | |
| SLDREL | SOLDIERS RELIEF 121 | 0.0155990005 | $545,170 | $545,170 | $8.50 | | |
| EMERGSER | EMS 147 | 0.3792580840 | $545,170 | $545,170 | $206.76 | | |
| EMSRFD | EMS REFUND 147 | 0.0000000000 | $545,170 | $545,170 | $0.00 | | |
| PORTRFD | PORT REFUND 640 | 0.0000000000 | $545,170 | $545,170 | $0.00 | | |
| PORTWWGEN | PORT OF WW 640 | 0.2460186015 | $545,170 | $545,170 | $134.12 | | |
| SD140BOND | SD #140 BOND 764 | 0.8342371393 | $545,170 | $545,170 | $454.80 | | |
| SD140GEN | SD #140 GENERAL 760 | 2.0646500647 | $545,170 | $545,170 | $1,125.59 | | |
| ST2 | STATE SCHOOL PART 2 600 | 0.8131451643 | $545,170 | $545,170 | $443.30 | | |
| STATESCHL | STATE SCHOOL 600 | 1.5158548041 | $545,170 | $545,170 | $826.40 | | |
| STREFUND | STATE REFUND LEVY 603 | 0.0000000000 | $545,170 | $545,170 | $0.00 | | |
| CWWBOND | C OF WW BOND 643 | 0.2760494372 | $545,170 | $545,170 | $150.49 | | |
| CWWGEN | CITY OF WW 631 | 1.6100204973 | $545,170 | $545,170 | $877.73 | | |
| CWWRFD | CITY OF WALLA WALLA REFUND 631 | 0.0000000000 | $545,170 | $545,170 | $0.00 | | |
| | Total Tax Rate: | 8.7973694689 | | | | | |
| | | | | Taxes w/Current Exemptions: | $4,796.05 | | |
| | | | | Taxes w/o Exemptions: | $4,796.05 | | |
Improvement / Building
| Improvement #1: | RESIDENTIAL | State Code: | 11 | 1504.0 sqft | Value: | $478,030 |
| Exterior Wall: | SIDING | Heating/Cooling: | WARM & COOLED AIR | | Number of Bathrooms: | 3 | Number of Bedrooms: | 5 | | Plumbing: | 17 | Roof Covering: | COMP SHINGLE |
|
| | Type | Description | Class CD | Sub Class CD | Year Built | Area |
| | MA | Main Area | 1 | 35 | 1992 | 1504.0 |
| | SI1 | SITE IMPROVEMENT | 1 | 35 | 0 | 5.5 |
| | BASE | BASEMENT | 1 | 35 | 1992 | 1504.0 |
| | BPF | BASEMENT -PARTITIONED FINISH | 1 | 35 | 1992 | 1504.0 |
| | ATG | Attached Garage | 1 | 35 | 1992 | 576.0 |
| | UTST | Utility Storage Shed | 1 | 35 | 1992 | 192.0 |
| | CPC | COVERED CARPORT/PATIO | 1 | 35 | 1992 | 450.0 |
Sketch
Property Image
Land
| 1 | RES 1 | Converted: Residential | 0.1927 | 8393.00 | 0.00 | 0.00 | 1.00 | $67,140 | $0 |
Roll Value History
| 2026 | N/A | N/A | N/A | N/A | N/A |
| 2025 | $478,030 | $67,140 | $0 | $545,170 | $545,170 |
| 2024 | $478,030 | $67,140 | $0 | $545,170 | $545,170 |
| 2023 | $478,030 | $67,140 | $0 | $545,170 | $545,170 |
| 2022 | $379,550 | $44,060 | $0 | $423,610 | $423,610 |
| 2021 | $261,760 | $44,060 | $0 | $305,820 | $305,820 |
| 2020 | $174,510 | $44,060 | $0 | $218,570 | $218,570 |
| 2019 | $174,510 | $44,060 | $0 | $218,570 | $218,570 |
| 2018 | $166,200 | $44,060 | $0 | $210,260 | $210,260 |
| 2017 | $166,200 | $44,060 | $0 | $210,260 | $210,260 |
| 2016 | $173,880 | $33,600 | $0 | $207,480 | $207,480 |
| 2015 | $173,880 | $33,600 | $0 | $207,480 | $207,480 |
| 2014 | $165,600 | $33,600 | $0 | $199,200 | $199,200 |
| 2013 | $165,600 | $33,600 | $0 | $199,200 | $199,200 |
| 2012 | $156,100 | $33,600 | $0 | $0 | $0 |
| 2011 | $181,000 | $33,600 | $0 | $0 | $0 |
| 2010 | $145,200 | $33,600 | $0 | $0 | $0 |
| 2009 | $165,100 | $33,600 | $0 | $0 | $0 |
| 2008 | $165,100 | $33,600 | $0 | $0 | $0 |
| 2007 | $165,100 | $33,600 | $0 | $0 | $0 |
Deed and Sales History
| 1 | 12/15/2025 | TODD | TRANSFER ON DEATH DEED | | | | | | 0 | 2025-07673 |
| 2 | 12/15/2025 | LOPA | LACK OF PROBATE AFFIDAVIT | HOLT JAMES LARRY & KATHLEEN MARIE | HOLT KATHLEEN MARIE & JOANNE LYNN HOLT | | | | 150515 | 2023-07672 |
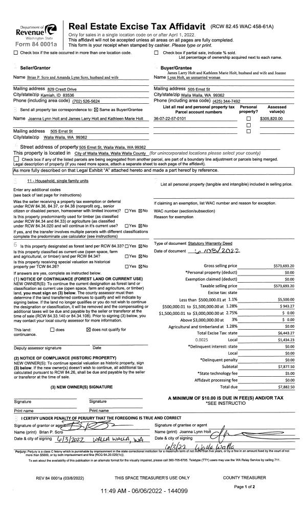
| 3 | 06/06/2022 | SWD | STATUTORY WARRANTY DEED | SCRO BRIAN P & AMANDA LYNN | HOLT JAMES LARRY & KATHLEEN MARIE | | | $573,693.00 | 144099 | 2022-04828 |
| 4 | 06/10/2021 | SWD | STATUTORY WARRANTY DEED | EISELE MICHAEL R | SCRO BRIAN P & AMANDA LYNN | | | $450,000.00 | 141766 | 2021-07102 |
| 5 | 11/27/1996 | WARRANTY D | WARRANTY DEED | | | | | $134,900.00 | 87275 | 2469-611837 |
Payout Agreement
| No payout information available.. |