Property
Account |
| Property ID: | 9038 | Abbreviated Legal Description: | VALLEY HOMES LOT 91 PARCEL #177 |
| Parcel Number: | 360722560177 | Agent Code: | |
| Type: | Real | | |
| Tax Area: | 1 - OL-140-F | Land Use Code | 11 |
| Open Space: | N | DFL | N |
| Historic Property: | N | Remodel Property: | N |
| Multi-Family Redevelopment: | N | | |
| Township: | 7 | Section: | 22 |
| Range: | 36 |
Location |
| Address: | 116 ASPEN ST WA 99362 | Mapsco: | |
| Neighborhood: | A SFR | Map ID: | |
| Neighborhood CD: | 413011 |
Owner |
| Name: | NEWBY ZACHARY S | Owner ID: | 73003 |
| Mailing Address: | JOHN MOREAU 116 ASPEN ST WALLA WALLA, WA 99362 | % Ownership: | 100.0000000000% |
| | | Exemptions: | |
Taxes and Assessment Details
Property Tax Information as of
02/21/2026
Click on "Statement Details" to expand or collapse a tax statement.
* Please enter a valid date ** Please enter a valid date *
Statement Details |
| | TOTAL: | $0.00 | $0.00 | $0.00 | $0.00 | $0.00 | $0.00 |
|
| | $0.00 | $0.00 | $0.00 | $0.00 | $0.00 | $0.00 |
Values
| (+) Improvement Homesite Value: | + | $0 | |
| (+) Improvement Non-Homesite Value: | + | $339,100 | |
| (+) Land Homesite Value: | + | $0 | |
| (+) Land Non-Homesite Value: | + | $58,750 | |
| (+) Curr Use (HS): | + | $0 | $0 |
| (+) Curr Use (NHS): | + | $0 | $0 |
| | | -------------------------- | |
| (=) Market Value: | = | $397,850 | |
| (–) Productivity Loss: | – | $0 | |
| | | -------------------------- | |
| (=) Subtotal: | = | $397,850 | |
| (+) Senior Appraised Value: | + | $0 | |
| (+) Non-Senior Appraised Value: | + | $397,850 | |
| | | -------------------------- | |
| (=) Total Appraised Value: | = | $397,850 | |
| (–) Senior Exemption Loss: | – | $0 | |
| (–) Exemption Loss: | – | $0 | |
| | | -------------------------- | |
| (=) Taxable Value: | = | $397,850 | |
Taxing Jurisdiction
| Owner: | NEWBY ZACHARY S | | |
| % Ownership: | 100.0000000000% | | |
| Total Value: | $397,850 | | |
| Tax Area: | 1 - OL-140-F |
| CERFD | CURRENT EXPENSE REFUND 010 | 0.0000000000 | $397,850 | $397,850 | $0.00 | | |
| CURREXP | CURRENT EXPENSE 010 | 1.0175366760 | $397,850 | $397,850 | $404.83 | | |
| HUMNSERV | HUMAN SERVICES 119 | 0.0250000000 | $397,850 | $397,850 | $9.95 | | |
| SLDREL | SOLDIERS RELIEF 121 | 0.0155990005 | $397,850 | $397,850 | $6.21 | | |
| EMERGSER | EMS 147 | 0.3792580840 | $397,850 | $397,850 | $150.89 | | |
| EMSRFD | EMS REFUND 147 | 0.0000000000 | $397,850 | $397,850 | $0.00 | | |
| PORTRFD | PORT REFUND 640 | 0.0000000000 | $397,850 | $397,850 | $0.00 | | |
| PORTWWGEN | PORT OF WW 640 | 0.2460186015 | $397,850 | $397,850 | $97.88 | | |
| SD140BOND | SD #140 BOND 764 | 0.8342371393 | $397,850 | $397,850 | $331.90 | | |
| SD140GEN | SD #140 GENERAL 760 | 2.0646500647 | $397,850 | $397,850 | $821.42 | | |
| ST2 | STATE SCHOOL PART 2 600 | 0.8131451643 | $397,850 | $397,850 | $323.51 | | |
| STATESCHL | STATE SCHOOL 600 | 1.5158548041 | $397,850 | $397,850 | $603.08 | | |
| STREFUND | STATE REFUND LEVY 603 | 0.0000000000 | $397,850 | $397,850 | $0.00 | | |
| CWWBOND | C OF WW BOND 643 | 0.2760494372 | $397,850 | $397,850 | $109.83 | | |
| CWWGEN | CITY OF WW 631 | 1.6100204973 | $397,850 | $397,850 | $640.55 | | |
| CWWRFD | CITY OF WALLA WALLA REFUND 631 | 0.0000000000 | $397,850 | $397,850 | $0.00 | | |
| | Total Tax Rate: | 8.7973694689 | | | | | |
| | | | | Taxes w/Current Exemptions: | $3,500.05 | | |
| | | | | Taxes w/o Exemptions: | $3,500.05 | | |
Improvement / Building
| Improvement #1: | RESIDENTIAL | State Code: | 11 | 2260.0 sqft | Value: | $339,100 |
| Exterior Wall: | PLYWOOD | Heating/Cooling: | WARM & COOLED AIR | | Number of Bathrooms: | 3 | Number of Bedrooms: | 3 | | Plumbing: | 12 | Roof Covering: | COMP SHINGLE |
|
| | Type | Description | Class CD | Sub Class CD | Year Built | Area |
| | MA | Main Area | 4 | 30 | 1977 | 2260.0 |
| | SI1 | SITE IMPROVEMENT | 4 | 30 | 0 | 1.5 |
| | BIG | Built In Garage | 4 | 30 | 1977 | 552.0 |
| | UPFL | Upper Floor (included in main area) | 4 | 30 | 1977 | 828.0 |
| | RPO | OPEN PORCH W/ROOF | 4 | 30 | 1977 | 108.0 |
| | S1F | Single One Story Fireplace | 4 | 30 | 1977 | 1.0 |
Sketch
Property Image
Land
| 1 | RES 1 | Converted: Residential | 0.1686 | 7344.00 | 0.00 | 0.00 | 1.00 | $58,750 | $0 |
Roll Value History
| 2026 | N/A | N/A | N/A | N/A | N/A |
| 2025 | $356,060 | $58,750 | $0 | $414,810 | $414,810 |
| 2024 | $346,060 | $58,750 | $0 | $404,810 | $404,810 |
| 2023 | $339,100 | $58,750 | $0 | $397,850 | $397,850 |
| 2022 | $357,130 | $38,560 | $0 | $395,690 | $395,690 |
| 2021 | $274,710 | $38,560 | $0 | $313,270 | $313,270 |
| 2020 | $238,880 | $38,560 | $0 | $277,440 | $277,440 |
| 2019 | $238,880 | $38,560 | $0 | $277,440 | $277,440 |
| 2018 | $238,880 | $38,560 | $0 | $277,440 | $277,440 |
| 2017 | $149,300 | $38,560 | $0 | $187,860 | $187,860 |
| 2016 | $126,200 | $29,400 | $0 | $155,600 | $155,600 |
| 2015 | $126,200 | $29,400 | $0 | $155,600 | $155,600 |
| 2014 | $126,200 | $29,400 | $0 | $155,600 | $155,600 |
| 2013 | $126,200 | $29,400 | $0 | $155,600 | $155,600 |
| 2012 | $126,200 | $29,400 | $0 | $0 | $0 |
| 2011 | $131,200 | $29,400 | $0 | $0 | $0 |
| 2010 | $131,200 | $29,400 | $0 | $0 | $0 |
| 2009 | $149,000 | $29,400 | $0 | $0 | $0 |
| 2008 | $149,000 | $29,400 | $0 | $0 | $0 |
| 2007 | $149,000 | $29,400 | $0 | $0 | $0 |
Deed and Sales History
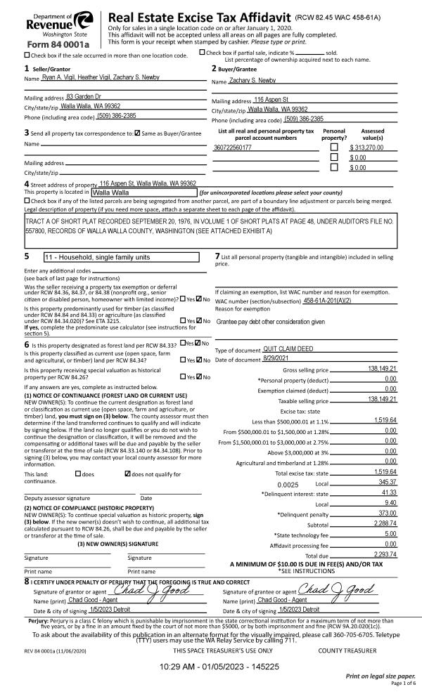
| 1 | 01/11/2023 | QCD | QUIT CLAIM DEED | NEWBY ZACHARY S | NEWBY ZACHARY S | | | $138,149.00 | 145226 | 2023-00162 |
| 2 | 01/11/2023 | QCD | QUIT CLAIM DEED | VIGIL RYAN A & HEATHER | NEWBY ZACHARY S | | | $138,149.00 | 145225 | 2023-00161 |
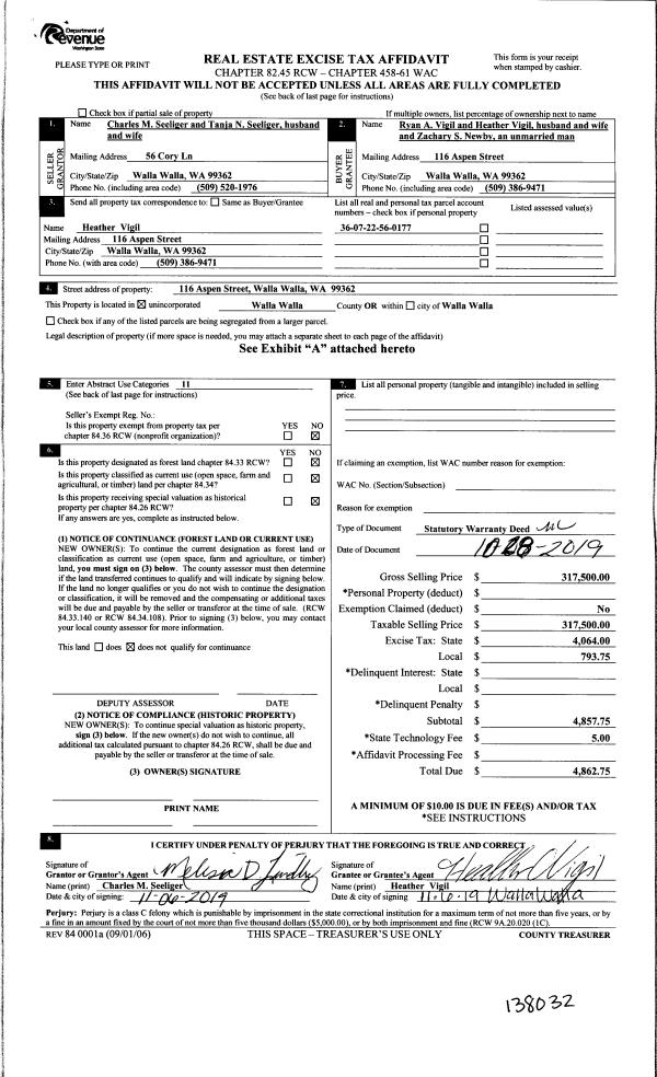
| 3 | 11/06/2019 | SWD | STATUTORY WARRANTY DEED | SEELIGER CHARLES M & TANJA N | VIGIL RYAN A & HEATHER | | | $317,500.00 | 138032 | 2019-09106 |
| 4 | 04/27/1992 | WARRANTY D | WARRANTY DEED | | | | | $81,000.00 | 76734 | 1969-203696 |
Payout Agreement
| No payout information available.. |