Property
Account |
| Property ID: | 9037 | Abbreviated Legal Description: | VALLEY HOMES LOT 66 VAC ST PARCEL #176 |
| Parcel Number: | 360722560176 | Agent Code: | |
| Type: | Real | | |
| Tax Area: | 1 - OL-140-F | Land Use Code | 11 |
| Open Space: | N | DFL | N |
| Historic Property: | N | Remodel Property: | N |
| Multi-Family Redevelopment: | N | | |
| Township: | 7 | Section: | 22 |
| Range: | 36 |
Location |
| Address: | 125 COMMERCIAL ST WA 99362 | Mapsco: | |
| Neighborhood: | A SFR | Map ID: | |
| Neighborhood CD: | 413011 |
Owner |
| Name: | MOORE SUSAN A | Owner ID: | 70153 |
| Mailing Address: | 125 COMMERCIAL ST WALLA WALLA, WA 99362 | % Ownership: | 100.0000000000% |
| | | Exemptions: | |
Taxes and Assessment Details
Property Tax Information as of
02/21/2026
Click on "Statement Details" to expand or collapse a tax statement.
* Please enter a valid date ** Please enter a valid date *
Statement Details |
| | TOTAL: | $0.00 | $0.00 | $0.00 | $0.00 | $0.00 | $0.00 |
|
| | $0.00 | $0.00 | $0.00 | $0.00 | $0.00 | $0.00 |
Values
| (+) Improvement Homesite Value: | + | $0 | |
| (+) Improvement Non-Homesite Value: | + | $419,240 | |
| (+) Land Homesite Value: | + | $0 | |
| (+) Land Non-Homesite Value: | + | $85,810 | |
| (+) Curr Use (HS): | + | $0 | $0 |
| (+) Curr Use (NHS): | + | $0 | $0 |
| | | -------------------------- | |
| (=) Market Value: | = | $505,050 | |
| (–) Productivity Loss: | – | $0 | |
| | | -------------------------- | |
| (=) Subtotal: | = | $505,050 | |
| (+) Senior Appraised Value: | + | $0 | |
| (+) Non-Senior Appraised Value: | + | $505,050 | |
| | | -------------------------- | |
| (=) Total Appraised Value: | = | $505,050 | |
| (–) Senior Exemption Loss: | – | $0 | |
| (–) Exemption Loss: | – | $0 | |
| | | -------------------------- | |
| (=) Taxable Value: | = | $505,050 | |
Taxing Jurisdiction
| Owner: | MOORE SUSAN A | | |
| % Ownership: | 100.0000000000% | | |
| Total Value: | $505,050 | | |
| Tax Area: | 1 - OL-140-F |
| CERFD | CURRENT EXPENSE REFUND 010 | 0.0000000000 | $505,050 | $505,050 | $0.00 | | |
| CURREXP | CURRENT EXPENSE 010 | 1.0175366760 | $505,050 | $505,050 | $513.91 | | |
| HUMNSERV | HUMAN SERVICES 119 | 0.0250000000 | $505,050 | $505,050 | $12.63 | | |
| SLDREL | SOLDIERS RELIEF 121 | 0.0155990005 | $505,050 | $505,050 | $7.88 | | |
| EMERGSER | EMS 147 | 0.3792580840 | $505,050 | $505,050 | $191.54 | | |
| EMSRFD | EMS REFUND 147 | 0.0000000000 | $505,050 | $505,050 | $0.00 | | |
| PORTRFD | PORT REFUND 640 | 0.0000000000 | $505,050 | $505,050 | $0.00 | | |
| PORTWWGEN | PORT OF WW 640 | 0.2460186015 | $505,050 | $505,050 | $124.25 | | |
| SD140BOND | SD #140 BOND 764 | 0.8342371393 | $505,050 | $505,050 | $421.33 | | |
| SD140GEN | SD #140 GENERAL 760 | 2.0646500647 | $505,050 | $505,050 | $1,042.75 | | |
| ST2 | STATE SCHOOL PART 2 600 | 0.8131451643 | $505,050 | $505,050 | $410.68 | | |
| STATESCHL | STATE SCHOOL 600 | 1.5158548041 | $505,050 | $505,050 | $765.58 | | |
| STREFUND | STATE REFUND LEVY 603 | 0.0000000000 | $505,050 | $505,050 | $0.00 | | |
| CWWBOND | C OF WW BOND 643 | 0.2760494372 | $505,050 | $505,050 | $139.42 | | |
| CWWGEN | CITY OF WW 631 | 1.6100204973 | $505,050 | $505,050 | $813.14 | | |
| CWWRFD | CITY OF WALLA WALLA REFUND 631 | 0.0000000000 | $505,050 | $505,050 | $0.00 | | |
| | Total Tax Rate: | 8.7973694689 | | | | | |
| | | | | Taxes w/Current Exemptions: | $4,443.11 | | |
| | | | | Taxes w/o Exemptions: | $4,443.11 | | |
Improvement / Building
| Improvement #1: | RESIDENTIAL | State Code: | 11 | 2611.0 sqft | Value: | $419,240 |
| Exterior Wall: | SIDING | Heating/Cooling: | WARM & COOLED AIR | | Number of Bathrooms: | 3 | Number of Bedrooms: | 3 | | Plumbing: | 18 | Roof Covering: | COMP SHINGLE |
|
| | Type | Description | Class CD | Sub Class CD | Year Built | Area |
| | MA | Main Area | 4 | 35 | 1970 | 2611.0 |
| | SI1 | SITE IMPROVEMENT | 4 | 35 | 0 | 4.0 |
| | UPFL | Upper Floor (included in main area) | 4 | 35 | 1970 | 1024.0 |
| | ATG | Attached Garage | 4 | 35 | 1970 | 676.0 |
| | WOD | Wood Deck | 4 | 35 | 1970 | 120.0 |
| | WOD | Wood Deck | 4 | 35 | 1970 | 1031.0 |
| | WOD | Wood Deck | 4 | 35 | 1970 | 80.0 |
| | S2F | Single 2S Fireplace | 4 | 35 | 1970 | 1.0 |
| | WDR | WOOD DECK W/ROOF | 4 | 35 | 1970 | 90.0 |
| | WDR | WOOD DECK W/ROOF | 4 | 35 | 1970 | 90.0 |
| | WOD | Wood Deck | 4 | 35 | 1970 | 30.0 |
Sketch
Property Image
Land
| 1 | RES 1 | Converted: Residential | 0.4518 | 19680.00 | 0.00 | 0.00 | 1.00 | $85,810 | $0 |
Roll Value History
| 2026 | N/A | N/A | N/A | N/A | N/A |
| 2025 | $419,240 | $85,810 | $0 | $505,050 | $505,050 |
| 2024 | $419,240 | $85,810 | $0 | $505,050 | $505,050 |
| 2023 | $419,240 | $85,810 | $0 | $505,050 | $505,050 |
| 2022 | $439,680 | $60,220 | $0 | $499,900 | $499,900 |
| 2021 | $283,660 | $60,220 | $0 | $343,880 | $343,880 |
| 2020 | $246,660 | $60,220 | $0 | $306,880 | $306,880 |
| 2019 | $246,660 | $60,220 | $0 | $306,880 | $306,880 |
| 2018 | $224,240 | $60,220 | $0 | $284,460 | $284,460 |
| 2017 | $203,850 | $60,220 | $0 | $264,070 | $264,070 |
| 2016 | $189,200 | $47,300 | $0 | $236,500 | $236,500 |
| 2015 | $189,200 | $47,300 | $0 | $236,500 | $236,500 |
| 2014 | $172,000 | $47,300 | $0 | $219,300 | $219,300 |
| 2013 | $172,000 | $47,300 | $0 | $219,300 | $219,300 |
| 2012 | $172,000 | $47,300 | $0 | $0 | $0 |
| 2011 | $151,100 | $47,300 | $0 | $0 | $0 |
| 2010 | $151,100 | $47,300 | $0 | $0 | $0 |
| 2009 | $173,100 | $47,300 | $0 | $0 | $0 |
| 2008 | $173,100 | $47,300 | $0 | $0 | $0 |
| 2007 | $173,100 | $47,300 | $0 | $0 | $0 |
Deed and Sales History
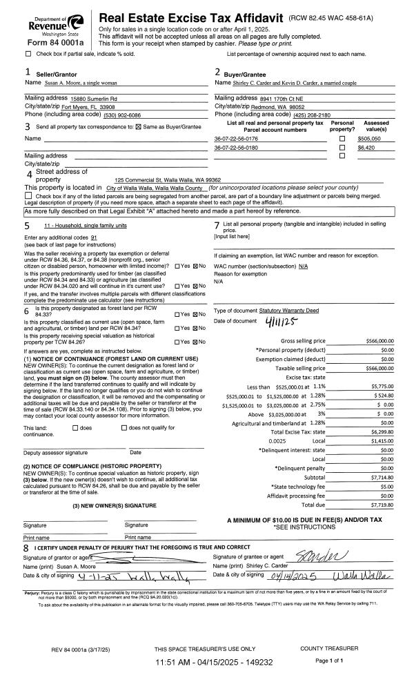
| 1 | 04/11/2025 | SWD | STATUTORY WARRANTY DEED | MOORE SUSAN A | CARDER SHIRLEY C & KEVIN D | | 2-PARCELS | $566,000.00 | 149232 | 2025-01987 |
|   | |
| 2 | 08/23/2021 | SWD | STATUTORY WARRANTY DEED | LIEUALLEN JAMES T & CHRISTINA D | MOORE SUSAN A | | 2-PARCELS | $525,000.00 | 142343 | 2021-10340 |
|   | |
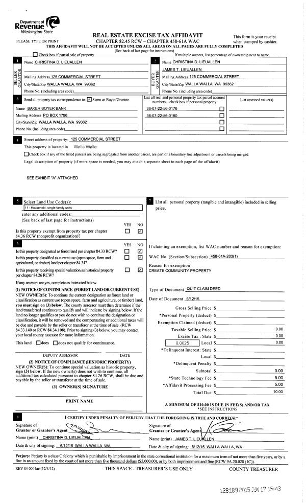
| 3 | 06/12/2015 | QCD | QUIT CLAIM DEED | DRUFFEL CHRISTINA D | LIEUALLEN JAMES T & CHRISTINA D | | 2 PARCELS | | 128189 | 2015-05082 |
| 4 | 03/19/2004 | WARRANTY D | WARRANTY DEED | DRUFFEL HEATH J & CHRISTINA | DRUFFEL CHRISTINA D | | | | 0 | 03-3-00386-1 |
| 5 | 04/24/2002 | WARRANTY D | WARRANTY DEED | | | | | $152,000.00 | 99378 | 2002-0004913 |
|   | |
Payout Agreement
| No payout information available.. |