Property
Account |
| Property ID: | 9009 | Abbreviated Legal Description: | VALLEY HOMES N 40' OF LOT 25 S 20' OF LOT 28 |
| Parcel Number: | 360722560112 | Agent Code: | |
| Type: | Real | | |
| Tax Area: | 6 - OL-140-F-FB | Land Use Code | 11 |
| Open Space: | N | DFL | N |
| Historic Property: | N | Remodel Property: | N |
| Multi-Family Redevelopment: | N | | |
| Township: | 7 | Section: | 22 |
| Range: | 36 |
Location |
| Address: | 220 BROCK ST WA 99362 | Mapsco: | |
| Neighborhood: | A SFR | Map ID: | |
| Neighborhood CD: | 413011 |
Owner |
| Name: | ELLABOUDY ASHTON H | Owner ID: | 57702 |
| Mailing Address: | 1719 W 11TH AVE KENNEWICK, WA 99337-3302 | % Ownership: | 100.0000000000% |
| | | Exemptions: | |
Taxes and Assessment Details
Values
| (+) Improvement Homesite Value: | + | $0 | |
| (+) Improvement Non-Homesite Value: | + | $242,620 | |
| (+) Land Homesite Value: | + | $0 | |
| (+) Land Non-Homesite Value: | + | $80,330 | |
| (+) Curr Use (HS): | + | $0 | $0 |
| (+) Curr Use (NHS): | + | $0 | $0 |
| | | -------------------------- | |
| (=) Market Value: | = | $322,950 | |
| (–) Productivity Loss: | – | $0 | |
| | | -------------------------- | |
| (=) Subtotal: | = | $322,950 | |
| (+) Senior Appraised Value: | + | $0 | |
| (+) Non-Senior Appraised Value: | + | $322,950 | |
| | | -------------------------- | |
| (=) Total Appraised Value: | = | $322,950 | |
| (–) Senior Exemption Loss: | – | $0 | |
| (–) Exemption Loss: | – | $0 | |
| | | -------------------------- | |
| (=) Taxable Value: | = | $322,950 | |
Taxing Jurisdiction
| Owner: | ELLABOUDY ASHTON H | | |
| % Ownership: | 100.0000000000% | | |
| Total Value: | $322,950 | | |
| Tax Area: | 6 - OL-140-F-FB |
| CERFD | CURRENT EXPENSE REFUND 010 | 0.0000000000 | $322,950 | $322,950 | $0.00 | | |
| CURREXP | CURRENT EXPENSE 010 | 1.0175366760 | $322,950 | $322,950 | $328.61 | | |
| HUMNSERV | HUMAN SERVICES 119 | 0.0250000000 | $322,950 | $322,950 | $8.07 | | |
| SLDREL | SOLDIERS RELIEF 121 | 0.0155990005 | $322,950 | $322,950 | $5.04 | | |
| EMERGSER | EMS 147 | 0.3792580840 | $322,950 | $322,950 | $122.48 | | |
| EMSRFD | EMS REFUND 147 | 0.0000000000 | $322,950 | $322,950 | $0.00 | | |
| PORTRFD | PORT REFUND 640 | 0.0000000000 | $322,950 | $322,950 | $0.00 | | |
| PORTWWGEN | PORT OF WW 640 | 0.2460186015 | $322,950 | $322,950 | $79.45 | | |
| SD140BOND | SD #140 BOND 764 | 0.8342371393 | $322,950 | $322,950 | $269.42 | | |
| SD140GEN | SD #140 GENERAL 760 | 2.0646500647 | $322,950 | $322,950 | $666.78 | | |
| ST2 | STATE SCHOOL PART 2 600 | 0.8131451643 | $322,950 | $322,950 | $262.61 | | |
| STATESCHL | STATE SCHOOL 600 | 1.5158548041 | $322,950 | $322,950 | $489.55 | | |
| STREFUND | STATE REFUND LEVY 603 | 0.0000000000 | $322,950 | $322,950 | $0.00 | | |
| CWWBOND | C OF WW BOND 643 | 0.2760494372 | $322,950 | $322,950 | $89.15 | | |
| CWWGEN | CITY OF WW 631 | 1.6100204973 | $322,950 | $322,950 | $519.96 | | |
| CWWRFD | CITY OF WALLA WALLA REFUND 631 | 0.0000000000 | $322,950 | $322,950 | $0.00 | | |
| | Total Tax Rate: | 8.7973694689 | | | | | |
| | | | | Taxes w/Current Exemptions: | $2,841.12 | | |
| | | | | Taxes w/o Exemptions: | $2,841.12 | | |
Improvement / Building
| Improvement #1: | RESIDENTIAL | State Code: | 11 | 1880.0 sqft | Value: | $242,620 |
| Exterior Wall: | METAL/STEEL | Foundation: | SLAB FOUNDATION | | Heating/Cooling: | WARM & COOLED AIR | Number of Bathrooms: | 1.5 | | Number of Bedrooms: | 3 | Plumbing: | 10 | | Roof Covering: | COMP SHINGLE |   |   |
|
| | Type | Description | Class CD | Sub Class CD | Year Built | Area |
| | MA | Main Area | 3 | 25 | 1977 | 1880.0 |
| | BNV | BUILDING NO VALUE | 3 | 25 | 0 | 96.0 |
| | SI1 | SITE IMPROVEMENT | 3 | 25 | 0 | 2.5 |
| | RPS | PORCH W/STEPS,ROOF | 3 | 25 | 1977 | 108.0 |
| | UPFL | Upper Floor (included in main area) | 3 | 25 | 1977 | 520.0 |
Sketch
Property Image
Land
| 1 | RES 1 | Converted: Residential | 0.2410 | 10500.00 | 0.00 | 0.00 | 1.00 | $80,330 | $0 |
Roll Value History
| 2026 | N/A | N/A | N/A | N/A | N/A |
| 2025 | $242,620 | $80,330 | $0 | $322,950 | $322,950 |
| 2024 | $242,620 | $80,330 | $0 | $322,950 | $322,950 |
| 2023 | $242,620 | $80,330 | $0 | $322,950 | $322,950 |
| 2022 | $257,370 | $52,920 | $0 | $310,290 | $310,290 |
| 2021 | $142,980 | $52,920 | $0 | $195,900 | $195,900 |
| 2020 | $136,180 | $52,920 | $0 | $189,100 | $189,100 |
| 2019 | $136,180 | $52,920 | $0 | $189,100 | $189,100 |
| 2018 | $123,800 | $52,920 | $0 | $176,720 | $176,720 |
| 2017 | $117,900 | $52,920 | $0 | $170,820 | $170,820 |
| 2016 | $117,900 | $40,400 | $0 | $158,300 | $158,300 |
| 2015 | $65,420 | $40,400 | $0 | $105,820 | $105,820 |
| 2014 | $62,300 | $40,400 | $0 | $102,700 | $102,700 |
| 2013 | $62,300 | $40,400 | $0 | $102,700 | $102,700 |
| 2012 | $96,500 | $40,400 | $0 | $0 | $0 |
| 2011 | $138,900 | $40,400 | $0 | $0 | $0 |
| 2010 | $138,900 | $40,400 | $0 | $0 | $0 |
| 2009 | $138,900 | $40,400 | $0 | $0 | $0 |
| 2008 | $138,900 | $40,400 | $0 | $0 | $0 |
| 2007 | $138,900 | $40,400 | $0 | $0 | $0 |
Deed and Sales History
| 1 | 10/30/2023 | SWD | STATUTORY WARRANTY DEED | ELLABOUDY ASHTON H | OSORIO MARIO M & DIANA | | | $310,000.00 | 146710 | 2023-06355 |
| 2 | 10/29/2015 | SWD | STATUTORY WARRANTY DEED | WOOSTER KARL & SAMANTHA | ELLABOUDY ASHTON H | | | $160,000.00 | 129093 | 2015-09466 |
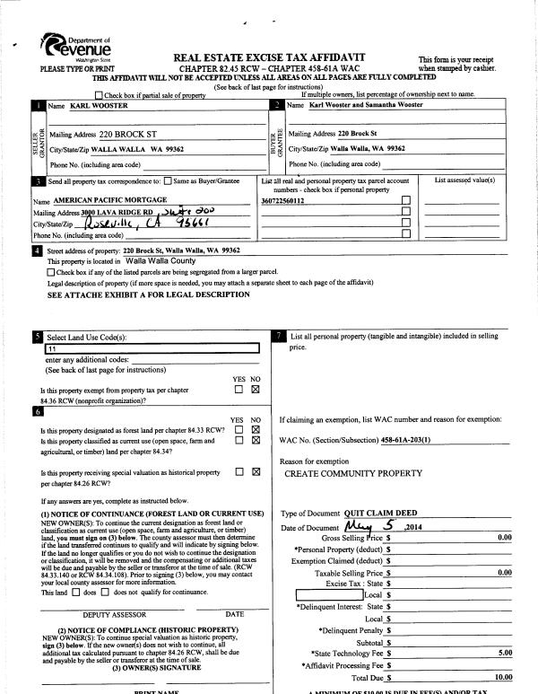
| 3 | 05/09/2014 | QCD | QUIT CLAIM DEED | WOOSTER KARL | WOOSTER KARL & SAMANTHA | | | | 125864 | 2014-03190 |
| 4 | 06/17/2011 | WARRANTY D | WARRANTY DEED | HICKMAN, MEL L & MARYANN | WOOSTER, KARL | | | $105,000.00 | 120280 | 2011-04730 |
| 5 | 08/31/1999 | WARRANTY D | WARRANTY DEED | | | | | $97,000.00 | 93526 | 2889-910194 |
Payout Agreement
| No payout information available.. |