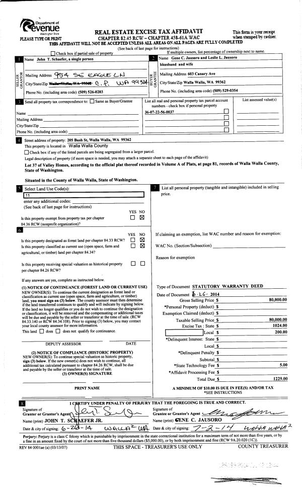
Property
Account |
| Property ID: | 8982 | Abbreviated Legal Description: | VALLEY HOMES LOT 37 |
| Parcel Number: | 360722560037 | Agent Code: | |
| Type: | Real | | |
| Tax Area: | 6 - OL-140-F-FB | Land Use Code | 11 |
| Open Space: | N | DFL | N |
| Historic Property: | N | Remodel Property: | N |
| Multi-Family Redevelopment: | N | | |
| Township: | 7 | Section: | 22 |
| Range: | 36 |
Location |
| Address: | 205 BUSH ST WA 99362 | Mapsco: | |
| Neighborhood: | A SFR | Map ID: | |
| Neighborhood CD: | 413011 |
Owner |
| Name: | JAUSORO GENE C & LESLIE L | Owner ID: | 55165 |
| Mailing Address: | 205 BUSH ST WALLA WALLA, WA 99362 | % Ownership: | 100.0000000000% |
| | | Exemptions: | |
Taxes and Assessment Details
Values
| (+) Improvement Homesite Value: | + | $0 | |
| (+) Improvement Non-Homesite Value: | + | $360,340 | |
| (+) Land Homesite Value: | + | $0 | |
| (+) Land Non-Homesite Value: | + | $91,250 | |
| (+) Curr Use (HS): | + | $0 | $0 |
| (+) Curr Use (NHS): | + | $0 | $0 |
| | | -------------------------- | |
| (=) Market Value: | = | $451,590 | |
| (–) Productivity Loss: | – | $0 | |
| | | -------------------------- | |
| (=) Subtotal: | = | $451,590 | |
| (+) Senior Appraised Value: | + | $0 | |
| (+) Non-Senior Appraised Value: | + | $451,590 | |
| | | -------------------------- | |
| (=) Total Appraised Value: | = | $451,590 | |
| (–) Senior Exemption Loss: | – | $0 | |
| (–) Exemption Loss: | – | $0 | |
| | | -------------------------- | |
| (=) Taxable Value: | = | $451,590 | |
Taxing Jurisdiction
| Owner: | JAUSORO GENE C & LESLIE L | | |
| % Ownership: | 100.0000000000% | | |
| Total Value: | $451,590 | | |
| Tax Area: | 6 - OL-140-F-FB |
| CERFD | CURRENT EXPENSE REFUND 010 | 0.0000000000 | $451,590 | $451,590 | $0.00 | | |
| CURREXP | CURRENT EXPENSE 010 | 1.0175366760 | $451,590 | $451,590 | $459.51 | | |
| HUMNSERV | HUMAN SERVICES 119 | 0.0250000000 | $451,590 | $451,590 | $11.29 | | |
| SLDREL | SOLDIERS RELIEF 121 | 0.0155990005 | $451,590 | $451,590 | $7.04 | | |
| EMERGSER | EMS 147 | 0.3792580840 | $451,590 | $451,590 | $171.27 | | |
| EMSRFD | EMS REFUND 147 | 0.0000000000 | $451,590 | $451,590 | $0.00 | | |
| PORTRFD | PORT REFUND 640 | 0.0000000000 | $451,590 | $451,590 | $0.00 | | |
| PORTWWGEN | PORT OF WW 640 | 0.2460186015 | $451,590 | $451,590 | $111.10 | | |
| SD140BOND | SD #140 BOND 764 | 0.8342371393 | $451,590 | $451,590 | $376.73 | | |
| SD140GEN | SD #140 GENERAL 760 | 2.0646500647 | $451,590 | $451,590 | $932.38 | | |
| ST2 | STATE SCHOOL PART 2 600 | 0.8131451643 | $451,590 | $451,590 | $367.21 | | |
| STATESCHL | STATE SCHOOL 600 | 1.5158548041 | $451,590 | $451,590 | $684.54 | | |
| STREFUND | STATE REFUND LEVY 603 | 0.0000000000 | $451,590 | $451,590 | $0.00 | | |
| CWWBOND | C OF WW BOND 643 | 0.2760494372 | $451,590 | $451,590 | $124.66 | | |
| CWWGEN | CITY OF WW 631 | 1.6100204973 | $451,590 | $451,590 | $727.07 | | |
| CWWRFD | CITY OF WALLA WALLA REFUND 631 | 0.0000000000 | $451,590 | $451,590 | $0.00 | | |
| | Total Tax Rate: | 8.7973694689 | | | | | |
| | | | | Taxes w/Current Exemptions: | $3,972.80 | | |
| | | | | Taxes w/o Exemptions: | $3,972.80 | | |
Improvement / Building
| Improvement #1: | RESIDENTIAL | State Code: | 11 | 2064.0 sqft | Value: | $360,340 |
| Exterior Wall: | SIDING | Heating/Cooling: | FORCED AIR | | Number of Bathrooms: | 2.5 | Number of Bedrooms: | 3 | | Plumbing: | 13 | Roof Covering: | COMP SHINGLE |
|
| | Type | Description | Class CD | Sub Class CD | Year Built | Area |
| | MA | Main Area | 1 | 30 | 2015 | 2064.0 |
| | POL2 | POLE BUILDING-CONCRETE | 1 | 20 | 0 | 1040.0 |
| | SI1 | SITE IMPROVEMENT | 1 | 30 | 0 | 4.0 |
| | ATG | Attached Garage | 1 | 30 | 2015 | 528.0 |
| | DTG | Detached Garage | 1 | 20 | 1966 | 374.0 |
| | RPC | OPEN PORCH W/ROOF , CEILED | 1 | 30 | 2015 | 296.0 |
| | RPC | OPEN PORCH W/ROOF , CEILED | 1 | 30 | 2015 | 48.0 |
Sketch
Property Image
Land
| 1 | RES 1 | Converted: Residential | 0.6629 | 28875.00 | 0.00 | 0.00 | 1.00 | $91,250 | $0 |
Roll Value History
| 2026 | N/A | N/A | N/A | N/A | N/A |
| 2025 | $360,340 | $91,250 | $0 | $451,590 | $451,590 |
| 2024 | $360,340 | $91,250 | $0 | $451,590 | $451,590 |
| 2023 | $360,340 | $91,250 | $0 | $451,590 | $451,590 |
| 2022 | $367,390 | $67,570 | $0 | $434,960 | $434,960 |
| 2021 | $253,380 | $67,570 | $0 | $320,950 | $320,950 |
| 2020 | $202,700 | $67,570 | $0 | $270,270 | $270,270 |
| 2019 | $202,700 | $67,570 | $0 | $270,270 | $270,270 |
| 2018 | $202,700 | $67,570 | $0 | $270,270 | $270,270 |
| 2017 | $202,700 | $67,570 | $0 | $270,270 | $270,270 |
| 2016 | $202,700 | $54,200 | $0 | $256,900 | $256,900 |
| 2015 | $10,000 | $54,200 | $0 | $64,200 | $64,200 |
| 2014 | $42,000 | $54,200 | $0 | $96,200 | $96,200 |
| 2013 | $42,000 | $54,200 | $0 | $96,200 | $96,200 |
| 2012 | $42,000 | $54,200 | $0 | $0 | $0 |
| 2011 | $50,000 | $54,200 | $0 | $0 | $0 |
| 2010 | $50,000 | $54,200 | $0 | $0 | $0 |
| 2009 | $61,600 | $54,200 | $0 | $0 | $0 |
| 2008 | $61,600 | $54,200 | $0 | $0 | $0 |
| 2007 | $61,600 | $54,200 | $0 | $0 | $0 |
Deed and Sales History
| 1 | 07/03/2014 | SWD | STATUTORY WARRANTY DEED | SCHAEFER JOHN T JR | JAUSORO GENE C & LESLIE L | | | $80,000.00 | 126199 | 2014-04645 |
| 2 | 06/17/1985 | QCD | QUIT CLAIM DEED | | | | | $35,000.00 | 0 | 1959-202539 |
Payout Agreement
| No payout information available.. |