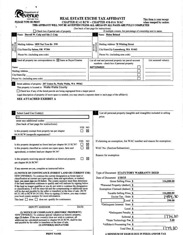
Property
Account |
| Property ID: | 8980 | Abbreviated Legal Description: | VALLEY HOMES S 50' OF N 100' OF LOT 33 |
| Parcel Number: | 360722560033 | Agent Code: | |
| Type: | Real | | |
| Tax Area: | 6 - OL-140-F-FB | Land Use Code | 11 |
| Open Space: | N | DFL | N |
| Historic Property: | N | Remodel Property: | N |
| Multi-Family Redevelopment: | N | | |
| Township: | 7 | Section: | 22 |
| Range: | 36 |
Location |
| Address: | 207 UNION ST WA 99362 | Mapsco: | |
| Neighborhood: | A SFR | Map ID: | |
| Neighborhood CD: | 413011 |
Owner |
| Name: | BOLAND HELEN | Owner ID: | 56042 |
| Mailing Address: | 207 UNION ST WALLA WALLA, WA 99362 | % Ownership: | 100.0000000000% |
| | | Exemptions: | |
Taxes and Assessment Details
Property Tax Information as of
02/21/2026
Click on "Statement Details" to expand or collapse a tax statement.
* Please enter a valid date ** Please enter a valid date *
Statement Details |
| | TOTAL: | $0.00 | $0.00 | $0.00 | $0.00 | $0.00 | $0.00 |
|
| | $0.00 | $0.00 | $0.00 | $0.00 | $0.00 | $0.00 |
Values
| (+) Improvement Homesite Value: | + | $111,750 | |
| (+) Improvement Non-Homesite Value: | + | $48,740 | |
| (+) Land Homesite Value: | + | $48,740 | |
| (+) Land Non-Homesite Value: | + | $21,260 | |
| (+) Curr Use (HS): | + | $0 | $0 |
| (+) Curr Use (NHS): | + | $0 | $0 |
| | | -------------------------- | |
| (=) Market Value: | = | $230,490 | |
| (–) Productivity Loss: | – | $0 | |
| | | -------------------------- | |
| (=) Subtotal: | = | $230,490 | |
| (+) Senior Appraised Value: | + | $0 | |
| (+) Non-Senior Appraised Value: | + | $230,490 | |
| | | -------------------------- | |
| (=) Total Appraised Value: | = | $230,490 | |
| (–) Senior Exemption Loss: | – | $0 | |
| (–) Exemption Loss: | – | $0 | |
| | | -------------------------- | |
| (=) Taxable Value: | = | $230,490 | |
Taxing Jurisdiction
| Owner: | BOLAND HELEN | | |
| % Ownership: | 100.0000000000% | | |
| Total Value: | $230,490 | | |
| Tax Area: | 6 - OL-140-F-FB |
| CERFD | CURRENT EXPENSE REFUND 010 | 0.0000000000 | $230,490 | $230,490 | $0.00 | | |
| CURREXP | CURRENT EXPENSE 010 | 1.0175366760 | $230,490 | $230,490 | $234.53 | | |
| HUMNSERV | HUMAN SERVICES 119 | 0.0250000000 | $230,490 | $230,490 | $5.76 | | |
| SLDREL | SOLDIERS RELIEF 121 | 0.0155990005 | $230,490 | $230,490 | $3.60 | | |
| EMERGSER | EMS 147 | 0.3792580840 | $230,490 | $230,490 | $87.42 | | |
| EMSRFD | EMS REFUND 147 | 0.0000000000 | $230,490 | $230,490 | $0.00 | | |
| PORTRFD | PORT REFUND 640 | 0.0000000000 | $230,490 | $230,490 | $0.00 | | |
| PORTWWGEN | PORT OF WW 640 | 0.2460186015 | $230,490 | $230,490 | $56.70 | | |
| SD140BOND | SD #140 BOND 764 | 0.8342371393 | $230,490 | $230,490 | $192.28 | | |
| SD140GEN | SD #140 GENERAL 760 | 2.0646500647 | $230,490 | $230,490 | $475.88 | | |
| ST2 | STATE SCHOOL PART 2 600 | 0.8131451643 | $230,490 | $230,490 | $187.42 | | |
| STATESCHL | STATE SCHOOL 600 | 1.5158548041 | $230,490 | $230,490 | $349.39 | | |
| STREFUND | STATE REFUND LEVY 603 | 0.0000000000 | $230,490 | $230,490 | $0.00 | | |
| CWWBOND | C OF WW BOND 643 | 0.2760494372 | $230,490 | $230,490 | $63.63 | | |
| CWWGEN | CITY OF WW 631 | 1.6100204973 | $230,490 | $230,490 | $371.09 | | |
| CWWRFD | CITY OF WALLA WALLA REFUND 631 | 0.0000000000 | $230,490 | $230,490 | $0.00 | | |
| | Total Tax Rate: | 8.7973694689 | | | | | |
| | | | | Taxes w/Current Exemptions: | $2,027.70 | | |
| | | | | Taxes w/o Exemptions: | $2,027.70 | | |
Improvement / Building
| Improvement #1: | RESIDENTIAL | State Code: | 11 | 784.0 sqft | Value: | $160,490 |
| Exterior Wall: | SIDING | Heating/Cooling: | WARM & COOLED AIR | | Number of Bathrooms: | 1 | Number of Bedrooms: | 2 | | Plumbing: | 6 | Roof Covering: | COMP SHINGLE |
|
| | Type | Description | Class CD | Sub Class CD | Year Built | Area |
| | MA | Main Area | 1 | 30 | 1949 | 784.0 |
| | CPC | COVERED CARPORT/PATIO | 1 | 30 | 0 | 460.0 |
| | GUH | GUEST HOUSE | 1 | 30 | 1949 | 280.0 |
| | SI1 | SITE IMPROVEMENT | 1 | 30 | 0 | 2.5 |
| | RESUTST | RESIDENTIAL UTILITY STORAGE | 1 | 30 | 2006 | 144.0 |
| | RPS | PORCH W/STEPS,ROOF | 1 | 30 | 1949 | 30.0 |
| | RESUTST | RESIDENTIAL UTILITY STORAGE | 1 | 30 | 1949 | 96.0 |
| | APP | APPLIANCE ALLOWANCE | 1 | 30 | 1949 | 1.0 |
Sketch
Property Image
Land
| 1 | RES 1 | Converted: Residential | 0.2009 | 8750.00 | 0.00 | 0.00 | 1.00 | $70,000 | $0 |
Roll Value History
| 2026 | N/A | N/A | N/A | N/A | N/A |
| 2025 | $185,370 | $70,000 | $0 | $255,370 | $255,370 |
| 2024 | $168,520 | $70,000 | $0 | $238,520 | $238,520 |
| 2023 | $160,490 | $70,000 | $0 | $230,490 | $230,490 |
| 2022 | $151,070 | $45,940 | $0 | $197,010 | $183,058 |
| 2021 | $116,210 | $45,940 | $0 | $162,150 | $162,150 |
| 2020 | $70,430 | $45,940 | $0 | $116,370 | $116,370 |
| 2019 | $70,430 | $45,940 | $0 | $116,370 | $116,370 |
| 2018 | $70,430 | $45,940 | $0 | $116,370 | $116,370 |
| 2017 | $67,080 | $45,940 | $0 | $113,020 | $113,020 |
| 2016 | $77,840 | $35,000 | $0 | $112,840 | $112,840 |
| 2015 | $77,840 | $35,000 | $0 | $112,840 | $112,840 |
| 2014 | $55,600 | $35,000 | $0 | $90,600 | $90,600 |
| 2013 | $55,600 | $35,000 | $0 | $90,600 | $90,600 |
| 2012 | $51,300 | $35,000 | $0 | $0 | $0 |
| 2011 | $54,000 | $35,000 | $0 | $0 | $0 |
| 2010 | $51,800 | $35,000 | $0 | $0 | $0 |
| 2009 | $61,400 | $35,000 | $0 | $0 | $0 |
| 2008 | $61,400 | $35,000 | $0 | $0 | $0 |
| 2007 | $61,400 | $35,000 | $0 | $0 | $0 |
Deed and Sales History
| 1 | 01/28/2015 | SWD | STATUTORY WARRANTY DEED | CULP DARRELL W & IDA J | BOLAND HELEN | | | $116,000.00 | 127330 | 2015-00689 |
| 2 | 07/24/2014 | FREC | FORFEITURE OF REAL ESTATE CONT | CULP DARRELL W & IDA J | | | | | 0 | 2014-05217 |
| 3 | 07/28/2014 | FREC | FORFEITURE OF REAL ESTATE CONT | BARSNESS DEL SHANNON | CULP DARRELL W & IDA J | | | $0.00 | 126337 | 2014-05328 |
| 4 | 06/23/2005 | WARRANTY D | WARRANTY DEED | CULP, DARRELL W & IDA J | BARSNESS, DEL SHANNON | | | $95,000.00 | 107786 | 2005-07558 |
| 5 | 08/07/1992 | WARRANTY D | WARRANTY DEED | | | | | $45,000.00 | 77385 | 1999-206970 |
Payout Agreement
| No payout information available.. |