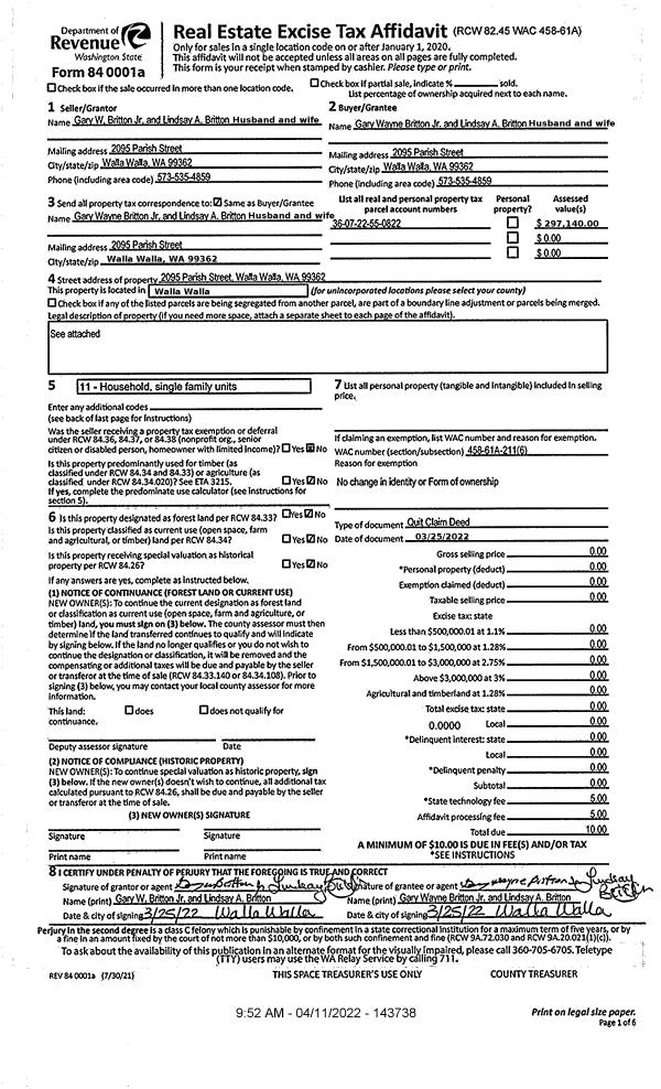
Property
Account |
| Property ID: | 8966 | Abbreviated Legal Description: | TAUSICK PARK LOT 8 BLK 8 TAX 2; PARCEL #22 |
| Parcel Number: | 360722550822 | Agent Code: | |
| Type: | Real | | |
| Tax Area: | 1 - OL-140-F | Land Use Code | 11 |
| Open Space: | N | DFL | N |
| Historic Property: | N | Remodel Property: | N |
| Multi-Family Redevelopment: | N | | |
| Township: | 7 | Section: | 22 |
| Range: | 36 |
Location |
| Address: | 2095 PARISH ST WA 99362 | Mapsco: | |
| Neighborhood: | A SFR | Map ID: | |
| Neighborhood CD: | 413011 |
Owner |
| Name: | BRITTON GARY WAYNE JR & LINDSAY A | Owner ID: | 71447 |
| Mailing Address: | 2095 PARISH ST WALLA WALLA, WA 99362 | % Ownership: | 100.0000000000% |
| | | Exemptions: | |
Taxes and Assessment Details
Property Tax Information as of
02/21/2026
Click on "Statement Details" to expand or collapse a tax statement.
* Please enter a valid date ** Please enter a valid date *
Statement Details |
| | TOTAL: | $0.00 | $0.00 | $0.00 | $0.00 | $0.00 | $0.00 |
|
| | $0.00 | $0.00 | $0.00 | $0.00 | $0.00 | $0.00 |
Values
| (+) Improvement Homesite Value: | + | $0 | |
| (+) Improvement Non-Homesite Value: | + | $296,120 | |
| (+) Land Homesite Value: | + | $0 | |
| (+) Land Non-Homesite Value: | + | $80,100 | |
| (+) Curr Use (HS): | + | $0 | $0 |
| (+) Curr Use (NHS): | + | $0 | $0 |
| | | -------------------------- | |
| (=) Market Value: | = | $376,220 | |
| (–) Productivity Loss: | – | $0 | |
| | | -------------------------- | |
| (=) Subtotal: | = | $376,220 | |
| (+) Senior Appraised Value: | + | $0 | |
| (+) Non-Senior Appraised Value: | + | $376,220 | |
| | | -------------------------- | |
| (=) Total Appraised Value: | = | $376,220 | |
| (–) Senior Exemption Loss: | – | $0 | |
| (–) Exemption Loss: | – | $0 | |
| | | -------------------------- | |
| (=) Taxable Value: | = | $376,220 | |
Taxing Jurisdiction
| Owner: | BRITTON GARY WAYNE JR & LINDSAY A | | |
| % Ownership: | 100.0000000000% | | |
| Total Value: | $376,220 | | |
| Tax Area: | 1 - OL-140-F |
| CERFD | CURRENT EXPENSE REFUND 010 | 0.0000000000 | $376,220 | $376,220 | $0.00 | | |
| CURREXP | CURRENT EXPENSE 010 | 1.0175366760 | $376,220 | $376,220 | $382.82 | | |
| HUMNSERV | HUMAN SERVICES 119 | 0.0250000000 | $376,220 | $376,220 | $9.41 | | |
| SLDREL | SOLDIERS RELIEF 121 | 0.0155990005 | $376,220 | $376,220 | $5.87 | | |
| EMERGSER | EMS 147 | 0.3792580840 | $376,220 | $376,220 | $142.68 | | |
| EMSRFD | EMS REFUND 147 | 0.0000000000 | $376,220 | $376,220 | $0.00 | | |
| PORTRFD | PORT REFUND 640 | 0.0000000000 | $376,220 | $376,220 | $0.00 | | |
| PORTWWGEN | PORT OF WW 640 | 0.2460186015 | $376,220 | $376,220 | $92.56 | | |
| SD140BOND | SD #140 BOND 764 | 0.8342371393 | $376,220 | $376,220 | $313.86 | | |
| SD140GEN | SD #140 GENERAL 760 | 2.0646500647 | $376,220 | $376,220 | $776.76 | | |
| ST2 | STATE SCHOOL PART 2 600 | 0.8131451643 | $376,220 | $376,220 | $305.92 | | |
| STATESCHL | STATE SCHOOL 600 | 1.5158548041 | $376,220 | $376,220 | $570.29 | | |
| STREFUND | STATE REFUND LEVY 603 | 0.0000000000 | $376,220 | $376,220 | $0.00 | | |
| CWWBOND | C OF WW BOND 643 | 0.2760494372 | $376,220 | $376,220 | $103.86 | | |
| CWWGEN | CITY OF WW 631 | 1.6100204973 | $376,220 | $376,220 | $605.72 | | |
| CWWRFD | CITY OF WALLA WALLA REFUND 631 | 0.0000000000 | $376,220 | $376,220 | $0.00 | | |
| | Total Tax Rate: | 8.7973694689 | | | | | |
| | | | | Taxes w/Current Exemptions: | $3,309.75 | | |
| | | | | Taxes w/o Exemptions: | $3,309.75 | | |
Improvement / Building
| Improvement #1: | RESIDENTIAL | State Code: | 11 | 1404.0 sqft | Value: | $296,120 |
| Exterior Wall: | VINYL | Heating/Cooling: | WARM & COOLED AIR | | Number of Bathrooms: | 2 | Number of Bedrooms: | 3 | | Plumbing: | 16 | Roof Covering: | COMP SHINGLE |
|
| | Type | Description | Class CD | Sub Class CD | Year Built | Area |
| | MA | Main Area | 1 | 35 | 1974 | 1404.0 |
| | SI1 | SITE IMPROVEMENT | 1 | 35 | 0 | 3.5 |
| | BASE | BASEMENT | 1 | 35 | 1974 | 1404.0 |
| | BPF | BASEMENT -PARTITIONED FINISH | 1 | 35 | 1974 | 300.0 |
| | RPO | OPEN PORCH W/ROOF | 1 | 35 | 1974 | 56.0 |
| | WOD | Wood Deck | 1 | 35 | 1974 | 140.0 |
| | S2F | Single 2S Fireplace | 1 | 35 | 1974 | 1.0 |
| | ATG | Attached Garage | 1 | 35 | 1974 | 484.0 |
Sketch
Property Image
Land
| 1 | RES 1 | Converted: Residential | 0.2334 | 10165.00 | 0.00 | 0.00 | 1.00 | $80,100 | $0 |
Roll Value History
| 2026 | N/A | N/A | N/A | N/A | N/A |
| 2025 | $326,470 | $80,100 | $0 | $406,570 | $406,570 |
| 2024 | $310,930 | $80,100 | $0 | $391,030 | $391,030 |
| 2023 | $296,120 | $80,100 | $0 | $376,220 | $376,220 |
| 2022 | $305,600 | $52,660 | $0 | $358,260 | $358,260 |
| 2021 | $244,480 | $52,660 | $0 | $297,140 | $297,140 |
| 2020 | $188,060 | $52,660 | $0 | $240,720 | $240,720 |
| 2019 | $188,060 | $52,660 | $0 | $240,720 | $240,720 |
| 2018 | $170,960 | $52,660 | $0 | $223,620 | $223,620 |
| 2017 | $170,960 | $52,660 | $0 | $223,620 | $223,620 |
| 2016 | $168,530 | $40,100 | $0 | $208,630 | $208,630 |
| 2015 | $160,500 | $40,100 | $0 | $200,600 | $200,600 |
| 2014 | $160,500 | $40,100 | $0 | $200,600 | $200,600 |
| 2013 | $160,500 | $40,100 | $0 | $200,600 | $200,600 |
| 2012 | $120,400 | $40,100 | $0 | $0 | $0 |
| 2011 | $133,500 | $40,100 | $0 | $0 | $0 |
| 2010 | $133,500 | $40,100 | $0 | $0 | $0 |
| 2009 | $152,800 | $40,100 | $0 | $0 | $0 |
| 2008 | $152,800 | $40,100 | $0 | $0 | $0 |
| 2007 | $152,800 | $40,100 | $0 | $0 | $0 |
Deed and Sales History
| 1 | 03/25/2022 | QCD | QUIT CLAIM DEED | BRITTON GARY W & LINDSAY A | BRITTON GARY WAYNE JR & LINDSAY A | | | $0.00 | 143738 | 2022-02980 |
| 2 | 08/27/2019 | SWD | STATUTORY WARRANTY DEED | WIESE GEORGE N JR | BRITTON GARY W & LINDSAY A | | | $288,000.00 | 137567 | 2019-06619 |
| 3 | 08/27/2019 | LOPA | LACK OF PROBATE AFFIDAVIT | | WIESE GEORGE N JR | | | | 137566 | 2019-06617 |
| 4 | 12/12/1978 | WARRANTY D | WARRANTY DEED | | | | | $62,500.00 | 0 | 9478-10716 |
Payout Agreement
| No payout information available.. |