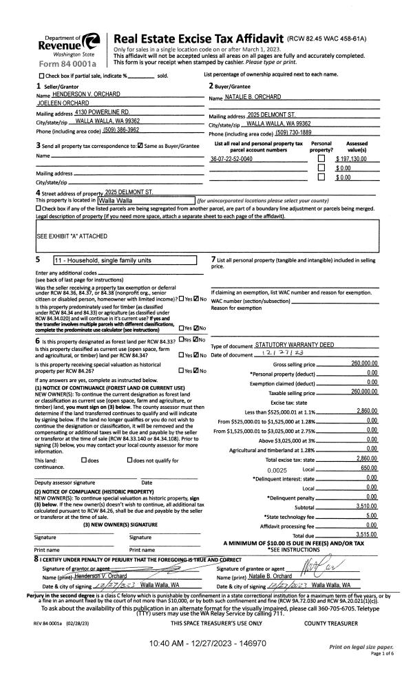
Property
Account |
| Property ID: | 8915 | Abbreviated Legal Description: | BARROWS HOME TRACTS LOT 15 |
| Parcel Number: | 360722520040 | Agent Code: | |
| Type: | Real | | |
| Tax Area: | 1 - OL-140-F | Land Use Code | 11 |
| Open Space: | N | DFL | N |
| Historic Property: | N | Remodel Property: | N |
| Multi-Family Redevelopment: | N | | |
| Township: | 7 | Section: | 22 |
| Range: | 36 |
Location |
| Address: | 2025 DELMONT ST WA 99362 | Mapsco: | |
| Neighborhood: | A SFR | Map ID: | |
| Neighborhood CD: | 413011 |
Owner |
| Name: | ORCHARD HENDERSON & JOELEEN M | Owner ID: | 55002 |
| Mailing Address: | 4130 POWERLINE RD WALLA WALLA, WA 99362 | % Ownership: | 100.0000000000% |
| | | Exemptions: | |
Taxes and Assessment Details
Property Tax Information as of
02/21/2026
Click on "Statement Details" to expand or collapse a tax statement.
* Please enter a valid date ** Please enter a valid date *
Statement Details |
| | TOTAL: | $0.00 | $0.00 | $0.00 | $0.00 | $0.00 | $0.00 |
|
| | $0.00 | $0.00 | $0.00 | $0.00 | $0.00 | $0.00 |
Values
| (+) Improvement Homesite Value: | + | $0 | |
| (+) Improvement Non-Homesite Value: | + | $112,620 | |
| (+) Land Homesite Value: | + | $0 | |
| (+) Land Non-Homesite Value: | + | $84,510 | |
| (+) Curr Use (HS): | + | $0 | $0 |
| (+) Curr Use (NHS): | + | $0 | $0 |
| | | -------------------------- | |
| (=) Market Value: | = | $197,130 | |
| (–) Productivity Loss: | – | $0 | |
| | | -------------------------- | |
| (=) Subtotal: | = | $197,130 | |
| (+) Senior Appraised Value: | + | $0 | |
| (+) Non-Senior Appraised Value: | + | $197,130 | |
| | | -------------------------- | |
| (=) Total Appraised Value: | = | $197,130 | |
| (–) Senior Exemption Loss: | – | $0 | |
| (–) Exemption Loss: | – | $0 | |
| | | -------------------------- | |
| (=) Taxable Value: | = | $197,130 | |
Taxing Jurisdiction
| Owner: | ORCHARD HENDERSON & JOELEEN M | | |
| % Ownership: | 100.0000000000% | | |
| Total Value: | $197,130 | | |
| Tax Area: | 1 - OL-140-F |
| CERFD | CURRENT EXPENSE REFUND 010 | 0.0000000000 | $197,130 | $197,130 | $0.00 | | |
| CURREXP | CURRENT EXPENSE 010 | 1.0175366760 | $197,130 | $197,130 | $200.59 | | |
| HUMNSERV | HUMAN SERVICES 119 | 0.0250000000 | $197,130 | $197,130 | $4.93 | | |
| SLDREL | SOLDIERS RELIEF 121 | 0.0155990005 | $197,130 | $197,130 | $3.08 | | |
| EMERGSER | EMS 147 | 0.3792580840 | $197,130 | $197,130 | $74.76 | | |
| EMSRFD | EMS REFUND 147 | 0.0000000000 | $197,130 | $197,130 | $0.00 | | |
| PORTRFD | PORT REFUND 640 | 0.0000000000 | $197,130 | $197,130 | $0.00 | | |
| PORTWWGEN | PORT OF WW 640 | 0.2460186015 | $197,130 | $197,130 | $48.50 | | |
| SD140BOND | SD #140 BOND 764 | 0.8342371393 | $197,130 | $197,130 | $164.45 | | |
| SD140GEN | SD #140 GENERAL 760 | 2.0646500647 | $197,130 | $197,130 | $407.00 | | |
| ST2 | STATE SCHOOL PART 2 600 | 0.8131451643 | $197,130 | $197,130 | $160.30 | | |
| STATESCHL | STATE SCHOOL 600 | 1.5158548041 | $197,130 | $197,130 | $298.82 | | |
| STREFUND | STATE REFUND LEVY 603 | 0.0000000000 | $197,130 | $197,130 | $0.00 | | |
| CWWBOND | C OF WW BOND 643 | 0.2760494372 | $197,130 | $197,130 | $54.42 | | |
| CWWGEN | CITY OF WW 631 | 1.6100204973 | $197,130 | $197,130 | $317.38 | | |
| CWWRFD | CITY OF WALLA WALLA REFUND 631 | 0.0000000000 | $197,130 | $197,130 | $0.00 | | |
| | Total Tax Rate: | 8.7973694689 | | | | | |
| | | | | Taxes w/Current Exemptions: | $1,734.23 | | |
| | | | | Taxes w/o Exemptions: | $1,734.23 | | |
Improvement / Building
| Improvement #1: | RESIDENTIAL | State Code: | 11 | 928.0 sqft | Value: | $112,620 |
| Exterior Wall: | VINYL | Heating/Cooling: | BASEBOARD ELECTRIC | | Number of Bathrooms: | 1 | Number of Bedrooms: | 3 | | Plumbing: | 6 | Roof Covering: | COMP SHINGLE |
|
| | Type | Description | Class CD | Sub Class CD | Year Built | Area |
| | MA | Main Area | 1 | 20 | 1910 | 928.0 |
| | SI1 | SITE IMPROVEMENT | 1 | 20 | 0 | 1.0 |
| | OPS | OPEN PORCH W/STEPS | 1 | 20 | 1910 | 60.0 |
| | DTG | Detached Garage | 1 | 20 | 1910 | 288.0 |
Sketch
Property Image
Land
| 1 | RES 1 | Converted: Residential | 0.4000 | 17424.00 | 0.00 | 0.00 | 1.00 | $84,510 | $0 |
Roll Value History
| 2026 | N/A | N/A | N/A | N/A | N/A |
| 2025 | $162,180 | $84,510 | $0 | $246,690 | $246,690 |
| 2024 | $135,150 | $84,510 | $0 | $219,660 | $219,660 |
| 2023 | $112,620 | $84,510 | $0 | $197,130 | $197,130 |
| 2022 | $112,620 | $58,370 | $0 | $170,990 | $170,990 |
| 2021 | $20,480 | $58,370 | $0 | $78,850 | $78,850 |
| 2020 | $18,620 | $58,370 | $0 | $76,990 | $76,990 |
| 2019 | $18,620 | $58,370 | $0 | $76,990 | $76,990 |
| 2018 | $16,930 | $58,370 | $0 | $75,300 | $75,300 |
| 2017 | $16,120 | $58,370 | $0 | $74,490 | $74,490 |
| 2016 | $15,700 | $45,600 | $0 | $61,300 | $61,300 |
| 2015 | $15,700 | $45,600 | $0 | $61,300 | $61,300 |
| 2014 | $15,700 | $45,600 | $0 | $61,300 | $61,300 |
| 2013 | $15,700 | $45,600 | $0 | $61,300 | $61,300 |
| 2012 | $15,700 | $45,600 | $0 | $0 | $0 |
| 2011 | $29,100 | $45,600 | $0 | $0 | $0 |
| 2010 | $29,100 | $45,600 | $0 | $0 | $0 |
| 2009 | $37,400 | $45,600 | $0 | $0 | $0 |
| 2008 | $52,100 | $45,600 | $0 | $0 | $0 |
| 2007 | $52,100 | $45,600 | $0 | $0 | $0 |
Deed and Sales History
| 1 | 12/27/2023 | SWD | STATUTORY WARRANTY DEED | ORCHARD HENDERSON & JOELEEN M | ORCHARD NATALIE B | | | $260,000.00 | 146970 | 2023-07482 |
| 2 | 06/20/2018 | QCD | QUIT CLAIM DEED | ORCHARD HENDERSON VANCE | ORCHARD HENDERSON & JOELEEN M | | | $0.00 | 134961 | 2018-04955 |
| 3 | 05/27/1997 | WARRANTY D | WARRANTY DEED | | | | | $50,000.00 | 88212 | 2529-704694 |
Payout Agreement
| No payout information available.. |