Property
Account |
| Property ID: | 8905 | Abbreviated Legal Description: | BARROWS HOME TRACTS LOT 2 LESS TAX 2; E1/2 LOT 3 |
| Parcel Number: | 360722520002 | Agent Code: | |
| Type: | Real | | |
| Tax Area: | 6 - OL-140-F-FB | Land Use Code | 11 |
| Open Space: | N | DFL | N |
| Historic Property: | N | Remodel Property: | N |
| Multi-Family Redevelopment: | N | | |
| Township: | 7 | Section: | 22 |
| Range: | 36 |
Location |
| Address: | 1955 WALLACE ST WA 99362 | Mapsco: | |
| Neighborhood: | A SFR | Map ID: | |
| Neighborhood CD: | 413011 |
Owner |
| Name: | WALDEN DARON G | Owner ID: | 48208 |
| Mailing Address: | MELISSA MARIE SWOPES 1955 WALLACE ST WALLA WALLA, WA 99362 | % Ownership: | 100.0000000000% |
| | | Exemptions: | |
Taxes and Assessment Details
Property Tax Information as of
02/21/2026
Click on "Statement Details" to expand or collapse a tax statement.
* Please enter a valid date ** Please enter a valid date *
Statement Details |
| | TOTAL: | $0.00 | $0.00 | $0.00 | $0.00 | $0.00 | $0.00 |
|
| | $0.00 | $0.00 | $0.00 | $0.00 | $0.00 | $0.00 |
Values
| (+) Improvement Homesite Value: | + | $0 | |
| (+) Improvement Non-Homesite Value: | + | $399,900 | |
| (+) Land Homesite Value: | + | $0 | |
| (+) Land Non-Homesite Value: | + | $101,940 | |
| (+) Curr Use (HS): | + | $0 | $0 |
| (+) Curr Use (NHS): | + | $0 | $0 |
| | | -------------------------- | |
| (=) Market Value: | = | $501,840 | |
| (–) Productivity Loss: | – | $0 | |
| | | -------------------------- | |
| (=) Subtotal: | = | $501,840 | |
| (+) Senior Appraised Value: | + | $0 | |
| (+) Non-Senior Appraised Value: | + | $501,840 | |
| | | -------------------------- | |
| (=) Total Appraised Value: | = | $501,840 | |
| (–) Senior Exemption Loss: | – | $0 | |
| (–) Exemption Loss: | – | $0 | |
| | | -------------------------- | |
| (=) Taxable Value: | = | $501,840 | |
Taxing Jurisdiction
| Owner: | WALDEN DARON G | | |
| % Ownership: | 100.0000000000% | | |
| Total Value: | $501,840 | | |
| Tax Area: | 6 - OL-140-F-FB |
| CERFD | CURRENT EXPENSE REFUND 010 | 0.0000000000 | $501,840 | $501,840 | $0.00 | | |
| CURREXP | CURRENT EXPENSE 010 | 1.0175366760 | $501,840 | $501,840 | $510.64 | | |
| HUMNSERV | HUMAN SERVICES 119 | 0.0250000000 | $501,840 | $501,840 | $12.55 | | |
| SLDREL | SOLDIERS RELIEF 121 | 0.0155990005 | $501,840 | $501,840 | $7.83 | | |
| EMERGSER | EMS 147 | 0.3792580840 | $501,840 | $501,840 | $190.33 | | |
| EMSRFD | EMS REFUND 147 | 0.0000000000 | $501,840 | $501,840 | $0.00 | | |
| PORTRFD | PORT REFUND 640 | 0.0000000000 | $501,840 | $501,840 | $0.00 | | |
| PORTWWGEN | PORT OF WW 640 | 0.2460186015 | $501,840 | $501,840 | $123.46 | | |
| SD140BOND | SD #140 BOND 764 | 0.8342371393 | $501,840 | $501,840 | $418.65 | | |
| SD140GEN | SD #140 GENERAL 760 | 2.0646500647 | $501,840 | $501,840 | $1,036.12 | | |
| ST2 | STATE SCHOOL PART 2 600 | 0.8131451643 | $501,840 | $501,840 | $408.07 | | |
| STATESCHL | STATE SCHOOL 600 | 1.5158548041 | $501,840 | $501,840 | $760.72 | | |
| STREFUND | STATE REFUND LEVY 603 | 0.0000000000 | $501,840 | $501,840 | $0.00 | | |
| CWWBOND | C OF WW BOND 643 | 0.2760494372 | $501,840 | $501,840 | $138.53 | | |
| CWWGEN | CITY OF WW 631 | 1.6100204973 | $501,840 | $501,840 | $807.97 | | |
| CWWRFD | CITY OF WALLA WALLA REFUND 631 | 0.0000000000 | $501,840 | $501,840 | $0.00 | | |
| | Total Tax Rate: | 8.7973694689 | | | | | |
| | | | | Taxes w/Current Exemptions: | $4,414.87 | | |
| | | | | Taxes w/o Exemptions: | $4,414.87 | | |
Improvement / Building
| Improvement #1: | RESIDENTIAL | State Code: | 11 | 2064.0 sqft | Value: | $399,900 |
| Exterior Wall: | PLYWOOD | Heating/Cooling: | HEAT PUMP | | Number of Bathrooms: | 2 | Number of Bedrooms: | 3 | | Plumbing: | 10 | Roof Covering: | COMP SHINGLE |
|
| | Type | Description | Class CD | Sub Class CD | Year Built | Area |
| | MA | Main Area | 1 | 30 | 2002 | 2064.0 |
| | LNTD | LEAN TO DIRT FLOOR | 1 | 30 | 0 | 720.0 |
| | POL3 | POLE BUILDING-CON,ELEC,INSU | 1 | 30 | 0 | 2400.0 |
| | SI1 | SITE IMPROVEMENT | 1 | 30 | 0 | 5.0 |
| | WOD | Wood Deck | 1 | 30 | 2002 | 96.0 |
| | WOD | Wood Deck | 1 | 30 | 2002 | 440.0 |
| | UTST | Utility Storage Shed | 1 | 30 | 2002 | 64.0 |
Sketch
Property Image
Land
| 1 | RES 1 | Converted: Residential | 1.0900 | 0.00 | 0.00 | 0.00 | 1.00 | $101,940 | $0 |
Roll Value History
| 2026 | N/A | N/A | N/A | N/A | N/A |
| 2025 | $419,900 | $101,940 | $0 | $521,840 | $521,840 |
| 2024 | $419,900 | $101,940 | $0 | $521,840 | $521,840 |
| 2023 | $399,900 | $101,940 | $0 | $501,840 | $501,840 |
| 2022 | $398,670 | $81,340 | $0 | $480,010 | $480,010 |
| 2021 | $234,510 | $81,340 | $0 | $315,850 | $315,850 |
| 2020 | $195,430 | $81,340 | $0 | $276,770 | $276,770 |
| 2019 | $195,430 | $81,340 | $0 | $276,770 | $276,770 |
| 2018 | $195,430 | $81,340 | $0 | $276,770 | $276,770 |
| 2017 | $195,430 | $81,340 | $0 | $276,770 | $276,770 |
| 2016 | $195,430 | $65,500 | $0 | $260,930 | $260,930 |
| 2015 | $195,430 | $65,500 | $0 | $260,930 | $260,930 |
| 2014 | $169,200 | $65,500 | $0 | $234,700 | $234,700 |
| 2013 | $169,200 | $65,500 | $0 | $234,700 | $234,700 |
| 2012 | $169,200 | $65,500 | $0 | $0 | $0 |
| 2011 | $186,500 | $65,500 | $0 | $0 | $0 |
| 2010 | $144,500 | $65,500 | $0 | $0 | $0 |
| 2009 | $167,800 | $65,500 | $0 | $0 | $0 |
| 2008 | $167,800 | $65,500 | $0 | $0 | $0 |
| 2007 | $167,800 | $65,500 | $0 | $0 | $0 |
Deed and Sales History
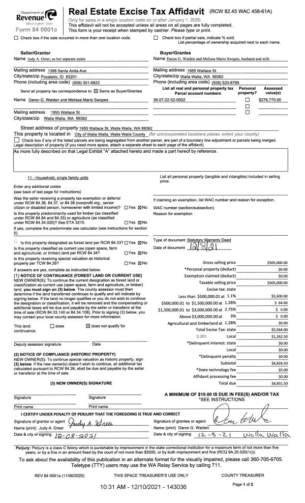
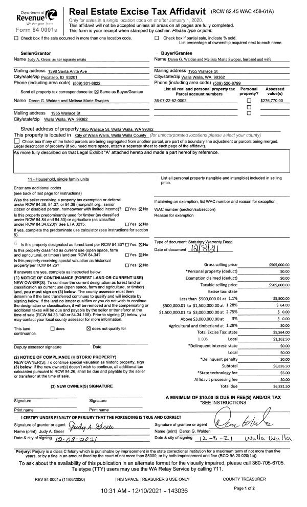
| 1 | 12/10/2021 | SWD | STATUTORY WARRANTY DEED | GREER JUDY A | WALDEN DARON G | | | $505,000.00 | 143036 | 2021-14536 |
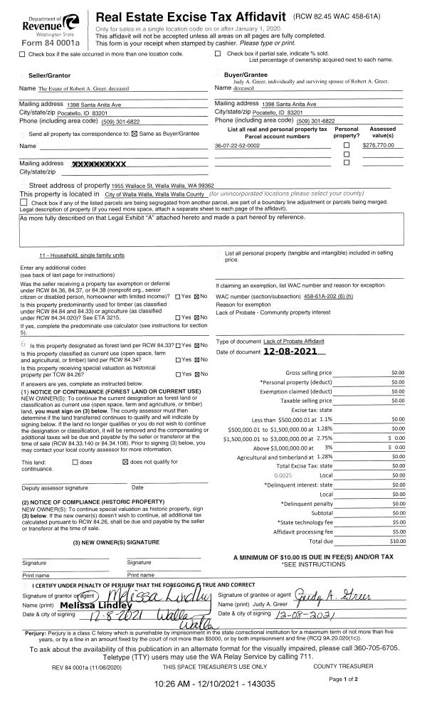
| 2 | 12/10/2021 | LOPA | LACK OF PROBATE AFFIDAVIT | GREER ROBERT W & JUDY A | GREER JUDY A | | | $0.00 | 143035 | 2021-14535 |
| 3 | 07/05/2001 | WARRANTY D | WARRANTY DEED | | | | | $62,000.00 | 97527 | 3160-107042 |
Payout Agreement
| No payout information available.. |