Property
Account |
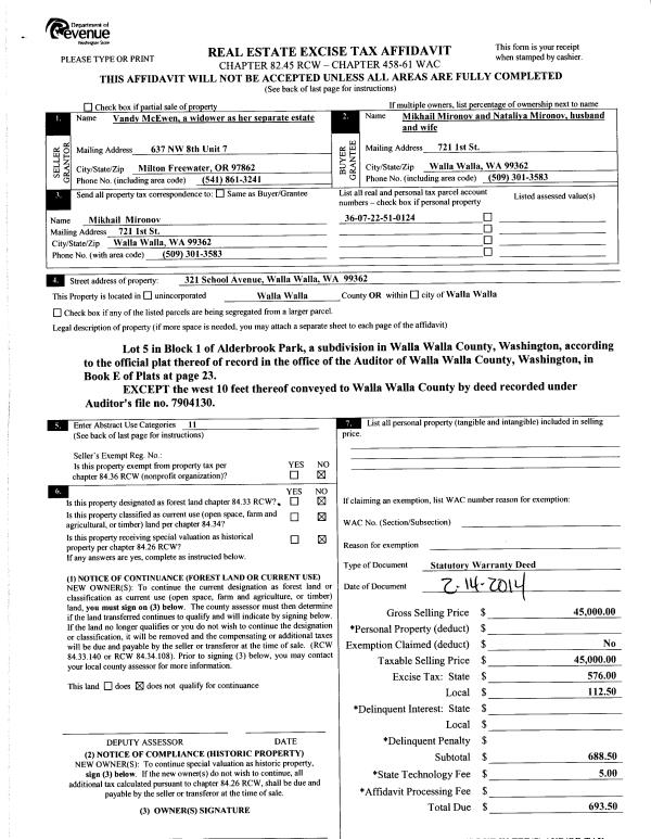
| Property ID: | 8874 | Abbreviated Legal Description: | ALDERBROOK PARK LOT 5 BLK 1 LESS PTN ST |
| Parcel Number: | 360722510124 | Agent Code: | |
| Type: | Real | | |
| Tax Area: | 6 - OL-140-F-FB | Land Use Code | 11 |
| Open Space: | N | DFL | N |
| Historic Property: | N | Remodel Property: | N |
| Multi-Family Redevelopment: | N | | |
| Township: | 7 | Section: | 22 |
| Range: | 36 |
Location |
| Address: | 321 SCHOOL AVE WA 99362 | Mapsco: | |
| Neighborhood: | A SFR | Map ID: | |
| Neighborhood CD: | 413011 |
Owner |
| Name: | BROWN BRANDON L & JENNIFER L | Owner ID: | 62438 |
| Mailing Address: | 321 SCHOOL AVE WALLA WALLA, WA 99362 | % Ownership: | 100.0000000000% |
| | | Exemptions: | |
Taxes and Assessment Details
Values
| (+) Improvement Homesite Value: | + | $0 | |
| (+) Improvement Non-Homesite Value: | + | $258,100 | |
| (+) Land Homesite Value: | + | $0 | |
| (+) Land Non-Homesite Value: | + | $72,000 | |
| (+) Curr Use (HS): | + | $0 | $0 |
| (+) Curr Use (NHS): | + | $0 | $0 |
| | | -------------------------- | |
| (=) Market Value: | = | $330,100 | |
| (–) Productivity Loss: | – | $0 | |
| | | -------------------------- | |
| (=) Subtotal: | = | $330,100 | |
| (+) Senior Appraised Value: | + | $0 | |
| (+) Non-Senior Appraised Value: | + | $330,100 | |
| | | -------------------------- | |
| (=) Total Appraised Value: | = | $330,100 | |
| (–) Senior Exemption Loss: | – | $0 | |
| (–) Exemption Loss: | – | $0 | |
| | | -------------------------- | |
| (=) Taxable Value: | = | $330,100 | |
Taxing Jurisdiction
| Owner: | BROWN BRANDON L & JENNIFER L | | |
| % Ownership: | 100.0000000000% | | |
| Total Value: | $330,100 | | |
| Tax Area: | 6 - OL-140-F-FB |
| CERFD | CURRENT EXPENSE REFUND 010 | 0.0000000000 | $330,100 | $330,100 | $0.00 | | |
| CURREXP | CURRENT EXPENSE 010 | 1.0175366760 | $330,100 | $330,100 | $335.89 | | |
| HUMNSERV | HUMAN SERVICES 119 | 0.0250000000 | $330,100 | $330,100 | $8.25 | | |
| SLDREL | SOLDIERS RELIEF 121 | 0.0155990005 | $330,100 | $330,100 | $5.15 | | |
| EMERGSER | EMS 147 | 0.3792580840 | $330,100 | $330,100 | $125.19 | | |
| EMSRFD | EMS REFUND 147 | 0.0000000000 | $330,100 | $330,100 | $0.00 | | |
| PORTRFD | PORT REFUND 640 | 0.0000000000 | $330,100 | $330,100 | $0.00 | | |
| PORTWWGEN | PORT OF WW 640 | 0.2460186015 | $330,100 | $330,100 | $81.21 | | |
| SD140BOND | SD #140 BOND 764 | 0.8342371393 | $330,100 | $330,100 | $275.38 | | |
| SD140GEN | SD #140 GENERAL 760 | 2.0646500647 | $330,100 | $330,100 | $681.54 | | |
| ST2 | STATE SCHOOL PART 2 600 | 0.8131451643 | $330,100 | $330,100 | $268.42 | | |
| STATESCHL | STATE SCHOOL 600 | 1.5158548041 | $330,100 | $330,100 | $500.38 | | |
| STREFUND | STATE REFUND LEVY 603 | 0.0000000000 | $330,100 | $330,100 | $0.00 | | |
| CWWBOND | C OF WW BOND 643 | 0.2760494372 | $330,100 | $330,100 | $91.12 | | |
| CWWGEN | CITY OF WW 631 | 1.6100204973 | $330,100 | $330,100 | $531.47 | | |
| CWWRFD | CITY OF WALLA WALLA REFUND 631 | 0.0000000000 | $330,100 | $330,100 | $0.00 | | |
| | Total Tax Rate: | 8.7973694689 | | | | | |
| | | | | Taxes w/Current Exemptions: | $2,904.00 | | |
| | | | | Taxes w/o Exemptions: | $2,904.00 | | |
Improvement / Building
| Improvement #1: | RESIDENTIAL | State Code: | 11 | 1200.0 sqft | Value: | $258,100 |
| Exterior Wall: | VINYL | Foundation: | CONC-12 | | Heating/Cooling: | WARM & COOLED AIR | Number of Bathrooms: | 2 | | Number of Bedrooms: | 4 | Plumbing: | 9 | | Roof Covering: | COMP SHINGLE |   |   |
|
| | Type | Description | Class CD | Sub Class CD | Year Built | Area |
| | MA | Main Area | 1 | 25 | 1949 | 1200.0 |
| | SI1 | SITE IMPROVEMENT | 1 | 25 | 0 | 2.5 |
| | BASE | BASEMENT | 1 | 25 | 1949 | 720.0 |
| | DTG | Detached Garage | 1 | 25 | 1949 | 396.0 |
| | WOD | Wood Deck | 1 | 25 | 1949 | 240.0 |
| | BPF | BASEMENT -PARTITIONED FINISH | 1 | 25 | 1949 | 360.0 |
Sketch
Property Image
Land
| 1 | RES 1 | Converted: Residential | 0.2066 | 9000.00 | 0.00 | 0.00 | 1.00 | $72,000 | $0 |
Roll Value History
| 2026 | N/A | N/A | N/A | N/A | N/A |
| 2025 | $258,100 | $72,000 | $0 | $330,100 | $330,100 |
| 2024 | $258,100 | $72,000 | $0 | $330,100 | $330,100 |
| 2023 | $258,100 | $72,000 | $0 | $330,100 | $330,100 |
| 2022 | $280,310 | $47,250 | $0 | $327,560 | $327,560 |
| 2021 | $180,840 | $47,250 | $0 | $228,090 | $228,090 |
| 2020 | $164,400 | $47,250 | $0 | $211,650 | $211,650 |
| 2019 | $164,400 | $47,250 | $0 | $211,650 | $211,650 |
| 2018 | $149,460 | $47,250 | $0 | $196,710 | $196,710 |
| 2017 | $135,870 | $47,250 | $0 | $183,120 | $183,120 |
| 2016 | $116,700 | $36,000 | $0 | $152,700 | $152,700 |
| 2015 | $48,000 | $36,000 | $0 | $84,000 | $84,000 |
| 2014 | $9,000 | $36,000 | $0 | $45,000 | $45,000 |
| 2013 | $9,000 | $36,000 | $0 | $45,000 | $45,000 |
| 2012 | $124,300 | $36,000 | $0 | $0 | $0 |
| 2011 | $126,100 | $36,000 | $0 | $0 | $0 |
| 2010 | $126,100 | $36,000 | $0 | $0 | $0 |
| 2009 | $144,100 | $36,000 | $0 | $0 | $0 |
| 2008 | $108,100 | $36,000 | $0 | $0 | $0 |
| 2007 | $108,100 | $36,000 | $0 | $0 | $0 |
Deed and Sales History
| 1 | 01/12/2018 | SWD | STATUTORY WARRANTY DEED | WALTER SHEILA | BROWN BRANDON L & JENNIFER L | | | $229,000.00 | 133992 | 2018-00373 |
| 2 | 12/21/2015 | SWD | STATUTORY WARRANTY DEED | MIRONOV MIKHAIL & NATALIYA | WALTER SHEILA | | | $197,000.00 | 129385 | 2015-10895 |
| 3 | 02/14/2014 | SWD | STATUTORY WARRANTY DEED | MC EWEN VANDY | MIRONOV MIKHAIL & NATALIYA | | | $45,000.00 | 125445 | 2014-01153 |
| 4 | 03/31/2010 | DEATH CERT | DEATH CERTIFICATE | MC EWEN RANDY & VANDY | MC EWEN VANDY | | | | 0 | 2014-01152 |
| 5 | 04/24/1997 | WARRANTY D | WARRANTY DEED | | | | | $70,000.00 | 88047 | 2519-703645 |
Payout Agreement
| No payout information available.. |