Property
Account |
| Property ID: | 8870 | Abbreviated Legal Description: | ALDERBROOK PARK LOT 20 BLK 1 PLUS STRIP TO THE S. |
| Parcel Number: | 360722510120 | Agent Code: | |
| Type: | Real | | |
| Tax Area: | 6 - OL-140-F-FB | Land Use Code | 11 |
| Open Space: | N | DFL | N |
| Historic Property: | N | Remodel Property: | N |
| Multi-Family Redevelopment: | N | | |
| Township: | 7 | Section: | 22 |
| Range: | 36 |
Location |
| Address: | 1918 E ALDER ST WA 99362 | Mapsco: | |
| Neighborhood: | A SFR | Map ID: | |
| Neighborhood CD: | 413011 |
Owner |
| Name: | SHARPE MELISSIA | Owner ID: | 65873 |
| Mailing Address: | 1918 E ALDER ST WALLA WALLA, WA 99362 | % Ownership: | 100.0000000000% |
| | | Exemptions: | |
Taxes and Assessment Details
Property Tax Information as of
02/21/2026
Click on "Statement Details" to expand or collapse a tax statement.
* Please enter a valid date ** Please enter a valid date *
Statement Details |
| | TOTAL: | $0.00 | $0.00 | $0.00 | $0.00 | $0.00 | $0.00 |
|
| | $0.00 | $0.00 | $0.00 | $0.00 | $0.00 | $0.00 |
Values
| (+) Improvement Homesite Value: | + | $0 | |
| (+) Improvement Non-Homesite Value: | + | $270,350 | |
| (+) Land Homesite Value: | + | $0 | |
| (+) Land Non-Homesite Value: | + | $56,230 | |
| (+) Curr Use (HS): | + | $0 | $0 |
| (+) Curr Use (NHS): | + | $0 | $0 |
| | | -------------------------- | |
| (=) Market Value: | = | $326,580 | |
| (–) Productivity Loss: | – | $0 | |
| | | -------------------------- | |
| (=) Subtotal: | = | $326,580 | |
| (+) Senior Appraised Value: | + | $0 | |
| (+) Non-Senior Appraised Value: | + | $326,580 | |
| | | -------------------------- | |
| (=) Total Appraised Value: | = | $326,580 | |
| (–) Senior Exemption Loss: | – | $0 | |
| (–) Exemption Loss: | – | $0 | |
| | | -------------------------- | |
| (=) Taxable Value: | = | $326,580 | |
Taxing Jurisdiction
| Owner: | SHARPE MELISSIA | | |
| % Ownership: | 100.0000000000% | | |
| Total Value: | $326,580 | | |
| Tax Area: | 6 - OL-140-F-FB |
| CERFD | CURRENT EXPENSE REFUND 010 | 0.0000000000 | $326,580 | $326,580 | $0.00 | | |
| CURREXP | CURRENT EXPENSE 010 | 1.0175366760 | $326,580 | $326,580 | $332.31 | | |
| HUMNSERV | HUMAN SERVICES 119 | 0.0250000000 | $326,580 | $326,580 | $8.16 | | |
| SLDREL | SOLDIERS RELIEF 121 | 0.0155990005 | $326,580 | $326,580 | $5.09 | | |
| EMERGSER | EMS 147 | 0.3792580840 | $326,580 | $326,580 | $123.86 | | |
| EMSRFD | EMS REFUND 147 | 0.0000000000 | $326,580 | $326,580 | $0.00 | | |
| PORTRFD | PORT REFUND 640 | 0.0000000000 | $326,580 | $326,580 | $0.00 | | |
| PORTWWGEN | PORT OF WW 640 | 0.2460186015 | $326,580 | $326,580 | $80.34 | | |
| SD140BOND | SD #140 BOND 764 | 0.8342371393 | $326,580 | $326,580 | $272.45 | | |
| SD140GEN | SD #140 GENERAL 760 | 2.0646500647 | $326,580 | $326,580 | $674.27 | | |
| ST2 | STATE SCHOOL PART 2 600 | 0.8131451643 | $326,580 | $326,580 | $265.56 | | |
| STATESCHL | STATE SCHOOL 600 | 1.5158548041 | $326,580 | $326,580 | $495.05 | | |
| STREFUND | STATE REFUND LEVY 603 | 0.0000000000 | $326,580 | $326,580 | $0.00 | | |
| CWWBOND | C OF WW BOND 643 | 0.2760494372 | $326,580 | $326,580 | $90.15 | | |
| CWWGEN | CITY OF WW 631 | 1.6100204973 | $326,580 | $326,580 | $525.80 | | |
| CWWRFD | CITY OF WALLA WALLA REFUND 631 | 0.0000000000 | $326,580 | $326,580 | $0.00 | | |
| | Total Tax Rate: | 8.7973694689 | | | | | |
| | | | | Taxes w/Current Exemptions: | $2,873.04 | | |
| | | | | Taxes w/o Exemptions: | $2,873.04 | | |
Improvement / Building
| Improvement #1: | RESIDENTIAL | State Code: | 11 | 1500.0 sqft | Value: | $270,350 |
| Exterior Wall: | VINYL | Heating/Cooling: | BASEBOARD ELECTRIC | | Number of Bathrooms: | 1 | Number of Bedrooms: | 3 | | Plumbing: | 6 | Roof Covering: | GALVANIZED METAL |
|
| | Type | Description | Class CD | Sub Class CD | Year Built | Area |
| | MA | Main Area | 1 | 30 | 1970 | 1500.0 |
| | CPC | COVERED CARPORT/PATIO | 1 | 30 | 0 | 182.0 |
| | SI1 | SITE IMPROVEMENT | 1 | 30 | 0 | 3.0 |
| | RPO | OPEN PORCH W/ROOF | 1 | 30 | 1970 | 45.0 |
Sketch
Property Image
Land
| 1 | RES 1 | Converted: Residential | 0.1614 | 7029.00 | 0.00 | 0.00 | 1.00 | $56,230 | $0 |
Roll Value History
| 2026 | N/A | N/A | N/A | N/A | N/A |
| 2025 | $283,870 | $56,230 | $0 | $340,100 | $340,100 |
| 2024 | $270,350 | $56,230 | $0 | $326,580 | $326,580 |
| 2023 | $270,350 | $56,230 | $0 | $326,580 | $326,580 |
| 2022 | $277,000 | $36,900 | $0 | $313,900 | $313,900 |
| 2021 | $213,070 | $36,900 | $0 | $249,970 | $249,970 |
| 2020 | $157,830 | $36,900 | $0 | $194,730 | $194,730 |
| 2019 | $157,830 | $36,900 | $0 | $194,730 | $194,730 |
| 2018 | $121,410 | $36,900 | $0 | $158,310 | $158,310 |
| 2017 | $121,410 | $36,900 | $0 | $158,310 | $158,310 |
| 2016 | $126,550 | $28,100 | $0 | $154,650 | $154,650 |
| 2015 | $110,040 | $28,100 | $0 | $138,140 | $138,140 |
| 2014 | $104,800 | $28,100 | $0 | $132,900 | $132,900 |
| 2013 | $104,800 | $28,100 | $0 | $132,900 | $132,900 |
| 2012 | $104,800 | $28,100 | $0 | $0 | $0 |
| 2011 | $110,600 | $28,100 | $0 | $0 | $0 |
| 2010 | $110,600 | $28,100 | $0 | $0 | $0 |
| 2009 | $126,000 | $28,100 | $0 | $0 | $0 |
| 2008 | $126,000 | $28,100 | $0 | $0 | $0 |
| 2007 | $126,000 | $28,100 | $0 | $0 | $0 |
Deed and Sales History
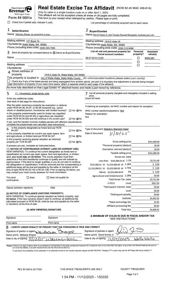
| 1 | 11/12/2025 | SWD | STATUTORY WARRANTY DEED | SHARPE MELISSIA | NUNEZ DAVID JR & YAZMIN PASCUAL-HERNANDEZ | | | $341,000.00 | 150335 | 2025-07004 |
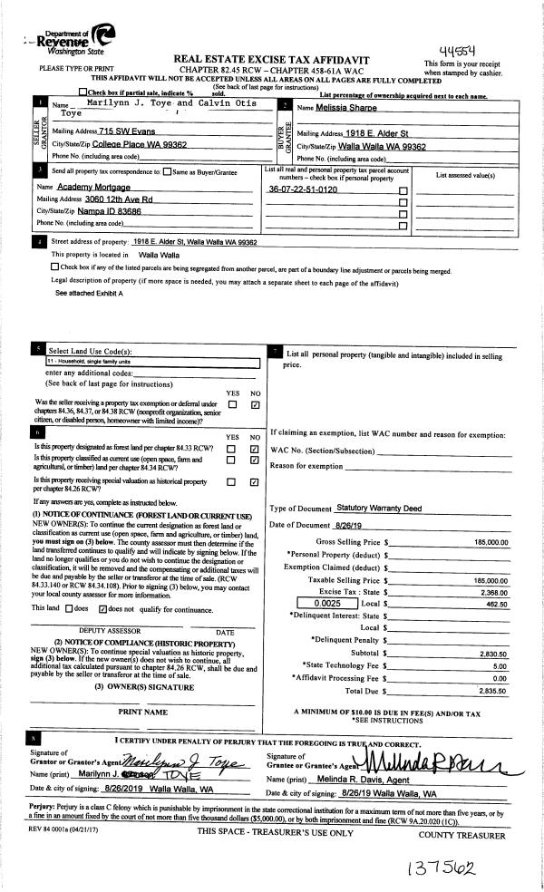
| 2 | 08/26/2019 | SWD | STATUTORY WARRANTY DEED | JOHNSON MARILYN J | SHARPE MELISSIA | | | $185,000.00 | 137562 | 2019-06584 |
| 3 | 08/26/2019 | LOPA | LACK OF PROBATE AFFIDAVIT | | JOHNSON MARILYN J | | | | 137617 | 2019-06583 |
| 4 | 11/14/2018 | DEATH CERT | DEATH CERTIFICATE | JOHNSON RODNEY LEE | | | | | 0 | 2018-09421 |
| 5 | | COMMUNITY | COMMUNITY PROPERTY AGREEMENT | | | | | | 0 | 1981-08252 |
| 6 | 06/15/2005 | WARRANTY D | WARRANTY DEED | BEAL, ELLEN M LIFE EST | JOHNSON, RODNEY L | | | $104,000.00 | 107731 | 2005-07198 |
| 7 | 08/12/1970 | WARRANTY D | WARRANTY DEED | | | | | $19,000.00 | 0 | 3370-509512 |
Payout Agreement
| No payout information available.. |