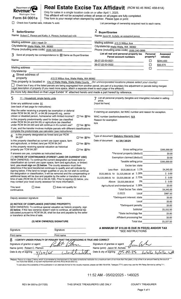
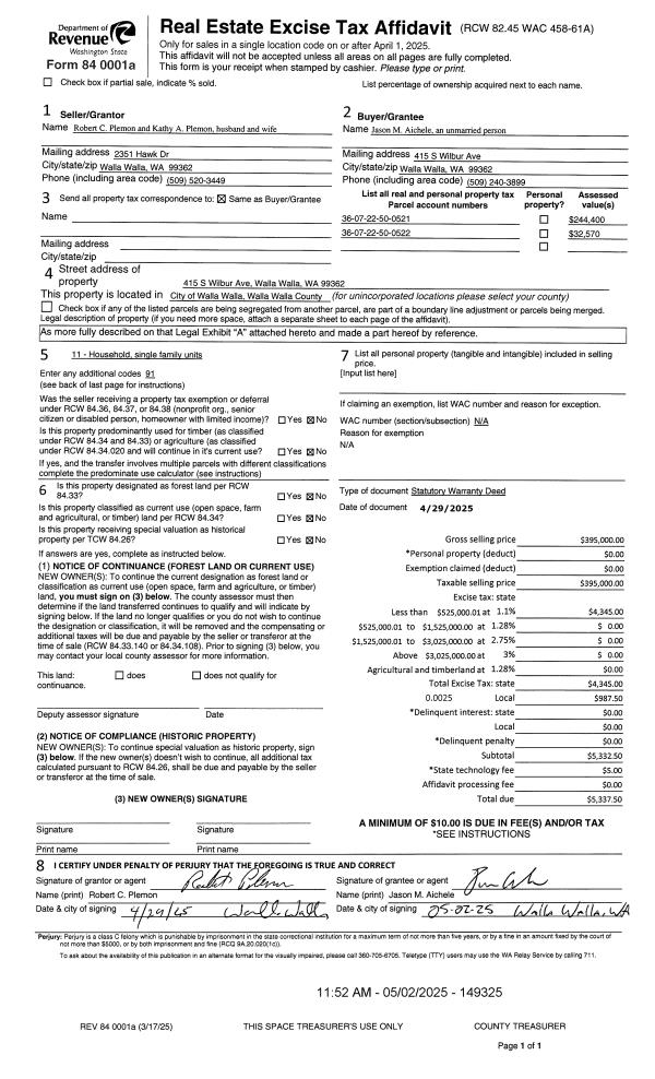
Property
Account |
| Property ID: | 8852 | Abbreviated Legal Description: | PARKSIDE LOT 21 BLK 5 |
| Parcel Number: | 360722500521 | Agent Code: | |
| Type: | Real | | |
| Tax Area: | 1 - OL-140-F | Land Use Code | 11 |
| Open Space: | N | DFL | N |
| Historic Property: | N | Remodel Property: | N |
| Multi-Family Redevelopment: | N | | |
| Township: | 7 | Section: | 22 |
| Range: | 36 |
Location |
| Address: | 415 S WILBUR AVE WA 99362 | Mapsco: | |
| Neighborhood: | SFR MH | Map ID: | |
| Neighborhood CD: | 413061 |
Owner |
| Name: | AICHELE JASON M | Owner ID: | 77028 |
| Mailing Address: | 415 S WILBUR AVE WALLA WALLA, WA 99362 | % Ownership: | 100.0000000000% |
| | | Exemptions: | |
Taxes and Assessment Details
Property Tax Information as of
02/21/2026
Click on "Statement Details" to expand or collapse a tax statement.
* Please enter a valid date ** Please enter a valid date *
Statement Details |
| | TOTAL: | $0.00 | $0.00 | $0.00 | $0.00 | $0.00 | $0.00 |
|
| | $0.00 | $0.00 | $0.00 | $0.00 | $0.00 | $0.00 |
Values
| (+) Improvement Homesite Value: | + | $0 | |
| (+) Improvement Non-Homesite Value: | + | $293,400 | |
| (+) Land Homesite Value: | + | $0 | |
| (+) Land Non-Homesite Value: | + | $48,800 | |
| (+) Curr Use (HS): | + | $0 | $0 |
| (+) Curr Use (NHS): | + | $0 | $0 |
| | | -------------------------- | |
| (=) Market Value: | = | $342,200 | |
| (–) Productivity Loss: | – | $0 | |
| | | -------------------------- | |
| (=) Subtotal: | = | $342,200 | |
| (+) Senior Appraised Value: | + | $0 | |
| (+) Non-Senior Appraised Value: | + | $342,200 | |
| | | -------------------------- | |
| (=) Total Appraised Value: | = | $342,200 | |
| (–) Senior Exemption Loss: | – | $0 | |
| (–) Exemption Loss: | – | $0 | |
| | | -------------------------- | |
| (=) Taxable Value: | = | $342,200 | |
Taxing Jurisdiction
| Owner: | AICHELE JASON M | | |
| % Ownership: | 100.0000000000% | | |
| Total Value: | $342,200 | | |
| Tax Area: | 1 - OL-140-F |
| CERFD | CURRENT EXPENSE REFUND 010 | 0.0000000000 | $342,200 | $342,200 | $0.00 | | |
| CURREXP | CURRENT EXPENSE 010 | 0.9851088983 | $342,200 | $342,200 | $337.10 | | |
| HUMNSERV | HUMAN SERVICES 119 | 0.0250000000 | $342,200 | $342,200 | $8.56 | | |
| SLDREL | SOLDIERS RELIEF 121 | 0.0155990000 | $342,200 | $342,200 | $5.34 | | |
| EMERGSER | EMS 147 | 0.3676811629 | $342,200 | $342,200 | $125.82 | | |
| EMSRFD | EMS REFUND 147 | 0.0000000000 | $342,200 | $342,200 | $0.00 | | |
| PORTRFD | PORT REFUND 640 | 0.0000000000 | $342,200 | $342,200 | $0.00 | | |
| PORTWWGEN | PORT OF WW 640 | 0.2344301070 | $342,200 | $342,200 | $80.22 | | |
| SD140BOND | SD #140 BOND 764 | 0.8032434458 | $342,200 | $342,200 | $274.87 | | |
| SD140CAP | SD #140 CAP 762 | 0.3840034221 | $342,200 | $342,200 | $131.41 | | |
| SD140GEN | SD #140 GENERAL 760 | 2.4999999996 | $342,200 | $342,200 | $855.50 | | |
| ST2 | STATE SCHOOL PART 2 600 | 0.8853714103 | $342,200 | $342,200 | $302.97 | | |
| STATESCHL | STATE SCHOOL 600 | 1.6424571473 | $342,200 | $342,200 | $562.05 | | |
| STREFUND | STATE REFUND LEVY 603 | 0.0000000000 | $342,200 | $342,200 | $0.00 | | |
| CWWBOND | C OF WW BOND 643 | 0.2642134255 | $342,200 | $342,200 | $90.41 | | |
| CWWGEN | CITY OF WW 631 | 1.6110494978 | $342,200 | $342,200 | $551.30 | | |
| CWWRFD | CITY OF WALLA WALLA REFUND 631 | 0.0000000000 | $342,200 | $342,200 | $0.00 | | |
| | Total Tax Rate: | 9.7181575166 | | | | | |
| | | | | Taxes w/Current Exemptions: | $3,325.55 | | |
| | | | | Taxes w/o Exemptions: | $3,325.55 | | |
Improvement / Building
| Improvement #1: | MANUFACTURED HOME | State Code: | 11 | 1404.0 sqft | Value: | $293,400 |
| Exterior Wall: | HARDBOARD | Heating/Cooling: | WARM & COOLED AIR | | Number of Bathrooms: | 2 | Number of Bedrooms: | 3 | | Plumbing: | 8 | Roof Covering: | COMP SHINGLE |
|
| | Type | Description | Class CD | Sub Class CD | Year Built | Area |
| | MOBHOME | MANUFACTURD HOMES | 1 | 40 | 1996 | 1404.0 |
| | MI1 | MH SET-UP COSTS | 1 | 40 | 0 | 1.0 |
| | ATG | Attached Garage | 1 | 40 | 1996 | 864.0 |
Sketch
Property Image
Land
| 1 | RES 1 | Converted: Residential | 0.1400 | 6100.00 | 0.00 | 0.00 | 1.00 | $48,800 | $0 |
Roll Value History
| 2026 | N/A | N/A | N/A | N/A | N/A |
| 2025 | $293,400 | $48,800 | $0 | $342,200 | $342,200 |
| 2024 | $195,600 | $48,800 | $0 | $244,400 | $244,400 |
| 2023 | $195,600 | $48,800 | $0 | $244,400 | $244,400 |
| 2022 | $206,020 | $32,030 | $0 | $238,050 | $238,050 |
| 2021 | $147,160 | $32,030 | $0 | $179,190 | $179,190 |
| 2020 | $113,200 | $32,030 | $0 | $145,230 | $145,230 |
| 2019 | $113,200 | $32,030 | $0 | $145,230 | $145,230 |
| 2018 | $113,200 | $32,030 | $0 | $145,230 | $145,230 |
| 2017 | $113,200 | $32,030 | $0 | $145,230 | $145,230 |
| 2016 | $113,200 | $24,400 | $0 | $137,600 | $137,600 |
| 2015 | $113,200 | $24,400 | $0 | $137,600 | $137,600 |
| 2014 | $109,900 | $24,400 | $0 | $134,300 | $134,300 |
| 2013 | $109,900 | $24,400 | $0 | $134,300 | $134,300 |
| 2012 | $87,500 | $24,400 | $0 | $0 | $0 |
| 2011 | $87,300 | $24,400 | $0 | $0 | $0 |
| 2010 | $87,300 | $24,400 | $0 | $0 | $0 |
| 2009 | $93,200 | $24,400 | $0 | $0 | $0 |
| 2008 | $93,200 | $24,400 | $0 | $0 | $0 |
| 2007 | $93,200 | $24,400 | $0 | $0 | $0 |
Deed and Sales History
| 1 | 05/02/2025 | SWD | STATUTORY WARRANTY DEED | PLEMON ROBERT C & KATHY A | AICHELE JASON M | | 2-PARCELS | $395,000.00 | 149325 | 2025-02390 |
|   | |
| 2 | 08/18/2014 | SWD | STATUTORY WARRANTY DEED | TESKE PATRICIA ANNE | PLEMON ROBERT C & KATHY A | | 2-PARCELS | $156,000.00 | 126479 | 2014-05980 |
|   | |
| 3 | 11/21/2003 | WARRANTY D | WARRANTY DEED | "KING, RHONDA L" | TESKE PATRICIA ANNE | | | | 103569 | 2003-17953 |
| 4 | 09/24/1996 | WARRANTY D | WARRANTY DEED | | | | | $83,000.00 | 86909 | 2449-609704 |
|   | |
Payout Agreement
| No payout information available.. |