Property
Account |
| Property ID: | 8839 | Abbreviated Legal Description: | 22-7-36 LOT 1 OF S/P (NLY PTN TAX 66, PLUS STRIP TO E ALL WITHINSW1/4SW1/4) |
| Parcel Number: | 360722330108 | Agent Code: | |
| Type: | Real | | |
| Tax Area: | 1 - OL-140-F | Land Use Code | 11 |
| Open Space: | N | DFL | N |
| Historic Property: | N | Remodel Property: | N |
| Multi-Family Redevelopment: | N | | |
| Township: | 7 | Section: | 22 |
| Range: | 36 |
Location |
| Address: | 435 SYCAMORE ST WA 99362 | Mapsco: | |
| Neighborhood: | A SFR | Map ID: | |
| Neighborhood CD: | 413011 |
Owner |
| Name: | ALVAREZ ANAYELI | Owner ID: | 64580 |
| Mailing Address: | 435 SYCAMORE ST WALLA WALLA, WA 99362 | % Ownership: | 100.0000000000% |
| | | Exemptions: | |
Taxes and Assessment Details
Values
| (+) Improvement Homesite Value: | + | $0 | |
| (+) Improvement Non-Homesite Value: | + | $189,400 | |
| (+) Land Homesite Value: | + | $0 | |
| (+) Land Non-Homesite Value: | + | $59,900 | |
| (+) Curr Use (HS): | + | $0 | $0 |
| (+) Curr Use (NHS): | + | $0 | $0 |
| | | -------------------------- | |
| (=) Market Value: | = | $249,300 | |
| (–) Productivity Loss: | – | $0 | |
| | | -------------------------- | |
| (=) Subtotal: | = | $249,300 | |
| (+) Senior Appraised Value: | + | $0 | |
| (+) Non-Senior Appraised Value: | + | $249,300 | |
| | | -------------------------- | |
| (=) Total Appraised Value: | = | $249,300 | |
| (–) Senior Exemption Loss: | – | $0 | |
| (–) Exemption Loss: | – | $0 | |
| | | -------------------------- | |
| (=) Taxable Value: | = | $249,300 | |
Taxing Jurisdiction
| Owner: | ALVAREZ ANAYELI | | |
| % Ownership: | 100.0000000000% | | |
| Total Value: | $249,300 | | |
| Tax Area: | 1 - OL-140-F |
| CERFD | CURRENT EXPENSE REFUND 010 | 0.0000000000 | $249,300 | $249,300 | $0.00 | | |
| CURREXP | CURRENT EXPENSE 010 | 1.0175366760 | $249,300 | $249,300 | $253.67 | | |
| HUMNSERV | HUMAN SERVICES 119 | 0.0250000000 | $249,300 | $249,300 | $6.23 | | |
| SLDREL | SOLDIERS RELIEF 121 | 0.0155990005 | $249,300 | $249,300 | $3.89 | | |
| EMERGSER | EMS 147 | 0.3792580840 | $249,300 | $249,300 | $94.55 | | |
| EMSRFD | EMS REFUND 147 | 0.0000000000 | $249,300 | $249,300 | $0.00 | | |
| PORTRFD | PORT REFUND 640 | 0.0000000000 | $249,300 | $249,300 | $0.00 | | |
| PORTWWGEN | PORT OF WW 640 | 0.2460186015 | $249,300 | $249,300 | $61.33 | | |
| SD140BOND | SD #140 BOND 764 | 0.8342371393 | $249,300 | $249,300 | $207.98 | | |
| SD140GEN | SD #140 GENERAL 760 | 2.0646500647 | $249,300 | $249,300 | $514.72 | | |
| ST2 | STATE SCHOOL PART 2 600 | 0.8131451643 | $249,300 | $249,300 | $202.72 | | |
| STATESCHL | STATE SCHOOL 600 | 1.5158548041 | $249,300 | $249,300 | $377.90 | | |
| STREFUND | STATE REFUND LEVY 603 | 0.0000000000 | $249,300 | $249,300 | $0.00 | | |
| CWWBOND | C OF WW BOND 643 | 0.2760494372 | $249,300 | $249,300 | $68.82 | | |
| CWWGEN | CITY OF WW 631 | 1.6100204973 | $249,300 | $249,300 | $401.38 | | |
| CWWRFD | CITY OF WALLA WALLA REFUND 631 | 0.0000000000 | $249,300 | $249,300 | $0.00 | | |
| | Total Tax Rate: | 8.7973694689 | | | | | |
| | | | | Taxes w/Current Exemptions: | $2,193.19 | | |
| | | | | Taxes w/o Exemptions: | $2,193.19 | | |
Improvement / Building
| Improvement #1: | RESIDENTIAL | State Code: | 11 | 988.0 sqft | Value: | $189,400 |
| Exterior Wall: | PLYWOOD | Heating/Cooling: | WARM & COOLED AIR | | Number of Bathrooms: | 1 | Number of Bedrooms: | 2 | | Plumbing: | 6 | Roof Covering: | COMP SHINGLE |
|
| | Type | Description | Class CD | Sub Class CD | Year Built | Area |
| | MA | Main Area | 1 | 30 | 1999 | 988.0 |
| | CPC | COVERED CARPORT/PATIO | 1 | 30 | 0 | 320.0 |
| | SI1 | SITE IMPROVEMENT | 1 | 30 | 0 | 2.0 |
| | WDR | WOOD DECK W/ROOF | 1 | 30 | 0 | 68.0 |
| | WDR | WOOD DECK W/ROOF | 1 | 30 | 0 | 176.0 |
| | CPC | COVERED CARPORT/PATIO | 1 | 30 | 1999 | 80.0 |
Sketch
Property Image
Land
| 1 | RES 1 | Converted: Residential | 0.1719 | 7487.00 | 0.00 | 0.00 | 1.00 | $59,900 | $0 |
Roll Value History
| 2026 | N/A | N/A | N/A | N/A | N/A |
| 2025 | $218,760 | $59,900 | $0 | $278,660 | $278,660 |
| 2024 | $198,870 | $59,900 | $0 | $258,770 | $258,770 |
| 2023 | $189,400 | $59,900 | $0 | $249,300 | $249,300 |
| 2022 | $196,860 | $39,310 | $0 | $236,170 | $236,170 |
| 2021 | $131,240 | $39,310 | $0 | $170,550 | $170,550 |
| 2020 | $100,960 | $39,310 | $0 | $140,270 | $140,270 |
| 2019 | $100,960 | $39,310 | $0 | $140,270 | $140,270 |
| 2018 | $91,780 | $39,310 | $0 | $131,090 | $131,090 |
| 2017 | $91,780 | $39,310 | $0 | $131,090 | $131,090 |
| 2016 | $103,720 | $29,900 | $0 | $133,620 | $133,620 |
| 2015 | $98,790 | $29,900 | $0 | $128,690 | $128,690 |
| 2014 | $85,900 | $29,900 | $0 | $115,800 | $115,800 |
| 2013 | $85,900 | $29,900 | $0 | $115,800 | $115,800 |
| 2012 | $85,900 | $29,900 | $0 | $0 | $0 |
| 2011 | $87,800 | $29,900 | $0 | $0 | $0 |
| 2010 | $87,800 | $29,900 | $0 | $0 | $0 |
| 2009 | $100,900 | $29,900 | $0 | $0 | $0 |
| 2008 | $67,000 | $29,900 | $0 | $0 | $0 |
| 2007 | $67,000 | $29,900 | $0 | $0 | $0 |
Deed and Sales History
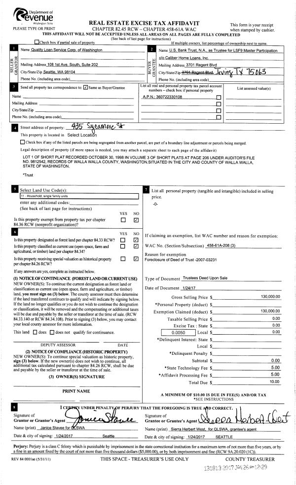
| 1 | 01/15/2019 | BARGAIN & | BARGAIN & SALE DEED | US BANK TRUST | ALVAREZ ANAYELI | | | $158,500.00 | 136249 | 2019-00314 |
| 2 | 01/26/2017 | TRUSTEES D | TRUSTEE'S DEED | WILLIAMS WILLIAM M | US BANK TRUST | | | $130,000.00 | 131813 | 2017-00681 |
| 3 | 04/19/1999 | WARRANTY D | WARRANTY DEED | | | | | $80,000.00 | 92581 | 2829-904725 |
Payout Agreement
| No payout information available.. |