Property
Account |
| Property ID: | 8836 | Abbreviated Legal Description: | 22-7-36 TRACT B OF SURVEY (SLY PTN TAX 7 & ALL TAX 7A WITHIN SW1/4SW1/4) |
| Parcel Number: | 360722330102 | Agent Code: | |
| Type: | Real | | |
| Tax Area: | 6 - OL-140-F-FB | Land Use Code | 11 |
| Open Space: | N | DFL | N |
| Historic Property: | N | Remodel Property: | N |
| Multi-Family Redevelopment: | N | | |
| Township: | 7 | Section: | 22 |
| Range: | 36 |
Location |
| Address: | 1622 E ALDER ST WA 99362 | Mapsco: | |
| Neighborhood: | A SFR | Map ID: | |
| Neighborhood CD: | 413011 |
Owner |
| Name: | SZUCH MATTHEW K | Owner ID: | 70764 |
| Mailing Address: | 1622 E ALDER ST WALLA WALLA, WA 99362 | % Ownership: | 100.0000000000% |
| | | Exemptions: | |
Taxes and Assessment Details
Values
| (+) Improvement Homesite Value: | + | $0 | |
| (+) Improvement Non-Homesite Value: | + | $207,470 | |
| (+) Land Homesite Value: | + | $0 | |
| (+) Land Non-Homesite Value: | + | $99,470 | |
| (+) Curr Use (HS): | + | $0 | $0 |
| (+) Curr Use (NHS): | + | $0 | $0 |
| | | -------------------------- | |
| (=) Market Value: | = | $306,940 | |
| (–) Productivity Loss: | – | $0 | |
| | | -------------------------- | |
| (=) Subtotal: | = | $306,940 | |
| (+) Senior Appraised Value: | + | $0 | |
| (+) Non-Senior Appraised Value: | + | $306,940 | |
| | | -------------------------- | |
| (=) Total Appraised Value: | = | $306,940 | |
| (–) Senior Exemption Loss: | – | $0 | |
| (–) Exemption Loss: | – | $0 | |
| | | -------------------------- | |
| (=) Taxable Value: | = | $306,940 | |
Taxing Jurisdiction
| Owner: | SZUCH MATTHEW K | | |
| % Ownership: | 100.0000000000% | | |
| Total Value: | $306,940 | | |
| Tax Area: | 6 - OL-140-F-FB |
| CERFD | CURRENT EXPENSE REFUND 010 | 0.0000000000 | $306,940 | $306,940 | $0.00 | | |
| CURREXP | CURRENT EXPENSE 010 | 1.0175366760 | $306,940 | $306,940 | $312.32 | | |
| HUMNSERV | HUMAN SERVICES 119 | 0.0250000000 | $306,940 | $306,940 | $7.67 | | |
| SLDREL | SOLDIERS RELIEF 121 | 0.0155990005 | $306,940 | $306,940 | $4.79 | | |
| EMERGSER | EMS 147 | 0.3792580840 | $306,940 | $306,940 | $116.41 | | |
| EMSRFD | EMS REFUND 147 | 0.0000000000 | $306,940 | $306,940 | $0.00 | | |
| PORTRFD | PORT REFUND 640 | 0.0000000000 | $306,940 | $306,940 | $0.00 | | |
| PORTWWGEN | PORT OF WW 640 | 0.2460186015 | $306,940 | $306,940 | $75.51 | | |
| SD140BOND | SD #140 BOND 764 | 0.8342371393 | $306,940 | $306,940 | $256.06 | | |
| SD140GEN | SD #140 GENERAL 760 | 2.0646500647 | $306,940 | $306,940 | $633.72 | | |
| ST2 | STATE SCHOOL PART 2 600 | 0.8131451643 | $306,940 | $306,940 | $249.59 | | |
| STATESCHL | STATE SCHOOL 600 | 1.5158548041 | $306,940 | $306,940 | $465.28 | | |
| STREFUND | STATE REFUND LEVY 603 | 0.0000000000 | $306,940 | $306,940 | $0.00 | | |
| CWWBOND | C OF WW BOND 643 | 0.2760494372 | $306,940 | $306,940 | $84.73 | | |
| CWWGEN | CITY OF WW 631 | 1.6100204973 | $306,940 | $306,940 | $494.18 | | |
| CWWRFD | CITY OF WALLA WALLA REFUND 631 | 0.0000000000 | $306,940 | $306,940 | $0.00 | | |
| | Total Tax Rate: | 8.7973694689 | | | | | |
| | | | | Taxes w/Current Exemptions: | $2,700.26 | | |
| | | | | Taxes w/o Exemptions: | $2,700.26 | | |
Improvement / Building
| Improvement #1: | RESIDENTIAL | State Code: | 11 | 957.0 sqft | Value: | $207,470 |
| Exterior Wall: | SIDING | Heating/Cooling: | FORCED AIR | | Number of Bathrooms: | 2 | Number of Bedrooms: | 3 | | Plumbing: | 9 | Roof Covering: | COMP SHINGLE |
|
| | Type | Description | Class CD | Sub Class CD | Year Built | Area |
| | MA | Main Area | 1 | 30 | 1940 | 957.0 |
| | CPC | COVERED CARPORT/PATIO | 1 | 30 | 0 | 210.0 |
| | SI1 | SITE IMPROVEMENT | 1 | 30 | 0 | 1.0 |
| | BASE | BASEMENT | 1 | 30 | 1940 | 936.0 |
| | BPF | BASEMENT -PARTITIONED FINISH | 1 | 30 | 1940 | 936.0 |
| | DTG | Detached Garage | 1 | 30 | 1940 | 440.0 |
| | OSP | Open | 1 | 30 | 1940 | 16.0 |
Sketch
Property Image
Land
| 1 | RES 1 | Converted: Residential | 0.9800 | 42689.00 | 0.00 | 0.00 | 1.00 | $99,470 | $0 |
Roll Value History
| 2026 | N/A | N/A | N/A | N/A | N/A |
| 2025 | $217,840 | $99,470 | $0 | $317,310 | $317,310 |
| 2024 | $207,470 | $99,470 | $0 | $306,940 | $306,940 |
| 2023 | $207,470 | $99,470 | $0 | $306,940 | $306,940 |
| 2022 | $187,370 | $78,550 | $0 | $265,920 | $265,920 |
| 2021 | $124,910 | $78,550 | $0 | $203,460 | $203,460 |
| 2020 | $83,280 | $78,550 | $0 | $161,830 | $161,830 |
| 2019 | $83,280 | $78,550 | $0 | $161,830 | $161,830 |
| 2018 | $83,280 | $78,550 | $0 | $161,830 | $161,830 |
| 2017 | $83,280 | $78,550 | $0 | $161,830 | $161,830 |
| 2016 | $73,500 | $64,500 | $0 | $138,000 | $138,000 |
| 2015 | $73,500 | $64,500 | $0 | $138,000 | $138,000 |
| 2014 | $70,000 | $64,500 | $0 | $134,500 | $134,500 |
| 2013 | $70,000 | $64,500 | $0 | $134,500 | $134,500 |
| 2012 | $70,000 | $64,500 | $0 | $0 | $0 |
| 2011 | $83,000 | $57,700 | $0 | $0 | $0 |
| 2010 | $83,000 | $57,700 | $0 | $0 | $0 |
| 2009 | $98,600 | $57,700 | $0 | $0 | $0 |
| 2008 | $98,600 | $57,700 | $0 | $0 | $0 |
| 2007 | $98,600 | $57,700 | $0 | $0 | $0 |
Deed and Sales History
| 1 | 08/04/2025 | QCD | QUIT CLAIM DEED | SZUCH BONNIE M | SZUCH WILLIAM A & BONNIE M | | | | 149818 | 2025-04581 |
| 2 | 08/04/2025 | SURVEY | SURVEY | | | 14 | 266 | | 149818 | 2025-04582 |
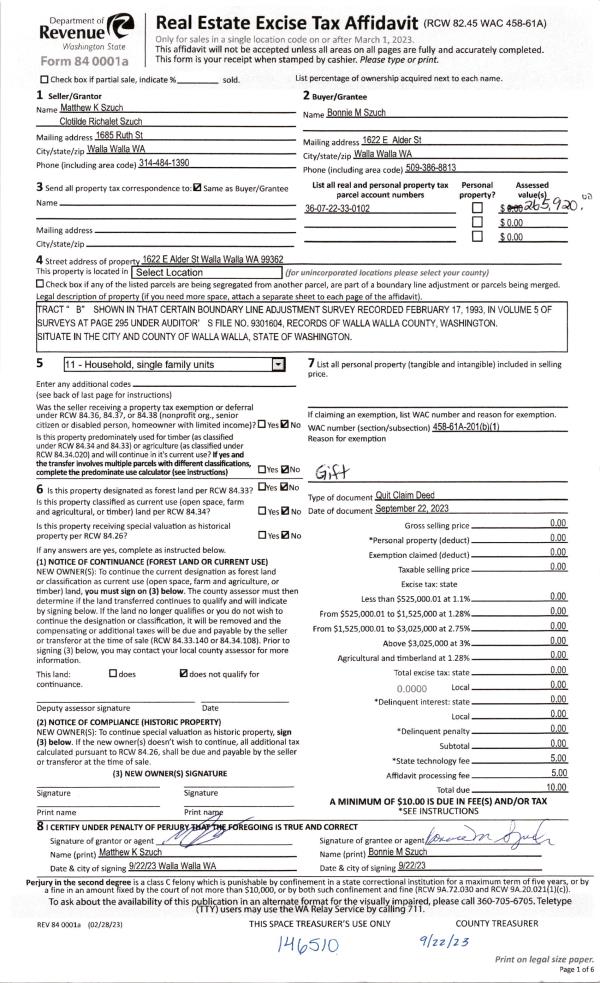
| 3 | 09/22/2023 | QCD | QUIT CLAIM DEED | SZUCH MATTHEW K | SZUCH BONNIE M | | | | 146510 | 2023-05537 |
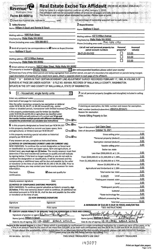
| 4 | 12/10/2021 | QCD | QUIT CLAIM DEED | SZUCH WILLIAM A & BONNIE M | SZUCH MATTHEW K | | | $0.00 | 143037 | 2021-14545 |
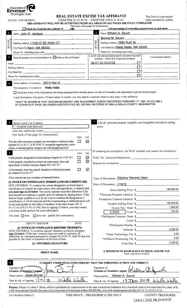
| 5 | 01/24/2018 | SWD | STATUTORY WARRANTY DEED | JACKSON JOHN E | SZUCH WILLIAM A & BONNIE M | | | $150,000.00 | 134041 | 2018-00691 |
| 6 | 11/24/1970 | WARRANTY D | WARRANTY DEED | | | | | $500.00 | 0 | 3229-4 |
Payout Agreement
| No payout information available.. |