Property
Account |
| Property ID: | 8820 | Abbreviated Legal Description: | 22-7-36 TAX 69 PLUS 3' STRIP TO E |
| Parcel Number: | 360722330059 | Agent Code: | |
| Type: | Real | | |
| Tax Area: | 1 - OL-140-F | Land Use Code | 11 |
| Open Space: | N | DFL | N |
| Historic Property: | N | Remodel Property: | N |
| Multi-Family Redevelopment: | N | | |
| Township: | 7 | Section: | 22 |
| Range: | 36 |
Location |
| Address: | 425 SYCAMORE ST WA 99362 | Mapsco: | |
| Neighborhood: | A SFR | Map ID: | |
| Neighborhood CD: | 413011 |
Owner |
| Name: | WARD SARAH | Owner ID: | 70302 |
| Mailing Address: | 425 SYCAMORE ST WALLA WALLA, WA 99362 | % Ownership: | 100.0000000000% |
| | | Exemptions: | |
Taxes and Assessment Details
Values
| (+) Improvement Homesite Value: | + | $0 | |
| (+) Improvement Non-Homesite Value: | + | $164,190 | |
| (+) Land Homesite Value: | + | $0 | |
| (+) Land Non-Homesite Value: | + | $82,510 | |
| (+) Curr Use (HS): | + | $0 | $0 |
| (+) Curr Use (NHS): | + | $0 | $0 |
| | | -------------------------- | |
| (=) Market Value: | = | $246,700 | |
| (–) Productivity Loss: | – | $0 | |
| | | -------------------------- | |
| (=) Subtotal: | = | $246,700 | |
| (+) Senior Appraised Value: | + | $0 | |
| (+) Non-Senior Appraised Value: | + | $246,700 | |
| | | -------------------------- | |
| (=) Total Appraised Value: | = | $246,700 | |
| (–) Senior Exemption Loss: | – | $0 | |
| (–) Exemption Loss: | – | $0 | |
| | | -------------------------- | |
| (=) Taxable Value: | = | $246,700 | |
Taxing Jurisdiction
| Owner: | WARD SARAH | | |
| % Ownership: | 100.0000000000% | | |
| Total Value: | $246,700 | | |
| Tax Area: | 1 - OL-140-F |
| CERFD | CURRENT EXPENSE REFUND 010 | 0.0000000000 | $246,700 | $246,700 | $0.00 | | |
| CURREXP | CURRENT EXPENSE 010 | 1.0175366760 | $246,700 | $246,700 | $251.03 | | |
| HUMNSERV | HUMAN SERVICES 119 | 0.0250000000 | $246,700 | $246,700 | $6.17 | | |
| SLDREL | SOLDIERS RELIEF 121 | 0.0155990005 | $246,700 | $246,700 | $3.85 | | |
| EMERGSER | EMS 147 | 0.3792580840 | $246,700 | $246,700 | $93.56 | | |
| EMSRFD | EMS REFUND 147 | 0.0000000000 | $246,700 | $246,700 | $0.00 | | |
| PORTRFD | PORT REFUND 640 | 0.0000000000 | $246,700 | $246,700 | $0.00 | | |
| PORTWWGEN | PORT OF WW 640 | 0.2460186015 | $246,700 | $246,700 | $60.69 | | |
| SD140BOND | SD #140 BOND 764 | 0.8342371393 | $246,700 | $246,700 | $205.81 | | |
| SD140GEN | SD #140 GENERAL 760 | 2.0646500647 | $246,700 | $246,700 | $509.35 | | |
| ST2 | STATE SCHOOL PART 2 600 | 0.8131451643 | $246,700 | $246,700 | $200.60 | | |
| STATESCHL | STATE SCHOOL 600 | 1.5158548041 | $246,700 | $246,700 | $373.96 | | |
| STREFUND | STATE REFUND LEVY 603 | 0.0000000000 | $246,700 | $246,700 | $0.00 | | |
| CWWBOND | C OF WW BOND 643 | 0.2760494372 | $246,700 | $246,700 | $68.10 | | |
| CWWGEN | CITY OF WW 631 | 1.6100204973 | $246,700 | $246,700 | $397.19 | | |
| CWWRFD | CITY OF WALLA WALLA REFUND 631 | 0.0000000000 | $246,700 | $246,700 | $0.00 | | |
| | Total Tax Rate: | 8.7973694689 | | | | | |
| | | | | Taxes w/Current Exemptions: | $2,170.31 | | |
| | | | | Taxes w/o Exemptions: | $2,170.31 | | |
Improvement / Building
| Improvement #1: | RESIDENTIAL | State Code: | 11 | 1036.0 sqft | Value: | $164,190 |
| Exterior Wall: | SIDING | Foundation: | POST & PIER | | Heating/Cooling: | MINI-SPLIT HP SYSTEM | Number of Bathrooms: | 1 | | Number of Bedrooms: | 3 | Plumbing: | 6 | | Roof Covering: | COMP SHINGLE |   |   |
|
| | Type | Description | Class CD | Sub Class CD | Year Built | Area |
| | MA | Main Area | 1 | 25 | 1946 | 1036.0 |
| | SI1 | SITE IMPROVEMENT | 1 | 25 | 0 | 2.0 |
| | WOD | Wood Deck | 1 | 25 | 1946 | 200.0 |
| | OSP | Open | 1 | 25 | 1946 | 45.0 |
| | UTST | Utility Storage Shed | 1 | 25 | 1946 | 120.0 |
Sketch
Property Image
Land
| 1 | RES 1 | Converted: Residential | 0.3232 | 14080.00 | 0.00 | 0.00 | 1.00 | $82,510 | $0 |
Roll Value History
| 2026 | N/A | N/A | N/A | N/A | N/A |
| 2025 | $164,190 | $82,510 | $0 | $246,700 | $246,700 |
| 2024 | $164,190 | $82,510 | $0 | $246,700 | $246,700 |
| 2023 | $164,190 | $82,510 | $0 | $246,700 | $246,700 |
| 2022 | $190,830 | $55,760 | $0 | $246,590 | $246,590 |
| 2021 | $131,610 | $55,760 | $0 | $187,370 | $187,370 |
| 2020 | $94,010 | $55,760 | $0 | $149,770 | $149,770 |
| 2019 | $94,010 | $55,760 | $0 | $149,770 | $149,770 |
| 2018 | $85,460 | $55,760 | $0 | $141,220 | $141,220 |
| 2017 | $81,390 | $55,760 | $0 | $137,150 | $137,150 |
| 2016 | $40,960 | $43,100 | $0 | $84,060 | $84,060 |
| 2015 | $40,960 | $43,100 | $0 | $84,060 | $84,060 |
| 2014 | $51,200 | $43,100 | $0 | $94,300 | $94,300 |
| 2013 | $51,200 | $43,100 | $0 | $94,300 | $94,300 |
| 2012 | $51,200 | $43,100 | $0 | $0 | $0 |
| 2011 | $64,500 | $43,100 | $0 | $0 | $0 |
| 2010 | $50,500 | $43,100 | $0 | $0 | $0 |
| 2009 | $60,900 | $43,100 | $0 | $0 | $0 |
| 2008 | $60,900 | $43,100 | $0 | $0 | $0 |
| 2007 | $60,900 | $43,100 | $0 | $0 | $0 |
Deed and Sales History
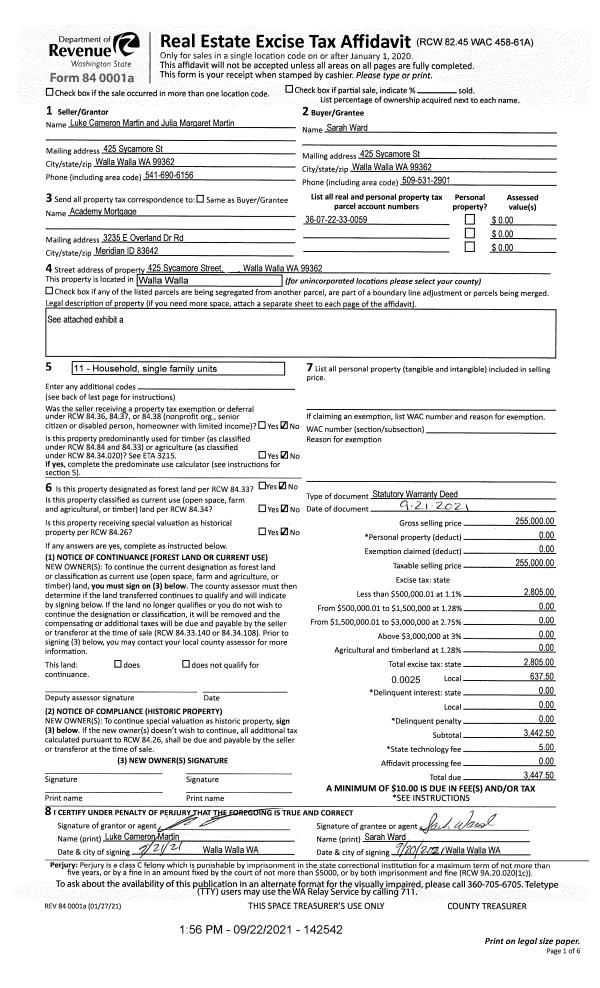
| 1 | 09/22/2021 | SWD | STATUTORY WARRANTY DEED | MARTIN LUKE CAMERON & JULIA MARGARET | WARD SARAH | | | $255,000.00 | 142542 | 2021-11631 |
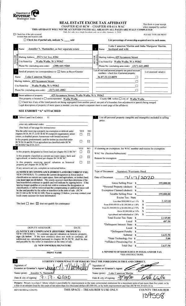
| 2 | 07/23/2020 | SWD | STATUTORY WARRANTY DEED | MATTMILLER JENNIFER N | MARTIN LUKE CAMERON & JULIA MARGARET | | | $195,000.00 | 139558 | 2020-07110 |
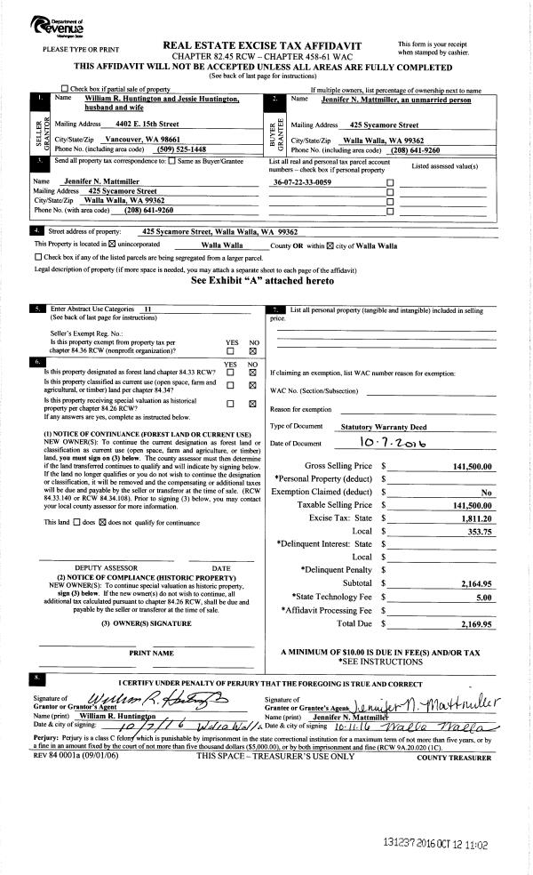
| 3 | 10/12/2016 | SWD | STATUTORY WARRANTY DEED | HUNTINGTON WILLIAM R & JESSIE | MATTMILLER JENNIFER N | | | $141,500.00 | 131237 | 2016-08430 |
| 4 | 06/24/1985 | WARRANTY D | WARRANTY DEED | | | | | $36,500.00 | 0 | 1508-504161 |
Payout Agreement
| No payout information available.. |