Property
Account |
| Property ID: | 8811 | Abbreviated Legal Description: | 22-7-36 TAX 11B |
| Parcel Number: | 360722330026 | Agent Code: | |
| Type: | Real | | |
| Tax Area: | 6 - OL-140-F-FB | Land Use Code | 11 |
| Open Space: | N | DFL | N |
| Historic Property: | N | Remodel Property: | N |
| Multi-Family Redevelopment: | N | | |
| Township: | 7 | Section: | 22 |
| Range: | 36 |
Location |
| Address: | 1675 RUTH ST WA 99362 | Mapsco: | |
| Neighborhood: | A SFR Contig | Map ID: | |
| Neighborhood CD: | 413097 |
Owner |
| Name: | BARNETT SKYLER W | Owner ID: | 60896 |
| Mailing Address: | 1675 RUTH ST WALLA WALLA, WA 99362 | % Ownership: | 100.0000000000% |
| | | Exemptions: | |
Taxes and Assessment Details
Values
| (+) Improvement Homesite Value: | + | $0 | |
| (+) Improvement Non-Homesite Value: | + | $11,850 | |
| (+) Land Homesite Value: | + | $0 | |
| (+) Land Non-Homesite Value: | + | $8,120 | |
| (+) Curr Use (HS): | + | $0 | $0 |
| (+) Curr Use (NHS): | + | $0 | $0 |
| | | -------------------------- | |
| (=) Market Value: | = | $19,970 | |
| (–) Productivity Loss: | – | $0 | |
| | | -------------------------- | |
| (=) Subtotal: | = | $19,970 | |
| (+) Senior Appraised Value: | + | $0 | |
| (+) Non-Senior Appraised Value: | + | $19,970 | |
| | | -------------------------- | |
| (=) Total Appraised Value: | = | $19,970 | |
| (–) Senior Exemption Loss: | – | $0 | |
| (–) Exemption Loss: | – | $0 | |
| | | -------------------------- | |
| (=) Taxable Value: | = | $19,970 | |
Taxing Jurisdiction
| Owner: | BARNETT SKYLER W | | |
| % Ownership: | 100.0000000000% | | |
| Total Value: | $19,970 | | |
| Tax Area: | 6 - OL-140-F-FB |
| CERFD | CURRENT EXPENSE REFUND 010 | 0.0000000000 | $19,970 | $19,970 | $0.00 | | |
| CURREXP | CURRENT EXPENSE 010 | 1.0175366760 | $19,970 | $19,970 | $20.32 | | |
| HUMNSERV | HUMAN SERVICES 119 | 0.0250000000 | $19,970 | $19,970 | $0.50 | | |
| SLDREL | SOLDIERS RELIEF 121 | 0.0155990005 | $19,970 | $19,970 | $0.31 | | |
| EMERGSER | EMS 147 | 0.3792580840 | $19,970 | $19,970 | $7.57 | | |
| EMSRFD | EMS REFUND 147 | 0.0000000000 | $19,970 | $19,970 | $0.00 | | |
| PORTRFD | PORT REFUND 640 | 0.0000000000 | $19,970 | $19,970 | $0.00 | | |
| PORTWWGEN | PORT OF WW 640 | 0.2460186015 | $19,970 | $19,970 | $4.91 | | |
| SD140BOND | SD #140 BOND 764 | 0.8342371393 | $19,970 | $19,970 | $16.66 | | |
| SD140GEN | SD #140 GENERAL 760 | 2.0646500647 | $19,970 | $19,970 | $41.23 | | |
| ST2 | STATE SCHOOL PART 2 600 | 0.8131451643 | $19,970 | $19,970 | $16.24 | | |
| STATESCHL | STATE SCHOOL 600 | 1.5158548041 | $19,970 | $19,970 | $30.27 | | |
| STREFUND | STATE REFUND LEVY 603 | 0.0000000000 | $19,970 | $19,970 | $0.00 | | |
| CWWBOND | C OF WW BOND 643 | 0.2760494372 | $19,970 | $19,970 | $5.51 | | |
| CWWGEN | CITY OF WW 631 | 1.6100204973 | $19,970 | $19,970 | $32.15 | | |
| CWWRFD | CITY OF WALLA WALLA REFUND 631 | 0.0000000000 | $19,970 | $19,970 | $0.00 | | |
| | Total Tax Rate: | 8.7973694689 | | | | | |
| | | | | Taxes w/Current Exemptions: | $175.67 | | |
| | | | | Taxes w/o Exemptions: | $175.67 | | |
Improvement / Building
| Improvement #1: | RESIDENTIAL | State Code: | 11 | 0.0 sqft | Value: | $11,850 |
| | Type | Description | Class CD | Sub Class CD | Year Built | Area |
| | SMP | SWIMMING POOL | 1 | 30 | 0 | 1.0 |
| | UTST | Utility Storage Shed | 1 | 30 | 0 | 288.0 |
| | UTST | Utility Storage Shed | 1 | 30 | 0 | 144.0 |
Sketch
Property Image
Land
| 1 | RES 1 | Converted: Residential | 0.3100 | 13504.00 | 0.00 | 0.00 | 1.00 | $8,120 | $0 |
Roll Value History
| 2026 | N/A | N/A | N/A | N/A | N/A |
| 2025 | $11,850 | $8,120 | $0 | $19,970 | $19,970 |
| 2024 | $11,850 | $8,120 | $0 | $19,970 | $19,970 |
| 2023 | $11,850 | $8,120 | $0 | $19,970 | $19,970 |
| 2022 | $8,000 | $10,590 | $0 | $18,590 | $18,590 |
| 2021 | $8,000 | $10,590 | $0 | $18,590 | $18,590 |
| 2020 | $8,000 | $10,590 | $0 | $18,590 | $18,590 |
| 2019 | $8,000 | $10,590 | $0 | $18,590 | $18,590 |
| 2018 | $8,000 | $10,590 | $0 | $18,590 | $18,590 |
| 2017 | $8,000 | $10,590 | $0 | $18,590 | $18,590 |
| 2016 | $8,000 | $10,200 | $0 | $18,200 | $18,200 |
| 2015 | $8,000 | $10,200 | $0 | $18,200 | $18,200 |
| 2014 | $8,000 | $10,200 | $0 | $18,200 | $18,200 |
| 2013 | $8,000 | $10,200 | $0 | $18,200 | $18,200 |
| 2012 | $8,000 | $10,200 | $0 | $0 | $0 |
| 2011 | $7,300 | $10,100 | $0 | $0 | $0 |
| 2010 | $7,300 | $10,100 | $0 | $0 | $0 |
| 2009 | $7,300 | $10,100 | $0 | $0 | $0 |
| 2008 | $7,300 | $10,100 | $0 | $0 | $0 |
| 2007 | $7,300 | $10,100 | $0 | $0 | $0 |
Deed and Sales History
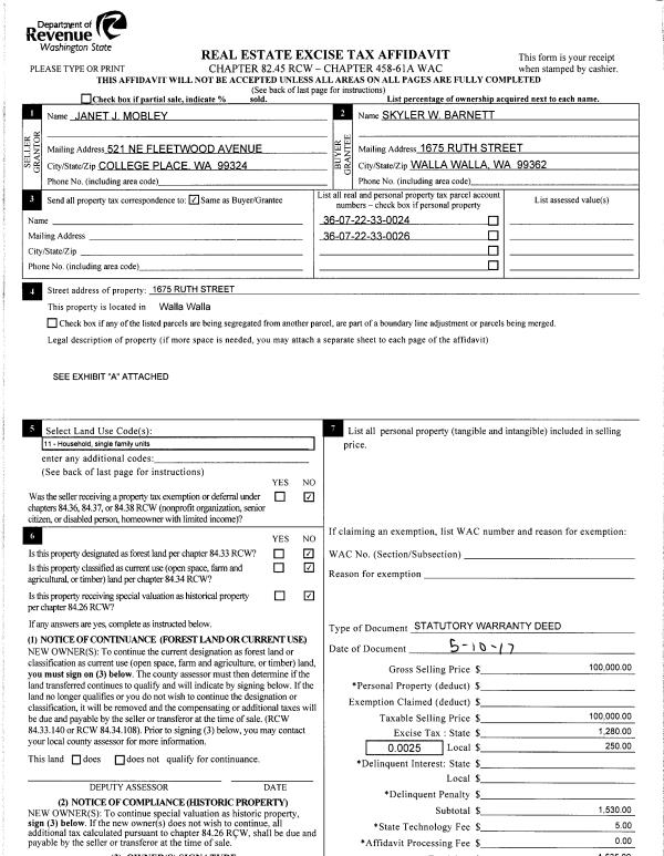
| 1 | 05/10/2017 | SWD | STATUTORY WARRANTY DEED | MOBLEY JANET J | BARNETT SKYLER W | | 2-PARCELS | $100,000.00 | 132354 | 2017-03529 |
|   | |
| 2 | 08/01/1967 | WARRANTY D | WARRANTY DEED | | | | | | 0 | 3230-487865 |
Payout Agreement
| No payout information available.. |