Property
Account |
| Property ID: | 8800 | Abbreviated Legal Description: | 22-7-36 TAX 48 |
| Parcel Number: | 360722230031 | Agent Code: | |
| Type: | Real | | |
| Tax Area: | 6 - OL-140-F-FB | Land Use Code | 11 |
| Open Space: | N | DFL | N |
| Historic Property: | N | Remodel Property: | N |
| Multi-Family Redevelopment: | N | | |
| Township: | 7 | Section: | 22 |
| Range: | 36 |
Location |
| Address: | 103 UNION ST WA 99362 | Mapsco: | |
| Neighborhood: | A SFR | Map ID: | |
| Neighborhood CD: | 413011 |
Owner |
| Name: | BRYANT LAURA L | Owner ID: | 72146 |
| Mailing Address: | 103 UNION ST WALLA WALLA, WA 99362 | % Ownership: | 100.0000000000% |
| | | Exemptions: | |
Taxes and Assessment Details
Values
| (+) Improvement Homesite Value: | + | $0 | |
| (+) Improvement Non-Homesite Value: | + | $23,500 | |
| (+) Land Homesite Value: | + | $0 | |
| (+) Land Non-Homesite Value: | + | $12,850 | |
| (+) Curr Use (HS): | + | $0 | $0 |
| (+) Curr Use (NHS): | + | $0 | $0 |
| | | -------------------------- | |
| (=) Market Value: | = | $36,350 | |
| (–) Productivity Loss: | – | $0 | |
| | | -------------------------- | |
| (=) Subtotal: | = | $36,350 | |
| (+) Senior Appraised Value: | + | $0 | |
| (+) Non-Senior Appraised Value: | + | $36,350 | |
| | | -------------------------- | |
| (=) Total Appraised Value: | = | $36,350 | |
| (–) Senior Exemption Loss: | – | $0 | |
| (–) Exemption Loss: | – | $0 | |
| | | -------------------------- | |
| (=) Taxable Value: | = | $36,350 | |
Taxing Jurisdiction
| Owner: | BRYANT LAURA L | | |
| % Ownership: | 100.0000000000% | | |
| Total Value: | $36,350 | | |
| Tax Area: | 6 - OL-140-F-FB |
| CERFD | CURRENT EXPENSE REFUND 010 | 0.0000000000 | $36,350 | $36,350 | $0.00 | | |
| CURREXP | CURRENT EXPENSE 010 | 1.0175366760 | $36,350 | $36,350 | $36.99 | | |
| HUMNSERV | HUMAN SERVICES 119 | 0.0250000000 | $36,350 | $36,350 | $0.91 | | |
| SLDREL | SOLDIERS RELIEF 121 | 0.0155990005 | $36,350 | $36,350 | $0.57 | | |
| EMERGSER | EMS 147 | 0.3792580840 | $36,350 | $36,350 | $13.79 | | |
| EMSRFD | EMS REFUND 147 | 0.0000000000 | $36,350 | $36,350 | $0.00 | | |
| PORTRFD | PORT REFUND 640 | 0.0000000000 | $36,350 | $36,350 | $0.00 | | |
| PORTWWGEN | PORT OF WW 640 | 0.2460186015 | $36,350 | $36,350 | $8.94 | | |
| SD140BOND | SD #140 BOND 764 | 0.8342371393 | $36,350 | $36,350 | $30.32 | | |
| SD140GEN | SD #140 GENERAL 760 | 2.0646500647 | $36,350 | $36,350 | $75.05 | | |
| ST2 | STATE SCHOOL PART 2 600 | 0.8131451643 | $36,350 | $36,350 | $29.56 | | |
| STATESCHL | STATE SCHOOL 600 | 1.5158548041 | $36,350 | $36,350 | $55.10 | | |
| STREFUND | STATE REFUND LEVY 603 | 0.0000000000 | $36,350 | $36,350 | $0.00 | | |
| CWWBOND | C OF WW BOND 643 | 0.2760494372 | $36,350 | $36,350 | $10.03 | | |
| CWWGEN | CITY OF WW 631 | 1.6100204973 | $36,350 | $36,350 | $58.52 | | |
| CWWRFD | CITY OF WALLA WALLA REFUND 631 | 0.0000000000 | $36,350 | $36,350 | $0.00 | | |
| | Total Tax Rate: | 8.7973694689 | | | | | |
| | | | | Taxes w/Current Exemptions: | $319.78 | | |
| | | | | Taxes w/o Exemptions: | $319.78 | | |
Improvement / Building
| Improvement #1: | RESIDENTIAL | State Code: | 18 | 0.0 sqft | Value: | $23,500 |
| | Type | Description | Class CD | Sub Class CD | Year Built | Area |
| | POL3 | POLE BUILDING-CON,ELEC,INSU | 1 | 30 | 0 | 1152.0 |
| | HAYSHED | HAYSHED | 1 | 30 | 0 | 720.0 |
Sketch
Property Image
Land
| 1 | RES 1 | Converted: Residential | 0.5000 | 21780.00 | 0.00 | 0.00 | 1.00 | $12,850 | $0 |
Roll Value History
| 2026 | N/A | N/A | N/A | N/A | N/A |
| 2025 | $339,900 | $87,120 | $0 | $427,020 | $427,020 |
| 2024 | $261,460 | $87,120 | $0 | $348,580 | $348,580 |
| 2023 | $23,500 | $12,850 | $0 | $36,350 | $36,350 |
| 2022 | $23,500 | $10,000 | $0 | $33,500 | $33,500 |
| 2021 | $23,500 | $10,000 | $0 | $33,500 | $33,500 |
| 2020 | $23,500 | $10,000 | $0 | $33,500 | $33,500 |
| 2019 | $23,500 | $10,000 | $0 | $33,500 | $33,500 |
| 2018 | $23,500 | $10,000 | $0 | $33,500 | $33,500 |
| 2017 | $23,500 | $10,000 | $0 | $33,500 | $33,500 |
| 2016 | $23,500 | $16,400 | $0 | $39,900 | $39,900 |
| 2015 | $23,500 | $16,400 | $0 | $39,900 | $39,900 |
| 2014 | $23,500 | $16,400 | $0 | $39,900 | $39,900 |
| 2013 | $23,500 | $16,400 | $0 | $39,900 | $39,900 |
| 2012 | $23,500 | $16,400 | $0 | $0 | $0 |
| 2011 | $11,500 | $16,300 | $0 | $0 | $0 |
| 2010 | $11,500 | $16,300 | $0 | $0 | $0 |
| 2009 | $11,500 | $16,300 | $0 | $0 | $0 |
| 2008 | $11,500 | $16,300 | $0 | $0 | $0 |
| 2007 | $11,500 | $16,300 | $0 | $0 | $0 |
Deed and Sales History
| 1 | 06/26/2024 | QCD | QUIT CLAIM DEED | BRYANT LAURA L | BRYANT DAVID I & LAURA L | | | | 147775 | 2024-03418 |
| 2 | 11/02/2022 | SURVEY | SURVEY | | | 14 | 77 | | 0 | 2022-08900 |
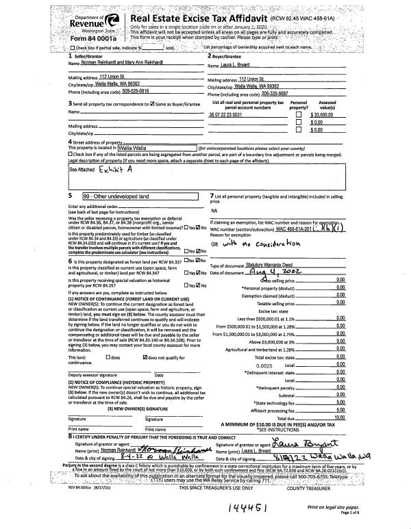
| 3 | 08/05/2022 | SWD | STATUTORY WARRANTY DEED | REINHARDT NORMAN | BRYANT LAURA L | | | $0.00 | 144451 | 2022-06575 |
| 4 | 05/10/1972 | WARRANTY D | WARRANTY DEED | | REINHARDT NORMAN & MARY ANN | | | $500.00 | 0 | 3450-521066 |
Payout Agreement
| No payout information available.. |