Property
Account |
| Property ID: | 8787 | Abbreviated Legal Description: | 22-7-36 TAX 50A & TAX 83 |
| Parcel Number: | 360722220012 | Agent Code: | |
| Type: | Real | | |
| Tax Area: | 1 - OL-140-F | Land Use Code | 53 |
| Open Space: | N | DFL | N |
| Historic Property: | N | Remodel Property: | N |
| Multi-Family Redevelopment: | N | | |
| Township: | 7 | Section: | 22 |
| Range: | 36 |
Location |
| Address: | 2205 ISAACS AVE WA 99362 | Mapsco: | |
| Neighborhood: | Walla Walla Commercial 5 | Map ID: | |
| Neighborhood CD: | 4306 |
Owner |
| Name: | SILA PROPERTIES LLC | Owner ID: | 77326 |
| Mailing Address: | 2205 ISAACS AVE WALLA WALLA, WA | % Ownership: | 100.0000000000% |
| | | Exemptions: | |
Taxes and Assessment Details
Values
| (+) Improvement Homesite Value: | + | N/A | |
| (+) Improvement Non-Homesite Value: | + | N/A | |
| (+) Land Homesite Value: | + | N/A | |
| (+) Land Non-Homesite Value: | + | N/A | Ag / Timber Use Value |
| (+) Curr Use (HS): | + | N/A | N/A |
| (+) Curr Use (NHS): | + | N/A | N/A |
| | | -------------------------- | |
| (=) Market Value: | = | N/A | |
| (–) Productivity Loss: | – | N/A | |
| | | -------------------------- | |
| (=) Subtotal: | = | N/A | |
| (+) Senior Appraised Value: | + | N/A | |
| (+) Non-Senior Appraised Value: | + | N/A | |
| | | -------------------------- | |
| (=) Total Appraised Value: | = | N/A | |
| (–) Senior Exemption Loss: | – | N/A | |
| (–) Exemption Loss: | – | N/A | |
| | | -------------------------- | |
| (=) Taxable Value: | = | N/A | |
Taxing Jurisdiction
| Owner: | SILA PROPERTIES LLC | | |
| % Ownership: | 100.0000000000% | | |
| Total Value: | N/A | | |
| Tax Area: | 1 - OL-140-F |
| CERFD | CURRENT EXPENSE REFUND 010 | N/A | N/A | N/A | N/A | | |
| CURREXP | CURRENT EXPENSE 010 | N/A | N/A | N/A | N/A | | |
| HUMNSERV | HUMAN SERVICES 119 | N/A | N/A | N/A | N/A | | |
| SLDREL | SOLDIERS RELIEF 121 | N/A | N/A | N/A | N/A | | |
| EMERGSER | EMS 147 | N/A | N/A | N/A | N/A | | |
| EMSRFD | EMS REFUND 147 | N/A | N/A | N/A | N/A | | |
| PORTRFD | PORT REFUND 640 | N/A | N/A | N/A | N/A | | |
| PORTWWGEN | PORT OF WW 640 | N/A | N/A | N/A | N/A | | |
| SD140BOND | SD #140 BOND 764 | N/A | N/A | N/A | N/A | | |
| SD140GEN | SD #140 GENERAL 760 | N/A | N/A | N/A | N/A | | |
| ST2 | STATE SCHOOL PART 2 600 | N/A | N/A | N/A | N/A | | |
| STATESCHL | STATE SCHOOL 600 | N/A | N/A | N/A | N/A | | |
| STREFUND | STATE REFUND LEVY 603 | N/A | N/A | N/A | N/A | | |
| CWWBOND | C OF WW BOND 643 | N/A | N/A | N/A | N/A | | |
| CWWGEN | CITY OF WW 631 | N/A | N/A | N/A | N/A | | |
| CWWRFD | CITY OF WALLA WALLA REFUND 631 | N/A | N/A | N/A | N/A | | |
| | Total Tax Rate: | N/A | | | | | |
| | | | | Taxes w/Current Exemptions: | N/A | | |
| | | | | Taxes w/o Exemptions: | N/A | | |
Improvement / Building
| Improvement #1: | COMMERCIAL | State Code: | 53 | 25570.0 sqft | Value: | N/A |
| | Type | Description | Class CD | Sub Class CD | Year Built | Area |
| | MA | Main Area | D | * | 1940 | 25570.0 |
| | SI1 | SITE IMPROVEMENT | D | * | 1940 | 2.0 |
Sketch
Property Image
Land
| 1 | COM 1 | Converted: Commercial | 0.9300 | 40510.80 | 0.00 | 0.00 | 1.00 | N/A | N/A |
Roll Value History
| 2026 | N/A | N/A | N/A | N/A | N/A |
| 2025 | $121,800 | $202,600 | $0 | $324,400 | $324,400 |
| 2024 | $104,300 | $202,600 | $0 | $306,900 | $306,900 |
| 2023 | $104,300 | $202,600 | $0 | $306,900 | $306,900 |
| 2022 | $107,600 | $162,040 | $0 | $269,640 | $269,640 |
| 2021 | $107,600 | $162,040 | $0 | $269,640 | $269,640 |
| 2020 | $107,600 | $162,040 | $0 | $269,640 | $269,640 |
| 2019 | $107,600 | $162,040 | $0 | $269,640 | $269,640 |
| 2018 | $107,600 | $162,040 | $0 | $269,640 | $269,640 |
| 2017 | $107,600 | $162,040 | $0 | $269,640 | $269,640 |
| 2016 | $60,200 | $141,800 | $0 | $202,000 | $202,000 |
| 2015 | $60,200 | $141,800 | $0 | $202,000 | $202,000 |
| 2014 | $60,200 | $141,800 | $0 | $202,000 | $202,000 |
| 2013 | $60,200 | $141,800 | $0 | $202,000 | $202,000 |
| 2012 | $60,200 | $141,800 | $0 | $0 | $0 |
| 2011 | $27,100 | $141,800 | $0 | $0 | $0 |
| 2010 | $27,100 | $141,800 | $0 | $0 | $0 |
| 2009 | $27,100 | $141,800 | $0 | $0 | $0 |
| 2008 | $27,100 | $141,800 | $0 | $0 | $0 |
| 2007 | $27,100 | $141,800 | $0 | $0 | $0 |
Deed and Sales History
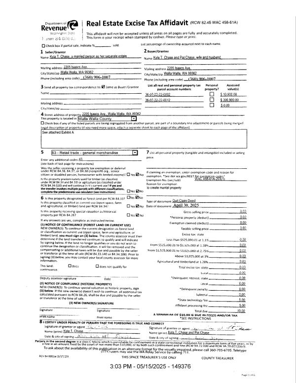
| 1 | 05/29/2025 | QCD | QUIT CLAIM DEED | CHASE KYLA T & PAT | SILA PROPERTIES LLC | | | | 149456 | 2025-03007 |
| 2 | 05/15/2025 | QCD | QUIT CLAIM DEED | CHASE KYLA T | CHASE KYLA T & PAT | | | | 149376 | 2025-02669 |
| 3 | 12/19/2024 | QCD | QUIT CLAIM DEED | GREINER WILLIAM C & SHARIE L | CHASE KYLA T | | | | 148686 | 2024-07313 |
| 4 | 12/18/2024 | QCD | QUIT CLAIM DEED | GREINER PROPERTIES LLC | GREINER WILLIAM C & SHARIE L | | | | 148677 | 2024-07279 |
| 5 | 12/12/2024 | QCD | QUIT CLAIM DEED | GREINER WILLIAM C & SHARIE L | GREINER PROPERTIES LLC | | | | 148641 | 2024-07169 |
| 6 | 09/28/1999 | WARRANTY D | WARRANTY DEED | | | | | $75,000.00 | 93706 | 2899-911176 |
|   | |
Payout Agreement
| No payout information available.. |