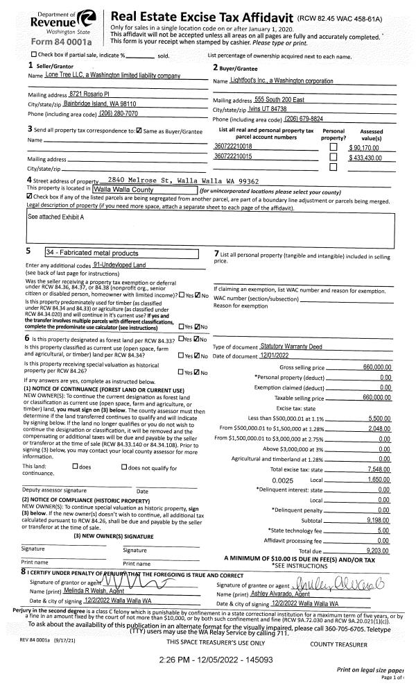
Property
Account |
| Property ID: | 8768 | Abbreviated Legal Description: | 22-7-36 TAX 46R |
| Parcel Number: | 360722210018 | Agent Code: | |
| Type: | Real | | |
| Tax Area: | 6 - OL-140-F-FB | Land Use Code | 34 |
| Open Space: | N | DFL | N |
| Historic Property: | N | Remodel Property: | N |
| Multi-Family Redevelopment: | N | | |
| Township: | 7 | Section: | 22 |
| Range: | 36 |
Location |
| Address: | 2840 MELROSE ST WA 99362 | Mapsco: | |
| Neighborhood: | Walla Walla Commercial 5 | Map ID: | |
| Neighborhood CD: | 4306 |
Owner |
| Name: | LIGHTFOOT'S INC | Owner ID: | 72887 |
| Mailing Address: | 555 SOUTH 200 EAST IVINS, UT 84738 | % Ownership: | 100.0000000000% |
| | | Exemptions: | |
Taxes and Assessment Details
Property Tax Information as of
02/21/2026
Click on "Statement Details" to expand or collapse a tax statement.
* Please enter a valid date ** Please enter a valid date *
Statement Details |
| | TOTAL: | $0.00 | $0.00 | $0.00 | $0.00 | $0.00 | $0.00 |
|
| | $0.00 | $0.00 | $0.00 | $0.00 | $0.00 | $0.00 |
Values
| (+) Improvement Homesite Value: | + | $0 | |
| (+) Improvement Non-Homesite Value: | + | $0 | |
| (+) Land Homesite Value: | + | $0 | |
| (+) Land Non-Homesite Value: | + | $94,700 | |
| (+) Curr Use (HS): | + | $0 | $0 |
| (+) Curr Use (NHS): | + | $0 | $0 |
| | | -------------------------- | |
| (=) Market Value: | = | $94,700 | |
| (–) Productivity Loss: | – | $0 | |
| | | -------------------------- | |
| (=) Subtotal: | = | $94,700 | |
| (+) Senior Appraised Value: | + | $0 | |
| (+) Non-Senior Appraised Value: | + | $94,700 | |
| | | -------------------------- | |
| (=) Total Appraised Value: | = | $94,700 | |
| (–) Senior Exemption Loss: | – | $0 | |
| (–) Exemption Loss: | – | $0 | |
| | | -------------------------- | |
| (=) Taxable Value: | = | $94,700 | |
Taxing Jurisdiction
| Owner: | LIGHTFOOT'S INC | | |
| % Ownership: | 100.0000000000% | | |
| Total Value: | $94,700 | | |
| Tax Area: | 6 - OL-140-F-FB |
| CERFD | CURRENT EXPENSE REFUND 010 | 0.0000000000 | $94,700 | $94,700 | $0.00 | | |
| CURREXP | CURRENT EXPENSE 010 | 0.9851088983 | $94,700 | $94,700 | $93.29 | | |
| HUMNSERV | HUMAN SERVICES 119 | 0.0250000000 | $94,700 | $94,700 | $2.37 | | |
| SLDREL | SOLDIERS RELIEF 121 | 0.0155990000 | $94,700 | $94,700 | $1.48 | | |
| EMERGSER | EMS 147 | 0.3676811629 | $94,700 | $94,700 | $34.82 | | |
| EMSRFD | EMS REFUND 147 | 0.0000000000 | $94,700 | $94,700 | $0.00 | | |
| PORTRFD | PORT REFUND 640 | 0.0000000000 | $94,700 | $94,700 | $0.00 | | |
| PORTWWGEN | PORT OF WW 640 | 0.2344301070 | $94,700 | $94,700 | $22.20 | | |
| SD140BOND | SD #140 BOND 764 | 0.8032434458 | $94,700 | $94,700 | $76.07 | | |
| SD140CAP | SD #140 CAP 762 | 0.3840034221 | $94,700 | $94,700 | $36.37 | | |
| SD140GEN | SD #140 GENERAL 760 | 2.4999999996 | $94,700 | $94,700 | $236.75 | | |
| ST2 | STATE SCHOOL PART 2 600 | 0.8853714103 | $94,700 | $94,700 | $83.84 | | |
| STATESCHL | STATE SCHOOL 600 | 1.6424571473 | $94,700 | $94,700 | $155.54 | | |
| STREFUND | STATE REFUND LEVY 603 | 0.0000000000 | $94,700 | $94,700 | $0.00 | | |
| CWWBOND | C OF WW BOND 643 | 0.2642134255 | $94,700 | $94,700 | $25.02 | | |
| CWWGEN | CITY OF WW 631 | 1.6110494978 | $94,700 | $94,700 | $152.57 | | |
| CWWRFD | CITY OF WALLA WALLA REFUND 631 | 0.0000000000 | $94,700 | $94,700 | $0.00 | | |
| | Total Tax Rate: | 9.7181575166 | | | | | |
| | | | | Taxes w/Current Exemptions: | $920.32 | | |
| | | | | Taxes w/o Exemptions: | $920.32 | | |
Improvement / Building
Sketch
| No sketches available for this property. |
Property Image
Land
| 1 | COM 1 | Converted: Commercial | 0.6900 | 30056.40 | 0.00 | 0.00 | 1.00 | $94,700 | $0 |
Roll Value History
| 2026 | N/A | N/A | N/A | N/A | N/A |
| 2025 | $0 | $94,700 | $0 | $94,700 | $94,700 |
| 2024 | $0 | $94,700 | $0 | $94,700 | $94,700 |
| 2023 | $0 | $94,700 | $0 | $94,700 | $94,700 |
| 2022 | $0 | $90,170 | $0 | $90,170 | $90,170 |
| 2021 | $0 | $90,170 | $0 | $90,170 | $90,170 |
| 2020 | $0 | $90,170 | $0 | $90,170 | $90,170 |
| 2019 | $0 | $90,170 | $0 | $90,170 | $90,170 |
| 2018 | $0 | $90,170 | $0 | $90,170 | $90,170 |
| 2017 | $0 | $90,170 | $0 | $90,170 | $90,170 |
| 2016 | $0 | $37,600 | $0 | $37,600 | $37,600 |
| 2015 | $0 | $37,600 | $0 | $37,600 | $37,600 |
| 2014 | $0 | $37,600 | $0 | $37,600 | $37,600 |
| 2013 | $0 | $37,600 | $0 | $37,600 | $37,600 |
| 2012 | $0 | $37,600 | $0 | $0 | $0 |
| 2011 | $0 | $37,600 | $0 | $0 | $0 |
| 2010 | $0 | $37,600 | $0 | $0 | $0 |
| 2009 | $0 | $37,600 | $0 | $0 | $0 |
| 2008 | $0 | $37,600 | $0 | $0 | $0 |
| 2007 | $0 | $37,600 | $0 | $0 | $0 |
Deed and Sales History
| 1 | 12/05/2022 | SWD | STATUTORY WARRANTY DEED | LONE TREE LLC | LIGHTFOOT'S INC | | 2-PARCELS | $660,000.00 | 145093 | 2022-09495 |
|   | |
| 2 | 12/26/2014 | SWD | STATUTORY WARRANTY DEED | GUISINGER MICHAEL W | LONE TREE LLC | | 2-PARCELS | $467,000.00 | 127184 | 2014-09405 |
|   | |
| 3 | 03/03/1999 | WARRANTY D | WARRANTY DEED | | | | | $225,000.00 | 92281 | 2809-902718 |
|   | |
Payout Agreement
| No payout information available.. |