Property
Account |
| Property ID: | 8743 | Abbreviated Legal Description: | GREENS ANNEX TAX 15 BLK 15 |
| Parcel Number: | 360721751518 | Agent Code: | |
| Type: | Real | | |
| Tax Area: | 1 - OL-140-F | Land Use Code | 11 |
| Open Space: | N | DFL | N |
| Historic Property: | N | Remodel Property: | N |
| Multi-Family Redevelopment: | N | | |
| Township: | 7 | Section: | 21 |
| Range: | 36 |
Location |
| Address: | 1345 ISAACS AVE WA 99362 | Mapsco: | |
| Neighborhood: | A-SFR | Map ID: | |
| Neighborhood CD: | 513011 |
Owner |
| Name: | WEILERT BAKER | Owner ID: | 65687 |
| Mailing Address: | 1345 ISAACS AVE WALLA WALLA, WA 99362 | % Ownership: | 100.0000000000% |
| | | Exemptions: | |
Taxes and Assessment Details
Property Tax Information as of
02/21/2026
Click on "Statement Details" to expand or collapse a tax statement.
* Please enter a valid date ** Please enter a valid date *
Statement Details |
| | TOTAL: | $0.00 | $0.00 | $0.00 | $0.00 | $0.00 | $0.00 |
|
| | $0.00 | $0.00 | $0.00 | $0.00 | $0.00 | $0.00 |
Values
| (+) Improvement Homesite Value: | + | $0 | |
| (+) Improvement Non-Homesite Value: | + | $154,840 | |
| (+) Land Homesite Value: | + | $0 | |
| (+) Land Non-Homesite Value: | + | $23,330 | |
| (+) Curr Use (HS): | + | $0 | $0 |
| (+) Curr Use (NHS): | + | $0 | $0 |
| | | -------------------------- | |
| (=) Market Value: | = | $178,170 | |
| (–) Productivity Loss: | – | $0 | |
| | | -------------------------- | |
| (=) Subtotal: | = | $178,170 | |
| (+) Senior Appraised Value: | + | $0 | |
| (+) Non-Senior Appraised Value: | + | $178,170 | |
| | | -------------------------- | |
| (=) Total Appraised Value: | = | $178,170 | |
| (–) Senior Exemption Loss: | – | $0 | |
| (–) Exemption Loss: | – | $0 | |
| | | -------------------------- | |
| (=) Taxable Value: | = | $178,170 | |
Taxing Jurisdiction
| Owner: | WEILERT BAKER | | |
| % Ownership: | 100.0000000000% | | |
| Total Value: | $178,170 | | |
| Tax Area: | 1 - OL-140-F |
| CERFD | CURRENT EXPENSE REFUND 010 | 0.0000000000 | $178,170 | $178,170 | $0.00 | | |
| CURREXP | CURRENT EXPENSE 010 | 1.0175366760 | $178,170 | $178,170 | $181.29 | | |
| HUMNSERV | HUMAN SERVICES 119 | 0.0250000000 | $178,170 | $178,170 | $4.45 | | |
| SLDREL | SOLDIERS RELIEF 121 | 0.0155990005 | $178,170 | $178,170 | $2.78 | | |
| EMERGSER | EMS 147 | 0.3792580840 | $178,170 | $178,170 | $67.57 | | |
| EMSRFD | EMS REFUND 147 | 0.0000000000 | $178,170 | $178,170 | $0.00 | | |
| PORTRFD | PORT REFUND 640 | 0.0000000000 | $178,170 | $178,170 | $0.00 | | |
| PORTWWGEN | PORT OF WW 640 | 0.2460186015 | $178,170 | $178,170 | $43.83 | | |
| SD140BOND | SD #140 BOND 764 | 0.8342371393 | $178,170 | $178,170 | $148.64 | | |
| SD140GEN | SD #140 GENERAL 760 | 2.0646500647 | $178,170 | $178,170 | $367.86 | | |
| ST2 | STATE SCHOOL PART 2 600 | 0.8131451643 | $178,170 | $178,170 | $144.88 | | |
| STATESCHL | STATE SCHOOL 600 | 1.5158548041 | $178,170 | $178,170 | $270.08 | | |
| STREFUND | STATE REFUND LEVY 603 | 0.0000000000 | $178,170 | $178,170 | $0.00 | | |
| CWWBOND | C OF WW BOND 643 | 0.2760494372 | $178,170 | $178,170 | $49.18 | | |
| CWWGEN | CITY OF WW 631 | 1.6100204973 | $178,170 | $178,170 | $286.86 | | |
| CWWRFD | CITY OF WALLA WALLA REFUND 631 | 0.0000000000 | $178,170 | $178,170 | $0.00 | | |
| | Total Tax Rate: | 8.7973694689 | | | | | |
| | | | | Taxes w/Current Exemptions: | $1,567.42 | | |
| | | | | Taxes w/o Exemptions: | $1,567.42 | | |
Improvement / Building
| Improvement #1: | RESIDENTIAL | State Code: | 11 | 696.0 sqft | Value: | $154,840 |
| Exterior Wall: | STUCCO | Heating/Cooling: | FORCED AIR | | Number of Bathrooms: | 1 | Number of Bedrooms: | 2 | | Plumbing: | 6 | Roof Covering: | COMP SHINGLE |
|
| | Type | Description | Class CD | Sub Class CD | Year Built | Area |
| | MA | Main Area | 1 | 25 | 1945 | 696.0 |
| | SI1 | SITE IMPROVEMENT | 1 | 25 | 1945 | 1.0 |
| | BASE | BASEMENT | 1 | 25 | 1945 | 516.0 |
| | BPF | BASEMENT -PARTITIONED FINISH | 1 | 25 | 1945 | 190.0 |
| | STG1 | Sub Terrain Garage Single | 1 | 25 | 1945 | 1.0 |
| | RPS | PORCH W/STEPS,ROOF | 1 | 25 | 1945 | 18.0 |
| | RPS | PORCH W/STEPS,ROOF | 1 | 25 | 1945 | 20.0 |
Sketch
Property Image
Land
| 1 | RES 1 | Converted: Residential | 0.0857 | 3733.00 | 0.00 | 0.00 | 1.00 | $23,330 | $0 |
Roll Value History
| 2026 | N/A | N/A | N/A | N/A | N/A |
| 2025 | $192,790 | $37,330 | $0 | $230,120 | $230,120 |
| 2024 | $192,790 | $37,330 | $0 | $230,120 | $230,120 |
| 2023 | $154,840 | $23,330 | $0 | $178,170 | $178,170 |
| 2022 | $154,840 | $23,330 | $0 | $178,170 | $178,170 |
| 2021 | $110,600 | $23,330 | $0 | $133,930 | $133,930 |
| 2020 | $55,300 | $23,330 | $0 | $78,630 | $78,630 |
| 2019 | $55,300 | $23,330 | $0 | $78,630 | $78,630 |
| 2018 | $55,300 | $23,330 | $0 | $78,630 | $78,630 |
| 2017 | $62,770 | $14,900 | $0 | $77,670 | $77,670 |
| 2016 | $57,060 | $14,900 | $0 | $71,960 | $71,960 |
| 2015 | $57,060 | $14,900 | $0 | $71,960 | $71,960 |
| 2014 | $63,400 | $14,900 | $0 | $78,300 | $78,300 |
| 2013 | $63,400 | $14,900 | $0 | $78,300 | $78,300 |
| 2012 | $63,400 | $14,900 | $0 | $0 | $0 |
| 2011 | $59,700 | $14,900 | $0 | $0 | $0 |
| 2010 | $59,700 | $14,900 | $0 | $0 | $0 |
| 2009 | $68,000 | $14,900 | $0 | $0 | $0 |
| 2008 | $68,000 | $14,900 | $0 | $0 | $0 |
| 2007 | $68,000 | $14,900 | $0 | $0 | $0 |
Deed and Sales History
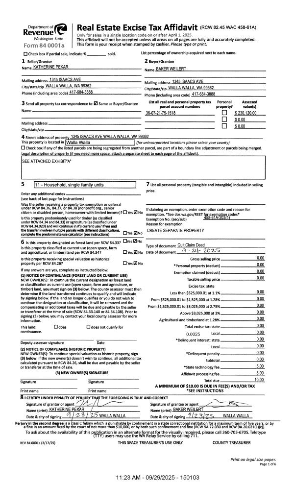
| 1 | 09/29/2025 | QCD | QUIT CLAIM DEED | | WEILERT BAKER | | | | 150103 | 2025-05907 |
| 2 | 08/08/2019 | SWD | STATUTORY WARRANTY DEED | ELLIOTT GARY D | WEILERT BAKER | | | $130,000.00 | 137442 | 2019-05890 |
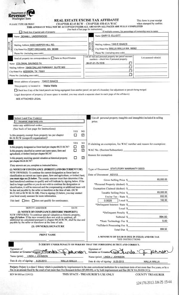
| 3 | 06/25/2013 | WARRANTY D | WARRANTY DEED | UNDERWOOD, DEANA L | ELLIOTT, GARY D | | | $65,000.00 | 124176 | 2013-06393 |
| 4 | 10/08/1992 | WARRANTY D | WARRANTY DEED | | | | | $37,500.00 | 77761 | 2009-209020 |
Payout Agreement
| No payout information available.. |