Property
Account |
| Property ID: | 8735 | Abbreviated Legal Description: | GREENS ANNEX TAX 5 BLK 15 |
| Parcel Number: | 360721751506 | Agent Code: | |
| Type: | Real | | |
| Tax Area: | 1 - OL-140-F | Land Use Code | 11 |
| Open Space: | N | DFL | N |
| Historic Property: | N | Remodel Property: | N |
| Multi-Family Redevelopment: | N | | |
| Township: | 7 | Section: | 21 |
| Range: | 36 |
Location |
| Address: | 305 N BELLEVUE AVE WA 99362 | Mapsco: | |
| Neighborhood: | A-SFR | Map ID: | |
| Neighborhood CD: | 513011 |
Owner |
| Name: | HOGAN THOMAS | Owner ID: | 64811 |
| Mailing Address: | PO BOX 574 COLLEGE PLACE, WA 99324 | % Ownership: | 100.0000000000% |
| | | Exemptions: | |
Taxes and Assessment Details
Property Tax Information as of
02/21/2026
Click on "Statement Details" to expand or collapse a tax statement.
* Please enter a valid date ** Please enter a valid date *
Statement Details |
| | TOTAL: | $0.00 | $0.00 | $0.00 | $0.00 | $0.00 | $0.00 |
|
| | $0.00 | $0.00 | $0.00 | $0.00 | $0.00 | $0.00 |
Values
| (+) Improvement Homesite Value: | + | $0 | |
| (+) Improvement Non-Homesite Value: | + | $263,230 | |
| (+) Land Homesite Value: | + | $0 | |
| (+) Land Non-Homesite Value: | + | $17,460 | |
| (+) Curr Use (HS): | + | $0 | $0 |
| (+) Curr Use (NHS): | + | $0 | $0 |
| | | -------------------------- | |
| (=) Market Value: | = | $280,690 | |
| (–) Productivity Loss: | – | $0 | |
| | | -------------------------- | |
| (=) Subtotal: | = | $280,690 | |
| (+) Senior Appraised Value: | + | $0 | |
| (+) Non-Senior Appraised Value: | + | $280,690 | |
| | | -------------------------- | |
| (=) Total Appraised Value: | = | $280,690 | |
| (–) Senior Exemption Loss: | – | $0 | |
| (–) Exemption Loss: | – | $0 | |
| | | -------------------------- | |
| (=) Taxable Value: | = | $280,690 | |
Taxing Jurisdiction
| Owner: | HOGAN THOMAS | | |
| % Ownership: | 100.0000000000% | | |
| Total Value: | $280,690 | | |
| Tax Area: | 1 - OL-140-F |
| CERFD | CURRENT EXPENSE REFUND 010 | 0.0000000000 | $280,690 | $280,690 | $0.00 | | |
| CURREXP | CURRENT EXPENSE 010 | 1.0175366760 | $280,690 | $280,690 | $285.61 | | |
| HUMNSERV | HUMAN SERVICES 119 | 0.0250000000 | $280,690 | $280,690 | $7.02 | | |
| SLDREL | SOLDIERS RELIEF 121 | 0.0155990005 | $280,690 | $280,690 | $4.38 | | |
| EMERGSER | EMS 147 | 0.3792580840 | $280,690 | $280,690 | $106.45 | | |
| EMSRFD | EMS REFUND 147 | 0.0000000000 | $280,690 | $280,690 | $0.00 | | |
| PORTRFD | PORT REFUND 640 | 0.0000000000 | $280,690 | $280,690 | $0.00 | | |
| PORTWWGEN | PORT OF WW 640 | 0.2460186015 | $280,690 | $280,690 | $69.05 | | |
| SD140BOND | SD #140 BOND 764 | 0.8342371393 | $280,690 | $280,690 | $234.16 | | |
| SD140GEN | SD #140 GENERAL 760 | 2.0646500647 | $280,690 | $280,690 | $579.53 | | |
| ST2 | STATE SCHOOL PART 2 600 | 0.8131451643 | $280,690 | $280,690 | $228.24 | | |
| STATESCHL | STATE SCHOOL 600 | 1.5158548041 | $280,690 | $280,690 | $425.49 | | |
| STREFUND | STATE REFUND LEVY 603 | 0.0000000000 | $280,690 | $280,690 | $0.00 | | |
| CWWBOND | C OF WW BOND 643 | 0.2760494372 | $280,690 | $280,690 | $77.48 | | |
| CWWGEN | CITY OF WW 631 | 1.6100204973 | $280,690 | $280,690 | $451.92 | | |
| CWWRFD | CITY OF WALLA WALLA REFUND 631 | 0.0000000000 | $280,690 | $280,690 | $0.00 | | |
| | Total Tax Rate: | 8.7973694689 | | | | | |
| | | | | Taxes w/Current Exemptions: | $2,469.33 | | |
| | | | | Taxes w/o Exemptions: | $2,469.33 | | |
Improvement / Building
| Improvement #1: | RESIDENTIAL | State Code: | 11 | 878.0 sqft | Value: | $263,230 |
| Exterior Wall: | STUCCO | Heating/Cooling: | FORCED AIR | | Number of Bathrooms: | 1 | Number of Bedrooms: | 2 | | Plumbing: | 7 | Roof Covering: | COMP SHINGLE |
|
| | Type | Description | Class CD | Sub Class CD | Year Built | Area |
| | MA | Main Area | 1 | 30 | 1938 | 878.0 |
| | SI1 | SITE IMPROVEMENT | 1 | 30 | 1938 | 2.0 |
| | BASE | BASEMENT | 1 | 30 | 1938 | 644.0 |
| | BPF | BASEMENT -PARTITIONED FINISH | 1 | 30 | 1938 | 150.0 |
| | STG1 | Sub Terrain Garage Single | 1 | 30 | 1938 | 1.0 |
| | OPS | OPEN PORCH W/STEPS | 1 | 30 | 1938 | 25.0 |
| | CPC | COVERED CARPORT/PATIO | 1 | 30 | 1938 | 114.0 |
Sketch
Property Image
Land
| 1 | RES 1 | Converted: Residential | 0.0641 | 2793.00 | 0.00 | 0.00 | 1.00 | $17,460 | $0 |
Roll Value History
| 2026 | N/A | N/A | N/A | N/A | N/A |
| 2025 | $254,160 | $27,930 | $0 | $282,090 | $282,090 |
| 2024 | $254,160 | $27,930 | $0 | $282,090 | $282,090 |
| 2023 | $263,230 | $17,460 | $0 | $280,690 | $280,690 |
| 2022 | $263,230 | $17,460 | $0 | $280,690 | $280,690 |
| 2021 | $202,490 | $17,460 | $0 | $219,950 | $219,950 |
| 2020 | $155,760 | $17,460 | $0 | $173,220 | $173,220 |
| 2019 | $155,760 | $17,460 | $0 | $173,220 | $173,220 |
| 2018 | $129,800 | $17,460 | $0 | $147,260 | $147,260 |
| 2017 | $139,980 | $11,200 | $0 | $151,180 | $151,180 |
| 2016 | $127,250 | $11,200 | $0 | $138,450 | $138,450 |
| 2015 | $127,250 | $11,200 | $0 | $138,450 | $138,450 |
| 2014 | $101,800 | $11,200 | $0 | $113,000 | $113,000 |
| 2013 | $101,800 | $11,200 | $0 | $113,000 | $113,000 |
| 2012 | $104,400 | $11,200 | $0 | $0 | $0 |
| 2011 | $104,400 | $11,200 | $0 | $0 | $0 |
| 2010 | $98,900 | $11,200 | $0 | $0 | $0 |
| 2009 | $111,100 | $11,200 | $0 | $0 | $0 |
| 2008 | $90,700 | $11,200 | $0 | $0 | $0 |
| 2007 | $90,700 | $11,200 | $0 | $0 | $0 |
Deed and Sales History
| 1 | 03/13/2019 | SWD | STATUTORY WARRANTY DEED | PATH FORWARD HOMES LLC | HOGAN THOMAS | | | $222,600.00 | 136519 | 2019-01635 |
| 2 | 09/26/2018 | BARGAIN & | BARGAIN & SALE DEED | NATIONSTAR MORTGAGE LLC | PATH FORWARD HOMES LLC | | | $119,001.00 | 135619 | 2018-08029 |
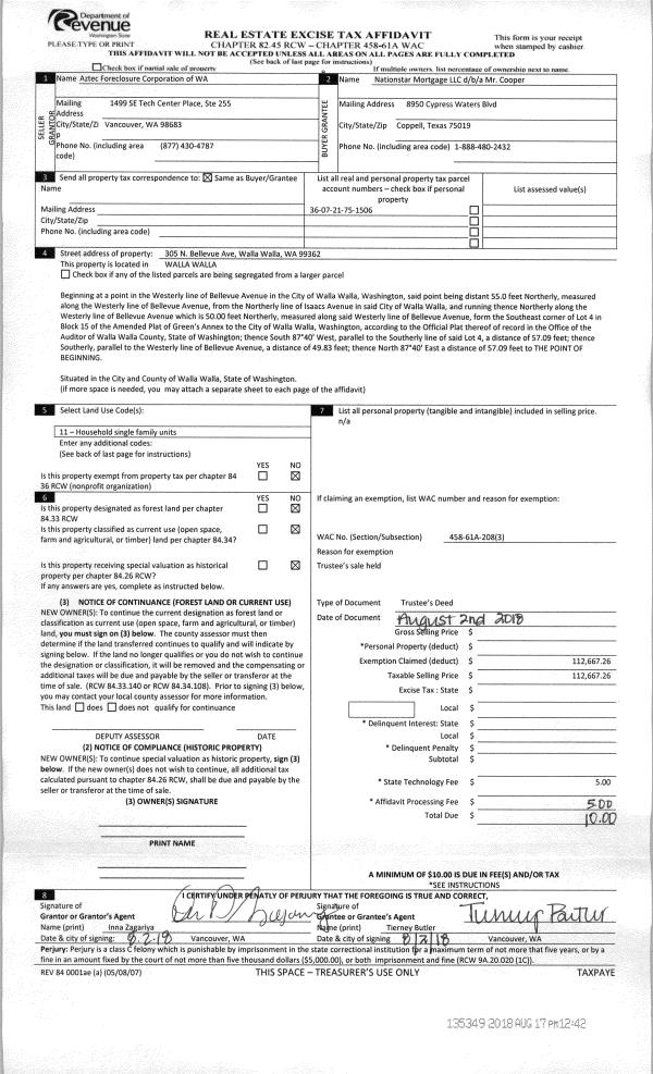
| 3 | 08/17/2018 | TRUSTEES D | TRUSTEE'S DEED | DEJESUS PASCUAL | NATIONSTAR MORTGAGE LLC | | | $112,667.00 | 135349 | 2018-06766 |
| 4 | 11/04/2008 | QCD | QUIT CLAIM DEED | DEJESUS, NANCY | DEJESUS, PASCUAL | | | | 115917 | 2008-11113 |
| 5 | 05/17/2006 | QCD | QUIT CLAIM DEED | DEJESUS, PASCUAL & NANCY | DEJESUS, PASCUAL | | | | 110273 | 2006-05659 |
| 6 | 04/24/2000 | WARRANTY D | WARRANTY DEED | | | | | $71,000.00 | 94946 | 2970-003909 |
Payout Agreement
| No payout information available.. |