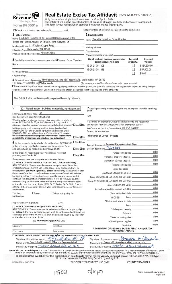
Property
Account |
| Property ID: | 8733 | Abbreviated Legal Description: | GREENS ANNEX WLY 12' OF SLY 83' OF W 100' OF E 156' OF LOT 3 BLK 13LESS N 10' |
| Parcel Number: | 360721751318 | Agent Code: | |
| Type: | Real | | |
| Tax Area: | 1 - OL-140-F | Land Use Code | 53 |
| Open Space: | N | DFL | N |
| Historic Property: | N | Remodel Property: | N |
| Multi-Family Redevelopment: | N | | |
| Township: | 7 | Section: | 21 |
| Range: | 36 |
Location |
| Address: | 1507 ISAACS AVE WA 99362 | Mapsco: | |
| Neighborhood: | WW Downtown Core area #3 | Map ID: | |
| Neighborhood CD: | 5343 |
Owner |
| Name: | KNOWLES F JOHN ESTATE OF | Owner ID: | 2715 |
| Mailing Address: | 1156 VALLEY CHAPEL WALLA WALLA, WA 99362 | % Ownership: | 100.0000000000% |
| | | Exemptions: | |
Taxes and Assessment Details
Property Tax Information as of
04/16/2026
Click on "Statement Details" to expand or collapse a tax statement.
* Please enter a valid date ** Please enter a valid date *
Statement Details |
| 2024 | 7092 | EMS - EMS | $10.93 | $10.92 | $0.00 | $0.00 | $21.85 | $0.00 |
| 2024 | 7092 | PORT - PORT | $7.09 | $7.08 | $0.00 | $0.00 | $14.17 | $0.00 |
| 2024 | 7092 | ST SCH - STATE | $67.08 | $67.07 | $0.00 | $0.00 | $134.15 | $0.00 |
| 2024 | 7092 | WW - CITY OF WALLA WALLA | $54.32 | $54.32 | $0.00 | $0.00 | $108.64 | $0.00 |
| 2024 | 7092 | SD 140 - SCHOOL DIST 140 | $83.49 | $83.48 | $0.00 | $0.00 | $166.97 | $0.00 |
| 2024 | 7092 | COUNTY - COUNTY | $30.48 | $30.47 | $0.00 | $0.00 | $60.95 | $0.00 |
| 2024 | 7092 | MILLCRKFLD - MILL CREEK FLOOD | $1.72 | $1.71 | $0.00 | $0.00 | $3.43 | $0.00 |
| 2024 | 7092 | TOTAL: | $255.11 | $255.05 | $0.00 | $0.00 | $510.16 | $0.00 |
|
| 2024 | 7092 | $255.11 | $255.05 | $0.00 | $0.00 | $510.16 | $0.00 |
Statement Details |
| 2023 | 7103 | EMS - EMS | $11.65 | $11.64 | $0.00 | $0.00 | $23.29 | $0.00 |
| 2023 | 7103 | PORT - PORT | $7.56 | $7.55 | $0.00 | $0.00 | $15.11 | $0.00 |
| 2023 | 7103 | ST SCH - STATE | $71.67 | $71.66 | $0.00 | $0.00 | $143.33 | $0.00 |
| 2023 | 7103 | WW - CITY OF WALLA WALLA | $59.60 | $59.58 | $0.00 | $0.00 | $119.18 | $0.00 |
| 2023 | 7103 | SD 140 - SCHOOL DIST 140 | $89.97 | $89.95 | $0.00 | $0.00 | $179.92 | $0.00 |
| 2023 | 7103 | COUNTY - COUNTY | $32.18 | $32.18 | $0.00 | $0.00 | $64.36 | $0.00 |
| 2023 | 7103 | MILLCRKFLD - MILL CREEK FLOOD | $1.86 | $1.86 | $0.00 | $0.00 | $3.72 | $0.00 |
| 2023 | 7103 | TOTAL: | $274.49 | $274.42 | $0.00 | $0.00 | $548.91 | $0.00 |
|
| 2023 | 7103 | $274.49 | $274.42 | $0.00 | $0.00 | $548.91 | $0.00 |
Statement Details |
| 2022 | 7138 | EMS - EMS | $12.87 | $12.87 | $0.00 | $0.00 | $25.74 | $0.00 |
| 2022 | 7138 | PORT - PORT | $8.43 | $8.43 | $0.00 | $0.00 | $16.86 | $0.00 |
| 2022 | 7138 | ST SCH - STATE | $81.53 | $81.52 | $0.00 | $0.00 | $163.05 | $0.00 |
| 2022 | 7138 | WW - CITY OF WALLA WALLA | $69.53 | $69.52 | $0.00 | $0.00 | $139.05 | $0.00 |
| 2022 | 7138 | SD 140 - SCHOOL DIST 140 | $101.63 | $101.61 | $0.00 | $0.00 | $203.24 | $0.00 |
| 2022 | 7138 | COUNTY - COUNTY | $35.92 | $35.91 | $0.00 | $0.00 | $71.83 | $0.00 |
| 2022 | 7138 | MILLCRKFLD - MILL CREEK FLOOD | $2.17 | $2.17 | $0.00 | $0.00 | $4.34 | $0.00 |
| 2022 | 7138 | TOTAL: | $312.08 | $312.03 | $0.00 | $0.00 | $624.11 | $0.00 |
|
| 2022 | 7138 | $312.08 | $312.03 | $0.00 | $0.00 | $624.11 | $0.00 |
Statement Details |
| 2021 | 7146 | EMS - EMS | $14.40 | $14.40 | $0.00 | $0.00 | $28.80 | $0.00 |
| 2021 | 7146 | PORT - PORT | $9.53 | $9.53 | $0.00 | $0.00 | $19.06 | $0.00 |
| 2021 | 7146 | ST SCH - STATE | $89.77 | $89.75 | $0.00 | $0.00 | $179.52 | $0.00 |
| 2021 | 7146 | WW - CITY OF WALLA WALLA | $82.46 | $82.46 | $0.00 | $0.00 | $164.92 | $0.00 |
| 2021 | 7146 | SD 140 - SCHOOL DIST 140 | $105.43 | $105.42 | $0.00 | $0.00 | $210.85 | $0.00 |
| 2021 | 7146 | COUNTY - COUNTY | $40.20 | $40.20 | $0.00 | $0.00 | $80.40 | $0.00 |
| 2021 | 7146 | MILLCRKFLD - MILL CREEK FLOOD | $2.49 | $2.48 | $0.00 | $0.00 | $4.97 | $0.00 |
| 2021 | 7146 | TOTAL: | $344.28 | $344.24 | $0.00 | $0.00 | $688.52 | $0.00 |
|
| 2021 | 7146 | $344.28 | $344.24 | $0.00 | $0.00 | $688.52 | $0.00 |
Values
| (+) Improvement Homesite Value: | + | $0 | |
| (+) Improvement Non-Homesite Value: | + | $48,600 | |
| (+) Land Homesite Value: | + | $0 | |
| (+) Land Non-Homesite Value: | + | $9,000 | |
| (+) Curr Use (HS): | + | $0 | $0 |
| (+) Curr Use (NHS): | + | $0 | $0 |
| | | -------------------------- | |
| (=) Market Value: | = | $57,600 | |
| (–) Productivity Loss: | – | $0 | |
| | | -------------------------- | |
| (=) Subtotal: | = | $57,600 | |
| (+) Senior Appraised Value: | + | $0 | |
| (+) Non-Senior Appraised Value: | + | $57,600 | |
| | | -------------------------- | |
| (=) Total Appraised Value: | = | $57,600 | |
| (–) Senior Exemption Loss: | – | $0 | |
| (–) Exemption Loss: | – | $0 | |
| | | -------------------------- | |
| (=) Taxable Value: | = | $57,600 | |
Taxing Jurisdiction
| Owner: | KNOWLES F JOHN ESTATE OF | | |
| % Ownership: | 100.0000000000% | | |
| Total Value: | $57,600 | | |
| Tax Area: | 1 - OL-140-F |
| CERFD | CURRENT EXPENSE REFUND 010 | 0.0000000000 | $57,600 | $57,600 | $0.00 | | |
| CURREXP | CURRENT EXPENSE 010 | 1.0175366760 | $57,600 | $57,600 | $58.61 | | |
| HUMNSERV | HUMAN SERVICES 119 | 0.0250000000 | $57,600 | $57,600 | $1.44 | | |
| SLDREL | SOLDIERS RELIEF 121 | 0.0155990005 | $57,600 | $57,600 | $0.90 | | |
| EMERGSER | EMS 147 | 0.3792580840 | $57,600 | $57,600 | $21.85 | | |
| EMSRFD | EMS REFUND 147 | 0.0000000000 | $57,600 | $57,600 | $0.00 | | |
| PORTRFD | PORT REFUND 640 | 0.0000000000 | $57,600 | $57,600 | $0.00 | | |
| PORTWWGEN | PORT OF WW 640 | 0.2460186015 | $57,600 | $57,600 | $14.17 | | |
| SD140BOND | SD #140 BOND 764 | 0.8342371393 | $57,600 | $57,600 | $48.05 | | |
| SD140GEN | SD #140 GENERAL 760 | 2.0646500647 | $57,600 | $57,600 | $118.92 | | |
| ST2 | STATE SCHOOL PART 2 600 | 0.8131451643 | $57,600 | $57,600 | $46.84 | | |
| STATESCHL | STATE SCHOOL 600 | 1.5158548041 | $57,600 | $57,600 | $87.31 | | |
| STREFUND | STATE REFUND LEVY 603 | 0.0000000000 | $57,600 | $57,600 | $0.00 | | |
| CWWBOND | C OF WW BOND 643 | 0.2760494372 | $57,600 | $57,600 | $15.90 | | |
| CWWGEN | CITY OF WW 631 | 1.6100204973 | $57,600 | $57,600 | $92.74 | | |
| CWWRFD | CITY OF WALLA WALLA REFUND 631 | 0.0000000000 | $57,600 | $57,600 | $0.00 | | |
| | Total Tax Rate: | 8.7973694689 | | | | | |
| | | | | Taxes w/Current Exemptions: | $506.73 | | |
| | | | | Taxes w/o Exemptions: | $506.73 | | |
Improvement / Building
| Improvement #1: | COMMERCIAL | State Code: | 53 | 696.0 sqft | Value: | $48,600 |
| | Type | Description | Class CD | Sub Class CD | Year Built | Area |
| | MA | Main Area | D | * | 1940 | 696.0 |
| | SI1 | SITE IMPROVEMENT | D | * | 1940 | 1.0 |
Sketch
Property Image
Land
| 1 | COM 1 | Converted: Commercial | 0.0229 | 996.00 | 0.00 | 0.00 | 1.00 | $9,000 | $0 |
Roll Value History
| 2023 | $48,600 | $9,000 | $0 | $57,600 | $57,600 |
| 2022 | $48,600 | $9,000 | $0 | $57,600 | $57,600 |
| 2021 | $48,600 | $9,000 | $0 | $57,600 | $57,600 |
| 2020 | $48,600 | $9,000 | $0 | $57,600 | $57,600 |
| 2019 | $48,600 | $9,000 | $0 | $57,600 | $57,600 |
| 2018 | $48,600 | $9,000 | $0 | $57,600 | $57,600 |
| 2017 | $48,600 | $9,000 | $0 | $57,600 | $57,600 |
| 2016 | $48,600 | $9,000 | $0 | $57,600 | $57,600 |
| 2015 | $48,600 | $9,000 | $0 | $57,600 | $57,600 |
| 2014 | $48,600 | $9,000 | $0 | $57,600 | $57,600 |
| 2013 | $48,600 | $9,000 | $0 | $57,600 | $57,600 |
| 2012 | $36,700 | $4,500 | $0 | $0 | $0 |
| 2011 | $36,700 | $4,500 | $0 | $0 | $0 |
| 2010 | $36,700 | $4,500 | $0 | $0 | $0 |
| 2009 | $36,700 | $4,500 | $0 | $0 | $0 |
| 2008 | $36,700 | $4,500 | $0 | $0 | $0 |
| 2007 | $36,700 | $4,500 | $0 | $0 | $0 |
Deed and Sales History
| 1 | 05/10/2024 | DPR | DEED OF PERSONAL REPRESENTATIVE | KNOWLES F JOHN ESTATE OF | KNOWLES GREGORY WAYNE | | | | 147551 | 2024-02518 |
| 2 | 05/10/2024 | DPR | DEED OF PERSONAL REPRESENTATIVE | KNOWLES F JOHN ESTATE OF | THONNEY KEVIN | | | | 147551 | 2024-02518 |
| 3 | 05/07/1991 | WARRANTY D | WARRANTY DEED | | | | | $22,500.00 | 0 | 1969-203193 |
Payout Agreement
| No payout information available.. |