Property
Account |
| Property ID: | 8728 | Abbreviated Legal Description: | GREENS ANNEX S 80' OF W 52.72' OF LOT 3 BLK 13; LESS PUBLIC RIGHT-OF-WAY |
| Parcel Number: | 360721751308 | Agent Code: | |
| Type: | Real | | |
| Tax Area: | 1 - OL-140-F | Land Use Code | 52 |
| Open Space: | N | DFL | N |
| Historic Property: | N | Remodel Property: | N |
| Multi-Family Redevelopment: | N | | |
| Township: | 7 | Section: | 21 |
| Range: | 36 |
Location |
| Address: | 1503 ISAACS AVE WA 99362 | Mapsco: | |
| Neighborhood: | WW Downtown Core area #3 | Map ID: | |
| Neighborhood CD: | 5343 |
Owner |
| Name: | KNOWLES F JOHN ESTATE OF | Owner ID: | 2715 |
| Mailing Address: | 1156 VALLEY CHAPEL WALLA WALLA, WA 99362 | % Ownership: | 100.0000000000% |
| | | Exemptions: | |
Taxes and Assessment Details
Property Tax Information as of
04/16/2026
Click on "Statement Details" to expand or collapse a tax statement.
* Please enter a valid date ** Please enter a valid date *
Statement Details |
| 2024 | 7087 | EMS - EMS | $25.58 | $25.58 | $0.00 | $0.00 | $51.16 | $0.00 |
| 2024 | 7087 | PORT - PORT | $16.60 | $16.59 | $0.00 | $0.00 | $33.19 | $0.00 |
| 2024 | 7087 | ST SCH - STATE | $157.10 | $157.08 | $0.00 | $0.00 | $314.18 | $0.00 |
| 2024 | 7087 | WW - CITY OF WALLA WALLA | $127.22 | $127.21 | $0.00 | $0.00 | $254.43 | $0.00 |
| 2024 | 7087 | SD 140 - SCHOOL DIST 140 | $195.53 | $195.53 | $0.00 | $0.00 | $391.06 | $0.00 |
| 2024 | 7087 | COUNTY - COUNTY | $71.38 | $71.36 | $0.00 | $0.00 | $142.74 | $0.00 |
| 2024 | 7087 | MILLCRKFLD - MILL CREEK FLOOD | $4.02 | $4.01 | $0.00 | $0.00 | $8.03 | $0.00 |
| 2024 | 7087 | TOTAL: | $597.43 | $597.36 | $0.00 | $0.00 | $1194.79 | $0.00 |
|
| 2024 | 7087 | $597.43 | $597.36 | $0.00 | $0.00 | $1194.79 | $0.00 |
Statement Details |
| 2023 | 7098 | EMS - EMS | $27.27 | $27.27 | $0.00 | $0.00 | $54.54 | $0.00 |
| 2023 | 7098 | PORT - PORT | $17.70 | $17.69 | $0.00 | $0.00 | $35.39 | $0.00 |
| 2023 | 7098 | ST SCH - STATE | $167.85 | $167.84 | $0.00 | $0.00 | $335.69 | $0.00 |
| 2023 | 7098 | WW - CITY OF WALLA WALLA | $139.57 | $139.55 | $0.00 | $0.00 | $279.12 | $0.00 |
| 2023 | 7098 | SD 140 - SCHOOL DIST 140 | $210.69 | $210.69 | $0.00 | $0.00 | $421.38 | $0.00 |
| 2023 | 7098 | COUNTY - COUNTY | $75.37 | $75.35 | $0.00 | $0.00 | $150.72 | $0.00 |
| 2023 | 7098 | MILLCRKFLD - MILL CREEK FLOOD | $4.35 | $4.35 | $0.00 | $0.00 | $8.70 | $0.00 |
| 2023 | 7098 | LT NTC FEE - LATE NOTICE FEE FOR POSTCARD | $5.00 | $0.00 | $0.00 | $0.00 | $5.00 | $0.00 |
| 2023 | 7098 | TOTAL: | $647.80 | $642.74 | $0.00 | $0.00 | $1290.54 | $0.00 |
|
| 2023 | 7098 | $647.80 | $642.74 | $0.00 | $0.00 | $1290.54 | $0.00 |
Statement Details |
| 2022 | 7133 | EMS - EMS | $30.14 | $30.14 | $0.00 | $0.00 | $60.28 | $0.00 |
| 2022 | 7133 | PORT - PORT | $19.75 | $19.75 | $0.00 | $0.00 | $39.50 | $0.00 |
| 2022 | 7133 | ST SCH - STATE | $190.95 | $190.93 | $0.00 | $0.00 | $381.88 | $0.00 |
| 2022 | 7133 | WW - CITY OF WALLA WALLA | $162.83 | $162.81 | $0.00 | $0.00 | $325.64 | $0.00 |
| 2022 | 7133 | SD 140 - SCHOOL DIST 140 | $238.00 | $237.98 | $0.00 | $0.00 | $475.98 | $0.00 |
| 2022 | 7133 | COUNTY - COUNTY | $84.12 | $84.10 | $0.00 | $0.00 | $168.22 | $0.00 |
| 2022 | 7133 | MILLCRKFLD - MILL CREEK FLOOD | $5.09 | $5.08 | $0.00 | $0.00 | $10.17 | $0.00 |
| 2022 | 7133 | TOTAL: | $730.88 | $730.79 | $0.00 | $0.00 | $1461.67 | $0.00 |
|
| 2022 | 7133 | $730.88 | $730.79 | $0.00 | $0.00 | $1461.67 | $0.00 |
Statement Details |
| 2021 | 7141 | EMS - EMS | $33.73 | $33.72 | $0.00 | $0.00 | $67.45 | $0.00 |
| 2021 | 7141 | PORT - PORT | $22.32 | $22.31 | $0.00 | $0.00 | $44.63 | $0.00 |
| 2021 | 7141 | ST SCH - STATE | $210.23 | $210.21 | $0.00 | $0.00 | $420.44 | $0.00 |
| 2021 | 7141 | WW - CITY OF WALLA WALLA | $193.12 | $193.12 | $0.00 | $0.00 | $386.24 | $0.00 |
| 2021 | 7141 | SD 140 - SCHOOL DIST 140 | $246.91 | $246.90 | $0.00 | $0.00 | $493.81 | $0.00 |
| 2021 | 7141 | COUNTY - COUNTY | $94.15 | $94.14 | $0.00 | $0.00 | $188.29 | $0.00 |
| 2021 | 7141 | MILLCRKFLD - MILL CREEK FLOOD | $5.82 | $5.81 | $0.00 | $0.00 | $11.63 | $0.00 |
| 2021 | 7141 | TOTAL: | $806.28 | $806.21 | $0.00 | $0.00 | $1612.49 | $0.00 |
|
| 2021 | 7141 | $806.28 | $806.21 | $0.00 | $0.00 | $1612.49 | $0.00 |
Values
| (+) Improvement Homesite Value: | + | $0 | |
| (+) Improvement Non-Homesite Value: | + | $96,900 | |
| (+) Land Homesite Value: | + | $0 | |
| (+) Land Non-Homesite Value: | + | $38,000 | |
| (+) Curr Use (HS): | + | $0 | $0 |
| (+) Curr Use (NHS): | + | $0 | $0 |
| | | -------------------------- | |
| (=) Market Value: | = | $134,900 | |
| (–) Productivity Loss: | – | $0 | |
| | | -------------------------- | |
| (=) Subtotal: | = | $134,900 | |
| (+) Senior Appraised Value: | + | $0 | |
| (+) Non-Senior Appraised Value: | + | $134,900 | |
| | | -------------------------- | |
| (=) Total Appraised Value: | = | $134,900 | |
| (–) Senior Exemption Loss: | – | $0 | |
| (–) Exemption Loss: | – | $0 | |
| | | -------------------------- | |
| (=) Taxable Value: | = | $134,900 | |
Taxing Jurisdiction
| Owner: | KNOWLES F JOHN ESTATE OF | | |
| % Ownership: | 100.0000000000% | | |
| Total Value: | $134,900 | | |
| Tax Area: | 1 - OL-140-F |
| CERFD | CURRENT EXPENSE REFUND 010 | 0.0000000000 | $134,900 | $134,900 | $0.00 | | |
| CURREXP | CURRENT EXPENSE 010 | 1.0175366760 | $134,900 | $134,900 | $137.27 | | |
| HUMNSERV | HUMAN SERVICES 119 | 0.0250000000 | $134,900 | $134,900 | $3.37 | | |
| SLDREL | SOLDIERS RELIEF 121 | 0.0155990005 | $134,900 | $134,900 | $2.10 | | |
| EMERGSER | EMS 147 | 0.3792580840 | $134,900 | $134,900 | $51.16 | | |
| EMSRFD | EMS REFUND 147 | 0.0000000000 | $134,900 | $134,900 | $0.00 | | |
| PORTRFD | PORT REFUND 640 | 0.0000000000 | $134,900 | $134,900 | $0.00 | | |
| PORTWWGEN | PORT OF WW 640 | 0.2460186015 | $134,900 | $134,900 | $33.19 | | |
| SD140BOND | SD #140 BOND 764 | 0.8342371393 | $134,900 | $134,900 | $112.54 | | |
| SD140GEN | SD #140 GENERAL 760 | 2.0646500647 | $134,900 | $134,900 | $278.52 | | |
| ST2 | STATE SCHOOL PART 2 600 | 0.8131451643 | $134,900 | $134,900 | $109.69 | | |
| STATESCHL | STATE SCHOOL 600 | 1.5158548041 | $134,900 | $134,900 | $204.49 | | |
| STREFUND | STATE REFUND LEVY 603 | 0.0000000000 | $134,900 | $134,900 | $0.00 | | |
| CWWBOND | C OF WW BOND 643 | 0.2760494372 | $134,900 | $134,900 | $37.24 | | |
| CWWGEN | CITY OF WW 631 | 1.6100204973 | $134,900 | $134,900 | $217.19 | | |
| CWWRFD | CITY OF WALLA WALLA REFUND 631 | 0.0000000000 | $134,900 | $134,900 | $0.00 | | |
| | Total Tax Rate: | 8.7973694689 | | | | | |
| | | | | Taxes w/Current Exemptions: | $1,186.76 | | |
| | | | | Taxes w/o Exemptions: | $1,186.76 | | |
Improvement / Building
| Improvement #1: | COMMERCIAL | State Code: | 52 | 1796.0 sqft | Value: | $96,900 |
| | Type | Description | Class CD | Sub Class CD | Year Built | Area |
| | MA | Main Area | D | * | 1940 | 1796.0 |
| | PRKSTLA | PARK STALL AVERAGE | D | * | 1940 | 6.0 |
| | SI1 | SITE IMPROVEMENT | D | * | 1940 | 2.0 |
Sketch
Property Image
Land
| 1 | COM 1 | Converted: Commercial | 0.0936 | 4078.00 | 0.00 | 0.00 | 1.00 | $38,000 | $0 |
Roll Value History
| 2023 | $96,900 | $38,000 | $0 | $134,900 | $134,900 |
| 2022 | $96,900 | $38,000 | $0 | $134,900 | $134,900 |
| 2021 | $96,900 | $38,000 | $0 | $134,900 | $134,900 |
| 2020 | $96,900 | $38,000 | $0 | $134,900 | $134,900 |
| 2019 | $96,900 | $38,000 | $0 | $134,900 | $134,900 |
| 2018 | $96,900 | $38,000 | $0 | $134,900 | $134,900 |
| 2017 | $96,900 | $38,000 | $0 | $134,900 | $134,900 |
| 2016 | $96,900 | $38,000 | $0 | $134,900 | $134,900 |
| 2015 | $96,900 | $38,000 | $0 | $134,900 | $134,900 |
| 2014 | $96,900 | $38,000 | $0 | $134,900 | $134,900 |
| 2013 | $96,900 | $38,000 | $0 | $134,900 | $134,900 |
| 2012 | $84,700 | $19,000 | $0 | $0 | $0 |
| 2011 | $84,700 | $19,000 | $0 | $0 | $0 |
| 2010 | $84,700 | $19,000 | $0 | $0 | $0 |
| 2009 | $84,700 | $19,000 | $0 | $0 | $0 |
| 2008 | $84,700 | $19,000 | $0 | $0 | $0 |
| 2007 | $84,700 | $19,000 | $0 | $0 | $0 |
Deed and Sales History
| 1 | 05/10/2024 | DPR | DEED OF PERSONAL REPRESENTATIVE | KNOWLES F JOHN ESTATE OF | KNOWLES GREGORY WAYNE | | | | 147551 | 2024-02518 |
| 2 | 05/10/2024 | DPR | DEED OF PERSONAL REPRESENTATIVE | KNOWLES F JOHN ESTATE OF | THONNEY KEVIN | | | | 147551 | 2024-02518 |
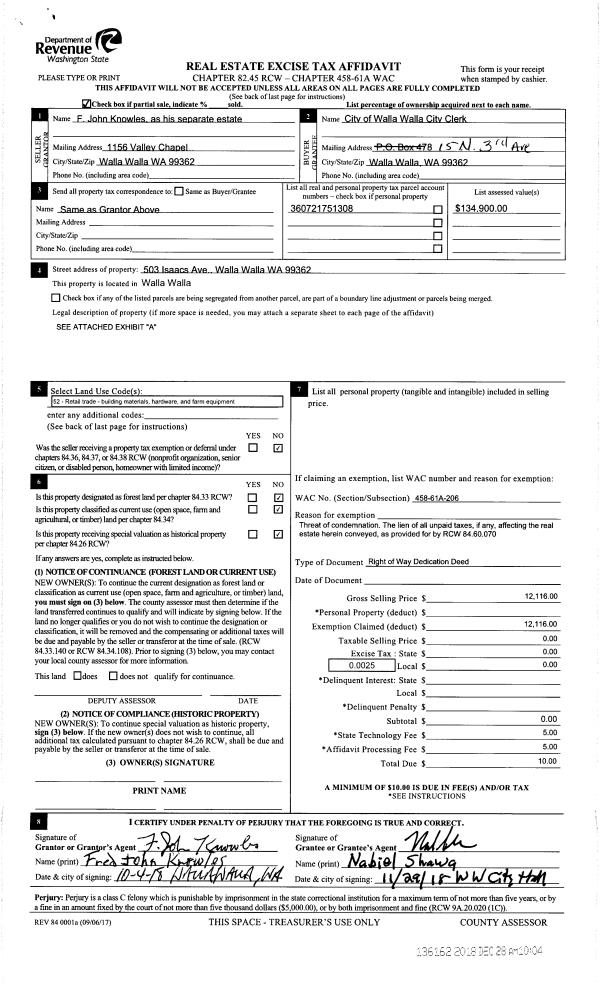
| 3 | 12/28/2018 | EASE | EASEMENT | KNOWLES F JOHN ESTATE OF | WALLA WALLA CITY OF | | | $12,116.00 | 136162 | 2018-10653 |
| 4 | 08/23/1989 | WARRANTY D | WARRANTY DEED | | | | | $32,800.00 | 0 | 1788-905346 |
Payout Agreement
| No payout information available.. |