Property
Account |
| Property ID: | 8692 | Abbreviated Legal Description: | GREENS ANNEX LOT 6 BLK 10 LESS N 100' |
| Parcel Number: | 360721751006 | Agent Code: | |
| Type: | Real | | |
| Tax Area: | 1 - OL-140-F | Land Use Code | 58 |
| Open Space: | N | DFL | N |
| Historic Property: | N | Remodel Property: | N |
| Multi-Family Redevelopment: | N | | |
| Township: | 7 | Section: | 21 |
| Range: | 36 |
Location |
| Address: | 405 WELLINGTON AVE WA 99362 | Mapsco: | |
| Neighborhood: | WW Downtown Core area #3 | Map ID: | |
| Neighborhood CD: | 5343 |
Owner |
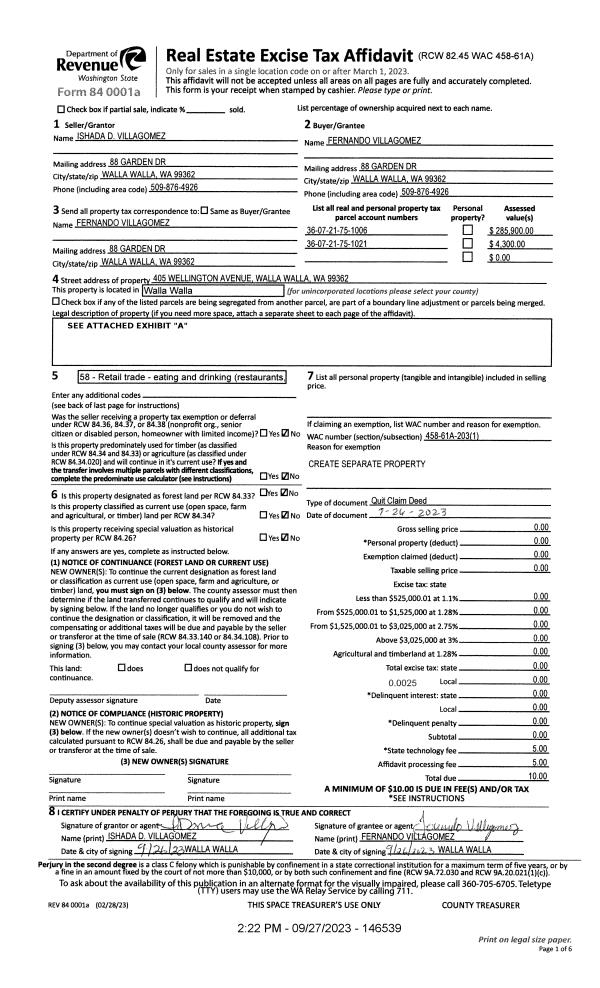
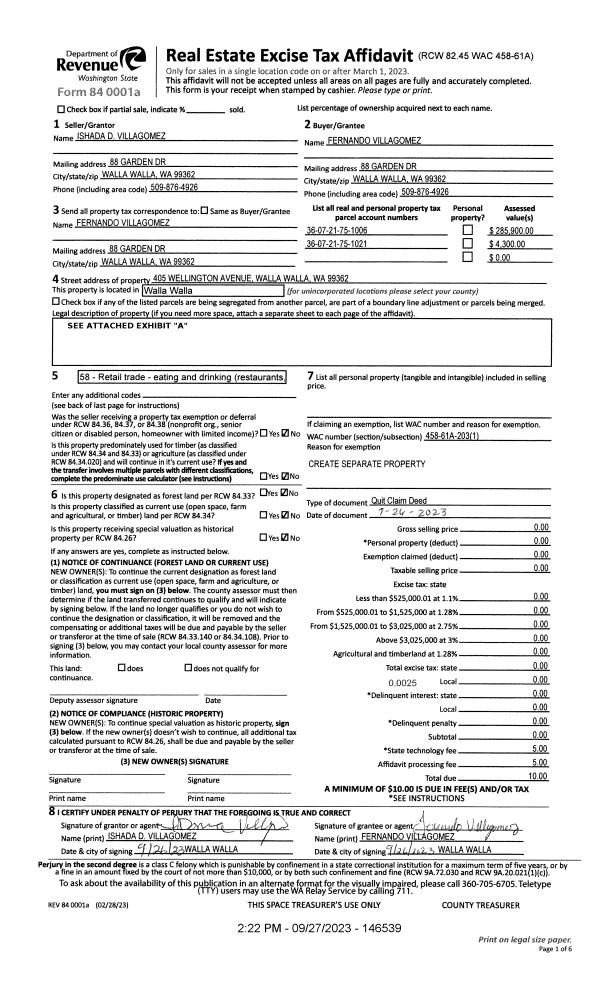
| Name: | VILLAGOMEZ FERNANDO | Owner ID: | 55123 |
| Mailing Address: | 88 GARDEN DR WALLA WALLA, WA 99362 | % Ownership: | 100.0000000000% |
| | | Exemptions: | |
Taxes and Assessment Details
Values
| (+) Improvement Homesite Value: | + | N/A | |
| (+) Improvement Non-Homesite Value: | + | N/A | |
| (+) Land Homesite Value: | + | N/A | |
| (+) Land Non-Homesite Value: | + | N/A | Ag / Timber Use Value |
| (+) Curr Use (HS): | + | N/A | N/A |
| (+) Curr Use (NHS): | + | N/A | N/A |
| | | -------------------------- | |
| (=) Market Value: | = | N/A | |
| (–) Productivity Loss: | – | N/A | |
| | | -------------------------- | |
| (=) Subtotal: | = | N/A | |
| (+) Senior Appraised Value: | + | N/A | |
| (+) Non-Senior Appraised Value: | + | N/A | |
| | | -------------------------- | |
| (=) Total Appraised Value: | = | N/A | |
| (–) Senior Exemption Loss: | – | N/A | |
| (–) Exemption Loss: | – | N/A | |
| | | -------------------------- | |
| (=) Taxable Value: | = | N/A | |
Taxing Jurisdiction
| Owner: | VILLAGOMEZ FERNANDO | | |
| % Ownership: | 100.0000000000% | | |
| Total Value: | N/A | | |
| Tax Area: | 1 - OL-140-F |
| CERFD | CURRENT EXPENSE REFUND 010 | N/A | N/A | N/A | N/A | | |
| CURREXP | CURRENT EXPENSE 010 | N/A | N/A | N/A | N/A | | |
| HUMNSERV | HUMAN SERVICES 119 | N/A | N/A | N/A | N/A | | |
| SLDREL | SOLDIERS RELIEF 121 | N/A | N/A | N/A | N/A | | |
| EMERGSER | EMS 147 | N/A | N/A | N/A | N/A | | |
| EMSRFD | EMS REFUND 147 | N/A | N/A | N/A | N/A | | |
| PORTRFD | PORT REFUND 640 | N/A | N/A | N/A | N/A | | |
| PORTWWGEN | PORT OF WW 640 | N/A | N/A | N/A | N/A | | |
| SD140BOND | SD #140 BOND 764 | N/A | N/A | N/A | N/A | | |
| SD140GEN | SD #140 GENERAL 760 | N/A | N/A | N/A | N/A | | |
| ST2 | STATE SCHOOL PART 2 600 | N/A | N/A | N/A | N/A | | |
| STATESCHL | STATE SCHOOL 600 | N/A | N/A | N/A | N/A | | |
| STREFUND | STATE REFUND LEVY 603 | N/A | N/A | N/A | N/A | | |
| CWWBOND | C OF WW BOND 643 | N/A | N/A | N/A | N/A | | |
| CWWGEN | CITY OF WW 631 | N/A | N/A | N/A | N/A | | |
| CWWRFD | CITY OF WALLA WALLA REFUND 631 | N/A | N/A | N/A | N/A | | |
| | Total Tax Rate: | N/A | | | | | |
| | | | | Taxes w/Current Exemptions: | N/A | | |
| | | | | Taxes w/o Exemptions: | N/A | | |
Improvement / Building
| Improvement #1: | COMMERCIAL | State Code: | 58 | 5660.0 sqft | Value: | N/A |
| | Type | Description | Class CD | Sub Class CD | Year Built | Area |
| | MA | Main Area | D | * | 1963 | 5660.0 |
| | RPO | OPEN PORCH W/ROOF | D | * | 1963 | 448.0 |
| | SI1 | SITE IMPROVEMENT | D | * | 1963 | 3.0 |
Sketch
Property Image
Land
| 1 | COM 1 | Converted: Commercial | 0.6061 | 26400.00 | 0.00 | 0.00 | 1.00 | N/A | N/A |
Roll Value History
| 2026 | N/A | N/A | N/A | N/A | N/A |
| 2025 | $102,300 | $211,200 | $0 | $313,500 | $313,500 |
| 2024 | $130,400 | $158,400 | $0 | $288,800 | $288,800 |
| 2023 | $127,500 | $158,400 | $0 | $285,900 | $285,900 |
| 2022 | $127,500 | $158,400 | $0 | $285,900 | $285,900 |
| 2021 | $127,500 | $158,400 | $0 | $285,900 | $285,900 |
| 2020 | $127,500 | $158,400 | $0 | $285,900 | $285,900 |
| 2019 | $127,500 | $158,400 | $0 | $285,900 | $285,900 |
| 2018 | $125,200 | $158,400 | $0 | $283,600 | $283,600 |
| 2017 | $160,200 | $119,500 | $0 | $279,700 | $279,700 |
| 2016 | $160,200 | $119,500 | $0 | $279,700 | $279,700 |
| 2015 | $160,200 | $119,500 | $0 | $279,700 | $279,700 |
| 2014 | $160,200 | $119,500 | $0 | $279,700 | $279,700 |
| 2013 | $160,200 | $119,500 | $0 | $279,700 | $279,700 |
| 2012 | $315,700 | $105,600 | $0 | $0 | $0 |
| 2011 | $315,700 | $105,600 | $0 | $0 | $0 |
| 2010 | $315,700 | $105,600 | $0 | $0 | $0 |
| 2009 | $315,700 | $105,600 | $0 | $0 | $0 |
| 2008 | $315,700 | $105,600 | $0 | $0 | $0 |
| 2007 | $315,700 | $105,600 | $0 | $0 | $0 |
Deed and Sales History
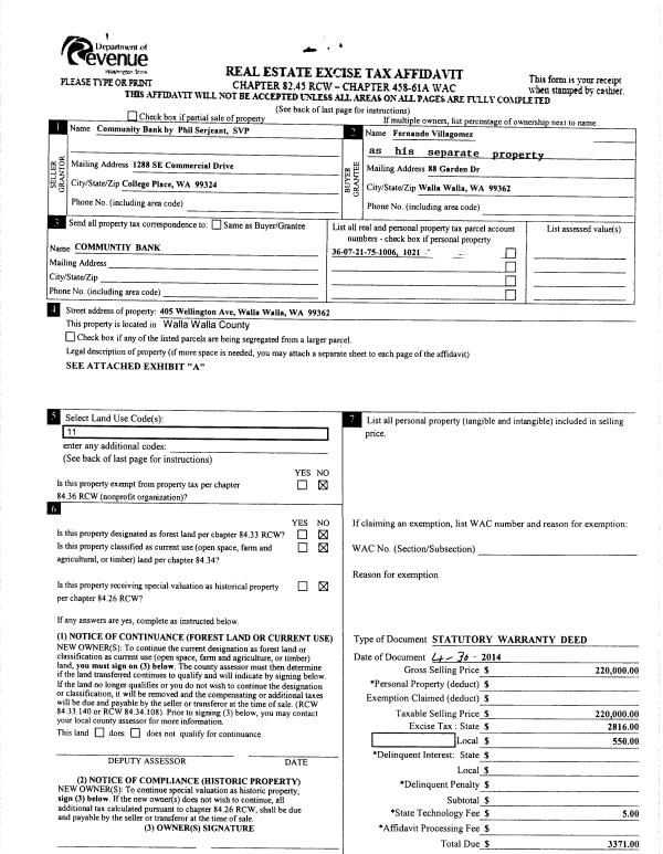
| 1 | 09/27/2023 | QCD | QUIT CLAIM DEED | VILLAGOMEZ FERNANDO | VILLAGOMEZ FERNANDO | | | | 146539 | 2023-05664 |
| 2 | 05/01/2014 | SWD | STATUTORY WARRANTY DEED | COMMUNITY BANK | VILLAGOMEZ FERNANDO | 2-PARCELS | | $220,000.00 | 125813 | 2014-02989 |
|   | |
| 3 | 03/20/2012 | WARRANTY D | WARRANTY DEED | "REED, TIMOTHY J" | COMMUNITY BANK | | | | 121554 | 2012-02286 |
| 4 | 01/14/2000 | WARRANTY D | WARRANTY DEED | | | | | $250,000.00 | 94372 | 2930-000424 |
|   | |
Payout Agreement
| No payout information available.. |