Property
Account |
| Property ID: | 8690 | Abbreviated Legal Description: | GREENS ANNEX TAX 4 BLK 9 PARCEL 24 |
| Parcel Number: | 360721750924 | Agent Code: | |
| Type: | Real | | |
| Tax Area: | 1 - OL-140-F | Land Use Code | 11 |
| Open Space: | N | DFL | N |
| Historic Property: | N | Remodel Property: | N |
| Multi-Family Redevelopment: | N | | |
| Township: | 7 | Section: | 21 |
| Range: | 36 |
Location |
| Address: | 1639 PORTLAND AVE WA 99362 | Mapsco: | |
| Neighborhood: | A-SFR | Map ID: | |
| Neighborhood CD: | 513011 |
Owner |
| Name: | CHABRE MATHEW | Owner ID: | 69701 |
| Mailing Address: | 1639 PORTLAND AVE WALLA WALLA, WA 99362 | % Ownership: | 100.0000000000% |
| | | Exemptions: | |
Taxes and Assessment Details
Values
| (+) Improvement Homesite Value: | + | $0 | |
| (+) Improvement Non-Homesite Value: | + | $237,560 | |
| (+) Land Homesite Value: | + | $0 | |
| (+) Land Non-Homesite Value: | + | $52,590 | |
| (+) Curr Use (HS): | + | $0 | $0 |
| (+) Curr Use (NHS): | + | $0 | $0 |
| | | -------------------------- | |
| (=) Market Value: | = | $290,150 | |
| (–) Productivity Loss: | – | $0 | |
| | | -------------------------- | |
| (=) Subtotal: | = | $290,150 | |
| (+) Senior Appraised Value: | + | $0 | |
| (+) Non-Senior Appraised Value: | + | $290,150 | |
| | | -------------------------- | |
| (=) Total Appraised Value: | = | $290,150 | |
| (–) Senior Exemption Loss: | – | $0 | |
| (–) Exemption Loss: | – | $0 | |
| | | -------------------------- | |
| (=) Taxable Value: | = | $290,150 | |
Taxing Jurisdiction
| Owner: | CHABRE MATHEW | | |
| % Ownership: | 100.0000000000% | | |
| Total Value: | $290,150 | | |
| Tax Area: | 1 - OL-140-F |
| CERFD | CURRENT EXPENSE REFUND 010 | 0.0000000000 | $290,150 | $290,150 | $0.00 | | |
| CURREXP | CURRENT EXPENSE 010 | 1.0175366760 | $290,150 | $290,150 | $295.24 | | |
| HUMNSERV | HUMAN SERVICES 119 | 0.0250000000 | $290,150 | $290,150 | $7.25 | | |
| SLDREL | SOLDIERS RELIEF 121 | 0.0155990005 | $290,150 | $290,150 | $4.53 | | |
| EMERGSER | EMS 147 | 0.3792580840 | $290,150 | $290,150 | $110.04 | | |
| EMSRFD | EMS REFUND 147 | 0.0000000000 | $290,150 | $290,150 | $0.00 | | |
| PORTRFD | PORT REFUND 640 | 0.0000000000 | $290,150 | $290,150 | $0.00 | | |
| PORTWWGEN | PORT OF WW 640 | 0.2460186015 | $290,150 | $290,150 | $71.38 | | |
| SD140BOND | SD #140 BOND 764 | 0.8342371393 | $290,150 | $290,150 | $242.05 | | |
| SD140GEN | SD #140 GENERAL 760 | 2.0646500647 | $290,150 | $290,150 | $599.06 | | |
| ST2 | STATE SCHOOL PART 2 600 | 0.8131451643 | $290,150 | $290,150 | $235.93 | | |
| STATESCHL | STATE SCHOOL 600 | 1.5158548041 | $290,150 | $290,150 | $439.83 | | |
| STREFUND | STATE REFUND LEVY 603 | 0.0000000000 | $290,150 | $290,150 | $0.00 | | |
| CWWBOND | C OF WW BOND 643 | 0.2760494372 | $290,150 | $290,150 | $80.10 | | |
| CWWGEN | CITY OF WW 631 | 1.6100204973 | $290,150 | $290,150 | $467.15 | | |
| CWWRFD | CITY OF WALLA WALLA REFUND 631 | 0.0000000000 | $290,150 | $290,150 | $0.00 | | |
| | Total Tax Rate: | 8.7973694689 | | | | | |
| | | | | Taxes w/Current Exemptions: | $2,552.56 | | |
| | | | | Taxes w/o Exemptions: | $2,552.56 | | |
Improvement / Building
| Improvement #1: | RESIDENTIAL | State Code: | 11 | 957.0 sqft | Value: | $237,560 |
| Exterior Wall: | SIDING | Heating/Cooling: | BASEBOARD ELECTRIC | | Number of Bathrooms: | 1 | Number of Bedrooms: | 2 | | Plumbing: | 6 | Roof Covering: | COMP SHINGLE |
|
| | Type | Description | Class CD | Sub Class CD | Year Built | Area |
| | MA | Main Area | 1 | 30 | 1910 | 957.0 |
| | SI1 | SITE IMPROVEMENT | 1 | 30 | 1910 | 1.5 |
| | BASE | BASEMENT | 1 | 30 | 1910 | 390.0 |
| | DTG | Detached Garage | 1 | 30 | 1910 | 396.0 |
| | SWP | Solid Wall Porch | 1 | 30 | 1910 | 165.0 |
| | UTST | Utility Storage Shed | 1 | 30 | 1910 | 144.0 |
| | PRC | PORCH W STEPS, ROOF,CEILED | 1 | 30 | 1910 | 84.0 |
Sketch
Property Image
Land
| 1 | RES 1 | Converted: Residential | 0.1932 | 8415.00 | 0.00 | 0.00 | 1.00 | $52,590 | $0 |
Roll Value History
| 2026 | N/A | N/A | N/A | N/A | N/A |
| 2025 | $223,140 | $84,150 | $0 | $307,290 | $307,290 |
| 2024 | $223,140 | $84,150 | $0 | $307,290 | $307,290 |
| 2023 | $237,560 | $52,590 | $0 | $290,150 | $290,150 |
| 2022 | $206,580 | $52,590 | $0 | $259,170 | $259,170 |
| 2021 | $153,020 | $52,590 | $0 | $205,610 | $205,610 |
| 2020 | $109,300 | $52,590 | $0 | $161,890 | $161,890 |
| 2019 | $109,300 | $52,590 | $0 | $161,890 | $161,890 |
| 2018 | $109,300 | $52,590 | $0 | $161,890 | $161,890 |
| 2017 | $104,820 | $33,700 | $0 | $138,520 | $138,520 |
| 2016 | $99,830 | $33,700 | $0 | $133,530 | $133,530 |
| 2015 | $99,830 | $33,700 | $0 | $133,530 | $133,530 |
| 2014 | $93,300 | $33,700 | $0 | $127,000 | $127,000 |
| 2013 | $93,300 | $33,700 | $0 | $127,000 | $127,000 |
| 2012 | $93,300 | $33,700 | $0 | $0 | $0 |
| 2011 | $115,700 | $33,700 | $0 | $0 | $0 |
| 2010 | $108,600 | $33,700 | $0 | $0 | $0 |
| 2009 | $124,400 | $33,700 | $0 | $0 | $0 |
| 2008 | $92,800 | $33,700 | $0 | $0 | $0 |
| 2007 | $92,800 | $33,700 | $0 | $0 | $0 |
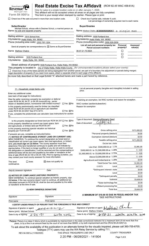
Deed and Sales History
| 1 | 06/28/2021 | SWD | STATUTORY WARRANTY DEED | SCHULZ MICHAEL | CHABRE MATHEW | | | $271,000.00 | 141904 | 2021-07844 |
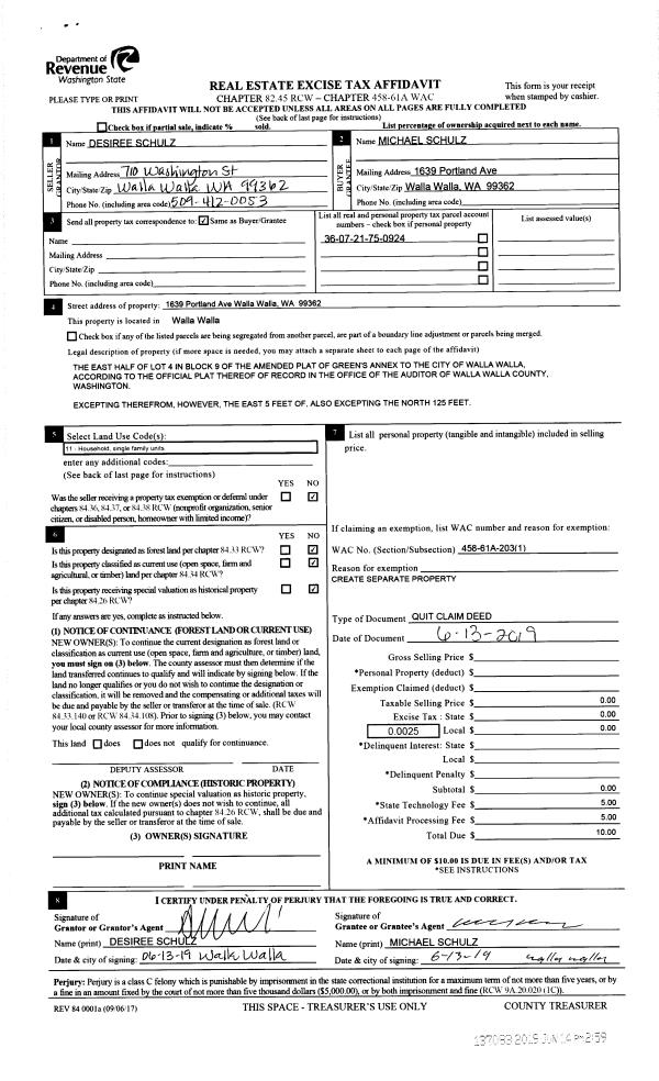
| 2 | 06/14/2019 | QCD | QUIT CLAIM DEED | SCHULZ DESIREE | SCHULZ MICHAEL | | | | 137083 | 2019-04171 |
| 3 | 06/14/2019 | SWD | STATUTORY WARRANTY DEED | LARSON CLIFFORD H | SCHULZ MICHAEL | | | $193,000.00 | 137082 | 2019-04170 |
| 4 | 10/01/1993 | WARRANTY D | WARRANTY DEED | | | | | $59,200.00 | 80166 | 2119-310213 |
Payout Agreement
| No payout information available.. |