Property
Account |
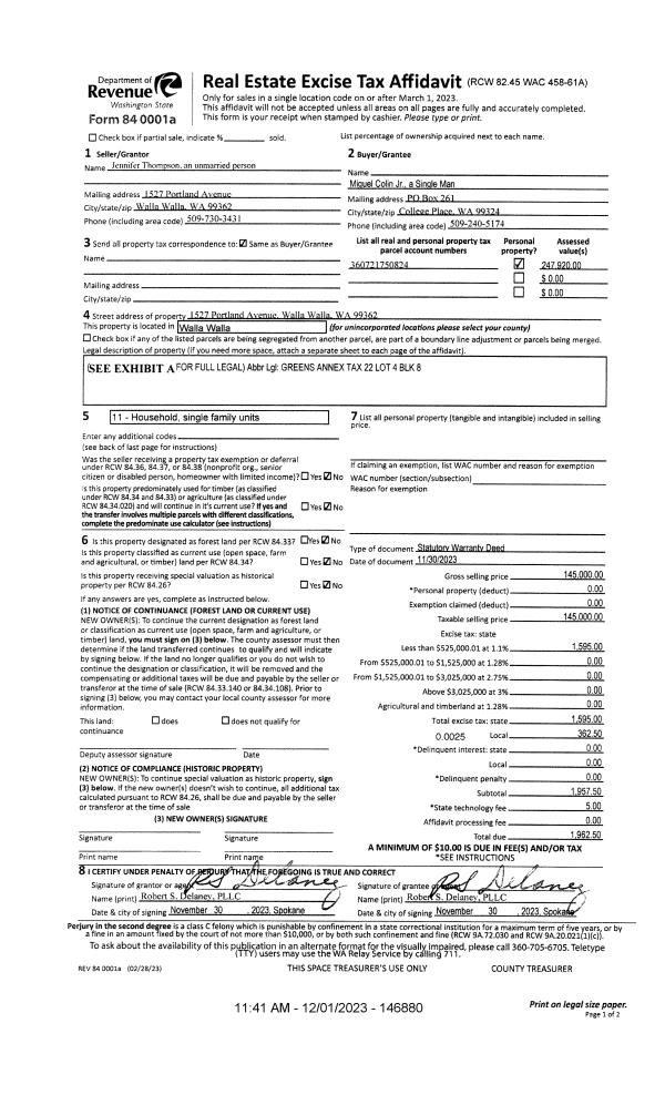
| Property ID: | 8682 | Abbreviated Legal Description: | GREENS ANNEX TAX 22 LOT 4 BLK 8 |
| Parcel Number: | 360721750824 | Agent Code: | |
| Type: | Real | | |
| Tax Area: | 1 - OL-140-F | Land Use Code | 11 |
| Open Space: | N | DFL | N |
| Historic Property: | N | Remodel Property: | N |
| Multi-Family Redevelopment: | N | | |
| Township: | 7 | Section: | 21 |
| Range: | 36 |
Location |
| Address: | 1527 PORTLAND AVE WA 99362 | Mapsco: | |
| Neighborhood: | A-SFR | Map ID: | |
| Neighborhood CD: | 513011 |
Owner |
| Name: | THOMPSON JENNIFER | Owner ID: | 54893 |
| Mailing Address: | 1527 PORTLAND AVE WALLA WALLA, WA 99362 | % Ownership: | 100.0000000000% |
| | | Exemptions: | |
Taxes and Assessment Details
Property Tax Information as of
02/21/2026
Click on "Statement Details" to expand or collapse a tax statement.
* Please enter a valid date ** Please enter a valid date *
Statement Details |
| | TOTAL: | $0.00 | $0.00 | $0.00 | $0.00 | $0.00 | $0.00 |
|
| | $0.00 | $0.00 | $0.00 | $0.00 | $0.00 | $0.00 |
Values
| (+) Improvement Homesite Value: | + | $0 | |
| (+) Improvement Non-Homesite Value: | + | $206,640 | |
| (+) Land Homesite Value: | + | $0 | |
| (+) Land Non-Homesite Value: | + | $41,280 | |
| (+) Curr Use (HS): | + | $0 | $0 |
| (+) Curr Use (NHS): | + | $0 | $0 |
| | | -------------------------- | |
| (=) Market Value: | = | $247,920 | |
| (–) Productivity Loss: | – | $0 | |
| | | -------------------------- | |
| (=) Subtotal: | = | $247,920 | |
| (+) Senior Appraised Value: | + | $0 | |
| (+) Non-Senior Appraised Value: | + | $247,920 | |
| | | -------------------------- | |
| (=) Total Appraised Value: | = | $247,920 | |
| (–) Senior Exemption Loss: | – | $0 | |
| (–) Exemption Loss: | – | $0 | |
| | | -------------------------- | |
| (=) Taxable Value: | = | $247,920 | |
Taxing Jurisdiction
| Owner: | THOMPSON JENNIFER | | |
| % Ownership: | 100.0000000000% | | |
| Total Value: | $247,920 | | |
| Tax Area: | 1 - OL-140-F |
| CERFD | CURRENT EXPENSE REFUND 010 | 0.0000000000 | $247,920 | $247,920 | $0.00 | | |
| CURREXP | CURRENT EXPENSE 010 | 1.0175366760 | $247,920 | $247,920 | $252.27 | | |
| HUMNSERV | HUMAN SERVICES 119 | 0.0250000000 | $247,920 | $247,920 | $6.20 | | |
| SLDREL | SOLDIERS RELIEF 121 | 0.0155990005 | $247,920 | $247,920 | $3.87 | | |
| EMERGSER | EMS 147 | 0.3792580840 | $247,920 | $247,920 | $94.03 | | |
| EMSRFD | EMS REFUND 147 | 0.0000000000 | $247,920 | $247,920 | $0.00 | | |
| PORTRFD | PORT REFUND 640 | 0.0000000000 | $247,920 | $247,920 | $0.00 | | |
| PORTWWGEN | PORT OF WW 640 | 0.2460186015 | $247,920 | $247,920 | $60.99 | | |
| SD140BOND | SD #140 BOND 764 | 0.8342371393 | $247,920 | $247,920 | $206.82 | | |
| SD140GEN | SD #140 GENERAL 760 | 2.0646500647 | $247,920 | $247,920 | $511.87 | | |
| ST2 | STATE SCHOOL PART 2 600 | 0.8131451643 | $247,920 | $247,920 | $201.59 | | |
| STATESCHL | STATE SCHOOL 600 | 1.5158548041 | $247,920 | $247,920 | $375.81 | | |
| STREFUND | STATE REFUND LEVY 603 | 0.0000000000 | $247,920 | $247,920 | $0.00 | | |
| CWWBOND | C OF WW BOND 643 | 0.2760494372 | $247,920 | $247,920 | $68.44 | | |
| CWWGEN | CITY OF WW 631 | 1.6100204973 | $247,920 | $247,920 | $399.16 | | |
| CWWRFD | CITY OF WALLA WALLA REFUND 631 | 0.0000000000 | $247,920 | $247,920 | $0.00 | | |
| | Total Tax Rate: | 8.7973694689 | | | | | |
| | | | | Taxes w/Current Exemptions: | $2,181.05 | | |
| | | | | Taxes w/o Exemptions: | $2,181.05 | | |
Improvement / Building
| Improvement #1: | RESIDENTIAL | State Code: | 11 | 653.0 sqft | Value: | $206,640 |
| Exterior Wall: | VINYL | Heating/Cooling: | WARM & COOLED AIR | | Number of Bathrooms: | 2 | Number of Bedrooms: | 4 | | Plumbing: | 8 | Roof Covering: | COMP SHINGLE |
|
| | Type | Description | Class CD | Sub Class CD | Year Built | Area |
| | MA | Main Area | 1 | 30 | 1942 | 653.0 |
| | SI1 | SITE IMPROVEMENT | 1 | 30 | 1942 | 1.0 |
| | BASE | BASEMENT | 1 | 30 | 1942 | 621.0 |
| | BPF | BASEMENT -PARTITIONED FINISH | 1 | 30 | 1942 | 621.0 |
| | ATG | Attached Garage | 1 | 30 | 1942 | 240.0 |
| | RPS | PORCH W/STEPS,ROOF | 1 | 30 | 1942 | 16.0 |
Sketch
Property Image
Land
| 1 | RES 1 | Converted: Residential | 0.1516 | 6604.00 | 0.00 | 0.00 | 1.00 | $41,280 | $0 |
Roll Value History
| 2026 | N/A | N/A | N/A | N/A | N/A |
| 2025 | $232,850 | $66,040 | $0 | $298,890 | $298,890 |
| 2024 | $211,680 | $66,040 | $0 | $277,720 | $277,720 |
| 2023 | $206,640 | $41,280 | $0 | $247,920 | $247,920 |
| 2022 | $206,640 | $41,280 | $0 | $247,920 | $247,920 |
| 2021 | $103,320 | $41,280 | $0 | $144,600 | $144,600 |
| 2020 | $73,800 | $41,280 | $0 | $115,080 | $115,080 |
| 2019 | $73,800 | $41,280 | $0 | $115,080 | $115,080 |
| 2018 | $73,800 | $41,280 | $0 | $115,080 | $115,080 |
| 2017 | $82,480 | $26,400 | $0 | $108,880 | $108,880 |
| 2016 | $74,980 | $26,400 | $0 | $101,380 | $101,380 |
| 2015 | $74,980 | $26,400 | $0 | $101,380 | $101,380 |
| 2014 | $65,200 | $26,400 | $0 | $91,600 | $91,600 |
| 2013 | $65,200 | $26,400 | $0 | $91,600 | $91,600 |
| 2012 | $65,200 | $26,400 | $0 | $0 | $0 |
| 2011 | $65,200 | $26,400 | $0 | $0 | $0 |
| 2010 | $60,800 | $26,400 | $0 | $0 | $0 |
| 2009 | $70,500 | $26,400 | $0 | $0 | $0 |
| 2008 | $70,500 | $26,400 | $0 | $0 | $0 |
| 2007 | $70,500 | $26,400 | $0 | $0 | $0 |
Deed and Sales History
| 1 | 04/30/2024 | SWD | STATUTORY WARRANTY DEED | COLIN MIGUEL JR | GARZA TIFFANY & JORGE | | | $300,000.00 | 147480 | 2024-02219 |
| 2 | 12/01/2023 | SWD | STATUTORY WARRANTY DEED | THOMPSON JENNIFER | COLIN MIGUEL JR | | | $145,000.00 | 146880 | 2023-06967 |
| 3 | 05/30/2014 | SWD | STATUTORY WARRANTY DEED | FIDGE LUKE A | THOMPSON JENNIFER | | | $105,000.00 | 125997 | 2014-03728 |
| 4 | 05/25/2005 | QCD | QUIT CLAIM DEED | FIDGE, ANGIE | FIDGE, LUKE A | | | | 107572 | 2005-06286 |
| 5 | 05/25/2005 | WARRANTY D | WARRANTY DEED | PITNER, CHARLENE | FIDGE, LUKE A | | | $97,000.00 | 107571 | 2005-06285 |
| 6 | 07/16/1971 | WARRANTY D | WARRANTY DEED | | | | | $8,250.00 | 60009 | 2980-432111 |
Payout Agreement
| No payout information available.. |