Property
Account |
| Property ID: | 8679 | Abbreviated Legal Description: | GREENS ANNEX TAX 16 LOT 1 BLK 8 |
| Parcel Number: | 360721750819 | Agent Code: | |
| Type: | Real | | |
| Tax Area: | 1 - OL-140-F | Land Use Code | 11 |
| Open Space: | N | DFL | N |
| Historic Property: | N | Remodel Property: | N |
| Multi-Family Redevelopment: | N | | |
| Township: | 7 | Section: | 21 |
| Range: | 36 |
Location |
| Address: | 1539 DEFENSE AVE WA 99362 | Mapsco: | |
| Neighborhood: | A-SFR | Map ID: | |
| Neighborhood CD: | 513011 |
Owner |
| Name: | WALTHER RICK W | Owner ID: | 60301 |
| Mailing Address: | 1539 DEFENSE AVE WALLA WALLA, WA 99362 | % Ownership: | 100.0000000000% |
| | | Exemptions: | |
Taxes and Assessment Details
Property Tax Information as of
02/21/2026
Click on "Statement Details" to expand or collapse a tax statement.
* Please enter a valid date ** Please enter a valid date *
Statement Details |
| | TOTAL: | $0.00 | $0.00 | $0.00 | $0.00 | $0.00 | $0.00 |
|
| | $0.00 | $0.00 | $0.00 | $0.00 | $0.00 | $0.00 |
Values
| (+) Improvement Homesite Value: | + | $0 | |
| (+) Improvement Non-Homesite Value: | + | $255,530 | |
| (+) Land Homesite Value: | + | $0 | |
| (+) Land Non-Homesite Value: | + | $35,750 | |
| (+) Curr Use (HS): | + | $0 | $0 |
| (+) Curr Use (NHS): | + | $0 | $0 |
| | | -------------------------- | |
| (=) Market Value: | = | $291,280 | |
| (–) Productivity Loss: | – | $0 | |
| | | -------------------------- | |
| (=) Subtotal: | = | $291,280 | |
| (+) Senior Appraised Value: | + | $0 | |
| (+) Non-Senior Appraised Value: | + | $291,280 | |
| | | -------------------------- | |
| (=) Total Appraised Value: | = | $291,280 | |
| (–) Senior Exemption Loss: | – | $0 | |
| (–) Exemption Loss: | – | $0 | |
| | | -------------------------- | |
| (=) Taxable Value: | = | $291,280 | |
Taxing Jurisdiction
| Owner: | WALTHER RICK W | | |
| % Ownership: | 100.0000000000% | | |
| Total Value: | $291,280 | | |
| Tax Area: | 1 - OL-140-F |
| CERFD | CURRENT EXPENSE REFUND 010 | 0.0000000000 | $291,280 | $291,280 | $0.00 | | |
| CURREXP | CURRENT EXPENSE 010 | 1.0175366760 | $291,280 | $291,280 | $296.39 | | |
| HUMNSERV | HUMAN SERVICES 119 | 0.0250000000 | $291,280 | $291,280 | $7.28 | | |
| SLDREL | SOLDIERS RELIEF 121 | 0.0155990005 | $291,280 | $291,280 | $4.54 | | |
| EMERGSER | EMS 147 | 0.3792580840 | $291,280 | $291,280 | $110.47 | | |
| EMSRFD | EMS REFUND 147 | 0.0000000000 | $291,280 | $291,280 | $0.00 | | |
| PORTRFD | PORT REFUND 640 | 0.0000000000 | $291,280 | $291,280 | $0.00 | | |
| PORTWWGEN | PORT OF WW 640 | 0.2460186015 | $291,280 | $291,280 | $71.66 | | |
| SD140BOND | SD #140 BOND 764 | 0.8342371393 | $291,280 | $291,280 | $243.00 | | |
| SD140GEN | SD #140 GENERAL 760 | 2.0646500647 | $291,280 | $291,280 | $601.39 | | |
| ST2 | STATE SCHOOL PART 2 600 | 0.8131451643 | $291,280 | $291,280 | $236.85 | | |
| STATESCHL | STATE SCHOOL 600 | 1.5158548041 | $291,280 | $291,280 | $441.54 | | |
| STREFUND | STATE REFUND LEVY 603 | 0.0000000000 | $291,280 | $291,280 | $0.00 | | |
| CWWBOND | C OF WW BOND 643 | 0.2760494372 | $291,280 | $291,280 | $80.41 | | |
| CWWGEN | CITY OF WW 631 | 1.6100204973 | $291,280 | $291,280 | $468.97 | | |
| CWWRFD | CITY OF WALLA WALLA REFUND 631 | 0.0000000000 | $291,280 | $291,280 | $0.00 | | |
| | Total Tax Rate: | 8.7973694689 | | | | | |
| | | | | Taxes w/Current Exemptions: | $2,562.50 | | |
| | | | | Taxes w/o Exemptions: | $2,562.50 | | |
Improvement / Building
| Improvement #1: | RESIDENTIAL | State Code: | 11 | 806.0 sqft | Value: | $255,530 |
| Exterior Wall: | VINYL | Heating/Cooling: | WARM & COOLED AIR | | Number of Bathrooms: | 1 | Number of Bedrooms: | 2 | | Plumbing: | 6 | Roof Covering: | COMP SHINGLE |
|
| | Type | Description | Class CD | Sub Class CD | Year Built | Area |
| | MA | Main Area | 1 | 30 | 1942 | 806.0 |
| | SI1 | SITE IMPROVEMENT | 1 | 30 | 1942 | 1.0 |
| | BASE | BASEMENT | 1 | 30 | 1942 | 806.0 |
| | ATG | Attached Garage | 1 | 30 | 1942 | 220.0 |
| | RPS | PORCH W/STEPS,ROOF | 1 | 30 | 1942 | 30.0 |
| | WOD | Wood Deck | 1 | 30 | 1942 | 96.0 |
| | RPS | PORCH W/STEPS,ROOF | 1 | 30 | 1942 | 36.0 |
Sketch
Property Image
Land
| 1 | RES 1 | Converted: Residential | 0.1313 | 5720.00 | 0.00 | 0.00 | 1.00 | $35,750 | $0 |
Roll Value History
| 2026 | N/A | N/A | N/A | N/A | N/A |
| 2025 | $226,400 | $57,200 | $0 | $283,600 | $283,600 |
| 2024 | $205,820 | $57,200 | $0 | $263,020 | $263,020 |
| 2023 | $255,530 | $35,750 | $0 | $291,280 | $291,280 |
| 2022 | $196,560 | $35,750 | $0 | $232,310 | $232,310 |
| 2021 | $140,400 | $35,750 | $0 | $176,150 | $176,150 |
| 2020 | $112,320 | $35,750 | $0 | $148,070 | $148,070 |
| 2019 | $112,320 | $35,750 | $0 | $148,070 | $148,070 |
| 2018 | $86,400 | $35,750 | $0 | $122,150 | $122,150 |
| 2017 | $106,970 | $22,900 | $0 | $129,870 | $129,870 |
| 2016 | $101,870 | $22,900 | $0 | $124,770 | $124,770 |
| 2015 | $92,610 | $22,900 | $0 | $115,510 | $115,510 |
| 2014 | $88,200 | $22,900 | $0 | $111,100 | $111,100 |
| 2013 | $88,200 | $22,900 | $0 | $111,100 | $111,100 |
| 2012 | $88,200 | $22,900 | $0 | $0 | $0 |
| 2011 | $88,200 | $22,900 | $0 | $0 | $0 |
| 2010 | $82,900 | $22,900 | $0 | $0 | $0 |
| 2009 | $94,700 | $22,900 | $0 | $0 | $0 |
| 2008 | $71,200 | $22,900 | $0 | $0 | $0 |
| 2007 | $71,200 | $22,900 | $0 | $0 | $0 |
Deed and Sales History
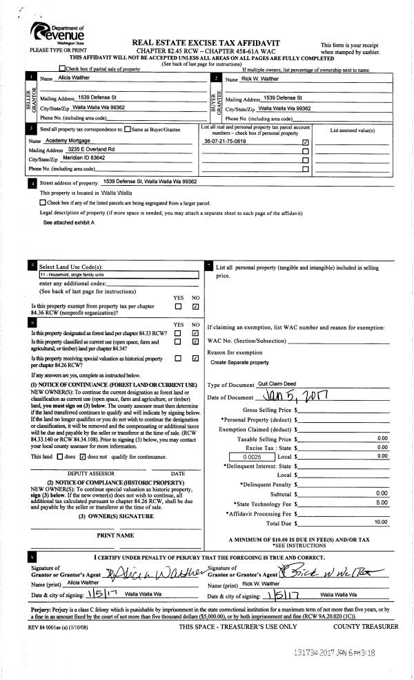
| 1 | 01/06/2017 | QCD | QUIT CLAIM DEED | WALTHER ALICIA | WALTHER RICK W | | | | 131734 | 2017-00176 |
| 2 | 01/06/2017 | SWD | STATUTORY WARRANTY DEED | GLENN RICKY DALE ESTATE OF | WALTHER RICK W | | | $125,000.00 | 131733 | 2017-00175 |
| 3 | 11/04/2005 | WARRANTY D | WARRANTY DEED | SEEL, DAVID G & KELLY J | GLENN, RICK | | | $94,000.00 | 108958 | 2005-13947 |
| 4 | 05/30/2001 | WARRANTY D | WARRANTY DEED | | | | | $85,500.00 | 97275 | 3140-105637 |
Payout Agreement
| No payout information available.. |