Property
Account |
| Property ID: | 8659 | Abbreviated Legal Description: | GREENS ANNEX TAX 13A BLK 6 |
| Parcel Number: | 360721750621 | Agent Code: | |
| Type: | Real | | |
| Tax Area: | 1 - OL-140-F | Land Use Code | 11 |
| Open Space: | N | DFL | N |
| Historic Property: | N | Remodel Property: | N |
| Multi-Family Redevelopment: | N | | |
| Township: | 7 | Section: | 21 |
| Range: | 36 |
Location |
| Address: | 409 MINUTE PL WA 99362 | Mapsco: | |
| Neighborhood: | A-SFR | Map ID: | |
| Neighborhood CD: | 513011 |
Owner |
| Name: | BECKNER BRADLEY & KARA | Owner ID: | 58569 |
| Mailing Address: | PO BOX 3333 WALLA WALLA, WA 99362 | % Ownership: | 100.0000000000% |
| | | Exemptions: | |
Taxes and Assessment Details
Property Tax Information as of
02/21/2026
Click on "Statement Details" to expand or collapse a tax statement.
* Please enter a valid date ** Please enter a valid date *
Statement Details |
| | TOTAL: | $0.00 | $0.00 | $0.00 | $0.00 | $0.00 | $0.00 |
|
| | $0.00 | $0.00 | $0.00 | $0.00 | $0.00 | $0.00 |
Values
| (+) Improvement Homesite Value: | + | $0 | |
| (+) Improvement Non-Homesite Value: | + | $246,080 | |
| (+) Land Homesite Value: | + | $0 | |
| (+) Land Non-Homesite Value: | + | $43,630 | |
| (+) Curr Use (HS): | + | $0 | $0 |
| (+) Curr Use (NHS): | + | $0 | $0 |
| | | -------------------------- | |
| (=) Market Value: | = | $289,710 | |
| (–) Productivity Loss: | – | $0 | |
| | | -------------------------- | |
| (=) Subtotal: | = | $289,710 | |
| (+) Senior Appraised Value: | + | $0 | |
| (+) Non-Senior Appraised Value: | + | $289,710 | |
| | | -------------------------- | |
| (=) Total Appraised Value: | = | $289,710 | |
| (–) Senior Exemption Loss: | – | $0 | |
| (–) Exemption Loss: | – | $0 | |
| | | -------------------------- | |
| (=) Taxable Value: | = | $289,710 | |
Taxing Jurisdiction
| Owner: | BECKNER BRADLEY & KARA | | |
| % Ownership: | 100.0000000000% | | |
| Total Value: | $289,710 | | |
| Tax Area: | 1 - OL-140-F |
| CERFD | CURRENT EXPENSE REFUND 010 | 0.0000000000 | $289,710 | $289,710 | $0.00 | | |
| CURREXP | CURRENT EXPENSE 010 | 1.0175366760 | $289,710 | $289,710 | $294.79 | | |
| HUMNSERV | HUMAN SERVICES 119 | 0.0250000000 | $289,710 | $289,710 | $7.24 | | |
| SLDREL | SOLDIERS RELIEF 121 | 0.0155990005 | $289,710 | $289,710 | $4.52 | | |
| EMERGSER | EMS 147 | 0.3792580840 | $289,710 | $289,710 | $109.87 | | |
| EMSRFD | EMS REFUND 147 | 0.0000000000 | $289,710 | $289,710 | $0.00 | | |
| PORTRFD | PORT REFUND 640 | 0.0000000000 | $289,710 | $289,710 | $0.00 | | |
| PORTWWGEN | PORT OF WW 640 | 0.2460186015 | $289,710 | $289,710 | $71.27 | | |
| SD140BOND | SD #140 BOND 764 | 0.8342371393 | $289,710 | $289,710 | $241.69 | | |
| SD140GEN | SD #140 GENERAL 760 | 2.0646500647 | $289,710 | $289,710 | $598.15 | | |
| ST2 | STATE SCHOOL PART 2 600 | 0.8131451643 | $289,710 | $289,710 | $235.58 | | |
| STATESCHL | STATE SCHOOL 600 | 1.5158548041 | $289,710 | $289,710 | $439.16 | | |
| STREFUND | STATE REFUND LEVY 603 | 0.0000000000 | $289,710 | $289,710 | $0.00 | | |
| CWWBOND | C OF WW BOND 643 | 0.2760494372 | $289,710 | $289,710 | $79.97 | | |
| CWWGEN | CITY OF WW 631 | 1.6100204973 | $289,710 | $289,710 | $466.44 | | |
| CWWRFD | CITY OF WALLA WALLA REFUND 631 | 0.0000000000 | $289,710 | $289,710 | $0.00 | | |
| | Total Tax Rate: | 8.7973694689 | | | | | |
| | | | | Taxes w/Current Exemptions: | $2,548.68 | | |
| | | | | Taxes w/o Exemptions: | $2,548.68 | | |
Improvement / Building
| Improvement #1: | RESIDENTIAL | State Code: | 11 | 880.0 sqft | Value: | $246,080 |
| Exterior Wall: | VINYL | Heating/Cooling: | FORCED AIR | | Number of Bathrooms: | 1 | Number of Bedrooms: | 2 | | Plumbing: | 6 | Roof Covering: | COMP SHINGLE |
|
| | Type | Description | Class CD | Sub Class CD | Year Built | Area |
| | MA | Main Area | 1 | 30 | 1946 | 880.0 |
| | SI1 | SITE IMPROVEMENT | 1 | 30 | 1946 | 2.0 |
| | ATG | Attached Garage | 1 | 30 | 1946 | 391.0 |
| | RPS | PORCH W/STEPS,ROOF | 1 | 30 | 1946 | 24.0 |
| | WOD | Wood Deck | 1 | 30 | 1946 | 80.0 |
| | CPC | COVERED CARPORT/PATIO | 1 | 30 | 1946 | 306.0 |
Sketch
Property Image
Land
| 1 | RES 1 | Converted: Residential | 0.1602 | 6980.00 | 0.00 | 0.00 | 1.00 | $43,630 | $0 |
Roll Value History
| 2026 | N/A | N/A | N/A | N/A | N/A |
| 2025 | $224,350 | $69,800 | $0 | $294,150 | $294,150 |
| 2024 | $224,350 | $69,800 | $0 | $294,150 | $294,150 |
| 2023 | $246,080 | $43,630 | $0 | $289,710 | $289,710 |
| 2022 | $213,980 | $43,630 | $0 | $257,610 | $257,610 |
| 2021 | $164,600 | $43,630 | $0 | $208,230 | $208,230 |
| 2020 | $126,620 | $43,630 | $0 | $170,250 | $170,250 |
| 2019 | $126,620 | $43,630 | $0 | $170,250 | $170,250 |
| 2018 | $110,100 | $43,630 | $0 | $153,730 | $153,730 |
| 2017 | $97,470 | $27,900 | $0 | $125,370 | $125,370 |
| 2016 | $92,830 | $27,900 | $0 | $120,730 | $120,730 |
| 2015 | $88,410 | $27,900 | $0 | $116,310 | $116,310 |
| 2014 | $84,200 | $27,900 | $0 | $112,100 | $112,100 |
| 2013 | $84,200 | $27,900 | $0 | $112,100 | $112,100 |
| 2012 | $89,100 | $27,900 | $0 | $0 | $0 |
| 2011 | $89,100 | $27,900 | $0 | $0 | $0 |
| 2010 | $83,500 | $27,900 | $0 | $0 | $0 |
| 2009 | $95,900 | $27,900 | $0 | $0 | $0 |
| 2008 | $60,500 | $27,900 | $0 | $0 | $0 |
| 2007 | $60,500 | $27,900 | $0 | $0 | $0 |
Deed and Sales History
| 1 | 04/15/2016 | SWP | Special Warranty Deed | SECRETARY OF HOUSING & URBAN DEV | BECKNER BRADLEY & KARA | | | | 130033 | 2016-02778 |
| 2 | 12/10/2015 | SWD | STATUTORY WARRANTY DEED | PLANET HOME LENDING LLC | SECRETARY OF HOUSING & URBAN DEV | | | $0.00 | 129340 | 2015-10719 |
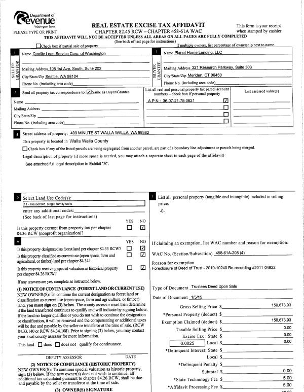
| 3 | 01/08/2015 | TRUSTEES D | TRUSTEE'S DEED | ODOM RONNY R & DEBERA A | PLANET HOME LENDING LLC | | | $150,673.00 | 127233 | 2015-00179 |
| 4 | 07/06/2005 | WARRANTY D | WARRANTY DEED | CAMPBELL, KURT W | ODOM, RONNY R & DEBERA A | | | $81,000.00 | 107893 | 2005-08185 |
| 5 | 07/14/1978 | WARRANTY D | WARRANTY DEED | | | | | $16,000.00 | 70369 | 5805-64245 |
Payout Agreement
| No payout information available.. |