Property
Account |
| Property ID: | 8646 | Abbreviated Legal Description: | GREENS ANNEX TAX 8 LOT 3 BLK 5 |
| Parcel Number: | 360721750516 | Agent Code: | |
| Type: | Real | | |
| Tax Area: | 1 - OL-140-F | Land Use Code | 11 |
| Open Space: | N | DFL | N |
| Historic Property: | N | Remodel Property: | N |
| Multi-Family Redevelopment: | N | | |
| Township: | 7 | Section: | 21 |
| Range: | 36 |
Location |
| Address: | 510 N DIVISION ST WA 99362 | Mapsco: | |
| Neighborhood: | A-SFR | Map ID: | |
| Neighborhood CD: | 513011 |
Owner |
| Name: | GONZALES JOSHUA C & CARRIE L | Owner ID: | 52996 |
| Mailing Address: | 510 N DIVISION ST WALLA WALLA, WA 99362 | % Ownership: | 100.0000000000% |
| | | Exemptions: | |
Taxes and Assessment Details
Property Tax Information as of
02/21/2026
Click on "Statement Details" to expand or collapse a tax statement.
* Please enter a valid date ** Please enter a valid date *
Statement Details |
| | TOTAL: | $0.00 | $0.00 | $0.00 | $0.00 | $0.00 | $0.00 |
|
| | $0.00 | $0.00 | $0.00 | $0.00 | $0.00 | $0.00 |
Values
| (+) Improvement Homesite Value: | + | $0 | |
| (+) Improvement Non-Homesite Value: | + | $417,080 | |
| (+) Land Homesite Value: | + | $0 | |
| (+) Land Non-Homesite Value: | + | $56,880 | |
| (+) Curr Use (HS): | + | $0 | $0 |
| (+) Curr Use (NHS): | + | $0 | $0 |
| | | -------------------------- | |
| (=) Market Value: | = | $473,960 | |
| (–) Productivity Loss: | – | $0 | |
| | | -------------------------- | |
| (=) Subtotal: | = | $473,960 | |
| (+) Senior Appraised Value: | + | $0 | |
| (+) Non-Senior Appraised Value: | + | $473,960 | |
| | | -------------------------- | |
| (=) Total Appraised Value: | = | $473,960 | |
| (–) Senior Exemption Loss: | – | $0 | |
| (–) Exemption Loss: | – | $0 | |
| | | -------------------------- | |
| (=) Taxable Value: | = | $473,960 | |
Taxing Jurisdiction
| Owner: | GONZALES JOSHUA C & CARRIE L | | |
| % Ownership: | 100.0000000000% | | |
| Total Value: | $473,960 | | |
| Tax Area: | 1 - OL-140-F |
| CERFD | CURRENT EXPENSE REFUND 010 | 0.0000000000 | $473,960 | $473,960 | $0.00 | | |
| CURREXP | CURRENT EXPENSE 010 | 1.0175366760 | $473,960 | $473,960 | $482.27 | | |
| HUMNSERV | HUMAN SERVICES 119 | 0.0250000000 | $473,960 | $473,960 | $11.85 | | |
| SLDREL | SOLDIERS RELIEF 121 | 0.0155990005 | $473,960 | $473,960 | $7.39 | | |
| EMERGSER | EMS 147 | 0.3792580840 | $473,960 | $473,960 | $179.75 | | |
| EMSRFD | EMS REFUND 147 | 0.0000000000 | $473,960 | $473,960 | $0.00 | | |
| PORTRFD | PORT REFUND 640 | 0.0000000000 | $473,960 | $473,960 | $0.00 | | |
| PORTWWGEN | PORT OF WW 640 | 0.2460186015 | $473,960 | $473,960 | $116.60 | | |
| SD140BOND | SD #140 BOND 764 | 0.8342371393 | $473,960 | $473,960 | $395.40 | | |
| SD140GEN | SD #140 GENERAL 760 | 2.0646500647 | $473,960 | $473,960 | $978.56 | | |
| ST2 | STATE SCHOOL PART 2 600 | 0.8131451643 | $473,960 | $473,960 | $385.40 | | |
| STATESCHL | STATE SCHOOL 600 | 1.5158548041 | $473,960 | $473,960 | $718.45 | | |
| STREFUND | STATE REFUND LEVY 603 | 0.0000000000 | $473,960 | $473,960 | $0.00 | | |
| CWWBOND | C OF WW BOND 643 | 0.2760494372 | $473,960 | $473,960 | $130.84 | | |
| CWWGEN | CITY OF WW 631 | 1.6100204973 | $473,960 | $473,960 | $763.09 | | |
| CWWRFD | CITY OF WALLA WALLA REFUND 631 | 0.0000000000 | $473,960 | $473,960 | $0.00 | | |
| | Total Tax Rate: | 8.7973694689 | | | | | |
| | | | | Taxes w/Current Exemptions: | $4,169.60 | | |
| | | | | Taxes w/o Exemptions: | $4,169.60 | | |
Improvement / Building
| Improvement #1: | RESIDENTIAL | State Code: | 11 | 1686.0 sqft | Value: | $417,080 |
| Exterior Wall: | SIDING | Heating/Cooling: | WARM & COOLED AIR | | Number of Bathrooms: | 3 | Number of Bedrooms: | 5 | | Plumbing: | 13 | Roof Covering: | COMP SHINGLE |
|
| | Type | Description | Class CD | Sub Class CD | Year Built | Area |
| | MA | Main Area | 4 | 35 | 1940 | 1686.0 |
| | UPFL | Upper Floor (included in main area) | 4 | 35 | 1940 | 600.0 |
| | SI1 | SITE IMPROVEMENT | 4 | 35 | 1940 | 1.5 |
| | BASE | BASEMENT | 4 | 35 | 1940 | 936.0 |
| | BPF | BASEMENT -PARTITIONED FINISH | 4 | 35 | 1940 | 936.0 |
| | S1F | Single One Story Fireplace | 4 | 35 | 1940 | 1.0 |
| | DTG | Detached Garage | 4 | 35 | 1940 | 200.0 |
| | RCD | WOOD DECK W/ROOF, CEILED | 4 | 35 | 1940 | 140.0 |
| | WOD | Wood Deck | 4 | 35 | 1940 | 336.0 |
| | TOOL | TOOL SHED | 1 | 35 | 1940 | 100.0 |
Sketch
Property Image
Land
| 1 | RES 1 | Converted: Residential | 0.2089 | 9100.00 | 0.00 | 0.00 | 1.00 | $56,880 | $0 |
Roll Value History
| 2026 | N/A | N/A | N/A | N/A | N/A |
| 2025 | $341,360 | $91,000 | $0 | $432,360 | $432,360 |
| 2024 | $341,360 | $91,000 | $0 | $432,360 | $432,360 |
| 2023 | $417,080 | $56,880 | $0 | $473,960 | $473,960 |
| 2022 | $397,220 | $56,880 | $0 | $454,100 | $454,100 |
| 2021 | $305,550 | $56,880 | $0 | $362,430 | $362,430 |
| 2020 | $244,440 | $56,880 | $0 | $301,320 | $301,320 |
| 2019 | $244,440 | $56,880 | $0 | $301,320 | $301,320 |
| 2018 | $232,800 | $56,880 | $0 | $289,680 | $289,680 |
| 2017 | $204,680 | $36,400 | $0 | $241,080 | $241,080 |
| 2016 | $186,070 | $36,400 | $0 | $222,470 | $222,470 |
| 2015 | $186,070 | $36,400 | $0 | $222,470 | $222,470 |
| 2014 | $161,800 | $36,400 | $0 | $198,200 | $198,200 |
| 2013 | $161,800 | $36,400 | $0 | $198,200 | $198,200 |
| 2012 | $161,800 | $36,400 | $0 | $0 | $0 |
| 2011 | $172,200 | $36,400 | $0 | $0 | $0 |
| 2010 | $145,000 | $36,400 | $0 | $0 | $0 |
| 2009 | $165,100 | $36,400 | $0 | $0 | $0 |
| 2008 | $131,500 | $36,400 | $0 | $0 | $0 |
| 2007 | $131,500 | $36,400 | $0 | $0 | $0 |
Deed and Sales History
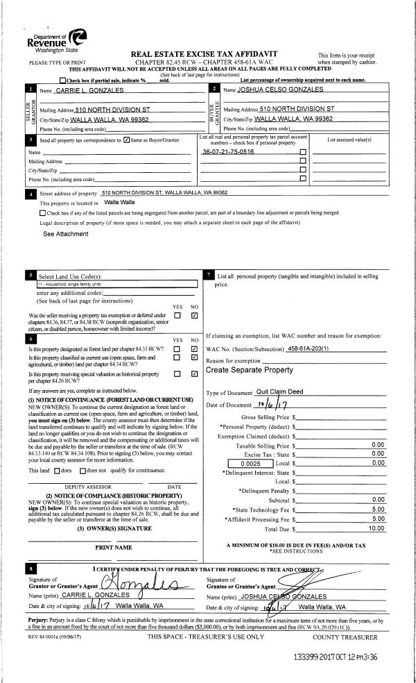
| 1 | 10/17/2019 | QCD | QUIT CLAIM DEED | GONZALES JOSHUA CELSO | GONZALES JOSHUA C & CARRIE L | | | $0.00 | 137913 | 2019-08462 |
| 2 | 10/06/2017 | QCD | QUIT CLAIM DEED | GONZALES JOSHUA C & CARRIE L | GONZALES JOSHUA CELSO | | | $0.00 | 133399 | 2017-08126 |
| 3 | 08/07/2013 | WARRANTY D | WARRANTY DEED | SHIELDS, MICHAEL G & CYNTHIA | GONZALES, JOSHUA & CARRIE | | | $253,000.00 | 124424 | 2013-08040 |
| 4 | 05/15/1996 | WARRANTY D | WARRANTY DEED | | | | | $117,500.00 | 86113 | 2419-604823 |
Payout Agreement
| No payout information available.. |